Nhà Thủ Đức là ngôi nhà phố thuộc dạng nhà ống “hẹp ngang dài sâu” điển hình. Gia chủ mong mỏi có được một không gian sống bình yên, trong lành, có thể cảm nhận chút nắng gió giữa lòng Sài Gòn hối hả và tấp nập. Với bài toán đặc thù của nhà trong ngõ, thiết kế ngôi nhà đã giải quyết trọn vẹn mong mỏi này và mang lại sự hài lòng cho gia chủ.
Tóm tắt giải pháp thiết kế nhà ống trong ngõ tại Thủ Đức
-
Tổ chức nhà ống theo phương đứng, tận dụng chiều sâu khu đất hẹp ngang.
-
Đảo ngược vị trí phòng khách để ưu tiên không gian sống hướng Đông mát mẻ.
-
Tạo các khoảng đệm như sân sau, thông tầng, ban công để điều tiết vi khí hậu.
-
Sử dụng “vỏ bao che” và hệ lam để giảm bức xạ cho nhà trong ngõ hướng Tây.
-
Kết nối thiên nhiên bằng cây xanh, ánh sáng và gió xuyên suốt các tầng.
Tổ chức không gian nhà ống theo hướng lệch tầng và đảo công năng
Người Sài Gòn cảm nhận được thành phố này ngày càng đông đúc hơn vì sức nóng của phát triển kinh tế và đô thị. Điều này vô tình làm việc tận hưởng nắng sớm, hay một cơn gió mát lành dần trở nên xa xỉ. Vì vậy, một chốn bình yên, trong lành, gần hơn với thiên nhiên, cảm nhận ánh nắng và gió là điều mong mỏi của nhiều gia chủ. Nó đặt ra bài toán cho người thiết kế cần phải cân đo đong đếm kỹ lưỡng trong 1 điều kiện cho phép của mỗi miếng đất, vị trí xây dựng, ngữ cảnh về đô thị và môi trường khác nhau.
Ngôi nhà ống có mặt chính hướng Tây. Đây là một trở ngại đáng kể nếu mở quá nhiều trên mặt này vì sự tác động lớn của ánh nắng và bức xạ mặt trời gay gắt, nhất là khi Sài Gòn vào hè. Mục tiêu thiết kế của ngôi nhà ống vẫn được đặt trong mối quan hệ của khí hậu nhiệt đới nóng ẩm bản địa, nhằm đảm bảo công trình đạt sự thông thoáng và chiếu sáng tự nhiên, môi trường tiện nghi bên trong, và cảm nhận sự thay đổi của thiên nhiên.
Nhà Thủ Đức là dạng nhà ống với kích thước hẹp ngang dài sâu điển hình
Bên ngoài ngôi nhà ống được thiết kế vuông vắn và đơn giản
Không thể thiếu sự xuất hiện của những khoảng xanh tại nhà trong ngõ
>>> Xem thêm: Nhà ống chưa đến 50m2 nhưng vẫn thoáng đẹp nhờ chọn vật liệu xây dựng hợp lý, chi phí 1.5 tỷ đồng
Ngôi nhà ống có kích thước chiếu rộng là 4,8m, chiều dài là 22m, với cấu trúc 1 trệt, 2 lầu + 1 sân thượng. Công năng bên trong ngôi nhà ống gồm 1 phòng khách, 1 phòng bếp - ăn, 1 khu làm việc, 1 phòng ngủ khép kín và 2 phòng ngủ nhỏ, sân phơi và vườn trên mái. Thay vì nguyên tắc thông thường là đặt phòng khách ở phía trước, giáp đường hoặc hẻm, tiếp đến là phòng bếp - ăn cùng không gian phụ trợ, KTS đã sắp đặt ngược lại.
Khu vực phòng khách và sinh hoạt chính của gia đình được đặt ở phía sau ngôi nhà ống, quay về hướng Đông và có khoảng sân sau như một khoảng xanh quý giá và vùng đệm tuyệt vời để điều tiết môi trường. Trong khi đó, nhà xe ở tầng trệt và bếp ở lầu 1 được sắp xếp về hướng Tây. Không gian phòng ăn cũng quay về hướng đông, nối kết mở một cách thú vị qua phòng khách, sau đó ra sân sau.
Phòng khách nằm ở tầng lửng, được đẩy về cuối ngôi nhà ống, tách biệt với gara để ô tô
Khoảng đệm hoàn hảo là sân vườn cuối nhà ống, như một chiếc “bẫy” ánh sáng và gió tươi cho không gian
Để tối ưu ánh sáng và gió tươi, KTS đã sử dụng hệ cửa vách kính sát trần
Từ khoảng sân ngoài trời có thể thấy rõ phòng khách và bếp - ăn phân cách nhau bằng cầu thang lớn
Phòng khách - bếp được đẩy ra phía mặt tiền của ngôi nhà ống
Thiết kế phòng bếp - ăn của nhà Thủ Đức gọn gàng và đơn giản, không sử dụng quá nhiều đèn điện vào ban ngày bởi hệ cửa sổ kính trải dài ở phần mặt tiền
Vị trí của phòng làm việc nằm ở lầu 1 cũng quay vào sân sau, “giao tiếp” với phòng khách bên dưới thông qua khoảng thông tầng rộng. Sự sắp đặt các không gian chính của ngôi nhà một cách có chủ đích theo tác động của mặt trời giúp cho không khí bên trong trở nên mát mẻ vì đón nắng sáng và gió mát từ phía Đông.
Bàn làm việc nằm ở lầu 1, nhìn xuống phòng khách thông qua khoảng thông tầng
Khu vực làm việc được thiết kế tối giản giúp gia chủ có thể tập trung làm việc với trạng thái thoải mái nhất
Thay vì sử dụng lan can cầu thang thông thường, KTS dùng lam gỗ cho khu vực này của nhà ống
Tuy nhiên, phòng ngủ chính của gia chủ lại đặt ở hướng Tây. KTS đã áp dụng giải pháp che nắng bằng khoảng lùi lớn và mái lam che. Ngoài ra, để giảm tác động bức xạ mặt trời lớn từ phía trên thì phần lớn diện tích mái được phủ bóng mát bằng cây xanh.
Phòng ngủ master với vệ sinh khép kín, ngập tràn nắng hướng Tây. KTS đã sử dụng ban công làm khoảng đệm, đồng thời cửa kính và rèm che cũng điều tiết ánh sáng hiệu quả
Phòng ngủ dành cho con của gia chủ kết nối với sân thượng của nhà ống
Khoảng sân thượng không nằm ở tầng cao nhất của ngôi nhà ống
>>> Xem thêm: Tâm House - Nhà ống 3 tầng 4,8 x 22m ở ngoại ô Hà Nội, mái ấm nhiều cây xanh và ánh sáng tự nhiên
Giải pháp ánh sáng, thông gió cho nhà trong ngõ hẹp ngang dài sâu
Mọi không gian chức năng bên trong nhà ống được thiết kế mở và bố trí theo hướng lệch tầng. Chúng được xâu chuỗi lại bằng khoảng thông tầng ở phòng khách và thang, sân trước và sau. Điều này không những làm cho sự liên kết và điểm nhìn về mặt không gian trở nên hấp dẫn hơn, mà còn đảm bảo môi trường bên trong tiện nghi tốt hơn. Ánh sáng tự nhiên có thể đi vào các gian phòng qua các lỗ mở trên 2 mặt tiền nhà và khoảng mở đứng.
Tuy nhiên, ánh sáng sẽ không quá gay gắt bởi sự tham gia của các không gian đệm như thông tầng, sân, và ban công. Ngoài ra, ngôi nhà ống 4,8x22m sẽ đón được gió mát quanh năm từ cả hai hướng Đông - Tây, len lỏi qua các không gian trước khi thoát ra ở trên mái và cửa mở trên mặt đứng.
Việc bố trí phòng ngược như vậy không gây bất tiện vì phía dưới các bậc thang là không gian để xe ô tô. Không gian để ô tô vốn có mùi xăng và tiếng ồn nhờ vậy sẽ được tách biệt với phòng khách, không gian sinh hoạt của cả nhà.
Mô hình phối cảnh nhà ống - nhà Thủ Đức
Nhóm KTS cũng chia sẻ thêm về việc bố trí ngược rằng: “Do chủ nhà không tiếp khách ở nơi ở, chủ yếu là người thân gia đình hoặc bạn bè thật sự thân thiết, nên việc đi xuyên qua nhà xe (không xuyên qua bếp) tới phòng khách cũng không gây bất tiện, không cần sự trang trọng. Thêm một điều khác biệt nữa so với các nhà phố có gara ô tô, việc làm lệch tầng sẽ làm cho không gian phòng khách thoáng đãng, kết nối với không gian bàn ăn và sử dụng hết chiều dài của khu đất, mà không bị giới hạn bởi khu vực gara”.
Một điểm đặc biệt nữa là tầng sân thượng được đặt ở lầu 2 (tầng 3) chứ không phải tầng cao nhất. Tầng cao nhất sẽ được bố trí các không gian có tần suất sử dụng thấp như nhà kho, khu giặt phơi. Nhờ đó mà các thành viên trong gia đình có thể tiếp cận không gian sân thượng để sinh hoạt một cách dễ dàng, thuận tiện hơn.
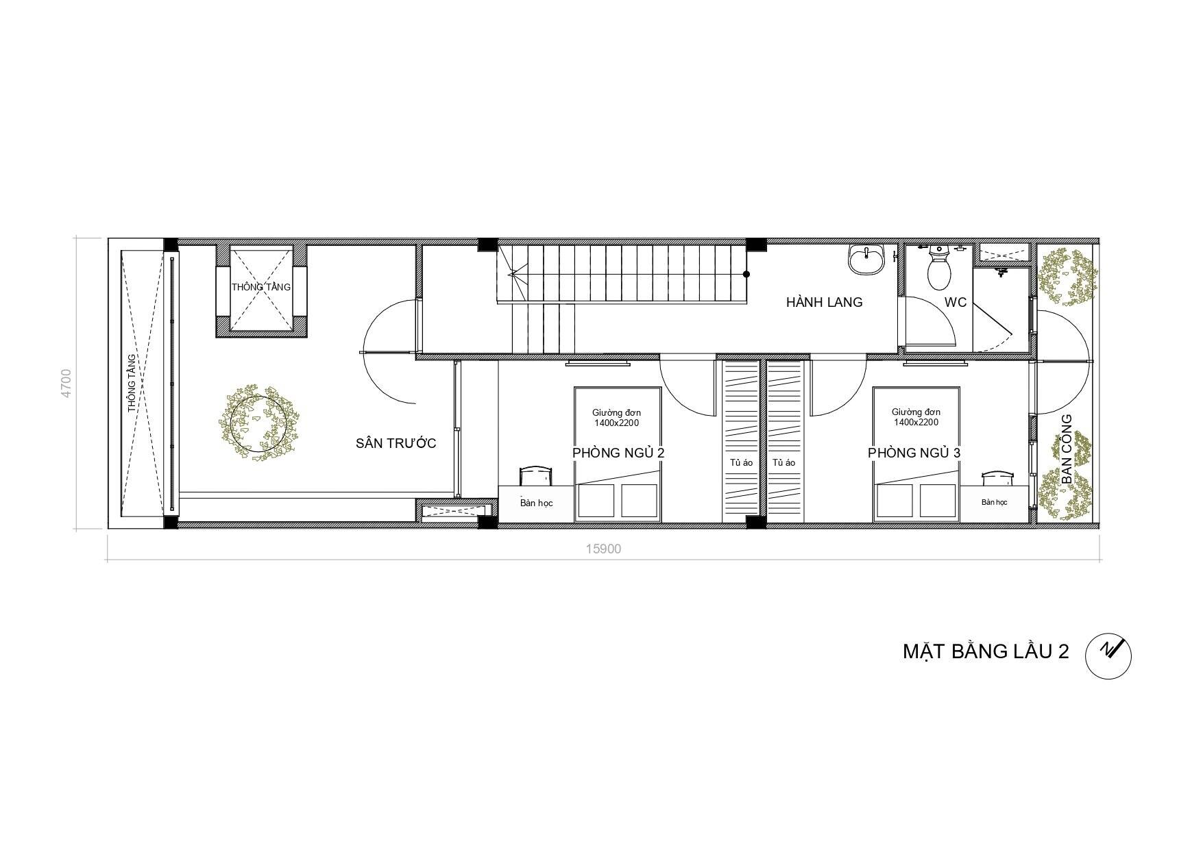
Bản vẽ mặt bằng nhà ống - nhà Thủ Đức
Mặt cắt phối cảnh của nhà ống - nhà Thủ Đức
>>> Xem thêm: Nhà ống Sài Gòn bị “kẹp kín” 2 mặt bên mà không gian bên trong vẫn siêu thoáng nhờ thiết kế mở xuất sắc
Nhà Thủ Đức là ngôi nhà ống cho thấy nhóm thiết kế đặt sự quan sát và cân nhắc kỹ lưỡng khi sắp đặt không gian. Ngôi nhà trong ngõ với không gian được thiết kế theo phương đứng, “vỏ bao che” để che nắng và thông gió, nhằm sáng tạo 1 cấu trúc công trình không chỉ đẹp về không gian, mà có tính gắn kết với thiên nhiên, gắn kết con người với con người, đồng thời đây là môi trường sống thoải mái, yên bình cho gia chủ.
Xem thêm các bài viết cùng chuyên mục Chuyện nhà trên Happynest để khám phá thêm những không gian sống được thiết kế tinh tế, bền vững và giàu cảm xúc.
Thông tin công trình:
Tên công trình: Nhà Thủ Đức
Dài (m): 22
Rộng (m): 4,8
Năm hoàn thành: 2022
Đơn vị thiết kế: DQV Architects
Nhóm thiết kế: KTS. Đào Quốc Việt, KTS. Phạm Minh Hiếu, KTS. Trương Quốc Trọng, KTS. Linh Huỳnh
Đơn vị chụp ảnh: DQV Architects
Địa điểm: Thành phố Thủ Đức, TP. Hồ Chí Minh
Số tầng: 4 tầng 1 lửng
Loại nhà: Nhà phố, nhà ống, nhà trong ngõ
*Để lại thông tin trong box dưới đây, Happynest sẽ giúp bạn kết nối đơn vị thiết kế - thi công phù hợp và nhanh chóng nhất.
















































































































