Giữa bối cảnh đô thị Wuri, Đài Trung dày đặc và lộn xộn, căn nhà phố 50 năm tuổi đã được Yi Rang Design hồi sinh thành không gian sống kết hợp xưởng nghệ thuật cho cặp vợ chồng gia chủ. Đối mặt với hiện trạng xuống cấp trầm trọng và tầm nhìn hạn chế, các KTS đã ứng dụng gạch hoa gió và gạch kính như một lớp màng lọc thông minh cho ra đời một tổ ấm hoàn hảo nơi gia chủ tìm thấy sự an yên trong từng tấc vuông không gian.
Dự án cải tạo ngôi nhà phố 50 năm tuổi tại Wuri do Yi Rang Design là một minh chứng xuất sắc cho việc kiến trúc có thể chữa lành tâm hồn con người
Khi hạn chế trở thành nguồn cảm hứng cải tạo ngôi nhà 50 năm tuổi
Ngôi nhà nằm trong một khu dân cư cũ, đối diện trực tiếp là những nhà xưởng mái tôn tạm bợ - một đặc sản kém thẩm mỹ của vùng ven đô. Thêm vào đó, công trình gốc mang đầy đủ các nhược điểm của nhà phố lâu năm: bể phốt hư hỏng gây tràn, tường bị bong tróc, ẩm mốc và thiếu sáng trầm trọng ở tầng trệt.
Công trình gốc mang xuống cấp từng bước được dỡ bỏ để thay thế bằng một không gian sống hoàn hảo
Thay vì chán nản trước bối cảnh đó, nữ gia chủ, một nghệ sĩ làm nỉ len lại mong muốn tìm kiếm vẻ đẹp từ những điều nhỏ bé. Ý tưởng thiết kế được hình thành dựa trên triết lý “Tấc vuông thiên địa”: Biến ngôi nhà thành một vũ trụ thu nhỏ, tách biệt khỏi sự xô bồ bên ngoài nhưng không đóng kín, mà chắt lọc lấy ánh sáng và gió trời thông qua các giải pháp kiến trúc tinh tế.
Ngôi nhà như một vũ trụ thu nhỏ tách biệt khỏi thế giới xô bồ
>>> Xem thêm: Cải tạo nhà cũ 30 năm tuổi cho gia đình có 6 người, đẹp và khang trang hơn mà không cần can thiệp quá nhiều
Sau cải tạo, ngôi nhà đã tối ưu được công năng và dòng chảy năng lượng
Để giải quyết bài toán nhà ống dài và hẹp, KTS đã thực hiện cuộc đại phẫu thuật về công năng, dỡ bỏ các vách ngăn thừa để khơi thông dòng chảy không khí và ánh sáng.
Tầng 1: Sự xóa nhòa ranh giới giữa Studio và không gian sống
Trước đây, tầng trệt là một không gian tối tăm, bị chia cắt vụn vặt bởi cầu thang và các phòng chức năng đóng kín. Nhận thấy tiềm năng của một không gian đa nhiệm, đội ngũ thiết kế đã phá bỏ hoàn toàn các bức tường ngăn cách, tạo nên một mặt bằng mở xuyên suốt từ cửa chính ra đến sân sau.
Những bức tường cũ được dỡ bỏ để tạo thành một không gian liền mạch
Phòng khách giờ đây không chỉ là nơi đón tiếp bạn bè mà còn đóng vai trò là studio trưng bày các tác phẩm nghệ thuật. Thay vì sử dụng tường gạch đặc, mặt tiền được thay thế bằng những mảng gạch kính lớn.
Phòng khách trở thành một studio trưng bày tác phẩm nghệ thuật
Vào ban ngày, chúng hoạt động như những bẫy sáng, thu gom ánh nắng và khuếch tán dịu nhẹ vào sâu bên trong, biến cả tầng một thành một hộp ánh sáng lung linh nhưng vẫn đảm bảo sự riêng tư tuyệt đối cho người ngồi trong. Sàn gỗ ấm áp chạy dài không ngắt quãng càng làm tăng thêm cảm giác mênh mông, xóa nhòa cảm giác chật hẹp vốn có của nhà phố cũ.
Ánh sáng đi qua lớp gạch kính trở nên mềm mại tạo điều kiện ánh sáng lý tưởng cho công việc sáng tạo nghệ thuật của nữ gia chủ
Khu vực bếp và nhà ăn đổi trục, không gian thoáng hơn và tăng tương tác
Một trong những thay đổi đắt giá nhất nằm ở khu vực bếp ăn. Trong hiện trạng cũ, phòng vệ sinh nằm ngay cạnh cầu thang, cản trở tầm nhìn và tạo ra một nút thắt giao thông khó chịu. KTS đã thực hiện một nước đi táo bạo khi di dời khối vệ sinh này ra khu vực phía trước, tận dụng đường thoát nước mới cải tạo và biến gầm cầu thang thành một kho chứa đồ kín đáo.
Cách giải phóng mặt bằng này cho phép thực hiện một thay đổi mang tính chiến lược: Xoay trục đảo bếp 90 độ. Thay vì quay mặt vào tường, người đứng bếp giờ đây hướng tầm mắt về phía bàn ăn dài bằng gỗ nguyên tấm và khoảng sân sau xanh mát.
Bố cục cũ của căn nhà với những khối kiến trúc bất hợp lý được dở bõ
Sự sắp đặt song song giữa đảo bếp và bàn ăn tạo ra một dòng chảy di chuyển mượt mà cho việc nấu nướng và phục vụ. Quan trọng hơn, nó khuyến khích sự tương tác không lời: người vợ đang làm bếp vẫn có thể trò chuyện với chồng hoặc học viên đang ngồi tại bàn ăn, biến gian bếp thực sự trở thành trái tim ấm áp của ngôi nhà.
Xoay trục đảo bếp giúp mở rộng tầm nhìn tạo nên không gian sinh hoạt chung thoáng đãng và tràn ngập ánh sáng tự nhiên
Thiết kế khu vực nhà tắm cho khách tiện lợi hơn
Việc tái cấu trúc tầng 1 không chỉ dừng lại ở bếp mà còn giải quyết bài toán tế nhị về vệ sinh công cộng, đặc biệt khi ngôi nhà kiêm chức năng lớp học nghệ thuật. Phòng vệ sinh cũ nằm cạnh cầu thang đã được di dời ra phía trước nhà.
Phòng vệ sinh cũ được phá vỡ và di dời cho phù hợp với bố cục căn nhà
Vị trí mới ở phía trước giúp học viên và khách vãng lai tiếp cận dễ dàng mà không cần đi sâu vào khu vực sinh hoạt riêng tư phía sau. KTS đã tách bồn rửa tay ra khỏi phòng vệ sinh và đặt ở không gian bên ngoài. TS đã ốp gạch vân gỗ cho toàn bộ mảng tường và sàn khu vực tạo ra sự đồng bộ với ngôn ngữ gỗ của mặt tiền và sàn phòng khách, xóa bỏ cảm giác lạnh lẽo thường thấy của gạch men vệ sinh thông thường.
Nhà vệ sinh đã được thiết kế lại sạch sẽ và thông thoáng hơn
>>> Xem thêm: Cải tạo biệt thự Pháp cổ gần 70 năm tuổi 32QT giữa lòng thủ đô Hà Nội
Tầng 2 gồm phòng ngủ với cách thiết kế đóng - mở linh hoạt
Tầng 2 của nhà phố cũ thường mắc lỗi thiết kế điển hình: hành lang dài hun hút dẫn đến một phòng vệ sinh duy nhất nằm tận cuối nhà, gây bất tiện lớn cho sinh hoạt đêm khuya. Để khắc phục, một giải pháp tái cấu trúc thông minh đã được áp dụng, biến tầng lầu này thành một căn hộ suite cao cấp.
Một phòng ngủ cao cấp được thiết kế trên tầng 2 của căn nhà phố cũ
Khi cánh cửa phía phòng Tatami (phòng trà/ngủ khách) đóng lại và cánh cửa phía phòng ngủ chính mở ra, toàn bộ khu vực này trở thành một phòng ngủ chính khép kín, rộng rãi và tiện nghi cho gia chủ. Ngược lại, khi nhà có khách ngủ lại, hệ cửa trượt cho phép biến đổi công năng tức thì, giúp khách có thể tiếp cận nhà vệ sinh dễ dàng mà không xâm phạm vào không gian riêng tư của phòng ngủ chính.
Áp dụng lối thiết kế đóng - mở giúp không gian sống trở nên tiện nghi hơn
Sự giao hòa giữa vật liệu cũ và mới trong ngôi nhà sau cải tạo
Các vật liệu được lựa chọn không chỉ vì thẩm mỹ mà còn mang tính chữa lành, gợi nhắc ký ức và xử lý các khiếm khuyết hiện trạng. Các KTS đã thay thế tường đặc bằng mảng tường gạch kính tại mặt tiền nhờ đó biến ánh sáng gắt thành ánh sáng khuếch tán dịu nhẹ, đảm bảo riêng tư (người ngoài không nhìn thấu) nhưng vẫn đủ sáng cho công việc tỉ mỉ của nữ gia chủ.
Tường gạch kính giúp không gian thêm gần gũi và tạo điểm nhấn riêng
Tại tầng 2 và mặt tiền, gạch bông gió được sử dụng như một tấm rèm bê tông kiên cố nhưng thoáng khí. Về mặt vật lý, lớp gạch này đóng vai trò chắn nắng hướng Tây cực kỳ hiệu quả, cản tới 50% bức xạ nhiệt, giúp không gian bên trong luôn mát mẻ nhờ luồng khí đối lưu qua các ô thoáng.
Về mặt thị giác, đây là một thủ pháp lọc cảnh đầy nghệ thuật. Khi nhìn từ trong ra, những ô gạch chia nhỏ khung cảnh nhà xưởng lộn xộn phía đối diện thành những mảng màu trừu tượng. Gia chủ không còn bị làm phiền bởi sự thô kệch của mái tôn, mà thay vào đó là tận hưởng vũ điệu của nắng và bóng đổ thay đổi từng giờ trên sàn nhà.
Lớp gạch hoa gió không chỉ chắn nắng gắt hướng Tây mà còn lọc bỏ những hình ảnh lộn xộn bên ngoài, giữ lại sự riêng tư và tĩnh tại cho gia chủ
Nhìn kỹ hơn, bề mặt tường không nhẵn mà được tạo kết cấu nhám vuông hiện đại
Để giữ lại hồn cốt của vùng đất Wuri nông nghiệp, KTS sử dụng gạch lát nền bằng gốm đỏ nhập khẩu Tây Ban Nha cho phòng làm việc, tạo cảm giác thô mộc, gần gũi với đất mẹ. Bên cạnh đó, những cây cột hiên nhà cũ kỹ, bong tróc sơn đã được chữa lành bằng cách bọc ốp tỉ mỉ từng thanh gỗ thông phương Nam. Theo thời gian, gỗ sẽ ngả màu xám bạc, hòa quyện với màu gạch và cây xanh, tạo nên vẻ đẹp của sự trưởng thành và hoài niệm.
Kết nối với thiên nhiên nhờ lối thiết kế ngoài vuông trong tròn
Dù không có sân vườn lớn, ngôi nhà vẫn tràn ngập hơi thở thiên nhiên nhờ cách trổ cửa thông minh. Điểm nhấn thi vị nhất nằm ở khung cửa sổ phòng làm việc tầng 2. Tận dụng lỗ hổng của máy lạnh cửa sổ cũ, KTS đã thiết kế một khung cửa lấy cảm hứng từ ngôn ngữ kiến trúc của cố KTS Wang Dajun: “Ngoại phương nội viên” (Ngoài vuông trong tròn).
Khung cửa này hoạt động như một ống kính máy ảnh, thu nhỏ bầu trời và hình ảnh bên ngoài thành một bức tranh tròn trịa hoàn hảo. Nó buộc người nhìn phải tập trung vào một điểm, loại bỏ mọi tạp niệm xung quanh, mang lại cảm giác thiền định sâu sắc ngay giữa lòng phố thị ồn ào.
Khung cửa sổ hoạt động như một ống kính máy ảnh cô đọng phong cảnh bên ngoài thành một bức tranh tròn trịa
Không gian sống trở thành nơi chữa lành tâm hồn cho gia chủ - một người đam mê nghệ thuật thủ công bằng len nỉ
Nhà phố Wuri không phải là một công trình phô diễn sự xa hoa, mà là một ví dụ điển hình cho vẻ đẹp của sự vừa vặn và thấu hiểu. Bằng cách xử lý triệt để các vấn đề kỹ thuật và khéo léo sử dụng vật liệu quen thuộc, các KTS đã trao cho ngôi nhà cũ một đời sống mới tĩnh lặng và giàu cảm xúc hơn. Đây thực sự là chốn về lý tưởng để nuôi dưỡng tâm hồn và tận hưởng vẻ đẹp của những điều giản dị nằm trong khả năng tĩnh lặng để cảm nhận vẻ đẹp của thực tại đang hiện hữu ngay trước mắt. Cùng khám phá thêm nhiều ngôi nhà độc đáo tại chuyên mục Chuyện nhà.
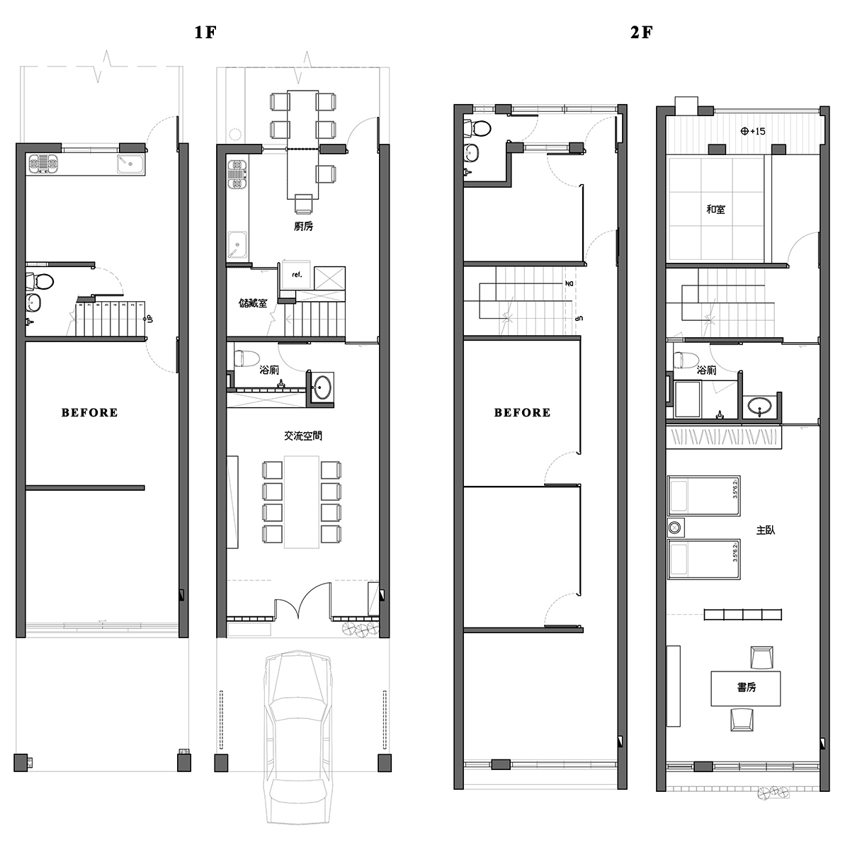
Bản vẽ chi tiết công trình trước và sau cải tạo
>>> Xem thêm: Ngôi nhà cải tạo giữ nguyên vẻ đẹp của thời gian nhờ tái sử dụng gạch lần thứ 3
Thông tin công trình:
Tổng diện tích (m2): 158.67
Đơn vị thiết kế: Yirang Design
Địa điểm: Đài Trung, Đài Loan
Phong cách thiết kế:
Số tầng: 2
Số phòng ngủ: 1
Loại nhà: Nhà ở kết hợp xưởng nghệ thuật
Nguồn: Decomyplace
*Để lại thông tin trong box dưới đây, Happynest sẽ giúp bạn kết nối đơn vị thiết kế - thi công phù hợp và nhanh chóng nhất.









































































































