Moon House - Nhà 2 tầng thiết kế ba mái vòm thép kẽm, mở ra không gian sống ngập tràn niềm vui

    Cập nhật ngày 22/11/2025, lúc 10:008 lượt xem
    • Tên ngôi nhà
      Moon House
    • Năm hoàn thành
      2024
    • Thiết kế
      James Garvan Architecture
    • Thi công
      Hancock Homes
    • Chụp ảnh
      Katherine Lu

    Kết hợp khéo léo giữa hình khối kiến trúc năng động và nét tỉ mỉ trong từng chi tiết, Moon House là không gian sống mang sắc thái vui tươi, đồng thời phô diễn nét phóng khoáng hiện đại. Ngoài phản chiếu cá tính sôi nổi của gia chủ, công trình còn tiếp nối tinh thần đương đại của kiến trúc Liên bang lân cận.

    Giải pháp thiết kế nổi bật trong Moon House

    Moon House nổi bật với cách kết hợp tinh tế giữa kiến trúc Liên bang cổ điển và hơi thở đương đại. Một vài điểm ấn tượng nhất của công trình gồm:

    • Ba mái vòm bậc thang ốp thép kẽm tạo dấu ấn mạnh mẽ, vừa mang tính nhận diện vừa mở rộng chiều cao và ánh sáng.

    • Khối gạch hình hộp ở mặt tiền đóng vai trò như “khung chào đón”, đồng thời tạo điểm nhấn hiện đại cho lối vào.

    • Tầng trệt thiết kế mở, liền mạch giữa phòng khách – bếp – bàn ăn, phù hợp nhu cầu tiếp khách và sinh hoạt linh hoạt của gia chủ.

    • Ánh sáng tự nhiên tối ưu, với hệ cửa kính hướng Bắc, giếng trời và các khoảng trống xen kẽ giúp luồng sáng len sâu vào từng phòng.

    • Bảng màu tự nhiên – hữu cơ, kết hợp đá vôi lát sàn, gỗ sáng và thép kẽm mang đến không gian dịu nhẹ nhưng đầy cá tính.

    • Kết nối liền mạch trong – ngoài, khi hồ bơi và khu vườn trở thành phần nối dài của phòng khách, tăng cảm giác thư thái và phóng khoáng.

    Moon House kết hợp giữa bản sắc địa phương và tinh thần đương đại

    Hiện trạng trước cải tạo là một ngôi nhà mang ngôn ngữ kiến trúc Liên bang cổ điển tại Waverley, ngoại ô phía Đông Sydney. Gia chủ mong muốn một tầng trệt rộng rãi, thoáng đãng để thuận tiện tiếp khách và gặp gỡ bè bạn. Song song đó, màu sắc và vật liệu được ưu tiên lựa chọn theo phong cách tự nhiên - hữu cơ nhằm tạo cảm giác thư thái.

    Ba khối mái vòm bậc thang ốp thép kẽm tạo nên nét đặc trưng đương đại cho Moon House. Khối gạch hình hộp nhô ra vừa tạo khung cho lối vào, vừa là điểm nhấn kiến trúc ấn tượng

    Hệ cửa kính lớn hướng Bắc giúp đón trọn ánh sáng tự nhiên vào không gian sống. Khu vườn phía trước được thiết kế tinh tế, tạo điểm xanh mát cho ngôi nhà

    Mảng xanh ở mặt tiền được bố trí khéo léo, làm dịu nét cứng cáp của kiến trúc đương đại. Đây là lá chắn tự nhiên mang đến sự riêng tư cho gia chủ

    Mặt tiền Moon House là sự giao thoa giữa hai phong cách kiến trúc: mái đầu hồi cong đặc trưng của nhà Liên bang và khối hộp vuông vức của nhà tân cổ điển. Ba khối mái cong uốn thép kẽm bậc thang tạo nét đương đại, kết hợp với khối gạch hình hộp nhô ra, vừa giàu giá trị thẩm mỹ, vừa tạo khung cho lối vào.

    >>> Xem thêm: Ghé thăm Nhà mái vòm tại Sài Gòn đẹp đơn giản mà tinh tế, không gian bên trong rộng thoáng như ngoài trời

    Giếng trời có tác dụng thông gió tự nhiên. Ánh sáng từ giếng trời chiếu xuống tầng trệt, làm sáng rộng không gian sinh hoạt

    Mái vòm tạo cảm giác không gian cao vút, thoáng đãng. Những buổi chiều khi nắng hắt xiên vào mái vòm là lúc lý tưởng để chiêm ngưỡng

    Mặt tiền là cuộc đối thoại tinh tế giữa mái đầu hồi cong Liên bang và khối hộp vuông vức tân cổ điển. Lối vào được đóng khung bởi khối gạch, mang đến sự chào đón ấm áp cho khách đến thăm

    Hồ bơi bên ngoài kết nối liền mạch với không gian sinh hoạt trong nhà. Khung xương kiến trúc phân chia rõ ràng giữa không gian trong nhà và khu vườn ngoại thất

    Nhà 2 tầng sống động nhờ bố cục hình học cùng đường cong duyên dáng

    Bước vào bên trong, không gian mang đến cảm giác ấm cúng với khu vườn phía trước được đóng khung tinh tế và trục gạch dẫn lên cầu thang. Tầng trệt với thiết kế mở, bao gồm phòng khách, bếp và khu vực ăn uống, tận dụng kết cấu mặt hậu thu hẹp để phù hợp với quy mô đường phố.

    Tầng trệt thiết kế mở tạo sự liên kết giữa phòng khách, bếp và khu vực ăn uống. Không gian sinh hoạt chung thoáng đãng, lý tưởng cho việc tiếp khách và gặp gỡ bạn bè

    Kết cấu mặt hậu thu hẹp được tận dụng khéo léo để phù hợp với quy mô đường phố. Bảng màu dịu nhẹ hài hòa với đá vôi lát sàn tự nhiên tạo cảm giác thư thái

    Tủ bếp bằng gỗ tự nhiên mang đến hơi ấm và sự gần gũi cho không gian nấu nướng. Vân gỗ tự nhiên của tủ bếp hòa quyện hoàn hảo với bảng màu dịu nhẹ của toàn bộ ngôi nhà

    Khu vực bếp và phòng ăn được thiết kế liền mạch, thuận tiện cho việc chuẩn bị và thưởng thức bữa ăn gia đình. Tủ bếp gỗ kết hợp với mặt đá tự nhiên tạo nên sự cân bằng giữa ấm cúng và hiện đại

    Bàn ăn tròn màu trắng tạo điểm sáng nổi bật. Ghế ăn bọc da màu nâu ấm áp kết hợp hài hòa với tủ bếp gỗ, tạo nên bảng màu tự nhiên đầy tinh tế

    Tầng trên có các khối nhà xen lẫn khoảng trống hợp lý, cho phép ánh sáng tự nhiên chiếu sâu xuống tầng dưới và tạo kết nối mở giữa các phòng riêng. Hệ cửa kính lớn linh hoạt đón nắng và gió hướng Bắc, đồng thời khung xương kiến trúc phân chia rõ không gian sinh hoạt, liên kết khu vườn và hồ bơi bên ngoài.

    >>> Xem thêm: Nhà mái vòm ngói đỏ, thiết kế nét vừa đủ để cảm nhận bình yên

    Cầu thang kết nối các tầng một cách uyển chuyển với đường cong nhẹ nhàng. Bậc thang gỗ kết hợp lan can tối giản tạo nên sự cân bằng hoàn hảo giữa chất liệu truyền thống và thiết kế hiện đại

    Các khối nhà tầng trên xen lẫn khoảng trống hợp lý, cho phép ánh sáng tự nhiên tràn vào. Tầng trên được thiết kế với các ô cửa lớn để tối ưu ánh sáng và thông gió

    Tầm nhìn từ phòng khách mở rộng ra hồ bơi và khu vườn. Góc đón nắng này là nơi lý tưởng để thư giãn với tách cà phê, ngắm nhìn hồ bơi lấp lánh ánh nắng

    Phòng ngủ chính nằm cao hơn nửa tầng, tạo sự riêng tư và tầm nhìn đặc biệt. Không gian phòng ngủ được thiết kế ấm cúng với bảng màu tự nhiên, hữu cơ

    Điểm nhấn của công trình là trần nhà hai mái vòm cao rộng, bảng màu dịu nhẹ hài hòa với đá vôi lát sàn tự nhiên giúp không gian thoáng đãng; phòng ngủ chính và phòng tắm riêng nằm cao hơn nửa tầng với cửa sổ cong lớn mở rộng tầm nhìn thành phố.

    Gạch trắng bóng ốp tường phòng tắm tạo cảm giác sạch sẽ và rộng rãi hơn cho không gian. Vòi rửa đồng mang đến điểm nhấn sang trọng, nổi bật trên nền gạch trắng tinh khôi

    Gạch xanh lá trầm ốp sàn tạo sự tương phản tinh tế, gợi nhớ đến màu xanh của thiên nhiên. Sự kết hợp giữa gạch trắng bóng và gạch xanh lá trầm tạo nên không gian phòng tắm vừa hiện đại vừa gần gũi

    Bồn tắm nhỏ xinh trở thành góc thư giãn riêng tư. Với kích thước nhỏ gọn, bồn tắm là nơi gia chủ ngâm mình thư thái và tận hưởng những phút giây yên bình

    Mỗi buổi chiều tà, những tia nắng hắt vào ba khối mái vòm. Lúc này, Moon House lấp lánh tựa viên ngọc giữa phố Waverley

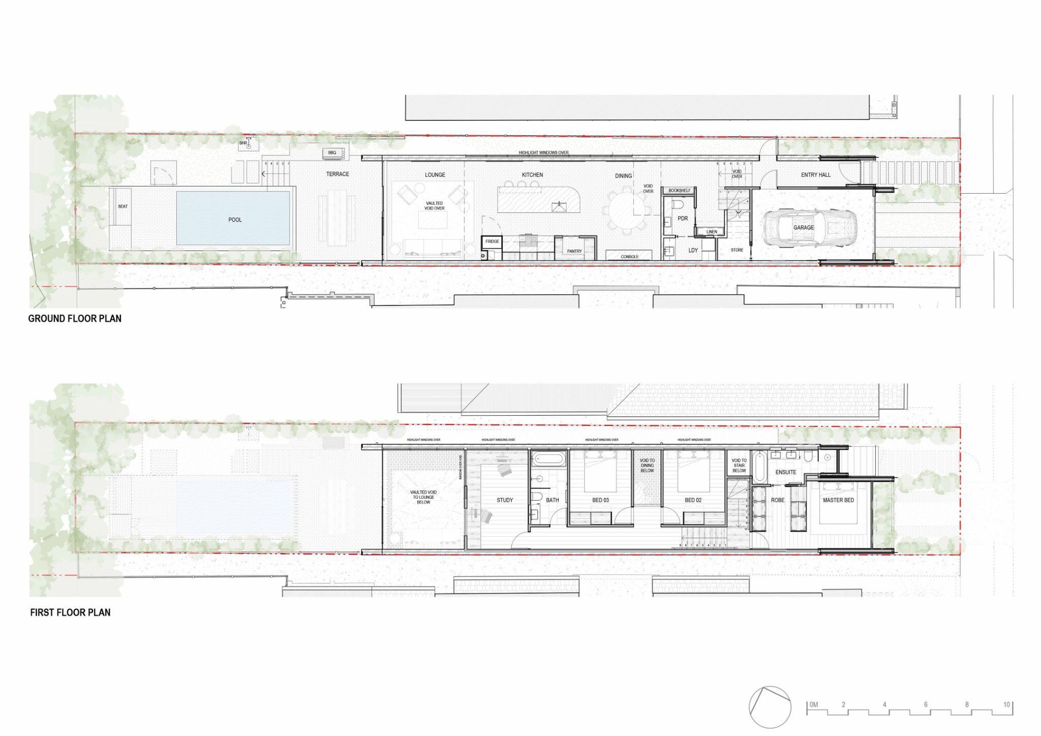
    Các bản vẽ thiết kế Moon House

    >>> Xem thêm: Nhà mái vòm rộng hơn 500m2, vườn cây bao quanh của đôi vợ chồng về hưu

    Moon House không chỉ mang đến cảm giác vui tươi và lạc quan, mà còn thể hiện sự thấu đáo trong từng chi tiết thiết kế. Công trình phản ánh rõ nét cá tính đặc trưng của chủ nhân, đồng thời tôn trọng và hòa hợp với địa hình cùng môi trường xung quanh.

    Cùng khám phá thêm nhiều ngôi nhà độc đáo tại Chuyện nhà.

    Thông tin công trình:

    Tên ngôi nhà: Moon House

    Năm hoàn thành: 2024

    Đơn vị thiết kế: James Garvan Architecture

    Đơn vị thi công: Hancock Homes

    Đơn vị chụp ảnh: Katherine Lu

    Địa điểm: Waverley, New South Wales, Australia

    Số tầng: 2

    Loại nhà: Nhà ở

    Nguồn: Archilovers

    *Để lại thông tin trong box dưới đây, Happynest sẽ giúp bạn kết nối đơn vị thiết kế - thi công phù hợp và nhanh chóng nhất.

    Nhàn NguyễnTheo dõi

    Bình luận

    Hãy đăng nhập và trở thành người đầu tiên bình luận về bài viết này!

    Bài đăng liên quan

    Chuyện nhà

    Xem tất cả

    Kho kiến thức

    Xem tất cả

    Đời sống

    Xem tất cả

    Xu hướng

    Xem tất cả

    Happynest Story

    Xem tất cả

    Sự kiện

    Xem tất cả

    HappynestTV

    Xem tất cả

    Thảo luận

    Xem tất cả

    Ăn - Chơi

    Xem tất cả
    • 0
    • 0
    • 0
    • 0