Wat Bo House là biệt thự 3 tầng của một cặp vợ chồng trẻ chọn gắn bó lâu dài với Wat Bo Village - khu phố lâu đời và giàu bản sắc ở Siem Reap, Campuchia.
Trên khu đất rộng 590m2, các kiến trúc sư của UAD Architects đã thiết kế một biệt thự 3 tầng với cách tổ chức không gian thoáng đãng, nhiều cây xanh và mặt nước. Thay vì xây kín, biệt thự được chia thành hai khối, đặt giữa vườn và hồ cá, tạo nên một không gian sống yên tĩnh, mát mẻ và gắn bó chặt chẽ với thiên nhiên.
Tóm tắt nhanh những giải pháp áp dụng trong Wat Bo House
-
Chia nhà thành hai khối tách biệt để giảm ồn, tăng riêng tư và tạo cảm giác thoáng.
-
Đưa vườn và hồ cá vào giữa nhà để làm mát tự nhiên.
-
Tận dụng gió trời và ánh sáng tự nhiên nhờ sân trong, khoảng trống và sân thượng.
-
Dùng vật liệu bền, dễ bảo trì như đá granite, bê tông, gỗ.
-
Tạo nhiều lớp không gian ngoài trời: hiên, ban công, sân thượng, mái xanh.
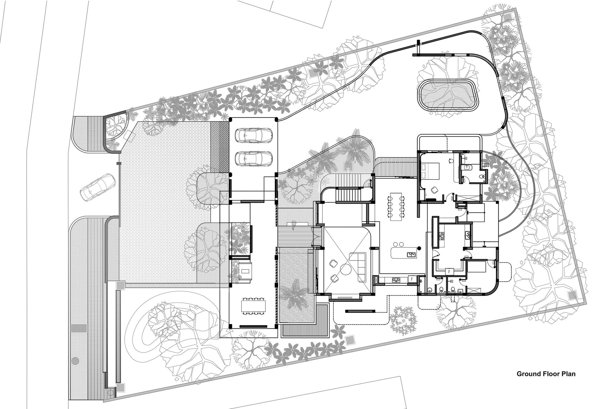
Mặt bằng tầng trệt bố trí các không gian sinh hoạt chính xen kẽ sân vườn và hồ nước. Cách chia nhỏ khối giúp gió và ánh sáng đi sâu vào toàn bộ tầng dưới
Mặt bằng tầng 1 tập trung các phòng ngủ và không gian làm việc, kết nối bằng hành lang mở. Các phòng đều tiếp cận ánh sáng tự nhiên và nhìn ra mảng xanh xung quanh
Mặt bằng tầng 2 dành cho không gian thư giãn và sân thượng trồng cây. Việc giảm mật độ xây dựng ở tầng cao giúp mái nhà thông thoáng và mát hơn
Bản vẽ mặt đứng hướng Bắc và hướng Nam của ngôi nhà, thể hiện các khối kiến trúc giật cấp, hệ cửa kính lớn và mảng xanh bố trí trên mái/ban công
Bản vẽ mặt đứng hướng Đông và hướng Tây, cho thấy hình khối bất đối xứng, các khoảng đua mái - hiên che nắng và phần sân/garage liên kết với khối nhà chính
Bản vẽ mặt cắt ngang và mặt cắt dọc, giúp nhìn rõ tổ chức không gian theo tầng, các khoảng thông tầng lấy sáng, vị trí cầu thang và cách các khối nhà kết nối với sân vườn
Ý tưởng thiết kế: Một ngôi nhà hiện đại nhưng không tách rời bối cảnh
Wat Bo House được đặt tên theo chính khu phố Wat Bo - nơi vẫn còn lưu giữ nhịp sống chậm, nhiều cây xanh và những ngôi nhà mang dấu ấn địa phương. Vì vậy, ngay từ đầu, nhóm thiết kế không đặt mục tiêu tạo ra một công trình nổi bật hay phô trương hình thức.
Thay vào đó, ngôi nhà được định hướng như một không gian sống bền vững, giản dị và sử dụng lâu dài. Mọi lựa chọn từ hình khối, vật liệu đến cách bố trí đều xoay quanh câu hỏi: làm sao để gia chủ có thể sống thoải mái, mát mẻ, riêng tư mà vẫn luôn cảm nhận được thiên nhiên xung quanh.
Mặt tiền biệt thự với tầng trệt mở, gara bên trái và mảng xanh phủ dày phía trước. Bố cục lùi khối và đưa cây xanh lên các tầng giúp giảm nóng, tăng riêng tư cho không gian sinh hoạt
Góc nhìn từ vườn cho thấy tầng trệt dùng kính lớn, phía trên là ban công trồng cây và sân thượng. Thiết kế mở về phía vườn giúp nhà nhận gió, ánh sáng tự nhiên mà vẫn có lớp cây làm “màn chắn” mềm
Lối đi có mái che dạng pergola với cây treo, bóng đổ đan xen lên tường và nền sân. Hệ khung này tạo vùng đệm mát khi di chuyển giữa các khối nhà, đồng thời làm không gian ngoài trời dễ chịu hơn
>>> Xem thêm: Thiết kế biệt thự 3 tầng hình chữ L hướng nội: Giải pháp sống riêng tư và cân bằng trong kiến trúc hiện đại
Tổ chức tổng thể: Hai khối nhà và một lối đi xanh ở giữa
Chia nhà thành hai khối để “thở” tốt hơn
Thay vì xây một khối nhà lớn chiếm trọn khu đất, Wat Bo House được chia thành hai khối kiến trúc riêng biệt, nối với nhau bằng một lối đi có mái che. Cách làm này giúp ngôi nhà “thở” tốt hơn, không bị bí bách, đồng thời tạo thêm nhiều khoảng trống để gió và ánh sáng len vào.
Khối nhà phía trước chỉ cao một tầng, đóng vai trò như lớp đệm với đường phố. Nhờ đó, không gian sinh hoạt chính ở phía trong yên tĩnh hơn, ít bị ảnh hưởng bởi tiếng ồn bên ngoài.
Ảnh chụp từ trên cao cho thấy công trình chia khối, xen kẽ nhiều sân vườn và khoảng trống. Cách tổ chức này giúp gió và ánh sáng len sâu vào nhà, đồng thời tạo trải nghiệm nhìn xanh ở nhiều cao độ
Ngôi nhà nổi bật giữa lớp cây nhiệt đới với các khối vuông - cong đan xen, tầng xanh phủ quanh. Việc “giấu” công trình trong cảnh quan giúp giảm tác động thị giác và làm ngôi nhà mát, yên tĩnh hơn
Vườn và hồ cá - trái tim của ngôi nhà
Giữa hai khối nhà là vườn cây và hồ cá, không chỉ để ngắm mà còn giúp điều hòa không khí. Nước và cây xanh giúp giảm nhiệt, tạo cảm giác mát mẻ quanh năm, đặc biệt phù hợp với khí hậu nóng ẩm của Siem Reap.
Từ nhiều vị trí trong nhà, gia chủ có thể nhìn ra cây cối, mặt nước, thay vì chỉ đối diện với tường hay công trình bên cạnh.
Khoảng sân với tường đá granite uốn cong và bóng pergola đổ lên mặt tường trắng. Tường cong tạo dẫn hướng mềm, đồng thời che tầm nhìn trực diện để tăng riêng tư khi vào nhà
Sân trong lát gạch với bồn cây trung tâm và hệ pergola chạy dọc phía trên. Đây là giải pháp tạo vi khí hậu mát, giúp sân luôn thoáng và có bóng râm tự nhiên
Góc sân lúc chạng vạng với khối nhà bo cong, cửa kính mở ra khu sinh hoạt và cây xanh bao quanh. Chiếu sáng tiết chế kết hợp mảng xanh làm mềm hình khối, tạo cảm giác ấm và gần gũi khi về nhà
Không gian sân trong buổi tối với ánh sáng hắt từ bồn cây và lối đi. Chiếu sáng gián tiếp giúp sân vườn trở thành không gian thư giãn yên tĩnh khi đêm xuống
Lối đi giữa hai khối nhà với bồn cây thấp và cửa kính bo cong. Thiết kế này tạo sự kết nối liên tục giữa trong và ngoài, đồng thời giữ riêng tư cho các phòng
Góc nhìn từ hành lang ra sân trong với cây lớn giữ nguyên hiện trạng. Công trình được tổ chức xoay quanh cây để bảo tồn thiên nhiên và tạo vi khí hậu mát mẻ
Hành lang nhìn ra hồ cá bên trái, trần ốp gỗ và mảng xanh chạy dọc theo lối đi. Tổ chức hành lang sát mặt nước giúp làm mát, đồng thời tạo trải nghiệm “đi trong nhà mà vẫn chạm thiên nhiên”
Không gian tầng trệt: Mở để kết nối, nhưng vẫn đủ riêng tư
Phòng khách - bếp - ăn liên thông với sân vườn
Tầng trệt là nơi diễn ra hầu hết các hoạt động sinh hoạt chung của gia đình. Phòng khách, bếp và khu ăn uống được bố trí liền mạch, mở rộng tầm nhìn ra vườn và hồ cá.
Cách bố trí này giúp không gian luôn sáng, thoáng và tạo cảm giác các thành viên dễ dàng kết nối với nhau hơn trong sinh hoạt hàng ngày.
Phòng khách trần cao với mảng tường ốp đá xám làm điểm nhấn và cửa kính mở ra sân vườn. Không gian thông tầng giúp lấy sáng tốt, tạo cảm giác rộng thoáng và kết nối với thiên nhiên bên ngoài
Không gian phòng ăn đặt giữa nhà với bàn dài và hệ cửa kính mở ra sân vườn. Cách bố trí này giúp bữa ăn luôn có ánh sáng tự nhiên và tầm nhìn xanh mát
Phòng ngủ khách và khu giải trí
Ngoài không gian sinh hoạt chung, tầng trệt còn có phòng ngủ cho khách, thuận tiện cho người lớn tuổi hoặc bạn bè đến chơi nhà. Các khu vực giải trí và không gian phụ trợ cũng được bố trí gọn gàng, tách khỏi trục sinh hoạt chính để tránh làm rối không gian.
Gara mở kết hợp sân hiên
Gara xe không bị đóng kín như thông thường mà được thiết kế mở, kết hợp với một sân hiên đa năng. Đây có thể là nơi ngồi nghỉ, uống cà phê, hoặc đơn giản là ngắm nhìn khu vườn - biến một không gian phụ thành nơi thư giãn đúng nghĩa.
>>> Xem thêm: Biệt thự 3 tầng dành 50% diện tích cho sân vườn giúp không gian sống luôn trong lành, thoáng đãng
Không gian tầng trên: Riêng tư và thư giãn
Ba phòng ngủ với góc nhìn xanh
Hai tầng trên là khu vực nghỉ ngơi của gia đình với ba phòng ngủ. Mỗi phòng đều có ban công, sân trong hoặc cửa sổ mở ra mảng xanh, giúp phòng ngủ luôn thông thoáng và dễ chịu.
Nhờ cách chia khối và xử lý khoảng trống hợp lý, các phòng ngủ tránh được tầm nhìn trực diện từ nhà hàng xóm nhưng vẫn không bị bí hay thiếu sáng.
Không gian sinh hoạt tầng trên nhìn xuống khoảng thông tầng trung tâm. Thiết kế thông tầng kết hợp lan can kính giúp ánh sáng lan tỏa đều giữa các tầng
Góc sinh hoạt chung với mảng tường bo cong, kệ sách âm tường và khu làm việc nhỏ. Các khối cong giúp không gian mềm mại hơn, đồng thời tận dụng diện tích hiệu quả
Sân thượng và phòng gym trên mái
Tầng một có một sân thượng lớn phía trước, là nơi gia đình có thể sinh hoạt ngoài trời. Trên tầng cao nhất, phòng gym được đặt trên mái, bao quanh bởi cây xanh, tạo cảm giác tập luyện nhẹ nhàng, gần gũi với thiên nhiên.
Hai bồn cây lớn dạng trụ tròn đặt trên sân thượng, trồng cây cổ thụ. Giải pháp đưa cây lớn lên cao giúp làm mát mái và tạo cảnh quan xanh ở tầng trên
Vật liệu: Đơn giản, bền và dễ sống
Wat Bo House sử dụng các vật liệu quen thuộc nhưng được chọn lọc kỹ:
-
Đá granite xám tự nhiên: bền, dễ vệ sinh, phù hợp khí hậu nhiệt đới.
-
Bê tông: tạo cảm giác chắc chắn, ít lỗi mốt theo thời gian.
-
Gỗ: giúp cân bằng lại sự thô mộc của bê tông, mang đến cảm giác ấm áp.
Nhờ bảng vật liệu trung tính này, ngôi nhà không bị lỗi thời, dễ bảo trì và giữ được vẻ đẹp lâu dài.
>>> Xem thêm: Giữa khí hậu trên 35 độ C, biệt thự 3 tầng này đã làm mát tự nhiên như thế nào?
Thiên nhiên như một phần của không gian sống
Cây xanh không chỉ xuất hiện ở sân vườn mà còn len lỏi vào mọi cao độ của ngôi nhà: từ sân trong, ban công, sân thượng cho đến mái xanh. Các loài cây bản địa như wild almond, ta meng, date palm hay fan palm được trồng xen kẽ, tạo nên nhiều lớp cảnh quan khác nhau.
Nhờ đó, mỗi góc nhà lại mang đến một góc nhìn mới, thay đổi theo ánh sáng và thời gian trong ngày.
Wat Bo House là một ngôi biệt thự được thiết kế để sống chậm, sống xanh và sống lâu dài. Không quá cầu kỳ về hình thức, công trình tập trung vào cách tổ chức không gian thông minh, gần gũi với thiên nhiên và phù hợp với đời sống thực tế của gia đình trẻ.
Nếu bạn yêu thích những ngôi nhà có giải pháp không gian tinh tế và giàu cảm xúc như vậy, hãy tiếp tục khám phá thêm nhiều công trình khác tại chuyên mục Chuyện nhà trên Happynest nhé.
Thông tin công trình
Tên ngôi nhà: Wat Bo House
Diện tích thực tế (m2): 590
Năm hoàn thành: 2025
Đơn vị thiết kế: UAD Architects
Đơn vị chụp ảnh: Oudompheaktra Ang
Địa điểm: Wat Bo Village, Krong Siem Reap, Cambodia
Phong cách thiết kế: Hiện đại, Nhiệt đới
Số tầng: 3
Số phòng ngủ: 3
Loại nhà: Biệt thự
Nguồn: Archdaily
*Để lại thông tin trong box dưới đây, Happynest sẽ giúp bạn kết nối đơn vị thiết kế - thi công phù hợp và nhanh chóng nhất.











































































































