Trong bối cảnh đô thị hiện đại ngày càng phát triển nhanh chóng và phức tạp, việc tái cấu trúc các công trình kiến trúc cũ trở thành một thách thức đầy sáng tạo. No Ordinary House, ngôi nhà nằm ở phía bắc London này là minh chứng rõ nét cho cách tiếp cận thiết kế linh hoạt và bền vững, đồng thời khơi dậy cảm hứng cho quá trình cải tạo không gian sống hiện đại.
Tóm tắt giải pháp thiết kế nổi bật của No Ordinary House
-
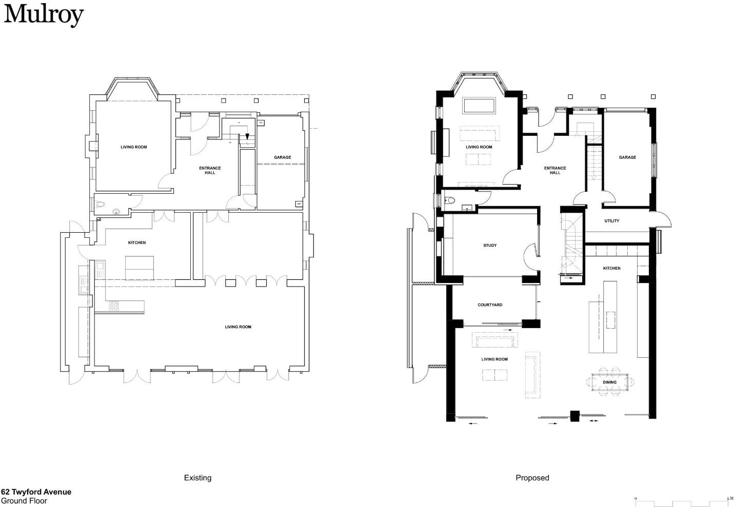
Mặt bằng được mở hoàn toàn, hai trục nhìn xuyên suốt dẫn ánh sáng tự nhiên vào toàn bộ ngôi nhà.
-
Vườn đứng 2 tầng và mảng xanh đan xen giúp không gian luôn mát lành, kết nối trong - ngoài.
-
Tầng hầm đa năng như resort mini: phòng gym, phòng chiếu phim, quầy bar, có khả năng chuyển đổi linh hoạt.
-
Công trình ứng dụng giải pháp bền vững: cách nhiệt, kính hiệu suất cao, pin mặt trời.
Tái cấu trúc không gian và tối ưu ánh sáng tự nhiên
Hiện trạng công trình ban đầu là một ngôi nhà cổ đã trải qua nhiều lần cải tạo, thiếu vắng sự hài hòa về mặt kiến trúc và không gian sống với nguồn sáng tự nhiên khá hạn chế. Mulroy Architects đã khôi phục lại tỷ lệ rộng thoáng vốn có bằng cách mở rộng tầng trệt và tạo ra hai trục nhìn xuyên suốt: một trục từ cửa chính thẳng ra cuối khu vườn, và trục còn lại dẫn ánh sáng từ cầu thang lên trần cao.
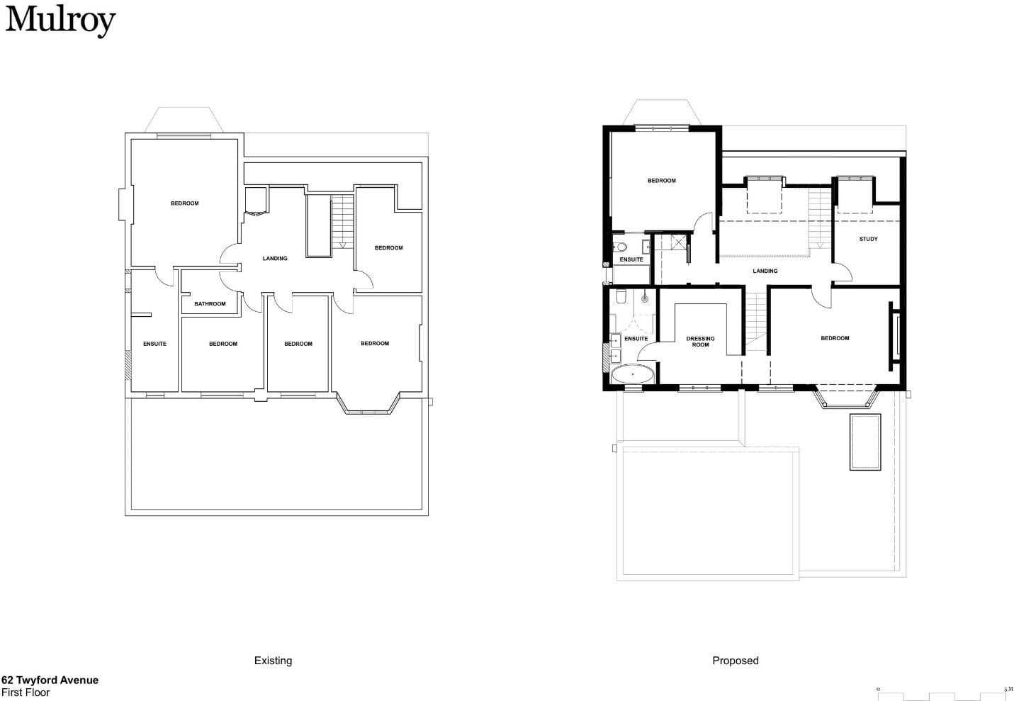
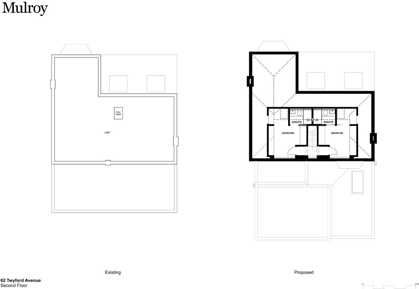
Ngôi nhà có tổng diện tích 452m2, bao gồm 2 tầng lầu và một tầng hầm. Công trình thể hiện ngôn ngữ hiện đại xuyên suốt với chất liệu gạch, kính chủ đạo
Ngôi nhà có thiết kế mặt bằng mở, hạn chế vách ngăn. Cùng với cửa kính cao kịch trần, ánh sáng tự nhiên len lỏi tạo nên nhịp điệu thị giác thú vị cho không gian
Các gam màu vàng đất, nâu gỗ kết hợp cùng gam đen tạo nên bản phối hài hòa, tự nhiên. Những chậu cây xanh nhỏ xinh được bài trí điểm xuyết duyên dáng
Công trình ưu tiên sử dụng chất liệu kính trong suốt. Điều này giúp tận dụng ánh sáng tự nhiên và gió trời một cách tối đa
Bố cục không gian phòng khách - bếp được thiết kế liên thông. Mọi thành viên luôn cảm nhận được sự hiện diện của nhau, nhờ vậy mà gia tăng sự gắn kết trong cuộc sống hàng ngày
Ý tưởng thiết kế lấy cảm hứng từ những ngôi nhà bãi biển thoáng đãng với kết cấu mở và liên tục, cùng sự linh hoạt trong tổ chức mặt bằng để phù hợp với nhu cầu đa dạng của gia đình 4 thành viên.
>>> Xem thêm: Nhà 2 tầng 145m2 thiết kế ngập tràn ánh sáng, tiện nghi của gia đình 4 người
Một khu vườn đứng xanh mát được bố trí tại khu vực hàng lang ngoài trời. Thiết kế này giúp phân tán nhiệt, đưa thiên nhiên an lành vào nhà
Mảng xanh được xen kẽ đa dạng các loại cây cao lấy bóng râm cùng các bụi cây cỏ lá thấp tầng. Dù ngồi ở bất cứ đâu, gia chủ cũng có thể cảm nhận được sự hiện diện mát lành của thiên nhiên
Các không gian được phân định bằng chi tiết lát sàn. Phòng khách sử dụng gạch ốp nền trắng tinh tế, trong khi phòng làm việc được ốp gỗ nâu trầm ấm cúng
Những mảng tường họa tiết hình học cách điệu hiện diện như một điểm nhấn thú vị. Ngoài ánh sáng tự nhiên, căn phòng còn được bố trí các đèn chiếu tác vụ giúp tăng cường sự tập trung
Khoảng thông tầng được bố trí chiếc đèn thả trần thủy tinh kiểu công nghiệp. Không chỉ cung cấp ánh sáng rực rỡ, chi tiết này còn đem lại nét hoài cổ lãng mạn cho không gian sống
Thiết kế chú trọng yếu tố bền vững và đa chức năng
Bên cạnh việc nâng cấp không gian chính, nhóm thiết kế quyết định khai mở không gian sống dưới tầng hầm với chủ đích tận dụng tối đa diện tích và tạo không gian đa chức năng phục vụ sinh hoạt gia đình. Khu vực này bao gồm phòng gym, phòng chiếu phim và quầy bar, và thậm chí, có thể tái thiết thành căn hộ độc lập trong tương lai cho các thế hệ tiếp theo.
Phòng chiếu phim là nơi cả gia đình tận hưởng những phút giây thư giãn trọn vẹn bên nhau. Bộ sofa màu vàng mù tạt hiện diện như một điểm nhấn ấn tượng
Gia chủ là người dành sự quan tâm đặc biệt đến sức khỏe tinh thần lẫn thể chất. Vì thế, phòng tập gym cũng là không gian ưa thích của họ
Khu vực quầy bar là nơi gia chủ tiếp đón bạn bè và khách quý. Kệ tủ lưu trữ đồ uống này góp phần tạo điểm nhấn sang trọng cho căn phòng
Góc quầy bar được lát sàn gỗ, cùng tủ lạnh mini, kệ đựng rượu và cả bàn DJ. Thiết kế căn phòng thể hiện rõ cá tính và gu thẩm mỹ của gia chủ
Cửa kính giúp tối ưu hóa ánh sáng tự nhiên. Thiết kế khung mỏng tạo cảm giác không gian mở nhưng vẫn phân chia khu vực rõ ràng
Công trình chú trọng yếu tố bền vững thông qua các giải pháp cải tiến kỹ thuật về tiết kiệm năng lượng như thêm lớp cách nhiệt, thay thế cửa sổ hiệu suất cao và lắp đặt hệ thống pin mặt trời. Ngoài ra, ngôi nhà ưu tiên sự hòa hợp với thiên nhiên bằng thiết kế sân trong ngập tràn mảng xanh. Đây không chỉ là điểm nhấn ấn tượng, mà còn giúp nâng cao chất lượng cho tổng thể không gian sống.
>>> Xem thêm: 12x14 House - Căn nhà ở Hà Tĩnh có độ thông gió cao, che chắn tốt mưa bão
Đèn thả trần hình cầu mang phong cách Mid-century hiện đại. Cùng với đó là đèn sàn với chao đèn xếp ly bằng vải in họa tiết mang lại nét độc đáo cho không gian
Các chậu cây nhỏ xinh được bố trí khắp phòng, tạo cảm giác tươi mát và gần gũi với thiên nhiên. Cửa sổ kính lớn giúp xóa nhòa ranh giới trong - ngoài
Trong phòng tắm, sàn nhà được lát gạch terrazzo đen tạo cảm giác sạch sẽ. Vòi nước, giá đỡ được phủ kim loại vàng đồng như một điểm nhấn sang trọng
Góc hành lang được bố trí mảnh vườn đứng cao thông tầng. Đây là nơi thư giãn lý tưởng cho các thành viên trong gia đình
Từ một ngôi nhà cổ cũ kỹ, công trình sau cải tạo trở thành không gian sống hiện đại và tiện nghi. Đây là tổ ấm hoàn hảo, nơi mọi người trong gia đình nuôi dưỡng sự gắn bó qua từng khoảnh khắc thường nhật
Các bản vẽ thiết kế No Ordinary House
>>> Xem thêm: Nhà gỗ bình dị tại thị trấn nhỏ, nơi luôn khiến gia chủ mỉm cười mỗi khi trở về
Công trình No Ordinary House thể hiện tầm nhìn chiến lược sâu sắc về kiến trúc linh hoạt và bền vững, qua đó đáp ứng trọn vẹn mọi nhu cầu của gia đình đa thế hệ giữa lòng đô thị chật hẹp. Đây cũng là mô hình lý tưởng truyền cảm hứng mạnh mẽ cho dự án cải tạo tại các thành phố lớn trong tương lai.
Cùng khám phá thêm nhiều ngôi nhà độc đáo tại Chuyện nhà.
Thông tin công trình:
Tên ngôi nhà: No Ordinary House
Diện tích thực tế (m2): 452
Năm hoàn thành: 2024
Đơn vị thiết kế: Mulroy Architects
Địa điểm: Muswell Hill, Luân Đôn, Vương Quốc Anh
Loại nhà: Nhà phố
Nguồn: Archello
*Để lại thông tin trong box dưới đây, Happynest sẽ giúp bạn kết nối đơn vị thiết kế - thi công phù hợp và nhanh chóng nhất.















































































































