Không cần điện lưới, AMAMI House “tự vận hành” bằng nắng, gió và kiến trúc bản địa

    Cập nhật ngày 22/12/2025, lúc 10:00297 lượt xem
    • Tên ngôi nhà
      AMAMI House
    • Diện tích mặt bằng
      119m2
    • Năm hoàn thành
      2024
    • Thiết kế
      Sakai Architects
    • Chụp ảnh
      Toshihisa Ishii

    Trước bối cảnh môi trường ngày càng suy thoái, kiến trúc sư đồng thời cũng là chủ nhà, lựa chọn hướng tới mô hình tự cung tự cấp. AMAMI House được thiết kế giữa biển đảo Amami, Nhật Bản, hoàn toàn độc lập với lưới điện quốc gia như một giải pháp chủ động cho lối sống bền vững.

    Tóm tắt giải pháp thiết kế của AMAMI House

    • Ngôi nhà tự vận hành hoàn toàn, độc lập với lưới điện quốc gia giữa đảo Amami, Nhật Bản.

    • Ứng dụng năng lượng mặt trời kết hợp kiến trúc bản địa để thích nghi với khí hậu biển đảo khắc nghiệt.

    • Thiết kế theo mô hình buntō (phân tán nhiều khối) và kết cấu takakura nâng sàn, tăng thông gió tự nhiên.

    • Hệ mái irimoya truyền thống được cải tiến với lớp cách nhiệt và kiểm soát ánh sáng hiệu quả.

    • Không gian sống gắn với chu trình sinh thái khép kín và khơi dậy lại tinh thần cộng đồng địa phương.

    Hệ thống năng lượng độc lập và kết cấu thích nghi với khí hậu địa phương

    Việc xây dựng một ngôi nhà hoàn toàn tự cung tự cấp đối mặt với không ít khó khăn. Trong đó, rào cản lớn nhất chính là cường độ bức xạ mặt trời trên đảo thấp hơn nhiều so với dự kiến. Sau khi cân nhắc các phương án năng lượng gió, thủy điện và địa nhiệt, năng lượng mặt trời vẫn là giải pháp khả thi nhất.

    Ngôi nhà rộng 119m2 có kết cấu mái dốc đặc trưng. Không sử dụng điện lưới, ngôi nhà hướng đến giải pháp tự cung tự cấp trước bối cảnh môi trường suy thoái nghiêm trọng

    Thiết kế lấy cảm hứng sâu sắc từ kiến trúc truyền thống của đảo, tái hiện cách bố trí không gian xưa cũ để hình thành lối sống hiện đại gắn kết với thiên nhiên. Mô hình “buntō” (kiến trúc phân tán thành nhiều khối) đặc trưng của vùng được áp dụng với năm khối chức năng độc lập.

    Đó là phòng khách, khu tắm, phòng ngủ và các kho chứa, được sắp xếp theo trục hình học tạo nên các không gian trung gian mở. Những khoảng không này kết nối linh hoạt với hiên và vườn, xóa nhòa ranh giới giữa con người và tự nhiên.

    Cửa chính được thiết kế với hệ nan gỗ dày đặc tạo độ che chắn và thông gió. Sàn ốp gạch ấm cúng, kết hợp sàn gỗ được nâng cao ở bên trong

    Không gian phòng khách mở với tầm nhìn xuyên suốt. Thiết kế khuyến khích sự tương tác giữa các thành viên gia đình

    Trần cao với kết cấu gỗ lộ thiên. Khu vực trung tâm là nơi diễn ra các hoạt động chung gắn kết gia đình

    Giải pháp phân tầng giúp tối ưu không gian lưu trữ. Kệ sách và đồ đạc được cất giấu bên dưới mặt sàn gỗ, và cũng nhờ thế mà sàn mặt trên trở nên thông thoáng và gọn gàng

    Đồng thời, ngôi nhà còn tuân theo kết cấu “takakura” - kho thóc truyền thống được nâng cao khỏi mặt đất. Điều này cho phép luồng gió lưu thông tự nhiên theo mọi hướng, trong khi hiên rộng bảo vệ không gian sống khỏi nắng gắt và mưa nhiệt đới bất thường.

    Chưa kể, hệ thống mái được thiết kế theo kiểu mái “irimoya” - kết hợp mái vì và mái dốc truyền thống, được tích hợp các lớp cách nhiệt, hệ thống thông gió và kiểm soát ánh sáng phù hợp với khí hậu địa phương.

    >>> Xem thêm: House of One Piece – Nhà 3 tầng 250m² tại Đà Nẵng với giải pháp tiết kiệm 30% năng lượng nhờ tối ưu nắng, gió và nước tự nhiên

    Hàng hiên rộng là nơi che nắng che mưa. Mái hiên để lộ kết cấu như một điểm nhấn thẩm mỹ

    Sân vườn với lối đi lát đá cùng cây xanh điểm xuyết. Thiết kế mở thúc đẩy hoạt động tương tác cùng với tự nhiên

    Trần gỗ để lộ kết cấu khung dầm xà. Không gian tiện nghi nhưng vẫn phô diễn vẻ đẹp tối giản, mộc mạc

    Mặt bếp được ốp đá terrazzo xám hiện đại. Những ô cửa rộng mở giúp tối đa hóa quá trình thông gió

    Sau khi cân nhắc các phương án, năng lượng mặt trời vẫn là giải pháp khả thi nhất. Ngôi nhà tự vận hành, đủ năng lực phục vụ sinh hoạt thoải mái cho gia đình

    Thiết kế sinh thái bền vững và không gian chú trọng tính gắn kết

    Để tạo nên vòng tái chế tuần hoàn, một phòng xông hơi nhỏ đốt củi tận dụng phế liệu từ quá trình xây dựng được thiết lập. Rác thải hữu cơ từ bếp được ủ compost (quá trình phân hủy rác thải hữu cơ) và bón cho vườn rau, nơi cung cấp thực phẩm tươi cho bữa ăn hàng ngày.

    Một phòng xông hơi nhỏ đốt củi tận dụng phế liệu từ quá trình xây dựng. Thiết kế tạo nên vòng tái chế tuần hoàn

    Rác thải hữu cơ từ bếp được ủ compost và bón cho vườn rau, nơi cung cấp thực phẩm tươi cho bữa ăn hàng ngày. Chu trình sinh thái bền vững này diễn ra ngay trong phạm vi ngôi nhà

    Đảo Amami được biết đến như là “hòn đảo của sự gắn kết”, nơi các nghi lễ cộng đồng vẫn đóng vai trò then chốt trong đời sống văn hóa. Những buổi sum họp gia đình thường quy tụ hơn 80 người thân, hàng xóm, kéo dài đến tận đêm muộn.

    Thiết kế công trình giúp khơi gợi lại nhịp sống văn hóa này, mặc dù phong tục này đang dần phai mờ do tác động của đô thị hóa. Các không gian mở và linh hoạt khuyến khích mọi người gặp gỡ, giao lưu, làm mờ ranh giới giữa tổ ấm riêng tư và không gian sinh hoạt chung.

    Công trình được xây dựng tại Amami, hay còn được biết đến là “hòn đảo của sự gắn kết”. Đây là nơi các nghi lễ cộng đồng vẫn đóng vai trò then chốt trong đời sống văn hóa

    Phòng tắm được ốp gỗ, ăn nhập với ngôn ngữ thiết kế tổng thể. Lavabo ốp đá xám mang sắc thái hiện đại, tối giản

    Dù phong tục cộng đồng đang dần phai mờ do tác động của đô thị hóa, công trình vẫn giữ nhịp sống gắn kết vốn có. Các không gian mở và linh hoạt tự nhiên khuyến khích các thành viên tương tác mỗi ngày

    Một bồn tắm kim loại tròn đặt giữa sân vườn với vòi inox. Con trẻ thỏa thích tận hưởng thú vui ngày hè

    Hệ thống mái tham chiếu từ kiểu mái irimoya (kết hợp mái vì và mái dốc) truyền thống. Ngoài ra, kiến trúc sư còn tích hợp các lớp cách nhiệt cho hệ mái, thiết kế hệ thống thông gió và kiểm soát ánh sáng phù hợp với khí hậu địa phương

    Đối diện với nguy cơ suy thoái môi trường và thời tiết cực đoan, gia chủ lựa chọn mô hình sống tự cấp hoàn toàn. Công trình không phụ thuộc vào lưới điện quốc gia, nhằm đảm bảo khả năng vận hành ổn định trong mọi tình huống

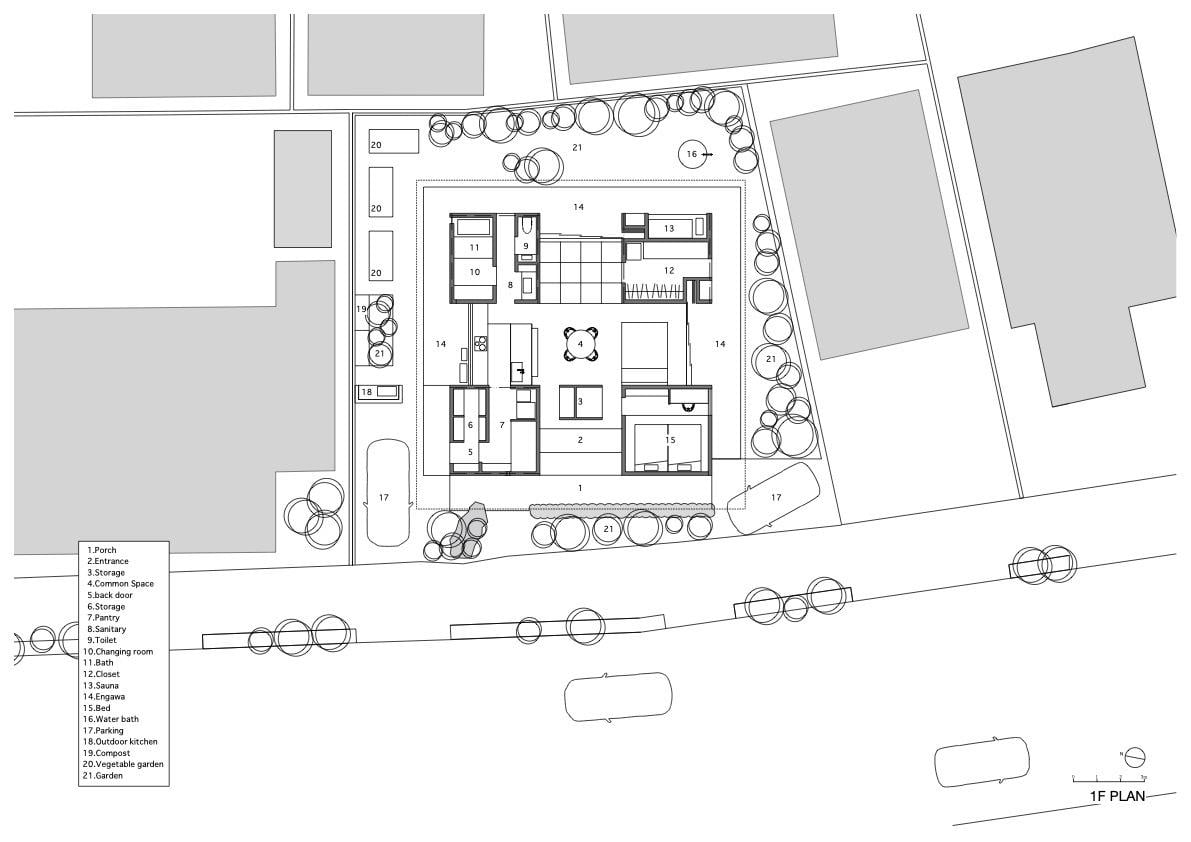
    Các bản vẽ thiết kế của AMAMI House

    >>> Xem thêm: Nhà ở ngoại ô tự sản xuất năng lượng, mang đến cuộc sống xanh, sạch đúng nghĩa

    Dự án định nghĩa lại bản chất của ngôi nhà hiện đại: một không gian tự cung tự cấp vừa đáp ứng nhu cầu sinh tồn trong thời đại biến động khí hậu, vừa duy trì mạch nguồn văn hóa bản địa. AMAMI House đặt ra mô hình cư trú mới cho các vùng hải đảo, nơi sự độc lập năng lượng và kết nối cộng đồng cùng hòa quyện.

    Cùng khám phá thêm nhiều ngôi nhà độc đáo tại Chuyện nhà.

    Thông tin công trình:

    Tên ngôi nhà: AMAMI House

    Diện tích thực tế (m2): 119

    Năm hoàn thành: 2024

    Đơn vị thiết kế: Sakai Architects

    Đơn vị chụp ảnh: Toshihisa Ishii

    Địa điểm: Nhật Bản

    Loại nhà: Nhà phố

    Nguồn: Archdaily

    *Để lại thông tin trong box dưới đây, Happynest sẽ giúp bạn kết nối đơn vị thiết kế - thi công phù hợp và nhanh chóng nhất.

    Mai Thanh NgọcTheo dõi

    Bình luận

    Hãy đăng nhập và trở thành người đầu tiên bình luận về bài viết này!

    Bài đăng liên quan

    Chuyện nhà

    Xem tất cả

    Kho kiến thức

    Xem tất cả

    Đời sống

    Xem tất cả

    Xu hướng

    Xem tất cả

    Happynest Story

    Xem tất cả

    Sự kiện

    Xem tất cả

    HappynestTV

    Xem tất cả

    Thảo luận

    Xem tất cả

    Ăn - Chơi

    Xem tất cả
    • 0
    • 0
    • 0
    • 0