Dự án cải tạo nhà Xuebei Home xuất hiện giữa làn sóng đô thị hóa đang dần xóa nhòa bản sắc văn hóa truyền thống. Tọa lạc trong phố cổ, nhà 2 tầng này khẳng định khả năng của kiến trúc trong việc gắn kết ký ức gia đình và hòa quyện với khí hậu địa phương trong bối cảnh đô thị phát triển dày đặc.
Tóm tắt giải pháp thiết kế trong Xuebei Home
-
Nhà 2 tầng cải tạo trong phố cổ, diện tích nhỏ nhưng được “giải phóng” nhờ mái cong bê tông và giếng trời.
-
Thiết kế ưu tiên ánh sáng, thông gió tự nhiên, tạo cảm giác không gian luôn thoáng đãng.
-
Vật liệu thô mộc như bê tông lộ ván khuôn, terrazzo, gạch phong hóa được giữ lại như dấu ấn ký ức.
-
Nội thất đương đại đan xen chi tiết thủ công truyền thống, kể câu chuyện gia đình qua không gian.
-
Công trình là sự cân bằng giữa bảo tồn giá trị cũ và tư duy kiến trúc hiện đại trong đô thị chật hẹp.
Mái cong bê tông và chất liệu thô mộc - Giải pháp cho không gian chật hẹp
Để khắc phục những hạn chế về diện tích, nhóm kiến trúc sư đã phá vỡ mô hình xây dựng đóng kín thông thường bằng cách tạo ra những khoảng thở và tận dụng sự chân thật của vật liệu.
Theo đó, diện mạo công trình gây ấn tượng bởi mái cong bê tông độc đáo, tạo ranh giới mềm mại giữa ngôi nhà và bầu trời. Không gian bên trong được “thở” nhẹ nhàng, không bị bó hẹp bởi những bức tường dày đặc xung quanh.
Hiện trạng ban đầu là căn nhà với diện tích chỉ 44m2. Nhóm thiết kế quyết định tạo ra những khoảng thở và tận dụng bề mặt nguyên bản của vật liệu để tái thiết không gian sống mới
Điểm sáng lớn nhất của công trình là hệ mái cong độc đáo. Đây là giải pháp kỹ thuật làm giảm cảm giác nén chặt, tạo ra ranh giới mềm giữa ngôi nhà và bầu trời
Những ô cửa được thiết lập, tạo điều kiện thông gió dễ dàng. Không gian bên trong được “thở” nhẹ nhàng, không bị bó hẹp bởi những bức tường dày đặc bao quanh
Cửa sổ tạo ra tầm nhìn thoáng sáng hướng ra ngoài. Chúng được thiết kế với hình dáng và kích cỡ khác biệt, tạo điểm nhấn thú vị cho mặt tiền
Giếng trời giúp ánh sáng tự nhiên tràn xuống. Những dải sáng thay đổi theo từng thời điểm trong ngày, giúp không gian trở nên sống động
Sự trung thực của vật liệu được tôn vinh qua việc để lộ kết cấu bê tông với dấu vết ván khuôn trên trần nhà, cùng hệ thống ống điện - nước phô bày như một dấu ấn thẩm mỹ. Ngoài ra, bồn rửa bê tông đúc tại chỗ, vòi nước đen gắn tường, mặt bàn terrazzo có kết cấu đá mài… tất cả đều đề cao tính chân thực.
>>> Xem thêm: Tổ ấm 2 tầng thiết kế cơ bản nhưng vừa vặn với gia đình 3 thế hệ, hoàn thiện hết 1,8 tỷ đồng
Kết cấu bê tông với dấu ván khuôn được phô bày như một dấu ấn thẩm mỹ. Sự chân thực của bề mặt đem lại cảm giác thô mộc, gần gũi
Hệ thống đường ống nước - điện không che dấu. Trái lại, chúng được để lộ thành chi tiết thẩm mỹ
Tường kính giúp phân chia không gian một cách ý nhị. Thiết kế này vừa giữ gìn sự riêng tư, vừa cho phép ánh sáng xuyên suốt
Không gian tái hiện ký ức qua từng chi tiết nội thất
Thiết kế gây ấn tượng bằng những bức tường gạch phong hóa được giữ lại như chứng nhân lịch sử, đan xen cùng những khối kiến trúc mới. Tại khu vực sinh hoạt chung, bộ sofa bọc da màu đen khơi gợi cảm giác sang trọng và nổi bật trên nền tường trắng kem.
Sofa da và bàn trà màu đen hiện diện nổi bật trong phòng khách. Cửa kính lớn giúp tối ưu hóa ánh sáng tự nhiên
Ghế tròn nguyên khối mang vẻ đẹp thủ công độc đáo. Sàn nhà lát đá mài terrazzo mang sắc thái hiện đại
Nhóm thiết kế đã chắt lọc những món đồ nội thất thủ công bằng gỗ tự nhiên như ghế kiểu Trung Hoa cổ điển, đôn gỗ tròn nguyên khối… Tất cả tạo nên không gian đương đại mang đậm bản sắc văn hóa, nơi gia đình sum họp và những ký ức lưu truyền qua từng thế hệ được kể lại.
Ánh sáng tự nhiên từ giếng trời hắt xuống khu vực bên dưới. Trục dọc hành lang xuyên suốt từ cửa chính đến phòng khách được thiết lập để tận dụng nguồn sáng
Bức tường phong hóa không bị phá bỏ. Thay vào đó, chúng được giữ lại để kể câu chuyện của quá khứ
Một góc nhỏ được tận dụng làm hồ nước mini trong nhà. Đây là khoảng thở quý giá hiếm hoi giữa đô thị chật hẹp
Cầu thang thép hiện đại với bậc hở làm bằng gỗ. Thiết kế này giúp tối ưu ánh sáng và thông gió
Một góc nhỏ cạnh cửa sổ được tận dụng làm chỗ ngồi đọc sách. Từng diện tích nhỏ nhất được tận dụng để đáp ứng nhu cầu của gia chủ
Bên cạnh đó, khu bếp được bố trí gọn gàng với tủ bếp gỗ tự nhiên, vừa mang tính công năng vừa giữ được nét ấm cúng của không gian lưu trữ truyền thống. Sân vườn thu nhỏ với mảng xanh tự nhiên góp phần tạo nên “khoảng thở” tự nhiên quý báu giữa lòng đô thị.
>>> Xem thêm: Nhà phố 2 tầng khép kín với bên ngoài, bên trong sở hữu giếng trời khổng lồ ấn tượng
Khu vực bếp được bố trí gọn gàng với tủ bếp gỗ tự nhiên. Thiết kế vừa mang tính công năng vừa giữ được nét ấm cúng của không gian lưu trữ truyền thống
Không gian đương đại điểm xuyết những chi tiết mang đậm bản sắc truyền thống. Đó là bình gốm mộc mạc, ghế gỗ ấm cúng, hay bức tường nhuốm màu thời gian…
Một góc làm việc được bố trí gần khung cửa với ánh sáng tự nhiên ngập tràn. Đèn tác vụ được bổ sung khi cần sự tập trung cao độ
Mảng xanh hiếm hoi hiện diện trong căn nhà. Đây là nơi gia chủ có thể sống chậm và ngắm nhìn sự sống bên ngoài
Xuebei Home thành công trong việc giải bài toán diện tích trong bối cảnh đô thị chật hẹp. Công trình cân bằng hài hòa giữa giá trị truyền thống và ngôn ngữ kiến trúc hiện đại
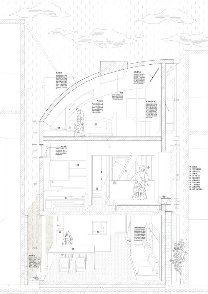
Các bản vẽ thiết kế Xuebei Home
>>> Xem thêm: Nhà 2 tầng hướng Nam “đắt giá”, luôn phảng phất hương thơm của gỗ và tiếng nô đùa của trẻ thơ
Trong căn nhà nhỏ nhắn này, một sợi dây kết nối giữa quá khứ và hiện tại được thiết lập, hòa quyện vào đời sống thường nhật với ý niệm tâm linh. Xuebei Home không đơn thuần là ngôi nhà để ở, mà là không gian chứa đựng ký ức, nơi con người tìm thấy sự bình yên và cội nguồn của chính mình.
Cùng khám phá thêm nhiều ngôi nhà độc đáo tại Chuyện nhà.
Thông tin công trình:
Tên ngôi nhà: Xuebei Home
Diện tích thực tế (m2): 116
Năm hoàn thành: 2025
Đơn vị thiết kế: Republic Construction Architecture Studio
Đơn vị chụp ảnh: Ce Wang
Địa điểm: Trung Quốc
Loại nhà: Nhà phố
Nguồn: Archdaily
*Để lại thông tin trong box dưới đây, Happynest sẽ giúp bạn kết nối đơn vị thiết kế - thi công phù hợp và nhanh chóng nhất.

















































































































