Nằm yên bình trong khu dân cư Crouch End (London, Anh), Russet House là một ngôi nhà liền kề 4 tầng được xây từ thời Victorian. Sau nhiều năm sử dụng, ngôi nhà bị chia nhỏ, chắp vá và thiếu sáng trầm trọng. Cặp vợ chồng trẻ Rachel và James, cùng hai con nhỏ, đã quyết định cải tạo toàn bộ công trình để tạo nên một tổ ấm sáng sủa, tiện nghi và có thể thích ứng cho tương lai lâu dài.
Đảm nhận thiết kế là Mulroy Architects, nhóm kiến trúc sư đã biến một ngôi nhà cũ kỹ thành không gian sống đầy ánh sáng, gần gũi và ấm áp hơn bao giờ hết.
Tóm tắt nhanh các giải pháp nổi bật trong Russet House
-
Mở thông tầng giữa tầng trệt và tầng hầm để dẫn sáng tự nhiên.
-
Bổ sung giếng trời, cửa kính hướng Nam giúp ánh sáng lan tỏa khắp nhà.
-
Tổ chức lại công năng theo trục dọc, giúp di chuyển và tầm nhìn thông suốt.
-
Ứng dụng vật liệu tự nhiên: gỗ, gạch sáng, thép đỏ gỉ để giữ nét ấm áp và cá tính.
-
Nâng cấp toàn bộ hệ thống cách nhiệt, thông gió và sưởi sàn giúp tiết kiệm năng lượng.
Ý tưởng thiết kế: Giải phóng ánh sáng, mở lối cho sự kết nối
Trước khi cải tạo, Russet House giống như nhiều ngôi nhà Victorian khác - tối, chật và chia nhỏ phòng. Các lần mở rộng trước đó khiến căn nhà mất đi mạch kết nối tự nhiên giữa các tầng và đặc biệt là giữa nhà và khu vườn sau.
Kiến trúc sư đã chọn cách không nới rộng thêm, mà “mở ra từ bên trong”. Sàn phòng ăn cũ được tháo bỏ, tạo thành một khoảng thông tầng lớn xuyên suốt từ tầng trệt xuống tầng hầm. Nhờ vậy, ánh sáng có thể tràn xuống không gian ngầm, còn các tầng trên - dưới giờ đây kết nối bằng tầm nhìn và cảm giác liền mạch.
Từ ý tưởng này, chiếc cầu thang thép màu đỏ gỉ (russet steel) được thiết kế làm trung tâm của ngôi nhà, vừa là điểm nhấn thị giác, vừa là “xương sống” gắn kết toàn bộ công trình.
Mặt đứng phía sau của ngôi nhà nổi bật với lớp hoàn thiện màu đất đỏ và cửa sổ kính lớn. Giải pháp mở rộng về phía vườn giúp tăng diện tích sử dụng và cải thiện đáng kể khả năng lấy sáng cho tầng trệt
Toàn cảnh mặt sau Russet House vào buổi tối, nơi ánh sáng vàng từ nội thất hắt ra khu vườn xanh mát. Thiết kế cửa kính lớn giúp ngôi nhà kết nối trực tiếp với không gian ngoài trời và tạo cảm giác ấm áp khi đêm xuống
Bản vẽ mặt cắt Russet House trước và sau cải tạo, thể hiện cách tổ chức tầng hầm - tầng trệt - các tầng trên và liên hệ với vườn trước/sau
Mặt bằng tầng hầm hiện trạng và đề xuất, làm rõ bố cục các phòng mới và giếng trời lấy sáng xuống tầng hầm
Mặt bằng tầng trệt hiện trạng và đề xuất, cho thấy khu bếp - ăn - sinh hoạt mở rộng kết nối sân sau và bố trí cabin cuối vườn
Mặt bằng tầng 1 hiện trạng và đề xuất, thể hiện cách sắp xếp phòng ngủ/phòng làm việc và bổ sung mái xanh/pergola cho khoảng sân sau
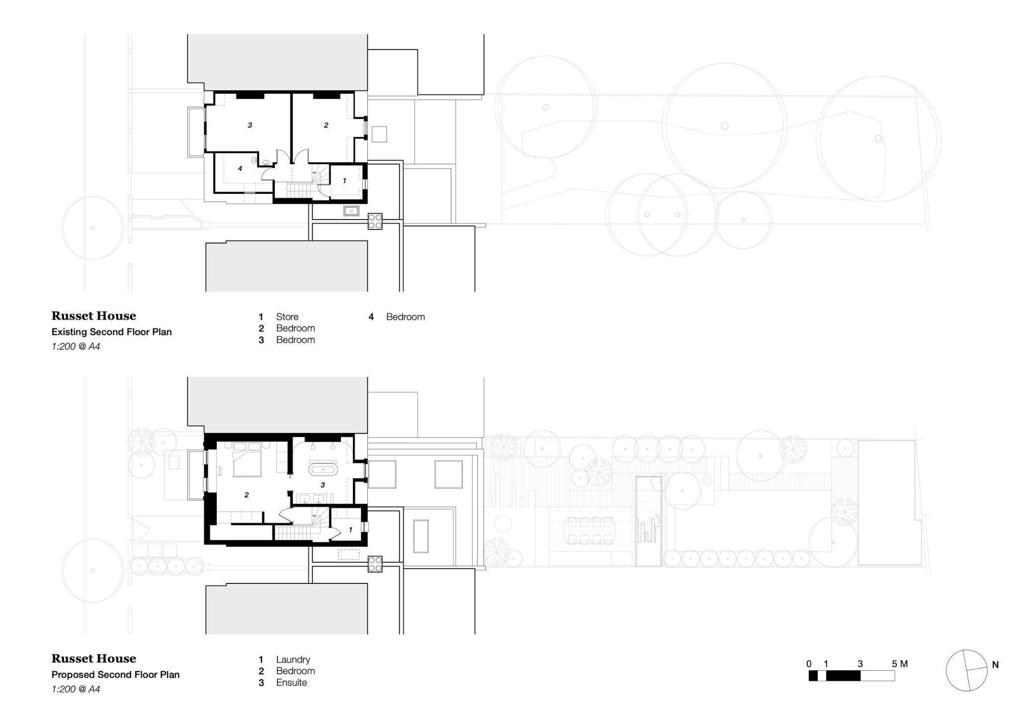
Mặt bằng tầng 2 hiện trạng và đề xuất, thể hiện bố cục các phòng ngủ và thêm khu giặt cùng phòng tắm khép kín.
>>> Xem thêm: Cải tạo nhà 4 tầng kết hợp cửa hàng, phòng trưng bày nhưng vẫn thông thoáng mà không cần sửa đổi quá nhiều
Không gian sống được tái cấu trúc toàn diện
Tầng trệt - Bếp và phòng khách mở liền mạch với vườn sau
Không gian tầng trệt giờ đây là bếp, bàn ăn và phòng khách liên thông, nơi ánh sáng tràn vào từ hai ô giếng trời lớn và hệ cửa kính trượt toàn khung hướng Nam. Gam màu trắng, gỗ sáng cùng nội thất tối giản khiến căn nhà như rộng gấp đôi. Bếp đảo trung tâm được bố trí khéo léo, vừa là khu nấu ăn, vừa là nơi trò chuyện của cả gia đình. Từ ghế sofa trong phòng khách, có thể nhìn xuyên qua khung kính lớn ra khu vườn xanh phía sau, tạo cảm giác không gian “mở” mà vẫn rất riêng tư.
Phòng khách được bố trí tối giản với sofa màu trầm ấm và băng ghế cửa sổ nhìn ra vườn. Ô cửa lớn đóng vai trò như một “khung tranh xanh”, mang thiên nhiên trở thành một phần của nội thất
Không gian bếp - ăn mở với đảo bếp lớn đặt ở trung tâm, ngập tràn ánh sáng tự nhiên từ giếng trời. Cách bố trí này giúp khu bếp vừa là nơi nấu nướng, vừa là điểm kết nối sinh hoạt của cả gia đình
Góc nhìn từ đảo bếp hướng ra phòng khách và khu vườn phía sau thông qua hệ cửa kính lớn. Thiết kế không gian mở giúp ánh sáng và mảng xanh lan tỏa sâu vào bên trong ngôi nhà
Không gian ăn uống với bàn gỗ dài đặt dưới giếng trời, ánh sáng tự nhiên chiếu trực tiếp xuống mặt bàn. Giếng trời giúp khu vực ăn uống luôn sáng và thông thoáng, giảm phụ thuộc vào đèn điện ban ngày
Không gian sân vườn nhìn từ trong nhà ra, nổi bật với khung thép màu russet chạy dọc khu đất. Giải pháp khung thép kết hợp cảnh quan giúp kết nối các lớp không gian và dẫn hướng tầm nhìn ra phía cuối vườn
Tầng hầm - Không gian ẩn đầy bất ngờ
Tầng hầm cũ vốn chỉ là một hầm chứa ẩm thấp. Sau khi được đào mở rộng và cải tạo lại hoàn toàn, đây đã trở thành trung tâm sinh hoạt mới của gia đình: có phòng chiếu phim, phòng tập gym, phòng ngủ có toilet riêng, và một khoảng thông tầng đón sáng trực tiếp từ phía trên.
Nhờ lightwell và giếng trời, tầng hầm giờ sáng và thoáng như một tầng trệt thứ hai - thậm chí có thể hoạt động như một căn hộ độc lập cho người thân hoặc khách ở dài ngày.
Không gian tầng hầm nhìn ra phòng gym và khu sinh hoạt thông qua các ô cửa kính trong suốt. Việc sử dụng kính giúp tầng hầm không còn cảm giác kín và tách biệt như không gian ngầm truyền thống
Các tầng trên - Linh hoạt cho sinh hoạt gia đình
Hai tầng trên giữ bố cục quen thuộc của nhà Victorian nhưng được làm mới bằng cửa sổ lớn hơn, vật liệu cách nhiệt tốt hơn và các không gian đa năng. Tầng 1 là khu vực của các con, có thể chuyển đổi khi chúng lớn lên. Tầng 2 dành cho bố mẹ, gồm phòng ngủ master, phòng tắm riêng (ensuite) và khu giặt đồ, đảm bảo sự riêng tư và tiện nghi.
Phòng ngủ chính được bố trí tối giản với hệ tủ gỗ kết hợp mây đan, mang lại cảm giác ấm áp và thư giãn. Vật liệu tự nhiên giúp cân bằng lại các chi tiết kim loại mạnh mẽ xuất hiện ở khu vực cầu thang
Phòng tắm chính nổi bật với bồn tắm đặt giữa không gian và vách kính mờ phân khu nhẹ nhàng. Giải pháp này giúp phòng tắm vừa riêng tư, vừa giữ được ánh sáng tự nhiên và sự thông thoáng
Khu vực tắm được bo cong mềm mại, kết hợp gạch thẻ sáng màu và bề mặt hoàn thiện mịn. Thiết kế bo tròn giúp không gian trở nên nhẹ nhàng, an toàn và dễ chịu khi sử dụng hằng ngày
Phòng ngủ trẻ em sử dụng bảng màu ấm với trần sơn màu đất và rèm vải mềm. Cách phối màu tạo cảm giác gần gũi, giúp không gian vừa sinh động vừa không quá kích thích thị giác
Góc vui chơi trong phòng ngủ trẻ được bố trí với lều vải và thảm ngồi sát cửa sổ. Thiết kế này tận dụng ánh sáng tự nhiên và tạo ra một không gian riêng nhỏ cho trẻ đọc sách, chơi đùa
Phòng làm việc nhìn thẳng ra khu vườn phía sau qua cửa kính lớn, ngập tràn ánh sáng ban ngày. Hệ tủ âm tường và bàn làm việc liền khối giúp không gian gọn gàng, phù hợp cho làm việc tại nhà lâu dài
>>> Xem thêm: Nhà 4 tầng tại Sài Gòn thoáng đãng hơn hẳn nhờ thay đổi vị trí cầu thang
Vật liệu gợi cảm giác ấm áp và tự nhiên
Cái tên Russet House bắt nguồn từ tông màu chủ đạo của ngôi nhà: đỏ gỉ - nâu - cam đất, gợi sự ấm cúng và tự nhiên. Kiến trúc sư kết hợp khéo giữa vật liệu cũ và mới: gạch sáng, tường vữa trắng, sàn gỗ vàng nhạt và thép đỏ. Mọi chi tiết đều tinh giản nhưng có chiều sâu. Nhờ vậy, ngôi nhà giữ được hồn cũ của kiến trúc Anh mà vẫn mang hơi thở hiện đại và dễ chịu.
Cầu thang thép màu gỉ được thiết kế như một điểm nhấn điêu khắc trong không gian nhà. Việc đặt cầu thang quanh lõi thông tầng giúp ánh sáng lan tỏa đều xuống các tầng dưới
Cầu thang thép màu đỏ gỉ được thiết kế như một khối điêu khắc, kết hợp bậc gỗ sáng và sàn lát xương cá. Giải pháp này giúp cầu thang vừa là lối giao thông, vừa trở thành điểm nhấn thị giác xuyên suốt các tầng
Chi tiết lan can và thân cầu thang thép gấp nếp tạo cảm giác liền khối, chắc chắn nhưng không nặng nề. Màu thép đỏ gỉ tương phản với tường trắng và gạch cũ, làm nổi bật tinh thần giao thoa giữa cũ và mới
Khu vực thông tầng kết hợp đèn trang trí treo thả tạo chiều sâu và cảm giác kết nối giữa các tầng. Giải pháp này không chỉ cải thiện ánh sáng mà còn mang lại trải nghiệm không gian sinh động khi di chuyển trong nhà
Góc nhìn qua khung cửa kính cho thấy cầu thang đỏ gỉ như một mảng màu trôi nổi trong không gian. Cách đặt cầu thang quanh lõi thông tầng giúp ánh sáng lan tỏa và tạo chiều sâu thị giác cho ngôi nhà
Vườn sau nhà tạo khoảng thở đầy sức sống
Khoảng vườn sau là phần được chăm chút nhất trong dự án. Sàn lát đá sáng dẫn ra patio có khung thép đỏ gỉ (pergola) đồng bộ với cầu thang trong nhà. Tường gỗ xen các mảng thép tạo hiệu ứng thị giác sinh động, vừa là chỗ gắn cây leo, vừa tạo ranh giới mềm giữa các khu vực.
Bồn nước nhỏ phản chiếu bầu trời, thảm cỏ xanh mướt và hàng cây thấp được trồng đan xen, khiến khu vườn trở thành phần mở rộng tự nhiên của phòng khách. Vào mùa hè, gia chủ có thể mở toàn bộ cửa kính, biến bếp và phòng khách thành không gian ngoài trời - một điều hiếm thấy ở nhà liền kề kiểu cũ.
Khu vườn phía sau được tổ chức như một không gian sinh hoạt ngoài trời hoàn chỉnh, với thảm cỏ, cây xanh và lối đi rõ ràng. Hệ pergola thép màu gỉ kết hợp hàng rào gỗ giúp định hình không gian, tạo bóng mát và tăng sự riêng tư cho khu vườn
Khu vực ngồi thư giãn ngoài trời được bố trí ngay trước khối nhà mở rộng, nhìn thẳng vào phòng sinh hoạt chung. Việc đặt không gian nghỉ ở trung tâm khu vườn giúp gia chủ dễ dàng sử dụng hằng ngày và tăng tính tương tác giữa trong - ngoài nhà
Tối ưu năng lượng, sống thoải mái hơn và xanh hơn
Dự án cải tạo này không chỉ chú trọng thẩm mỹ, mà còn hướng tới hiệu quả năng lượng và môi trường sống lành mạnh. Toàn bộ tường ngoài được cách nhiệt từ bên trong, hệ thống sưởi sàn và thông gió thu hồi nhiệt (MVHR) giúp giữ ấm vào mùa đông, thông thoáng vào mùa hè. Hạ tầng kỹ thuật cũng được chuẩn bị sẵn để có thể lắp đặt máy bơm nhiệt (air source heat pump) trong tương lai.
Nhờ những cải thiện này, ngôi nhà nâng xếp hạng năng lượng từ F lên C - tương đương giảm đáng kể lượng khí thải carbon hàng năm.
>>> Xem thêm: Hải Phòng House sử dụng sân trong và cầu thang 1 vế để tăng lưu thông gió và ánh sáng tự nhiên
Ngôi nhà cũ được “tái sinh” từ chính trải nghiệm sống của gia chủ
“Trước đây ngôi nhà rất ẩm và lạnh, mỗi mùa đông đều khó chịu,” Rachel chia sẻ. “Giờ đây, ánh sáng tự nhiên có ở khắp nơi, tầng hầm cũng sáng và khô ráo, trở thành nơi cả nhà thường xuyên sử dụng. Chúng tôi thực sự cảm thấy dễ chịu khi ở trong chính ngôi nhà của mình.”
Với kiến trúc sư Andrew Mulroy, Russet House là ví dụ rõ ràng cho thấy cải tạo đúng cách có thể mang lại cuộc sống mới cho một công trình cũ - không chỉ đẹp hơn, mà còn bền vững hơn và thân thiện hơn với người sử dụng.
Russet House là một minh chứng sinh động rằng đôi khi, giải pháp tốt nhất không phải là xây mới, mà là tìm lại giá trị tiềm ẩn trong chính ngôi nhà cũ. Nhờ tổ chức lại không gian, mở đường cho ánh sáng và sử dụng vật liệu mộc mạc, căn nhà Victorian này đã được hồi sinh thành một không gian sống hiện đại, tiện nghi và tràn năng lượng tích cực.
Khám phá thêm những ngôi nhà được “tái sinh” từ những giới hạn cũ tại Chuyện nhà nhé.
Thông tin công trình
Tên ngôi nhà: Russet House
Diện tích thực tế (m2): 250
Năm hoàn thành: 2023
Đơn vị thiết kế: Mulroy Architects
Đơn vị chụp ảnh: Agnese Sanvito
Địa điểm: Crouch End, London, Anh
Phong cách thiết kế: Hiện đại
Số tầng: 4
Số phòng ngủ: 5
Loại nhà: Nhà liền kề
Nguồn: Archello
*Để lại thông tin trong box dưới đây, Happynest sẽ giúp bạn kết nối đơn vị thiết kế - thi công phù hợp và nhanh chóng nhất.




















































































































