Ngôi nhà bền vững vận hành độc lập không cần điện lưới

    Cập nhật ngày 13/12/2025, lúc 10:005 lượt xem
    • Tên ngôi nhà
      AMAMI House
    • Tổng diện tích
      119m2
    • Năm hoàn thành
      2024
    • Thiết kế
      Sakai Architects
    • Chụp ảnh
      Toshihisa Ishii

    Nằm giữa trung tâm đảo Amami, Kagoshima, Nhật Bản, AMAMI House là một tuyên ngôn mạnh mẽ về lối sống tự chủ trước biến đổi khí hậu. Công trình là sự kết hợp hoàn hảo giữa triết lý kiến trúc bản địa và giải pháp năng lượng tái tạo, tạo nên một cơ thể sống tự tuần hoàn, tách biệt hoàn toàn khỏi lưới điện quốc gia.

    AMAMI House hiện lên với hình thái mái dốc lớn đầy ấn tượng hòa mình vào cảnh quan trập trùng của đảo Amami

    Quyết định ngắt kết nối để sống chủ động

    Câu chuyện về AMAMI House không bắt đầu từ những bản vẽ trên bàn giấy, mà khởi nguồn từ một trăn trở sâu sắc về sự sinh tồn trước những biến động khó lường của môi trường. Ba năm trước, KTS Kazunori Sakai đã mua một ngọn núi. Tại đây, ông ấp ủ giấc mơ về một hệ thống hạ tầng vi mô, nơi con người có thể sống độc lập, tự chủ, đồng thời tìm kiếm giải pháp hồi sinh cho những vùng quê đang dần già hóa và thưa thớt bóng người.

    AMAMI House tọa lạc tại một khu phố gần núi rừng, không quá đông đúc

    Nhưng hành trình hiện thực hóa giấc mơ tự cung tự cấp nơi đây đã gặp rất nhiều biến cố. Thách thức lớn nhất mà đội ngũ kiến trúc sư phải đối mặt chính là sự khắc nghiệt của khí hậu Amami. Mang danh là đảo cận nhiệt đới, nhưng trớ trêu thay, lượng bức xạ mặt trời tại đây lại thấp đến ngỡ ngàng, chỉ khiêm tốn ngang bằng những vùng phía Bắc Nhật Bản lạnh giá.

    Đứng trước bài toán năng lượng nan giải, đội ngũ thiết kế đã cân nhắc mọi tiềm năng: từ gió, thủy điện cho đến địa nhiệt. Sau cùng, năng lượng mặt trời vẫn là chìa khóa khả thi nhất. Không vội vàng áp dụng, kiến trúc sư đã biến chính ngôi nhà phố thị của mình thành phòng thí nghiệm để kiểm chứng suốt một thời gian dài. Chỉ mười ngày trước lễ khởi công, KTS quyết định AMAMI House sẽ cắt đứt hoàn toàn mọi kết nối với lưới điện quốc gia.

    Hệ thống pin mặt trời và máy nước nóng năng lượng mặt trời được bố trí khéo léo trên mái

    Cận cảnh hệ thống kỹ thuật trên mái nhà minh chứng cho sự kết hợp hoàn hảo giữa công nghệ hiện đại và kiến trúc bản địa

    Khi màn đêm buông xuống, ngôi nhà tỏa sáng ấm áp như một chiếc đèn lồng khổng lồ, tách biệt hoàn toàn với hạ tầng điện lưới xung quanh

    Quyết định ấy đã khai sinh ra một công trình tự chủ hoàn toàn, cho phép một gia đình bốn người sinh hoạt tiện nghi mà không cần đến điện lưới hay máy lạnh, bất chấp độ ẩm cao và cái nóng oi ả thường trực của vùng đảo phương Nam.

    >>> Xem thêm: Tổ ấm bền vững của kỹ sư phần mềm có phương châm "sống lớn trong ngôi nhà nhỏ"

    Cấu trúc Buntō và nghệ thuật phân tách khối

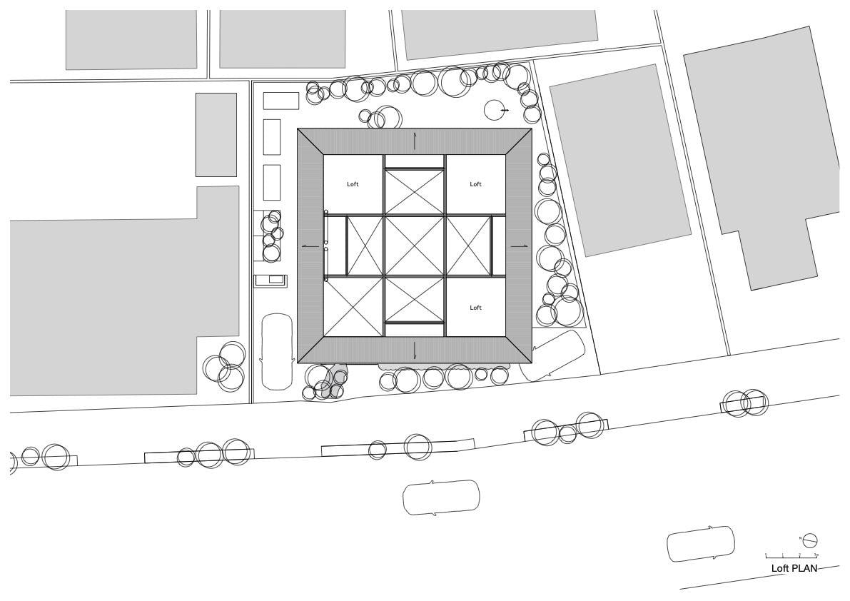
    Thay vì gom tất cả công năng vào một khối hộp bê tông khép kín nhàm chán như các công trình kiến trúc hiện đại, AMAMI House quay về nương tựa vào kiến trúc dân gian thông qua việc tái hiện bố cục Buntō.

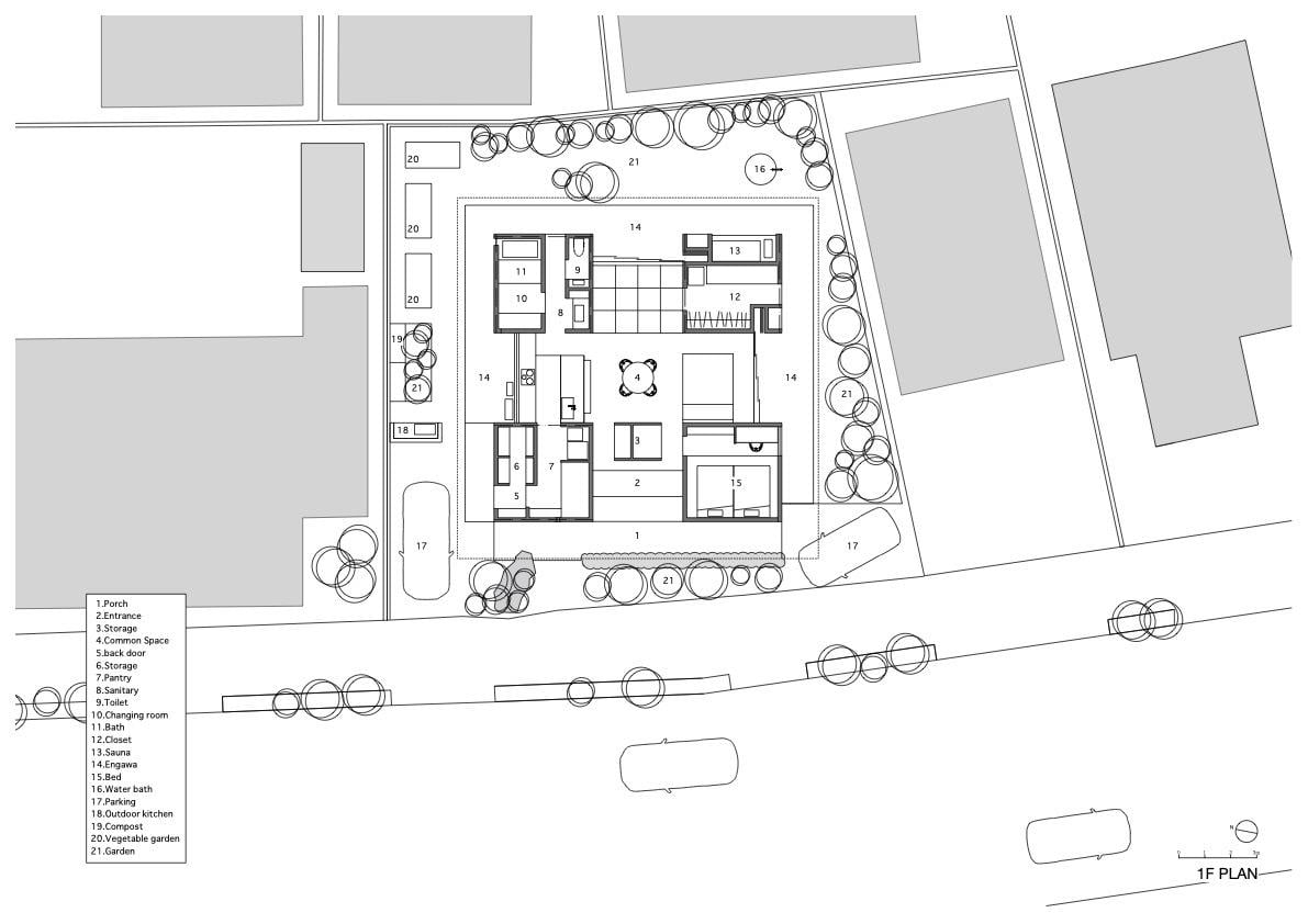
    Mặt bằng tổng thể cho thấy rõ 5 khối chức năng riêng biệt được sắp xếp bao quanh một không gian sinh hoạt chung

    Không gian sinh hoạt chung trở thành trái tim của ngôi nhà, nơi mọi thành viên dễ dàng kết nối và sẻ chia

    Sự tách biệt để hòa hợp

    Ngôi nhà được chia nhỏ thành năm khối độc lập, mỗi khối đảm nhận một chức năng riêng biệt như phòng tắm, phòng ngủ, kho lưu trữ. Những khối nhà này được sắp xếp theo một trật tự hình học khéo léo, tạo ra những khoảng thở xen kẽ. Đây hoàn toàn không phải là những diện tích thừa thãi, mà chính là những không gian đệm đắt giá, đóng vai trò là khu vực sinh hoạt chung nơi gia đình quây quần.

    Không gian sinh hoạt chung nằm dưới mái vòm gỗ lớn, nơi kết nối các thành viên trong gia đình với nhau

    Từ khu bếp nhìn ra, tầm mắt không hề bị giới hạn mà xuyên suốt qua các không gian, tạo cảm giác rộng mở và gắn kết

    Xóa nhòa ranh giới giữa trong và ngoài

    Cách quy hoạch không gian mang lại hiệu quả kép về mặt thẩm mỹ và công năng. Các không gian sinh hoạt chung kết nối linh hoạt và trôi chảy với hành lang và khu vườn xanh mát. Tại AMAMI House, ranh giới cứng nhắc giữa nội thất và ngoại thất, giữa sự riêng tư và sự bao la của thiên nhiên gần như bị xóa bỏ. Con người không còn bị giam hãm trong bốn bức tường, mà thực sự được sống cùng nhịp điệu của đất trời, cây cỏ.

    Khoảng hiên rộng là nơi lũ trẻ thỏa sức vui đùa, xóa nhòa ranh giới giữa sàn nhà và sân vườn

    Hệ mái hiên vươn dài che chở cho lối đi, tạo ra những vệt nắng đổ bóng đầy nghệ thuật xuống nền đá

    >>> Xem thêm: Nhà gạch 1 tầng bền vững, hài hòa giữa truyền thống và tự nhiên

    Mái nhà biết thở và bài học trị thủy từ kho thóc cổ Takakura

    Để chế ngự khí hậu Amami vốn nổi tiếng đỏng đảnh với những cơn mưa xối xả bất chợt và ánh nắng thiêu đốt, lớp bảo vệ ngôi nhà được xử lý vô cùng tinh tế. Hình dáng mái nhà là sự kết hợp giữa kiểu mái kim loại lượn sóng địa phương và cấu trúc Irimoya truyền thống.

    Mặt cắt công trình minh họa cơ chế thông gió tự nhiên nhờ vào cấu trúc mái lấy cảm hứng từ kho thóc Takakura

    Không chỉ đơn thuần là vật che mưa nắng, hệ mái của AMAMI House là một tổ hợp kỹ thuật phức tạp tích hợp nhiều lớp cách nhiệt, thông gió và kiểm soát ánh sáng. Lấy cảm hứng từ Takakura, những kho thóc sàn nâng truyền thống của người dân đảo, cấu trúc ngôi nhà cho phép gió trời len lỏi và lưu thông tự do theo mọi hướng.

    Hệ lam gỗ trên trần nhà đóng vai trò như những lá phổi cho phép không khí nóng thoát ra ngoài và đón gió tươi vào trong

    Góc nhìn trực diện lên đỉnh mái, nơi ánh sáng và gió giao thoa qua các khe gỗ tinh tế

    Những mái hiên sâu vươn dài hào phóng đóng vai trò như những lá chắn tự nhiên, giúp điều tiết cường độ ánh sáng, ngăn cản cái nóng gay gắt xâm nhập vào không gian sống, đồng thời che chắn cho ngôi nhà khỏi những trận mưa rào nhiệt đới xối xả. Nhờ đó, không gian bên trong luôn duy trì được vi khí hậu ôn hòa, mát mẻ và khô ráo quanh năm mà không cần can thiệp bởi các thiết bị làm mát nhân tạo.

    Kết cấu mái gỗ lộ thiên không chỉ giải quyết bài toán kỹ thuật mà còn mang lại vẻ đẹp mộc mạc, ấm cúng cho không gian nội thất

    Vòng tròn sinh thái khép kín: Từ thanh củi thừa đến bàn ăn gia đình

    Tính bền vững tại AMAMI House không dừng lại ở những tấm pin năng lượng mặt trời trên mái, mà nó hiện hữu trong từng hơi thở của cuộc sống thường nhật thông qua một vòng lặp tài nguyên khép kín.

    Một phòng xông hơi khô nhỏ đốt củi được xây dựng ngay trong khuôn viên, sử dụng nhiên liệu chính là các mẩu gỗ thừa tái chế từ quá trình xây dựng công trình. Đây là minh chứng cho tư duy không lãng phí của người thiết kế, khi mọi vật liệu đều được tận dụng tối đa vòng đời của chúng.

    Khu vực Sauna nằm tách biệt bên hông nhà, một góc thư giãn tĩnh lặng giữa khu vườn đá

    Bên trong phòng xông hơi đốt củi nơi con người tìm lại sự cân bằng, sử dụng chính nguồn nhiên liệu tái chế từ công trình

    Chưa dừng lại ở đó, rác thải thực phẩm hữu cơ từ nhà bếp được thu gom tỉ mỉ để ủ phân compost. Nguồn dưỡng chất tự nhiên này sau đó được trả lại cho đất, nuôi dưỡng vườn rau của gia đình. Những nông sản xanh sạch thu hoạch được lại quay trở lại bàn ăn, phục vụ bữa cơm hàng ngày. Quy trình này tạo nên một hệ sinh thái tuần hoàn sống động ngay trong lòng ngôi nhà, nơi con người vừa là người tiêu thụ, vừa là người vun đắp cho thiên nhiên.

    Bể tắm ngoài trời sử dụng nguồn nước tự nhiên, mang lại trải nghiệm tắm mát sảng khoái giữa thiên nhiên nhiệt đới

    Phòng vệ sinh với thiết kế tối giản, sử dụng vật liệu đá và gỗ hài hòa với tổng thể công trình

    Không gian phòng tắm tiện nghi và tĩnh lặng

    Hồi sinh tinh thần Yui: Ngôi nhà là giao điểm của văn hóa và cộng đồng

    Amami được mệnh danh là Island of Ties, nơi văn hóa cộng đồng và các nghi lễ tập thể giữ vai trò linh hồn trong đời sống người dân. Trước đây, các buổi lễ kỷ niệm gia đình là dịp để hơn tám mươi người thân, hàng xóm láng giềng tụ họp, cùng nhau chia sẻ niềm vui đến tận đêm khuya.

    Không gian ăn uống trung tâm dưới mái vòm cao vút là nơi các thành viên quây quần, chia sẻ những câu chuyện sau một ngày dài

    Tuy nhiên, làn sóng đô thị hóa và xu hướng sống biệt lập đã khiến những truyền thống tốt đẹp này dần phai nhạt. AMAMI House mang trong mình sứ mệnh khôi phục lại nhịp điệu văn hóa ấy.

    Khu vực sàn giật cấp đa năng, vừa là nơi xem phim giải trí, vừa là góc đọc sách thư giãn đầy thú vị

    Góc nhìn từ bếp mở ra không gian thoáng đãng, nơi ánh sáng và gió trời tự do len lỏi

    Với thiết kế không gian mở, phóng khoáng và đầy tính bao dung, ngôi nhà tự nhiên trở thành lời mời gọi mọi người đến tụ họp. Những khoảng sân chung, những hành lang rộng rãi xóa bỏ sự ngăn cách, khuyến khích sự tương tác và chia sẻ. Ranh giới giữa nơi cư trú riêng tư và không gian sinh hoạt cộng đồng bị làm mờ, nhường chỗ cho tinh thần Yui được hồi sinh mạnh mẽ giữa thời hiện đại.

    Lối vào rộng mở chào đón, nơi bắt đầu của những kết nối giữa gia đình và cộng đồng

    AMAMI House biểu tượng tĩnh lặng nhưng mạnh mẽ về khả năng tự chủ và hòa hợp của con người trước thiên nhiên

    AMAMI House không chỉ là một công trình kiến trúc xuất sắc về mặt thẩm mỹ hay kỹ thuật, mà là một tuyên ngôn về lối thiết kế khiêm nhường đầy trí tuệ. Bằng cách chối từ sự tiện nghi của mạng lưới điện quốc gia để chọn lấy sự tự chủ đầy thách thức, KTS Kazunori Sakai đã chứng minh rằng: Kiến trúc bền vững không nhất thiết phải là những cỗ máy công nghệ tối tân, mà đôi khi chỉ là việc biết cách lắng nghe tiếng nói của gió, của mưa và của những giá trị văn hóa ngàn đời. Khám phá thêm nhiều công trình độc đáo tại Chuyện nhà.

    >>> Xem thêm: Ngôi nhà đa thế hệ bền vững, giữ nguyên hơn 100 cây xanh khi xây dựng

    Thông tin công trình:

    Tên ngôi nhà: AMAMI House

    Tổng diện tích (m2): 119

    Năm hoàn thành: 2024

    Đơn vị thiết kế: Sakai Architects

    Đơn vị thi công:

    Đơn vị chụp ảnh: Toshihisa Ishii

    Địa điểm: Kagoshima, Nhật Bản

    Số tầng: 1

    Số phòng ngủ: 1

    Loại nhà: Nhà ở

    Nguồn: Archdaily

    *Để lại thông tin trong box dưới đây, Happynest sẽ giúp bạn kết nối đơn vị thiết kế - thi công phù hợp và nhanh chóng nhất.

    Nguyễn Thu HằngTheo dõi

    Bình luận

    Hãy đăng nhập và trở thành người đầu tiên bình luận về bài viết này!

    Bài đăng liên quan

    Chuyện nhà

    Xem tất cả

    Kho kiến thức

    Xem tất cả

    Đời sống

    Xem tất cả

    Xu hướng

    Xem tất cả

    Happynest Story

    Xem tất cả

    Sự kiện

    Xem tất cả

    HappynestTV

    Xem tất cả

    Thảo luận

    Xem tất cả

    Ăn - Chơi

    Xem tất cả
    • 0
    • 0
    • 0
    • 0