Nam House - Nhà phố tối giản 4,5m x 18m

    Cập nhật ngày 16/12/2025, lúc 13:062.283 lượt xem
    • Tên ngôi nhà
      Nam House
    • Kích thước
      18m dọc
    • Diện tích mặt bằng
      81m2
    • Năm hoàn thành
      2025
    • Thiết kế
      90odesign Studio
    • Thi công
      Intercons
    • Chụp ảnh
      Quang Trần

    NAM  HOUSE

    Vị trí: P. Phước Tân, Đồng Nai, Việt Nam

    Đơn vị thiết kế: 90odesign

    Nhóm thiết kế: Trần Đức Huy, Lê Duy Bình, Phạm Văn Nghiệp

    Đơn vị thi công: Intercons

    Diện tích khu đất: 81 m²

    Năm hoàn thành: 2025

    Nhiếp ảnh: Quang Trần

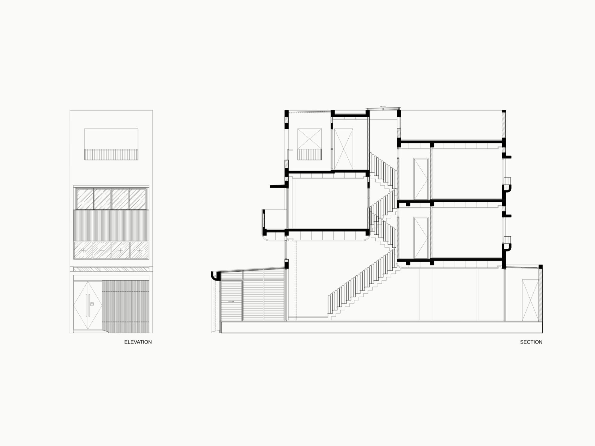
    Khu đất xây dựng có kích thước 4.5m x 18m, nằm ở một khu tái định cư của thành phố, mật độ dân cư còn thấp. Phía trước khu đất là mảng cây xanh khá lớn. Nhóm thiết kế mong muốn tìm ra phương án có thể khai thác tối đa góc nhìn ra mảng xanh, đồng thời vẫn đảm bảo tính an ninh và thông thoáng cho ngôi nhà.

    Ngoài ba phòng ngủ lớn, khách hàng mong muốn có không gian tiếp khách và bếp ăn rộng rãi, thông thoáng, có tính kết nối, đảm bảo cho các dịp sum họp gia đình đông người. Việc chiếu sáng tự nhiên và bố trí mảng xanh cũng được khách hàng quan tâm.

    Khối nhà chính được nhóm thiết kế bố trí ở giữa khu đất, phía trước và sau là hai khoảng sân. Nội thất được bố trí lệch tầng kết hợp với khoảng giếng trời lớn ở giữa nhà. Cầu thang và bếp ở tầng trệt được đặt gọn về một phía, giúp thông gió từ sân trước ra sân sau. Điểm nhấn đặc biệt của công trình là phần trần bằng gỗ nhân tạo, được tạo hình cong, chạy xuyên suốt từ trần trong nhà ra ban công ngoài trời. Mặt đứng phía trước được bố trí các mảng cây xanh theo từng lớp, bao gồm cây xanh ở cổng vào, ban công và khu vực sân thượng. Mặt đứng phía sau cũng được bố trí cây xanh phía ngoài cửa sổ. Các mảng xanh này lọc bớt ánh nắng trực tiếp, giúp không khí trong ngôi nhà thêm mát mẻ.

    Nhóm thiết kế luôn hướng đến tính bền vững khi lựa chọn các giải pháp cho ngôi nhà. Điều đó được thể hiện qua việc bố trí công năng sao cho thật phù hợp với nhu cầu thực tế của khách hàng, kết hợp với các giải pháp kiến trúc giúp không gian luôn thông thoáng và gần gũi với thiên nhiên.

    Bình luận

    Hãy đăng nhập và trở thành người đầu tiên bình luận về bài viết này!

    Bài đăng liên quan

    Chuyện nhà

    Xem tất cả

    Kho kiến thức

    Xem tất cả

    Đời sống

    Xem tất cả

    Xu hướng

    Xem tất cả

    Happynest Story

    Xem tất cả

    Sự kiện

    Xem tất cả

    HappynestTV

    Xem tất cả

    Thảo luận

    Xem tất cả

    Ăn - Chơi

    Xem tất cả
    • 0
    • 0
    • 0
    • 0