Tọa lạc tại vùng ngoại ô Phố Đông (Thượng Hải), The Catcher hay còn gọi là Chunli Guesthouse, hiện lên như một nốt trầm tĩnh lặng giữa bạt ngàn đồng lúa. Dự án là câu trả lời của TEAM_BLDG cho bài toán cải tạo nhà ở nông thôn, nơi kiến trúc không lấn át thiên nhiên mà trở thành kẻ canh giữ thời gian và ký ức của vùng đất này.
Mặt đứng chính của công trình với vẻ đẹp hiện đại nhưng vẫn hài hòa với cảnh quan thiên nhiên
Công trình lung linh ánh đèn khi màn đêm buông xuống, nổi bật giữa không gian yên tĩnh
Toàn cảnh dự án The Catcher nằm giữa những cánh đồng lúa xanh ngát tại ngoại ô Thượng Hải
Cảm hứng từ đồng lúa và sự tự do trong thiết kế
Khác với những dự án nghỉ dưỡng thương mại thường bị ràng buộc bởi các quy chuẩn nhận diện thương hiệu khắt khe, chủ nhân của Chunli Guesthouse đã trao cho đội ngũ thiết kế một sự tự do đáng quý.
Sự tương phản thú vị giữa The Catcher và các ngôi nhà lân cận
Nằm gần cổ trấn Tân Trường (Xinchang), khu đất gây ấn tượng mạnh mẽ với các kiến trúc sư ngay từ lần đầu ghé thăm bởi vẻ đẹp sảng khoái của những cánh đồng lúa trải dài vô tận. Chính khung cảnh bao la và bầu không khí tự nhiên này đã trở thành nguồn cảm hứng chủ đạo, định hình nên mối quan hệ cộng sinh giữa công trình và bối cảnh xung quanh.
Khung cảnh chập tối, công trình như một chiếc đèn lồng ấm áp bên cạnh đồng lúa
Trong những cuộc thảo luận ban đầu, chủ đầu tư chỉ đưa ra những yêu cầu cơ bản về số lượng phòng nghỉ và các khu vực chức năng chung. Điểm nhấn quan trọng là việc tận dụng tối đa không gian ngoài trời và sân thượng, tạo tiền đề cho một thiết kế mở, phóng khoáng và gần gũi với thiên nhiên.
Hoàng hôn buông xuống bao trùm không gian, tôn lên vẻ đẹp bình yên của vùng ngoại ô
Sự tĩnh lặng và nên thơ của The Catcher dưới bầu trời xanh thẫm
>>> Xem thêm: Homestay ở Vân Nam sở hữu kết cấu phân tầng đá - gỗ và hệ mái kép giao hòa cùng thiên nhiên
Thách thức hiện trạng và giải pháp kết nối
Hiện trạng ban đầu bao gồm hai ngôi nhà nông thôn tự xây dựng độc lập. Cấu trúc và không gian nội thất của chúng đã cũ kỹ, không còn đáp ứng được nhu cầu vận hành của một guesthouse hiện đại với 11 phòng nghỉ cùng các tiện ích phức hợp như sảnh tiệc hay phòng giải trí.
Các khối nhà màu trắng tinh khôi mang lại diện mạo mới mẻ cho kiến trúc nông thôn
Thay vì phá bỏ hoàn toàn để xây mới, các kiến trúc sư chọn cách tiếp cận tôn trọng quá khứ. Mục tiêu là giữ lại tối đa cấu trúc ban đầu, hạn chế những sửa đổi lớn nhưng vẫn phải thích ứng linh hoạt để tạo nên một tổng thể thống nhất.
Góc nhìn bên hông công trình với những ô cửa sổ được bố trí ngẫu hứng nhưng có tính toán
Tái cấu trúc không gian bằng các khối kết nối
Để hợp nhất hai ngôi nhà riêng lẻ và các khoảng sân rời rạc, nhóm thiết kế đã sử dụng một bức tường bao quanh để định hình lại ranh giới khu đất. Tiếp đó, ba khối kiến trúc mới được thêm vào tại ba góc của mặt bằng hình chữ nhật. Những khối này đóng vai trò là đầu mối liên kết, chứa đựng các chức năng công cộng như sảnh đón, gian hàng và phòng tiệc.
Góc nhìn tổng thể từ trên cao giúp hình dung rõ cách bố trí các khối nhà và sân trong
Chiến lược này không chỉ giúp phân định rõ ràng mối quan hệ logic giữa khu vực chung và riêng tư, mà còn tạo ra sự liên kết chặt chẽ giữa không gian trong nhà và ngoài trời. Việc di chuyển qua lại giữa các khu vực giờ đây trở thành một trải nghiệm thú vị, dẫn dắt du khách khám phá từng góc nhỏ của công trình.
Khu vực hồ bơi và sân vườn được bao bọc bởi các khối nhà, tạo sự riêng tư cần thiết
Những lối đi nhỏ hẹp giữa các khối nhà gợi nhớ đến những con ngõ thân thuộc
Cầu thang và các lối hành lang thoáng kết nối các tầng và tạo điểm nhấn thị giác
Triết lý Người bắt bóng giữa cánh đồng
Tên gọi của dự án The Catcher (Người bắt bóng) thể hiện tinh thần cốt lõi mà TEAM_BLDG muốn gửi gắm: một công trình nắm bắt và lưu giữ vẻ đẹp của cảnh quan đồng lúa.
Ánh sáng ấm áp hắt ra từ những ô cửa sổ vuông vức tạo cảm giác chào đón
Dù ngân sách có hạn, đội ngũ thiết kế vẫn nỗ lực giữ lại những nét đặc trưng của kiến trúc cũ. Ngôi nhà mái dốc với kết cấu gỗ ở lối vào được bảo tồn gần như nguyên vẹn, tạo nên cảm giác thân thuộc ngay từ bước chân đầu tiên. Thông qua các ô cửa, khung nhìn và sự giao thoa ánh sáng, tòa nhà như hòa tan vào môi trường, vừa độc đáo lại vừa mang đến cảm giác an tâm, vững chãi.
Hệ cửa kính lớn giúp xóa nhòa ranh giới giữa không gian nội thất và ngoại thất
Cửa sổ trên mái và giếng trời giúp lấy sáng tự nhiên cho các không gian bên dưới
Cửa sổ mái độc đáo mở ra tầm nhìn lên bầu trời xanh
>>> Xem thêm: Nhà An Nhiên - nơi nghỉ dưỡng của gia đình nhỏ và là homestay cho những ai muốn 'trốn' phố đi tìm bình yên
Đối thoại giữa ánh sáng và địa hình
Nương theo địa hình tự nhiên sẵn có, khu vực chỗ ngồi tại sảnh chính được thiết kế trũng xuống. Giải pháp này tạo ra một cuộc đối thoại thị giác thú vị với khoảng sân nhỏ bên cạnh.
Khu vực ngồi trũng tạo góc nhìn thú vị ngang tầm mắt với sân vườn
Ánh sáng tự nhiên và tầm nhìn ra khu vườn được đưa sâu vào nội thất, làm phong phú thêm các lớp không gian bán ngoài trời. Tại đây, ranh giới giữa bên trong và bên ngoài trở nên nhạt nhòa, giúp du khách cảm nhận trọn vẹn sự thay đổi của thời tiết và cảnh vật.
Không gian sảnh tối giản với vật liệu đá tự nhiên và ánh sáng chan hòa
Cây xanh được đưa vào trong nhà, kết hợp với vách kính tạo cảm giác thiên nhiên tràn ngập
Cân bằng giữa bảo tồn và can thiệp mới
Trong quá trình cải tạo, mối quan hệ giữa cũ và mới được xử lý vô cùng tinh tế. Mọi sự can thiệp đều tuân thủ nguyên tắc có lý do và mục đích rõ ràng.
Ví dụ điển hình là ngôi nhà mái dốc cũ ở lối vào. Dù phong cách có đôi chút khác biệt so với các khối nhà mới, nó vẫn được giữ lại phần lớn. Thay đổi duy nhất nằm ở phần mái, khi vật liệu ngói cũ được thay thế bằng tấm nhôm-magie-mangan để đảm bảo an toàn và độ bền trước thời tiết, nhưng vẫn giữ được phom dáng truyền thống.
Hành lang với trần bê tông thô mộc và ánh sáng dẫn lối
Một chi tiết thú vị khác nằm ở các phòng nghỉ. Cảnh quan bên ngoài cửa sổ khu vực bồn tắm không chỉ mang tính trang trí, mà còn khéo léo che đi những đường ống kỹ thuật chạy dọc theo bức tường. Điều này thể hiện sự theo đuổi tính chân thực và toàn vẹn trong thiết kế, biến những hạn chế kỹ thuật thành điểm nhấn thẩm mỹ.
Bồn tắm thư giãn với view nhìn ra bức tường đá và ánh sáng tự nhiên
Bài toán kinh phí và thi công địa phương
Như hầu hết các dự án cải tạo nhà cũ, The Catcher cũng đối mặt với thách thức về ngân sách hạn hẹp và điều kiện thi công tại địa phương. Để giải quyết vấn đề này, các kiến trúc sư đã áp dụng hệ thống nội thất cố định. Giải pháp này giúp tích hợp nhiều nhu cầu chức năng trong phòng nghỉ, đồng thời giảm thiểu đáng kể chi phí tổng thể.
Phòng ngủ với cửa sổ lớn như một bức tranh thiên nhiên sống động
Nội thất gỗ sồi ấm áp và cửa lùa kết nối trực tiếp với sân vườn riêng
Quy trình thiết kế cũng cân nhắc kỹ lưỡng kỹ thuật xây dựng bản địa, đơn giản hóa các chi tiết thi công phức tạp. Các vật liệu được lựa chọn dựa trên tiêu chí dễ thực hiện, bền bỉ, đảm bảo ý tưởng thiết kế được hiện thực hóa ở mức độ hoàn thiện cao nhất dù trong điều kiện hạn chế.
Thiết kế nội thất tối giản, tập trung vào trải nghiệm nghỉ ngơi và ngắm cảnh
The Catcher không chỉ là một nơi chốn để ở, mà còn là lời hồi đáp của TEAM_BLDG với thiên nhiên và ký ức. Công trình đóng vai trò như một phương tiện kết nối con người với đất đai, quá khứ với tương lai, lặng lẽ quan sát sự biến chuyển của thời gian trên mảnh đất này. Khám phá thêm nhiều công trình độc đáo tại Chuyện nhà.
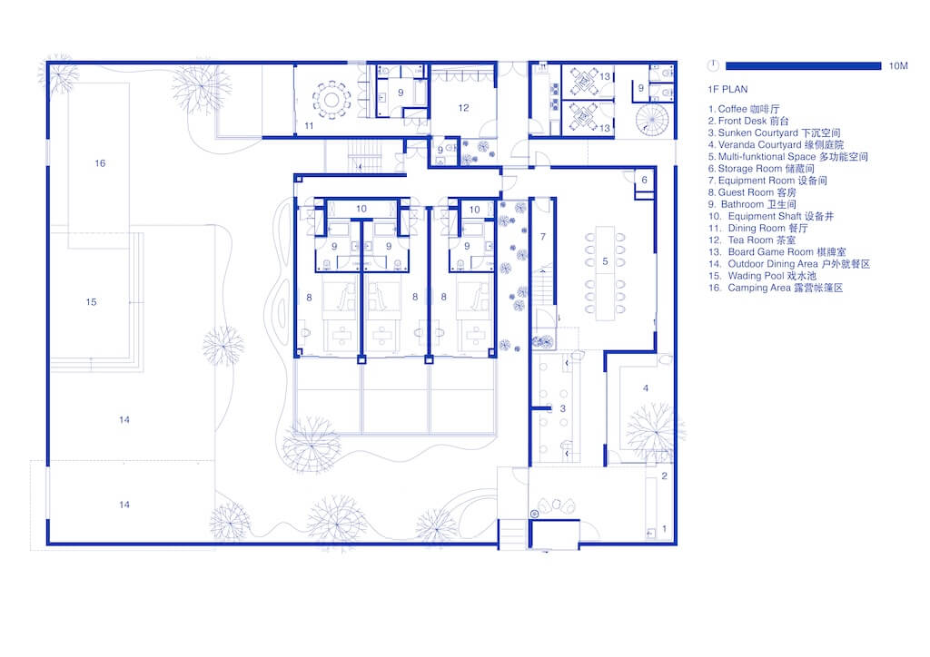
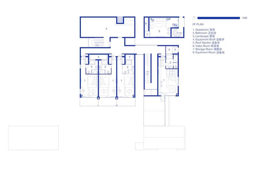
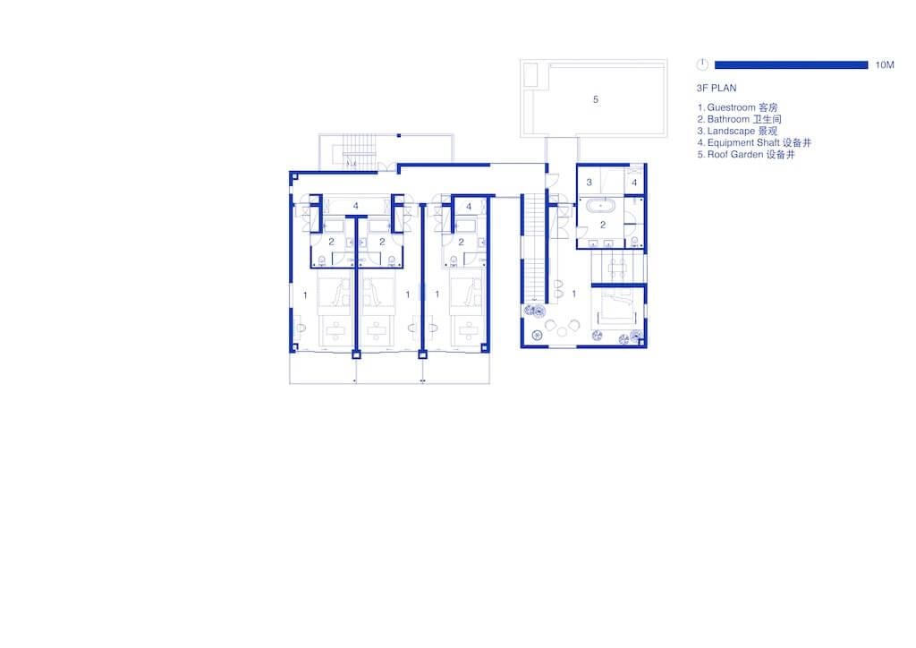
Bản vẽ kỹ thuật và phác thảo:
Phác thảo ý tưởng ban đầu của dự án
Bản vẽ chi tiết công trình
>>> Xem thêm: Homestay nhà cổ mang theo nét lắng đọng của thời gian, nơi trú ẩn an nhiên, tự tại chốn làng quê yên bình
Thông tin công trình:
Tên ngôi nhà: The Catcher (Chunli Guesthouse)
Tổng diện tích (m2): 897
Năm hoàn thành: 2024
Đơn vị thiết kế: TEAM_BLDG
Đơn vị chụp ảnh: Hu Siyuan
Địa điểm: Phố Đông, Thượng Hải, Trung Quốc
Số tầng: 4
Số phòng ngủ: 11
Loại nhà: Nhà khách
Nguồn: Amazing Architecture
*Để lại thông tin trong box dưới đây, Happynest sẽ giúp bạn kết nối đơn vị thiết kế - thi công phù hợp và nhanh chóng nhất.



























































































































