Sipat & Sauh Villa là một biệt thự nghỉ dưỡng cho thuê nằm tại Bali (Indonesia), do Arkana Architects thiết kế và hoàn thành năm 2025. Thay vì tạo ra một không gian “đẹp để ở tạm”, công trình hướng tới cảm giác quen thuộc, ấm áp như nhà ở thật - nơi người ở có thể nấu ăn, sinh hoạt và sống chậm.
Trên khu đất nhỏ, kiến trúc sư chọn cách tổ chức không gian xoay quanh sân trong, kết hợp vật liệu lọc sáng để cân bằng giữa riêng tư và thoáng đãng.
Những ý tưởng thiết kế chính của Sipat & Sauh Villa
-
Tổ chức không gian như nhà ở thật, không theo mô-típ villa cho thuê quen thuộc.
-
Đưa bếp lên ngay lối vào để tạo cảm giác gần gũi, đời thường.
-
Sân trong có hồ bơi đóng vai trò lấy sáng, thông gió và kết nối các không gian.
-
Dùng gạch kính và vách mờ để vừa kín đáo vừa thoáng sáng.
-
Ưu tiên vật liệu mộc mạc, tiết chế trang trí để tạo cảm giác yên tĩnh, dễ chịu.
Biệt thự cho thuê được thiết kế với cảm giác “về nhà” thay vì ở tạm
Ở Bali, không khó để bắt gặp những villa cho thuê có hồ bơi đẹp, cây xanh nhiều và không gian mở. Tuy nhiên, phần lớn trong số đó mang cảm giác “ở tạm”: đẹp, nhưng thiếu sự thân thuộc. Chủ đầu tư của Sipat & Sauh Villa mong muốn một điều khác - một căn villa cho thuê nhưng khi bước vào, người ở có thể cảm thấy như đang về nhà.
Khu đất xây dựng chỉ rộng khoảng 150m2, tổng diện tích sàn khoảng 190m2. Với quy mô này, nếu tổ chức không gian không khéo, ngôi nhà rất dễ trở nên chật chội và bí bách. Vì vậy, bài toán đặt ra cho kiến trúc sư không chỉ là bố trí đủ công năng, mà còn phải tạo được cảm giác thoáng, nhẹ và dễ sống.
Mặt tiền Sipat & Sauh Villa với các khối gạch kính xếp lớp, tạo hình kín đáo nhưng vẫn cho ánh sáng xuyên qua. Giải pháp này giúp công trình giữ được riêng tư mà không bị nặng nề hay khép kín
>>> Xem thêm: Biệt thự nghỉ dưỡng 93m2 hình chữ A thiết kế hướng trọn tầm nhìn ra biển
Sân trong và hồ bơi là “trái tim” giúp biệt thự luôn thoáng
Giải pháp quan trọng nhất của công trình là đưa sân trong có hồ bơi vào giữa nhà. Thay vì dồn mọi không gian ra phía trước hoặc phía sau, kiến trúc sư đặt một khoảng trống ở trung tâm, để ánh sáng, gió và cây xanh có thể lan tỏa đều.
Nhờ sân trong này, các khu vực xung quanh - từ bếp, phòng ăn, phòng khách cho tới phòng ngủ - đều có ánh sáng tự nhiên và cảm giác kết nối với bên ngoài. Ngôi nhà vì thế không bị chia cắt thành những phòng kín, mà giống như một dòng không gian liên tục, nhẹ nhàng.
Không gian bên trong với cầu thang bê tông bậc hẫng đặt cạnh sân trong và hồ bơi. Thiết kế giúp việc di chuyển trong nhà luôn gắn với ánh sáng, nước và cây xanh
Góc nhìn từ khu sinh hoạt ra sân trong với cầu thang và hồ bơi. Sân trong đóng vai trò “trái tim” điều tiết ánh sáng và không khí cho toàn bộ ngôi nhà
Khi bước vào nhà là… bếp, không phải phòng khách
Một chi tiết khiến Sipat & Sauh Villa khác biệt là vị trí của bếp. Thay vì phòng khách, không gian đầu tiên đón người ở lại là bếp với một đảo bếp nhỏ. Cách sắp xếp này nghe có vẻ lạ, nhưng lại rất “đời”.
Bếp là nơi nấu nướng, trò chuyện, chuẩn bị bữa ăn - những hoạt động gắn liền với sinh hoạt hằng ngày. Khi bước vào nhà và thấy bếp trước tiên, cảm giác trang trọng, hình thức được thay bằng sự gần gũi. Đây cũng là cách kiến trúc sư ngầm khuyến khích người ở sử dụng không gian như nhà mình, chứ không chỉ để chụp ảnh hay nghỉ ngơi ngắn hạn.
Phòng ăn nhìn thẳng về khu bếp đặt ở tuyến vào nhà. Cách tổ chức này tạo cảm giác sinh hoạt đời thường, gần gũi như một ngôi nhà thực sự hơn là villa cho thuê
Không gian bếp với đảo bếp đặt ở vị trí trung tâm, kết nối trực tiếp khu ăn và phòng khách. Bếp được đưa lên tuyến vào nhà để tạo cảm giác sinh hoạt gần gũi như một ngôi nhà thực sự
Phòng khách và phòng ăn thiết kế liền mạch, phân tách nhịp nhàng
Sau khu bếp là không gian ăn và phòng khách, được bố trí nối tiếp nhau. Để phân biệt hai khu vực này mà không làm không gian bị chia nhỏ, kiến trúc sư sử dụng vách ngăn bán trong suốt bằng gỗ kết hợp kính gân.
Nhờ vách mờ này, mỗi khu vực vẫn có ranh giới rõ ràng, nhưng ánh sáng và tầm nhìn không bị chặn lại. Người ngồi phòng khách vẫn cảm nhận được chuyển động ở khu ăn, và ngược lại, tạo cảm giác ấm cúng, có hơi người - đúng tinh thần của một ngôi nhà.
Không gian phòng khách và phòng ăn liên thông, ngăn chia bằng vách gỗ và kính gân bán trong suốt. Giải pháp giúp phân khu rõ ràng nhưng vẫn giữ dòng nhìn và sự gắn kết
Đảo bếp nhìn thẳng ra lớp gạch kính phía ngoài, giúp không gian luôn sáng nhưng vẫn kín đáo. Giải pháp này cân bằng giữa riêng tư và thông thoáng cho khu vực nấu nướng
Góc nhìn từ bếp về phòng khách qua hệ vách gỗ và kính gân bán trong suốt. Thiết kế phân tách không gian mà vẫn giữ dòng nhìn và sự liên kết sinh hoạt
>>> Xem thêm: Biệt thự thiết kế tầng 2 thành “khu nghỉ dưỡng trên không” nhìn ra rừng xanh, biển rộng
Cầu thang đặt cạnh hồ bơi, tạo trải nghiệm mới mẻ khi di chuyển
Cầu thang dẫn lên tầng trên được đặt ngay bên cạnh sân trong và hồ bơi. Khi đi lên xuống, người ở luôn nhìn thấy nước, cây xanh và ánh sáng thay đổi theo thời gian trong ngày.
Chi tiết này tưởng nhỏ nhưng mang lại hiệu quả lớn. Thay vì chỉ là lối giao thông, cầu thang trở thành một phần của trải nghiệm sống, giúp việc di chuyển trong nhà không bị tách rời khỏi thiên nhiên.
Cầu thang hẫng kết nối các tầng, đặt trên bệ ngồi dài như một phần của không gian sinh hoạt. Giải pháp này biến giao thông đứng thành trải nghiệm không gian thay vì chi tiết kỹ thuật thuần túy
Gạch kính tối ưu ánh sáng mà vẫn đủ kín đáo
Một vật liệu xuất hiện xuyên suốt công trình là gạch kính. Gạch kính cho phép ánh sáng xuyên qua, nhưng không nhìn rõ từ ngoài vào trong. Nhờ đó, không gian bên trong vẫn sáng và thoáng, trong khi sự riêng tư của người ở được đảm bảo.
Cách dùng gạch kính cũng giúp mặt tiền công trình trở nên kín đáo, không phô trương, nhưng vẫn có chiều sâu và nét riêng. Đây là lựa chọn phù hợp với một villa cho thuê nằm trong khu dân cư đông đúc.
Góc nhìn chéo cho thấy cấu trúc khối vuông vức kết hợp gạch kính và mảng ốp gỗ đậm màu. Cách phối vật liệu nhấn mạnh tính tiết chế, khác biệt với hình ảnh villa nhiệt đới quen thuộc tại Bali
Mặt đứng gạch kính nhìn từ sân, cho thấy lớp vỏ công trình vừa che chắn vừa gợi mở. Ánh sáng được lọc dịu, tạo cảm giác yên tĩnh cho không gian bên trong
Phòng ngủ tách biệt nhưng không bị cô lập
Các phòng ngủ được bố trí ở phía sau và trên tầng trên, tách khỏi khu sinh hoạt chung. Tuy vậy, nhờ hướng nhìn về sân trong, phòng ngủ vẫn có ánh sáng tự nhiên và thông gió tốt. Không gian nghỉ ngơi vì thế vừa yên tĩnh, vừa không bị bí.
Hành lang tầng trên mở ra sân trong, lấy sáng tự nhiên và thông gió chéo. Khoảng trống này giúp ngôi nhà nhỏ vẫn có cảm giác thoáng và nhẹ
Hành lang tầng trên nhìn về sân trong, nơi cây xanh trở thành điểm nhấn thị giác chính. Thiết kế này giúp các không gian riêng tư vẫn giữ kết nối với thiên nhiên
Khu vực phòng tắm với bồn tắm độc lập đặt cạnh khoảng xanh nhỏ. Không gian được mở sáng và thông gió tự nhiên, mang lại cảm giác thư giãn như spa tại nhà
Góc phòng ngủ kết hợp khu vệ sinh với vật liệu gỗ tối màu và ánh sáng gián tiếp. Thiết kế tạo cảm giác ấm cúng, yên tĩnh cho không gian nghỉ ngơi
Điều khiến Sipat & Sauh Villa ghi điểm không nằm ở sự cầu kỳ, mà ở cảm giác dễ chịu khi ở trong đó. Không gian mở, nhưng vẫn riêng tư. Vật liệu giản dị, nhưng được dùng đúng chỗ. Đây là minh chứng cho việc một biệt thự cho thuê hoàn toàn có thể mang tinh thần nhà ở, nếu kiến trúc sư tập trung vào trải nghiệm sống thay vì hình thức hào nhoáng.
Bản vẽ tổng mặt bằng (master plan) cho thấy cách tổ chức các khối nhà xoay quanh sân trong. Sân trung tâm đóng vai trò kết nối và điều tiết ánh sáng cho toàn bộ công trình
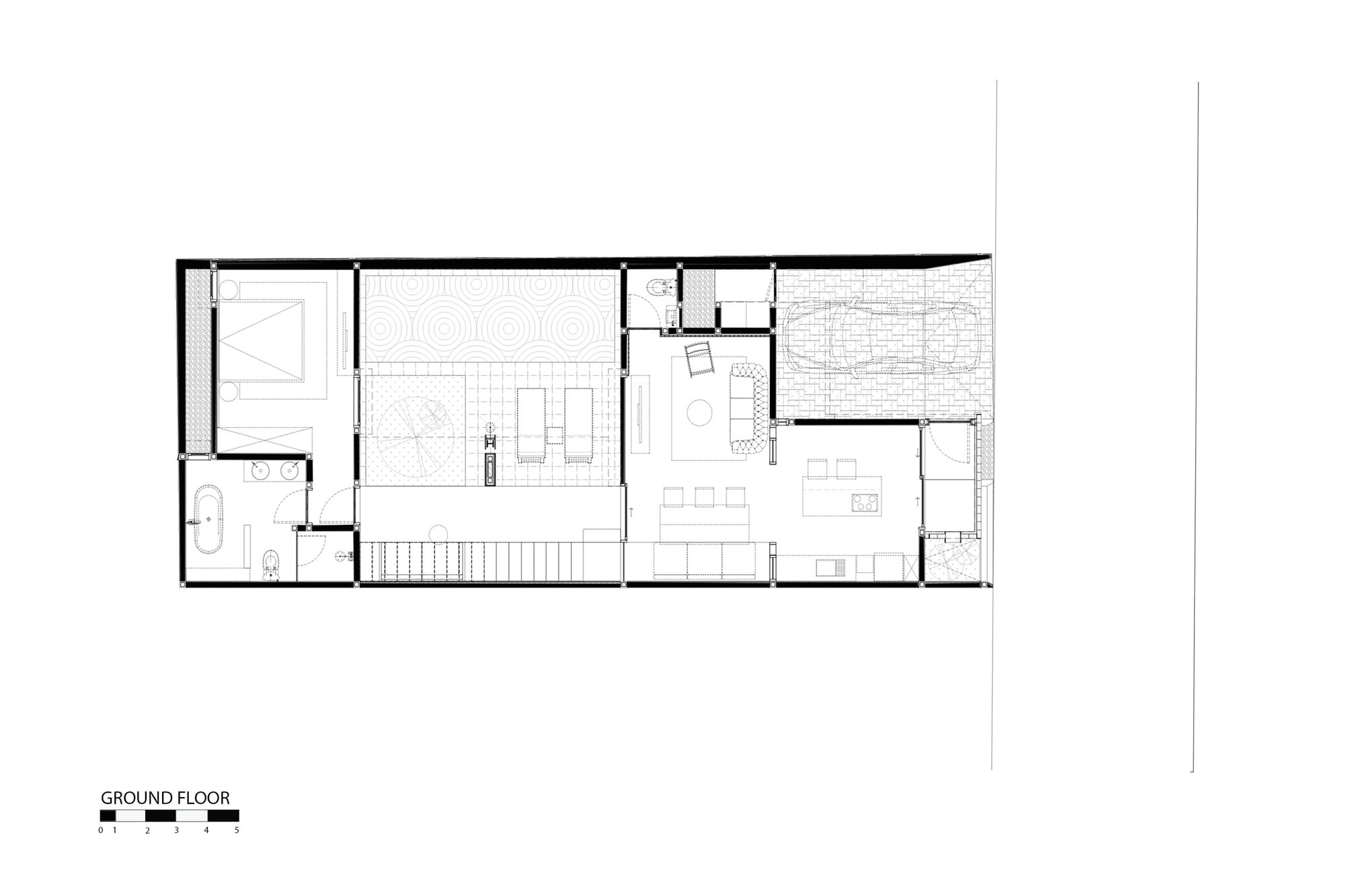
Mặt bằng tầng trệt với không gian sinh hoạt chung mở về sân trong và hồ bơi. Cách bố trí giúp ánh sáng và gió tự nhiên lan tỏa đều khắp biệt thự
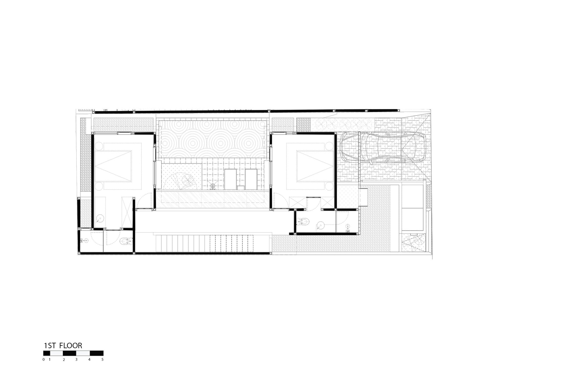
Mặt bằng tầng một tập trung cho các không gian nghỉ ngơi, hướng nhìn vào sân trong. Thiết kế đảm bảo sự riêng tư nhưng không tách rời thiên nhiên
Mặt bằng mái thể hiện cách bố trí khối tích gọn gàng trên khu đất hẹp. Các khoảng trống được giữ lại để thông gió và giảm cảm giác nặng nề cho công trình
>>> Xem thêm: Biệt thự có hồ bơi hướng view núi cực chill, giúp gia chủ tận hưởng kỳ nghỉ ngay tại nhà!
Sipat & Sauh Villa cho thấy rằng sự thoải mái và cảm giác thuộc về quan trọng hơn vẻ ngoài xa xỉ. Với sân trong làm trung tâm, cách sắp xếp không gian gần gũi và vật liệu lọc sáng tinh tế, biệt thự nghỉ dưỡng mang đến một trải nghiệm sống chậm, nhẹ nhàng giữa lòng Bali.
Bạn có thể khám phá thêm nhiều câu chuyện nhà ở thú vị khác tại chuyên mục Chuyện nhà trên Happynest nhé.
Thông tin công trình
Tên ngôi nhà: Villa Sipat & Sauh
Diện tích thực tế (m2): 190
Tổng diện tích (m2): 250
Năm hoàn thành: 2025
Đơn vị thiết kế: Arkana Architects
Đơn vị thi công: Gusti Gunayusa
Đơn vị chụp ảnh: Thomas Irsyad
Địa điểm: Bali, Indonesia
Phong cách thiết kế: Đương đại, tối giản, nhiệt đới
Số tầng: 2
Số phòng ngủ: 2
Loại nhà: Biệt thự
Nguồn: Archdaily
*Để lại thông tin trong box dưới đây, Happynest sẽ giúp bạn kết nối đơn vị thiết kế - thi công phù hợp và nhanh chóng nhất.












































































































