Thay vì lựa chọn một cuộc kiến tạo hoàn toàn mới trên nền đất cũ, Village House tại São Paulo lại là hành trình đi tìm lại sự mạch lạc cho hai căn nhà liền kề vốn từng bị chia cắt bởi những can thiệp rời rạc của quá khứ. Các kiến trúc sư không chỉ đơn thuần gỡ bỏ những bức tường ngăn mà còn thực hiện một cuộc tân trang tỉ mỉ, nhằm biến những khối tích từng bị bỏ phí trở thành một thực thể sống thống nhất và trọn vẹn.
Toàn cảnh Village House với diện mạo tối giản hài hòa cùng nhịp sống của khu phố tại São Paulo
Từ sự phân mảnh đến một thực thể kiến trúc đồng nhất
Đứng trước hiện trạng của một công trình thiếu tính liên kết với hệ thống cầu thang tạm bợ và ánh sáng yếu ớt, đội ngũ kiến trúc sư đã xác định mục tiêu tiên quyết là khôi phục lại logic cho toàn bộ không gian. Chiến lược được áp dụng là sự chắt lọc và kết nối, thay vì cố gắng xây thêm hay mở rộng một cách phô trương. Bằng cách loại bỏ những rào cản không cần thiết, các khu vực sinh hoạt chung giờ đây được kéo lại gần nhau hơn, tạo điều kiện cho những cuộc sum vầy gia đình diễn ra tự nhiên và ấm cúng.
>>> Xem thêm: Hideaway Apartment – ngôi nhà được cải tạo lại, gộp từ 4 căn biệt thự nhà phố liền kề
Sự chuyển tiếp mượt mà giữa các không gian chức năng, nơi ánh sáng và vật liệu gỗ dẫn dắt thị giác
Hệ thống giao thông cũng được tính toán lại một cách khoa học để trở thành trục định hướng chính cho ngôi nhà, giúp giảm thiểu những chuyển động thừa và giải phóng tối đa diện tích sử dụng. Chính sự sắp đặt này đã giúp ánh sáng tự nhiên không còn là một yếu tố thụ động, mà trở thành chất xúc tác tích cực giúp định hình nhịp điệu sinh hoạt và phân tách các khu vực chức năng một cách khéo léo.
Ánh sáng tự nhiên len lỏi qua từng ô cửa, đánh thức sức sống cho các góc khuất trong nhà
Nghệ thuật phân chia không gian không dùng tường ngăn
Một điểm nhấn đầy thông minh trong Village House chính là cách xử lý phần trần nhà. Đặc biệt tại khu vực sinh hoạt chung và phòng studio, trần nhà không chỉ là bề mặt hoàn thiện mà còn đóng vai trò định hình không gian.
Khu vực sinh hoạt chung với thiết kế trần cao và giếng trời, tạo cảm giác thông thoáng tuyệt đối mà không cần tường ngăn
Sự đan xen giữa các món đồ nội thất kinh điển và mảng xanh của khu vườn nội khu
Việc thay đổi độ cao trần kết hợp khéo léo với hệ thống tủ kệ đã giúp phân chia các luồng giao thông và khu vực chức năng một cách tự nhiên mà không cần đến những bức tường khô cứng. Giải pháp này đồng thời giúp tối ưu hóa âm thanh và che giấu các hệ thống hạ tầng kỹ thuật, tạo nên một đường chân trời xuyên suốt, dẫn dắt thị giác người nhìn.
Hệ cửa kính trượt lớn xóa nhòa ranh giới giữa phòng khách và khoảng vườn nội khu xanh mát
Ánh sáng tự nhiên được đánh thức thông qua việc mở rộng các trục nhìn và thiết kế những ô cửa chiến lược. Trong không gian rộng 280m2, mỗi bước chân không còn cảm giác bị đứt quãng, thay vào đó là sự luân chuyển mượt mà của ánh sáng tự nhiên và dòng chảy của những kỷ niệm xưa cũ đang được viết tiếp trong nhịp sống hiện đại.
Hệ tủ sách kịch trần như một bức tường chức năng chạy dọc hành lang
Chất liệu và ký ức - Sự giao thoa giữa các lớp thời gian
Bảng màu vật liệu của ngôi nhà được chọn lọc theo hướng ưu tiên sự tối giản, giàu tính biểu cảm. Peninsula Arquitetura không xóa sạch dấu vết của quá khứ mà giữ lại những gì giá trị nhất từ kết cấu bề mặt, tỷ lệ hình khối đến những điểm căn chỉnh nguyên bản.
Cận cảnh các khối tích hình học và cách xử lý bề mặt tường mộc mạc của công trình
Khu vực bếp sử dụng gạch terrazzo kết hợp cùng hệ tủ màu trung tính
Sự đối thoại giữa chất gỗ teak ấm áp, những mảng tường trắng thanh thoát và nền bê tông hiện đại tạo nên một dòng chảy liên tục về mặt thị giác. Mọi sự thay đổi đều hướng tới một mục đích duy nhất: đạt được sự thống nhất giữa công năng và hình thức, khiến người ở cảm nhận được sự bền vững và chiều sâu của một ngôi nhà có lịch sử.
Nội thất tối giản với những gam màu nhã nhặn, tôn vinh các giá trị nguyên bản của công trình cải tạo
Ô cửa gỗ thấp tạo ra một không gian sống đề cao sự kết nối
Khu vườn trong với các loài thực vật nhiệt đới, tạo lá phổi xanh cho toàn bộ căn nhà
Những bồn cây xanh bên bậu cửa sổ mang thiên nhiên vào sâu trong từng phòng chức năng
>>> Xem thêm: Group Home on Hilltop kết hợp hài hòa giữa không gian kiến trúc, nhà ở và nơi sinh hoạt cộng đồng
Khoảng vườn trên cao - Điểm chạm xanh giữa lòng phố thị
Trong không gian dành cho trẻ nhỏ, hình ảnh ngôi nhà nhỏ được lồng ghép như một điểm tựa về cảm xúc, nuôi dưỡng trí tưởng tượng và sự gắn kết gia đình. Ngay phía trên khu vực này, một sân thượng mới với vườn cây và bồn hoa được thiết kế để đưa thiên nhiên vào sâu trong sinh hoạt hàng ngày.
Phòng studio dành cho trẻ nhỏ được thiết kế ấm cúng với vật liệu gỗ teak, tạo không gian sáng tạo và gần gũi
Khoảng không gian này không chỉ mở rộng diện tích sinh hoạt ngoài trời mà còn mang lại những giá trị thực tế về khí hậu. Thiết kế cho phép luân chuyển không khí xuyên phòng, giảm thiểu đáng kể việc sử dụng điều hòa nhiệt độ trong phần lớn thời gian trong năm. Việc chăm sóc cây cỏ mỗi ngày giờ đây trở thành một thói quen tích cực, giúp nhịp sống gia đình chậm lại, tĩnh lặng và an yên hơn giữa lòng São Paulo náo nhiệt.
Sân thượng được biến chuyển thành một khu vườn nhỏ, nơi gia đình có thể tận hưởng không khí trong lành và thư giãn
Village House lung linh khi chiều buông, một minh chứng cho triết lý kiến trúc nhân văn và sự trân trọng lịch sử
Village House không chỉ là một dự án cải tạo nhà phố thông thường, đó là một sự khẳng định về triết lý kiến trúc nhân văn. Không cần đến những cử chỉ phô trương, sự can thiệp của kiến trúc sư đã hỗ trợ cho những giá trị cốt lõi nhất của cuộc sống: một không gian mạch lạc, ngập tràn ánh sáng và trung thành với những câu chuyện lịch sử tiền thân. Khám phá thêm nhiều công trình độc đáo tại Chuyện nhà.
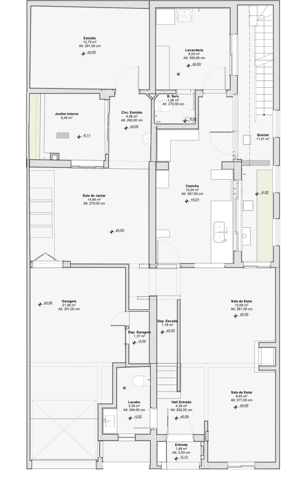
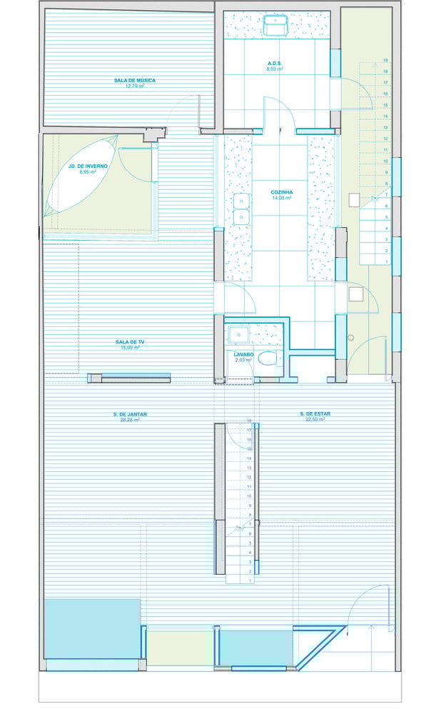
Bản vẽ chi tiết công trình
>>> Xem thêm: Nhà 2 tầng 60m2 được cải tạo lại vừa đầy đủ tiện nghi, vừa đóng góp thêm mảnh xanh cho khu phố
Thông tin công trình:
Tên ngôi nhà: Village House
Tổng diện tích (m2): 280
Năm hoàn thành: 2025
Đơn vị thiết kế: Peninsula Arquitetura
Đơn vị chụp ảnh: Maira Acayaba
Địa điểm: São Paulo, Brazil
Số tầng: 2
Số phòng ngủ: 4
Loại nhà: Nhà ở
Nguồn: Archdaily
*Để lại thông tin trong box dưới đây, Happynest sẽ giúp bạn kết nối đơn vị thiết kế - thi công phù hợp và nhanh chóng nhất.


















































































































