Giữa một khu dân cư đông đúc tại Tokyo, nơi các ngôi nhà san sát và ánh sáng tự nhiên luôn là bài toán khó, kiến trúc sư Hiroyuki Oinuma đã thiết kế chính ngôi nhà của mình như một cách trả lời rất đời thường cho câu hỏi: Làm sao để một ngôi nhà nhỏ vẫn sáng, thoáng và không tách rời thành phố?
Trên khu đất chỉ 124m2, ngôi nhà hoàn thành năm 2025 nổi bật với Kazari Garden - một sân hiên cong vươn ra mặt phố, vừa giúp đón sáng cho nhà hướng Bắc, vừa tạo nên những kết nối tự nhiên giữa con người, không gian sống và đô thị xung quanh.
Những ý tưởng chính từ nhà 124m2
-
Thiết kế Kazari Garden (sân hiên cong) giúp nhà hướng Bắc vẫn có ánh sáng và tầm nhìn sinh động.
-
Tổ chức không gian theo split-level (không gian chia cao độ) để tận dụng diện tích nhỏ.
-
Hai khu vườn trước - sau đóng vai trò dẫn hướng di chuyển và ánh sáng trong nhà.
-
Đưa đồ vật cá nhân, cây xanh vào kiến trúc như một dạng “trang trí sống”.
-
Ngôi nhà không khép kín mà mở ra, trở thành một phần mềm mại của khu phố.
Ý tưởng thiết kế: Khi “Kazari” không chỉ là trang trí
Với HOAA / Hiroyuki Oinuma Architect & Associates, “Kazari” không đơn thuần là trang trí theo nghĩa hình thức. Trong tiếng Nhật, Kazari có thể hiểu là sự tô điểm, nhưng trong công trình này, khái niệm ấy được mở rộng thành cách con người mang những điều mình trân trọng vào không gian sống: cây xanh, sách, đồ gốm, ảnh chụp và ký ức.
Thay vì gắn các chi tiết trang trí lên kiến trúc, nhóm thiết kế lựa chọn để chính cách sử dụng không gian, cách con người di chuyển, dừng lại và tương tác với ngôi nhà trở thành yếu tố tạo nên giá trị thẩm mỹ. Nhờ đó, ngôi nhà mang cảm giác gần gũi, sống động và dễ tiếp cận, kể cả với những người không am hiểu về kiến trúc.
Mặt tiền ngôi nhà nổi bật với Kazari Garden - sân hiên cong bao quanh tầng 2, được phủ cây xanh như một lớp đệm mềm giữa nhà ở và đường phố. Hình khối uốn lượn giúp công trình trông nhẹ nhàng hơn giữa khu dân cư dày đặc
Nhìn từ trên cao, Kazari Garden hiện rõ như một vòng kết nối xanh bao lấy ngôi nhà hướng Bắc. Giải pháp này giúp mở rộng không gian sử dụng ngoài trời mà không cần tăng diện tích xây dựng
>>> Xem thêm: 10 mẫu sân vườn trước nhà giúp giảm nhiệt, giảm ồn mà gia chủ nào cũng muốn sở hữu
Bối cảnh khu đất: Nhà hướng Bắc giữa khu dân cư chật hẹp
Ngôi nhà nằm trong khu vực mà 3 mặt đều bị các công trình lân cận bao quanh, chỉ còn mặt Bắc giáp đường. Với nhiều gia đình, hướng Bắc thường bị coi là bất lợi vì khó lấy nắng, dễ tối và thiếu sinh khí. Tuy nhiên, thay vì né tránh, kiến trúc sư đã chọn mặt Bắc làm mặt chính của ngôi nhà, coi đây là cơ hội để thiết lập mối quan hệ trực tiếp với không gian đô thị.
Bài toán đặt ra không chỉ là ánh sáng, mà còn là cảm giác sống: Làm sao để ngôi nhà không khép kín, không tự cô lập, mà vẫn giữ được sự riêng tư cần thiết.
Từ sân hiên cong tầng 2, tầm nhìn được dẫn dọc theo con phố nhỏ của khu dân cư, thay vì bị dừng lại ở mặt tiền nhà đối diện. Cây xanh trồng xen kẽ giúp giảm cảm giác trực diện với đô thị và tạo chiều sâu thị giác
Lối tiếp cận tầng trệt được che phủ bởi kết cấu thép mảnh và cây xanh, tạo cảm giác như bước vào một khu vườn nhỏ thay vì một ngôi nhà phố. Không gian chuyển tiếp này làm mềm ranh giới giữa trong và ngoài
Kazari Garden - Sân hiên cong dẫn sáng và mở tầm nhìn
Kazari Garden là một curved terrace (sân hiên cong), được mở rộng từ cửa sổ lớn ở tầng 2 và vươn ra phía mặt đường. Hình dạng uốn lượn của sân hiên không nhằm mục đích tạo hình thuần túy, mà xuất phát từ nhu cầu rất thực tế trong bối cảnh đô thị chật hẹp.
Nhờ hình khối uốn lượn mềm mại, Kazari Garden không chỉ là một không gian ngoài trời bổ sung mà còn hoạt động như một bộ thu ánh sáng cho toàn bộ tầng 2. Đường cong của sân hiên giúp ánh sáng tự nhiên có thể tiếp cận từ nhiều góc khác nhau trong ngày, thay vì chỉ chiếu thẳng theo một hướng cố định.
Mặt tiền ngôi nhà vào thời điểm chạng vạng cho thấy Kazari Garden phát huy vai trò như một không gian sinh hoạt mở. Ánh sáng từ bên trong hắt ra qua lớp cây xanh khiến công trình trở nên ấm áp và thân thiện với khu phố
Khi nhìn từ bên trong ngôi nhà ra ngoài, Kazari Garden tạo nên chiều sâu thị giác rõ rệt, khiến tầm nhìn không bị dừng lại đột ngột ở mặt đường mà được dẫn dắt qua lớp cây xanh, ánh sáng phản chiếu và không gian mở phía trước. Đồng thời, sân hiên này còn đóng vai trò như một lớp đệm mềm mại giữa nhà ở và đường phố, giúp giảm cảm giác trực diện với đô thị.
Từ cửa sổ phòng ăn hướng Bắc, thay vì chỉ đối diện với khung cảnh cứng nhắc của mặt đường, gia chủ có thể cảm nhận được sự chuyển động nhẹ nhàng của ánh sáng, cây cối và không khí ngoài trời, khiến không gian sinh hoạt trở nên sinh động và dễ chịu hơn.
>>> Xem thêm: 5 ý tưởng thiết kế sân vườn trước nhà, không chỉ đẹp mà còn là khoảng đệm hoàn hảo
Tổ chức không gian bên trong: Split-level và giao thông xoắn ốc
Bên trong ngôi nhà, kiến trúc sư sử dụng split-level (không gian chia cao độ) - cách tổ chức các sàn lệch nhau theo từng nửa tầng thay vì xếp chồng cứng nhắc. Cách làm này cho phép ngôi nhà tận dụng hiệu quả sự chênh lệch tự nhiên của khu đất, đồng thời tạo cảm giác không gian rộng và thoáng hơn so với diện tích thực tế.
Nhờ các sàn lệch tầng, ánh sáng và tầm nhìn có thể lan tỏa liên tục giữa các khu vực sinh hoạt, thay vì bị chia cắt thành từng phòng riêng biệt. Việc di chuyển trong nhà không diễn ra theo một trục thẳng đơn điệu, mà được tổ chức theo dạng spiral circulation (giao thông xoắn ốc).
Trong quá trình di chuyển, mỗi bước đi đều mở ra một góc nhìn khác nhau: khi thì hướng về Kazari Garden phía trước với ánh sáng và cây xanh, khi thì quay về khu vườn sau yên tĩnh hơn. Nhịp di chuyển chậm rãi này khiến việc đi lại trong nhà trở thành một trải nghiệm không gian liên tục, thay vì chỉ là hoạt động chức năng.
Không gian sinh hoạt bên trong được tổ chức theo dạng split-level (chia cao độ), với các sàn lệch nhau để ánh sáng và tầm nhìn lan tỏa liên tục. Chất liệu gỗ bao phủ trần và sàn mang lại cảm giác ấm áp, gần gũi
Khu bếp và bàn ăn được bố trí mở, kết nối trực tiếp với các khoảng thông tầng và kệ trưng bày. Ánh sáng tự nhiên được đưa vào từ nhiều hướng, giúp không gian luôn sáng dù diện tích không lớn
Từ bàn ăn, có thể quan sát các lớp không gian xếp chồng theo chiều cao, tạo cảm giác rộng rãi hơn so với diện tích thực tế. Hệ kệ gỗ lưu trữ sách và đồ dùng sinh hoạt trở thành một phần của kiến trúc
Không gian làm việc được đặt cạnh cầu thang và hệ kệ sách, cho phép quan sát nhiều lớp không gian xếp chồng theo chiều cao. Cách bố trí này giúp khu vực làm việc không bị tách biệt mà luôn gắn với sinh hoạt chung của ngôi nhà
Bàn làm việc bằng gỗ được đặt dưới trần thấp, tạo cảm giác tập trung và yên tĩnh. Rèm vải dày phía sau giúp điều tiết ánh sáng và tăng tính riêng tư khi cần
Góc nhìn từ khu vực bếp cho thấy sự liên kết mạch lạc giữa các cao độ và không gian sinh hoạt chung. Cây xanh được đưa vào nội thất như một yếu tố cân bằng giữa vật liệu gỗ và kết cấu thép
Cầu thang gỗ kết hợp kết cấu thép mảnh dẫn lên các tầng trên theo dạng spiral circulation (giao thông xoắn ốc). Mỗi bước di chuyển đều mở ra một góc nhìn mới về không gian và cây xanh xung quanh
Không gian sống và những tương tác đời thường
Một trong những hình ảnh thể hiện rõ triết lý thiết kế của ngôi nhà là khoảnh khắc gia chủ bước ra Kazari Garden để tưới cây. Chính những hoạt động rất đời thường này lại tạo ra sự kết nối tự nhiên với môi trường xung quanh: người đi đường dừng lại trò chuyện, trẻ em tò mò quan sát khu vườn cong lạ mắt.
Ngôi nhà vì thế không hoàn toàn khép kín như nhiều nhà ở đô thị khác, mà trở thành một thực thể mở, nơi ranh giới giữa không gian riêng tư và đời sống phố thị được làm mềm đi bằng cây xanh, ánh sáng và sự hiện diện thân thiện của con người.
>>> Xem thêm: Tổng hợp mẫu nhà vườn kết hợp không gian thư giãn, giải trí ngoài trời
Đồ vật cá nhân như một phần của kiến trúc
Dọc theo các lối đi trong nhà, hệ kệ trưng bày được bố trí để đặt sách, đồ gốm, ảnh chụp và cây xanh. Những vật dụng này không chỉ mang tính trang trí, mà còn được xem là biểu trưng cho hành trình sống của gia chủ.
Cách sắp đặt này khiến ngôi nhà mang cảm giác như một small art museum (bảo tàng nghệ thuật thu nhỏ), nơi mỗi góc nhỏ đều gợi nhắc đến ký ức và trải nghiệm cá nhân. Không gian vì thế có một độ “căng” vừa đủ, khuyến khích con người sống chậm lại, quan sát nhiều hơn và trân trọng những giá trị quen thuộc trong đời sống hàng ngày.
Các kệ trưng bày dọc lối đi được sử dụng để đặt sách, cây và đồ vật cá nhân, khiến ngôi nhà mang cảm giác như một small art museum (bảo tàng nghệ thuật thu nhỏ). Đồ đạc sinh hoạt trở thành yếu tố tạo chiều sâu cảm xúc cho không gian sống
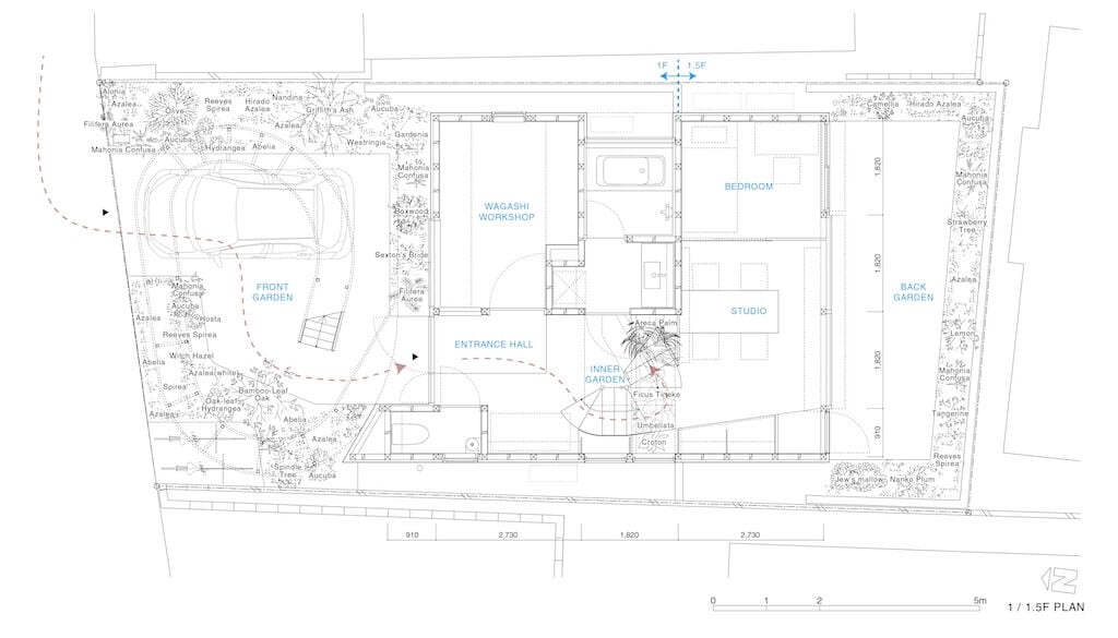
Mặt bằng tầng dưới thể hiện rõ cách tổ chức không gian xoay quanh các khu vườn trước, trong và sau. Lối di chuyển được uốn cong nhẹ, tránh cảm giác hành lang thẳng và khép kín
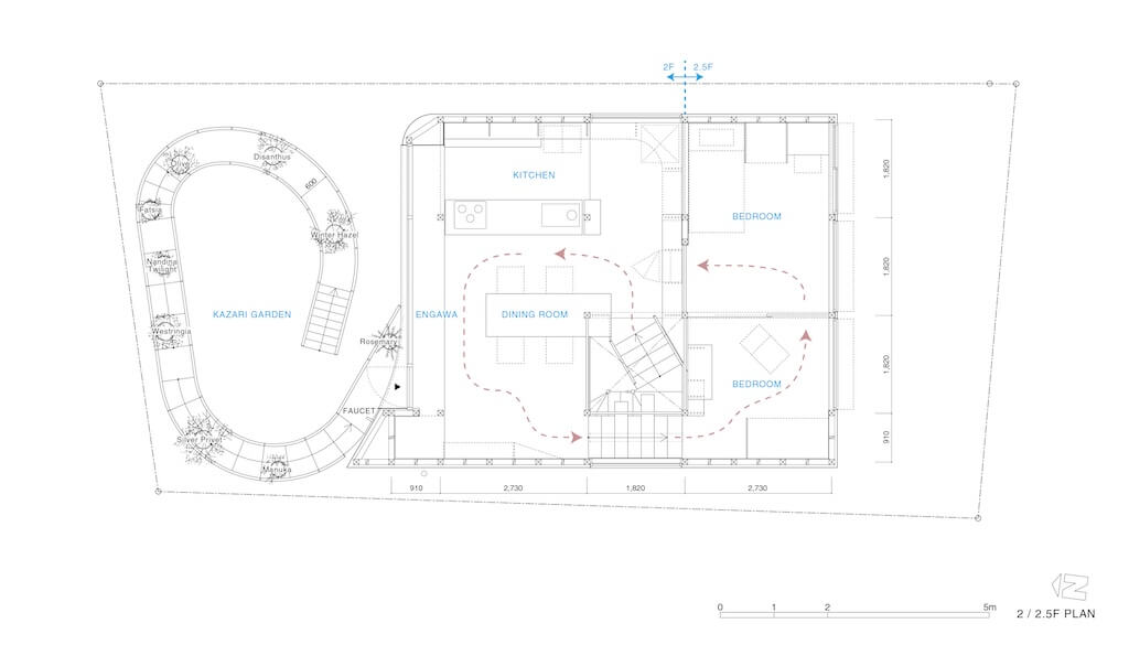
Mặt bằng tầng trên cho thấy mối quan hệ trực tiếp giữa phòng ăn, bếp và Kazari Garden. Không gian sinh hoạt chung được đặt ở vị trí trung tâm để kết nối ánh sáng, tầm nhìn và giao thông trong nhà
Phối cảnh axonometric (hình chiếu không gian ba chiều) minh họa rõ cấu trúc split-level và hệ giao thông xoắn ốc bên trong ngôi nhà. Kazari Garden được thể hiện như một phần mở rộng của không gian sống chứ không phải khu vực phụ trợ
Bản vẽ mặt cắt cho thấy cách ánh sáng tự nhiên được dẫn từ sân hiên cong vào sâu bên trong công trình. Sự liên thông giữa các cao độ giúp không gian nhỏ vẫn thông thoáng và có chiều sâu
Ngôi nhà hướng Bắc tại Tokyo cho thấy rằng, ngay cả trong bối cảnh đô thị dày đặc, kiến trúc vẫn có thể tạo ra ánh sáng, sự kết nối và cảm giác sống dễ chịu nếu giải pháp được đặt đúng chỗ. Với Kazari Garden, ngôi nhà không chỉ giải quyết bài toán kỹ thuật về ánh sáng và không gian, mà còn mở ra một cách sống cởi mở hơn giữa con người và thành phố.
Cùng khám phá thêm nhiều không gian sống giàu cảm hứng tại chuyên mục Chuyện nhà trên Happynest nhé.
Thông tin công trình
Tên ngôi nhà: House in Nakano
Diện tích thực tế (m2): 96
Tổng diện tích khu đất (m2): 124
Năm hoàn thành: 2025
Đơn vị thiết kế: HOAA / Hiroyuki Oinuma Architect & Associates
Đơn vị thi công: Yamashita Construction
Đơn vị chụp ảnh: Takuya Seki
Địa điểm: Nakano, Tokyo, Nhật Bản
Phong cách thiết kế: Hiện đại
Số tầng: 2
Loại nhà: Nhà phố, nhà ở đơn lập kết hợp văn phòng
Nguồn: amazingarchitecture
*Để lại thông tin trong box dưới đây, Happynest sẽ giúp bạn kết nối đơn vị thiết kế - thi công phù hợp và nhanh chóng nhất.









































































































