Dưới chân dãy Western Ghats, tại Ahilyanagar (bang Maharashtra, Ấn Độ), Ikyam Farmhouse được xây dựng như một ngôi nhà nghỉ cuối tuần dành cho gia đình nhiều thế hệ.
Thay vì tạo ra một công trình nổi bật để phô diễn hình thức, kiến trúc sư lựa chọn cách làm ngược lại: để ngôi nhà lặng lẽ hòa vào địa hình đồi dốc, nông trại và thảm thực vật xung quanh. Trên khu đất rộng gần 1 acre (khoảng 4.047m2), công trình chỉ chiếm một phần diện tích vừa đủ, tập trung vào ánh sáng tự nhiên, thông gió và trải nghiệm sống chậm rãi, thư thái.
Các ý tưởng chính của Ikyam Farmhouse
-
Ngôi nhà được thiết kế theo địa hình dốc tự nhiên, không san phẳng đất.
-
Không gian mở theo phương ngang, ưu tiên tầm nhìn ra đồi và ruộng.
-
Ứng dụng Passive Design (thiết kế thụ động - giảm phụ thuộc điều hòa, tận dụng gió và ánh sáng).
-
Sử dụng vật liệu địa phương để tạo cảm giác bền vững và gần gũi.
-
Hiên và không gian trung gian trở thành nơi sinh hoạt quan trọng nhất.
Khi kiến trúc chọn cách “nhường chỗ” cho cảnh quan
Điểm khởi đầu của Ikyam Farmhouse không phải là hình dáng ngôi nhà, mà là địa hình khu đất. Khu đất nằm trên sườn đồi với độ dốc rõ rệt, phía dưới là ruộng canh tác, phía trên là đồi cây tự nhiên. Thay vì san phẳng toàn bộ để xây dựng cho thuận tiện, kiến trúc sư giữ nguyên địa hình và tổ chức công trình theo dạng terraced compound (tổ hợp không gian bậc thang - các khối nhà và sân vườn được bố trí theo cao độ tự nhiên).
Cách làm này mang lại nhiều lợi ích rõ rệt, giúp ngôi nhà giảm tác động tiêu cực đến môi trường, hạn chế việc đào đắp đất với quy mô lớn, đồng thời tạo nên nhiều lớp không gian mở, cho phép các khu vực bên trong hướng tầm nhìn ra cảnh quan xung quanh một cách linh hoạt và tự nhiên hơn.
Tổng diện tích xây dựng khoảng 8.180ft² (xấp xỉ 760m2), nhưng nhờ trải dài theo phương ngang và chia nhỏ khối tích, công trình không tạo cảm giác to hay nặng nề khi nhìn từ xa.
Mặt tiền Ikyam Farmhouse với hình khối ngang thấp, mái bê tông vươn rộng tạo bóng đổ sâu trước hiên. Tường ốp đá bazan tối màu kết hợp mảng trát sáng giúp ngôi nhà hòa vào địa hình đồi núi phía sau
Toàn cảnh khu nhà nhìn từ sườn đồi, cho thấy công trình nằm gọn giữa ruộng canh tác và thảm cây tự nhiên. Cách bố trí trải dài theo phương ngang giúp ngôi nhà không lấn át cảnh quan xung quanh
Ikyam Farmhouse được tổ chức theo địa hình bậc thang, giữ nguyên độ dốc tự nhiên của khu đất. Hàng rào đá thấp và sân vườn phân lớp tạo ranh giới mềm giữa nhà và nông trại
>>> Xem thêm: Biệt thự nghỉ dưỡng là gì? Xu hướng đầu tư và thiết kế nổi bật 2025
Mặt bằng tuyến tính – Dễ hiểu, dễ sử dụng, dễ cảm nhận
Toàn bộ ngôi nhà được tổ chức theo linear spine - trục không gian tuyến tính, đóng vai trò là xương sống kết nối các khu vực chức năng. Có thể hiểu một cách đơn giản, người sử dụng di chuyển dọc theo một trục rõ ràng, và các không gian quan trọng sẽ lần lượt mở ra ở hai bên theo trình tự mạch lạc.
Trong đó, khu sinh hoạt chung được đặt tại vị trí trung tâm để thuận tiện kết nối, khu phòng ngủ bố trí theo dạng lệch tầng nhằm đảm bảo sự yên tĩnh và riêng tư, còn các không gian phụ trợ và bãi đỗ xe được đẩy về rìa khu đất để giảm tác động đến khu vực ở chính.
Đặc biệt, lối đi lát đá uốn theo địa hình đã biến việc di chuyển trong nhà không còn đơn thuần là “đi từ điểm A đến điểm B”, mà trở thành một trải nghiệm chậm rãi, nơi người ở có thể quan sát cây cối, cảm nhận ánh sáng và không khí xung quanh trong từng bước chân.
Lối tiếp cận chính dẫn vào nhà qua khoảng sân lát đá rộng, kết nối trực tiếp với hiên có mái che. Không gian chuyển tiếp này giúp giảm nắng và tạo cảm giác vào nhà chậm rãi, thư thái
Mặt đứng phụ của ngôi nhà với ban công dài và hệ cửa gỗ mở ra cảnh quan đồi núi. Thiết kế ưu tiên ánh sáng tự nhiên và thông gió, hạn chế cảm giác khép kín
Khối nhà 2 tầng với mái đua lớn che nắng cho ban công và tầng trệt. Tỷ lệ cửa sổ ngang giúp không gian bên trong luôn nhìn thấy cảnh quan mà không bị chói sáng
Phòng khách – Không phô trương, nhưng là “trái tim” của ngôi nhà
Phòng khách tại Ikyam Farmhouse không được thiết kế quá lớn hay cầu kỳ. Thay vào đó, nó đóng vai trò như một pivot space (không gian xoay - nơi kết nối và điều hướng các khu vực khác).
Từ phòng khách, người ở có thể bước ra hiên râm mát, đi xuống khu vườn và khu nông trại phía dưới, hoặc đơn giản là ngồi lại và quan sát cảnh quan thay đổi theo từng thời điểm trong ngày.
Nhờ cách tổ chức không gian này, phòng khách luôn giữ được sự thông thoáng và mát mẻ, hạn chế cảm giác bí bách và hiếm khi phải sử dụng điều hòa, ngay cả trong những ngày thời tiết oi nóng.
Phòng khách tối giản liên thông giữa phòng ăn, bếp và cầu thang. Nội thất gỗ được sử dụng đồng bộ để tạo cảm giác ấm áp
Góc sinh hoạt trong nhà với ánh sáng tự nhiên dịu, chiếu qua cửa sổ gỗ và rèm mỏng. Nội thất gỗ tối giản tạo cảm giác ấm áp, yên tĩnh cho việc nghỉ ngơi và đọc sách
Hiên nhà và verandah – Không gian sống quan trọng hơn cả phòng kín
Một trong những yếu tố dễ nhận thấy nhất của công trình là hệ verandah (hiên nhà sâu - không gian có mái che, nằm giữa trong và ngoài). Đây không chỉ là chi tiết kiến trúc, mà là trái tim sinh hoạt của cả ngôi nhà.
Các hiên sâu (verandah) đóng vai trò quan trọng trong tổ chức không gian, giúp che chắn nắng trực tiếp, đặc biệt là nắng hướng Tây, đồng thời tạo lớp đệm vi khí hậu trước khi bước vào các phòng kín. Đây cũng là khu vực lý tưởng để ngồi đọc sách, trò chuyện hoặc nghỉ ngơi trong nhịp sống thường ngày.
Cách sử dụng verandah này gợi nhắc đến kiến trúc truyền thống vùng Maharashtra, nơi con người dành nhiều thời gian sinh hoạt tại các không gian trung gian, thay vì khép kín hoàn toàn trong những căn phòng đóng kín.
Hiên rộng lát đá là nơi ngồi nghỉ, trò chuyện và ngắm cảnh đồi xung quanh. Cột tròn đơn giản và mái bê tông phẳng tạo cảm giác chắc chắn nhưng không nặng nề
Không gian hiên tầng trên mở ra tầm nhìn xa, với ghế thư giãn đặt sát tường đá bazan. Đây là khoảng ở trung gian, vừa che mưa nắng vừa kết nối trực tiếp với thiên nhiên
Phòng ngủ – Riêng tư nhưng không tách rời thiên nhiên
Các phòng ngủ được bố trí khéo léo để mỗi không gian đều sở hữu tầm nhìn rõ ràng hướng ra đồi núi hoặc khu ruộng canh tác xung quanh. Thay vì sử dụng các mảng kính lớn hoàn toàn, kiến trúc sư đã kết hợp linh hoạt giữa cửa gỗ, hệ chớp và rèm, giúp kiểm soát ánh sáng một cách chủ động hơn.
Nhờ cách xử lý này, ánh sáng buổi sáng trở nên dịu nhẹ, không gây chói, trong khi không gian ban đêm luôn mát mẻ và yên tĩnh. Quan trọng hơn, người ở có thể cảm nhận rõ sự chuyển biến của thời tiết và cảnh quan theo từng thời điểm, tạo nên trải nghiệm sống gần gũi với thiên nhiên.
Phòng ngủ sử dụng bảng màu trung tính, nhấn bằng gỗ tự nhiên ở giường và đầu giường. Ánh nắng chiếu xiên qua cửa tạo bóng đổ nhẹ, mang lại cảm giác thư thái vào buổi sáng
Phòng ngủ mở ra ban công với hệ cửa gỗ lớn, đón ánh nắng sớm và tầm nhìn ra sườn đồi xanh mát. Ánh sáng xuyên qua rèm mỏng tạo cảm giác yên tĩnh, thư giãn cho không gian nghỉ ngơi
Góc làm việc nhỏ gọn trong phòng ngủ, tích hợp bàn gỗ và hệ lưu trữ liền tường. Bảng màu trung tính kết hợp gỗ tự nhiên giúp không gian gọn gàng và dễ sử dụng hằng ngày
Phòng ngủ nhìn trực diện ra sân và cảnh quan bên ngoài qua hệ cửa kính khung gỗ. Cách bố trí giường và cửa giúp căn phòng luôn sáng, thoáng nhưng không bị nắng gắt
>>> Xem thêm: Biệt thự nghỉ dưỡng 93m2 hình chữ A thiết kế hướng trọn tầm nhìn ra biển
Vật liệu – Đơn giản, địa phương và bền bỉ theo thời gian
Ngôi nhà sử dụng bảng vật liệu rất tiết chế, dễ nhận biết và dễ hiểu:
-
Basalt stone (đá bazan địa phương - đá núi lửa màu sẫm): dùng ốp tường, tạo cảm giác vững chãi
-
White plastered walls (tường trát sơn trắng): giúp không gian sáng và nhẹ hơn
-
Kota stone flooring (đá Kota - loại đá tự nhiên phổ biến tại Ấn Độ): dùng lát sàn
-
Teak wood (gỗ teak - gỗ tự nhiên bền, chịu ẩm tốt): dùng cho cửa, nội thất và cầu thang
Sự kết hợp giữa đá sẫm, tường sáng và gỗ ấm giúp không gian cân bằng, không lạnh lẽo nhưng cũng không nặng nề.
Cầu thang gỗ được thiết kế chắc chắn với lan can đặc, dẫn ánh nhìn lên các tầng trên. Ánh sáng tự nhiên chiếu dọc theo vách cầu thang làm nổi bật chất liệu gỗ và sàn đá
Không gian cầu thang nhìn từ bên hông, cho thấy cấu trúc bậc thang rõ ràng và tỷ lệ vừa phải. Thiết kế ưu tiên an toàn, dễ di chuyển cho mọi lứa tuổi trong gia đình
Góc nhìn từ khu bếp hướng về cầu thang, tạo sự kết nối thị giác giữa các khu chức năng. Lan can gỗ và bậc thang trở thành điểm nhấn nội thất trong không gian sinh hoạt chung.
Cầu thang nhìn từ trên cao xuống, cho thấy trục giao thông trung tâm của ngôi nhà. Ánh sáng tự nhiên giúp không gian di chuyển luôn sáng và dễ định hướng
Phòng tắm sử dụng đá màu trung tính kết hợp cửa sổ gỗ nhỏ lấy sáng tự nhiên. Thiết kế đơn giản, dễ vệ sinh và mang lại cảm giác mát mẻ khi sử dụng
Không gian ăn uống với bàn gỗ dài, phù hợp cho các bữa ăn đông người trong gia đình. Cầu thang phía sau được giữ trong tầm nhìn, tạo cảm giác không gian liền mạch
Khu bếp mở với đảo bếp trung tâm, bố trí gọn gàng và dễ thao tác. Cửa sổ lớn giúp bếp luôn thoáng khí và đủ ánh sáng ban ngày
Thiết kế khí hậu – Ít thiết bị, nhiều giải pháp tự nhiên
Ikyam Farmhouse áp dụng Passive Design (thiết kế thụ động - tận dụng yếu tố tự nhiên thay vì máy móc):
-
Hạn chế mặt đứng hướng Tây để giảm nắng gắt.
-
Bố trí cửa đối diện tạo cross-ventilation (thông gió chéo – gió đi xuyên qua nhà).
-
Thu gom nước mưa phục vụ tưới tiêu.
-
Giữ nguyên địa hình để tránh xói mòn và thoát nước tự nhiên.
Nhờ đó, ngôi nhà vận hành tiết kiệm năng lượng và phù hợp với khí hậu địa phương về lâu dài.
Trải nghiệm sống – Một ngôi nhà để chậm lại
Điều đáng nhớ nhất ở Ikyam Farmhouse không phải là hình thức kiến trúc, mà là cảm giác khi sống trong đó. Từ việc ngồi trên hiên nhìn nắng trượt trên sàn đá, đến khoảnh khắc đọc báo trong phòng khách hay nghỉ ngơi trong phòng ngủ yên tĩnh - mọi chi tiết đều hướng đến sự thư thái, chậm rãi và kết nối với thiên nhiên.
Sơ đồ site plan thể hiện lối vào chính, khu đỗ xe và các khoảng sân vườn bao quanh công trình. Cách bố trí giúp ngôi nhà có nhiều lớp không gian chuyển tiếp trước khi vào khu ở
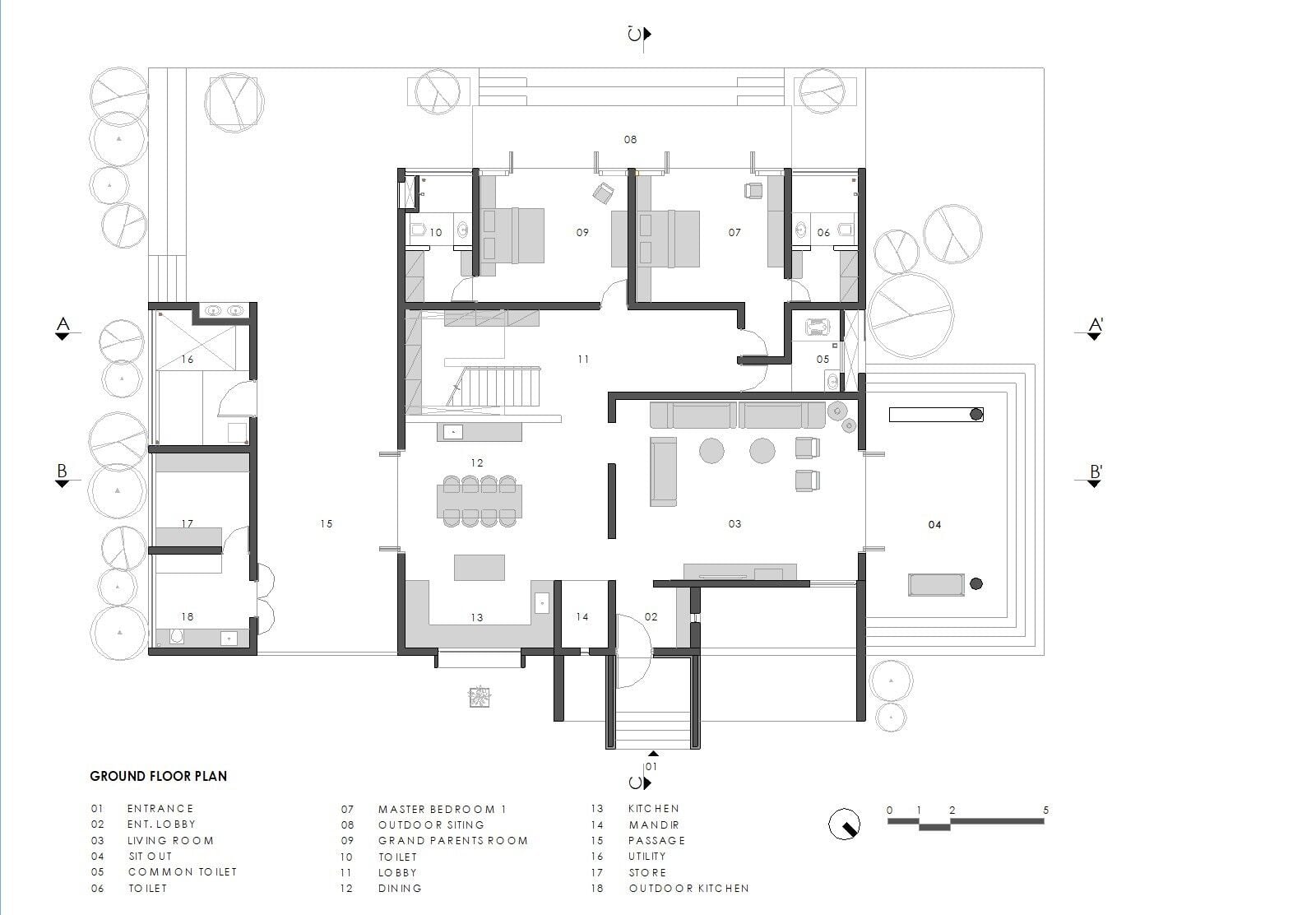
Mặt bằng tầng trệt cho thấy cách tổ chức không gian sinh hoạt chính xoay quanh phòng khách, phòng ăn và các phòng ngủ, kết nối trực tiếp với sân và hiên ngoài trời. Lối đi và các khoảng đệm được bố trí rõ ràng, giúp ngôi nhà thông thoáng và dễ sử dụng cho nhiều thế hệ
Mặt bằng tầng trên tập trung vào các phòng ngủ riêng tư, phòng làm việc và không gian thiền, mở ra ban công và sân thượng rộng. Cách bố trí này tạo sự tách biệt vừa đủ giữa sinh hoạt chung và nghỉ ngơi, đồng thời giữ kết nối với cảnh quan bên ngoài
>>> Xem thêm: Biệt thự nghỉ dưỡng hình chữ L nhìn ra hồ cực sang chảnh tại Ba Vì, chi phí xây dựng khoảng 10 tỷ đồng
Ikyam Farmhouse cho thấy kiến trúc đương đại không cần phải phô trương để trở nên giá trị. Bằng cách tôn trọng địa hình, khí hậu và lối sống bản địa, ngôi nhà đạt được sự bền vững, dễ sử dụng và giàu cảm xúc. Đây là một gợi ý đáng tham khảo cho những ai đang tìm kiếm một biệt thự nghỉ dưỡng gắn với thiên nhiên, sống lâu dài và ít phụ thuộc công nghệ.
Cùng khám phá thêm nhiều ngôi nhà truyền cảm hứng tại chuyên mục Chuyện nhà.
Thông tin công trình
Tên ngôi nhà: Ikyam Farmhouse
Diện tích thực tế (m2): 760
Tổng diện tích khu đất (m2): 4.047
Đơn vị thiết kế: Aher Design Studio
Địa điểm: Ahilyanagar, Maharashtra, Ấn Độ
Phong cách thiết kế: Đương đại, lấy cảm hứng từ kiến trúc bản địa
Số tầng: 2
Loại nhà: Biệt thự
Nguồn: archello
*Để lại thông tin trong box dưới đây, Happynest sẽ giúp bạn kết nối đơn vị thiết kế - thi công phù hợp và nhanh chóng nhất.















































































































