Tọa lạc trong một khu dân cư có cổng bảo vệ, gồm nhiều ngôi nhà truyền thống được bao quanh bởi cây cối xanh mát, Oval House nổi bật như một khối hình học lớn ẩn chứa một khoảng sân hình oval bên trong. Không gian sống được tổ chức xung quanh sân trong, mang lại sự liên kết tự nhiên giữa các khu vực. Thiết kế này không chỉ chú trọng vào công năng mà còn đề cao sự trải nghiệm, với các không gian linh hoạt thay đổi theo thời gian và nhu cầu.
Oval House nổi bật với dạng khối hộp kín nhưng không gian sống bên trong lại thoáng đãng đến bất ngờ
Oval House - Ngôi nhà hình học với sân trong oval
Mục tiêu khi thiết kế Oval House là tạo ra không gian sống hòa hợp với thiên nhiên nhưng vẫn giữ được tính thẩm mỹ hình học. Mặc dù mặt tiền ngôi nhà là một khối hình hộp cứng nhắc, nhưng ngay khi bước vào, mọi người sẽ ngay lập tức cảm nhận sự mềm mại và linh hoạt trong cách tổ chức không gian nội thất. Ngôi nhà có một sân trong oval nổi bật, đóng vai trò là trái tim kết nối mọi không gian trong nhà.
>>> Xem thêm: Nhà vườn 1 tầng “khép kín”, bên trong mở ra khoảng trời xanh mướt khiến bao người mơ ước
Mặt tiền Oval House nổi bật với những đường nét hình học sắc nét và tương đối khép kín
Càng đi sâu vào bên trong, Oval House càng mở ra những điều thú vị
Không gian bên trong nhà mở thoáng đến bất ngờ
Thậm chí, ngôi nhà còn có một khoảng sân rộng và hồ bơi phía sau nhà
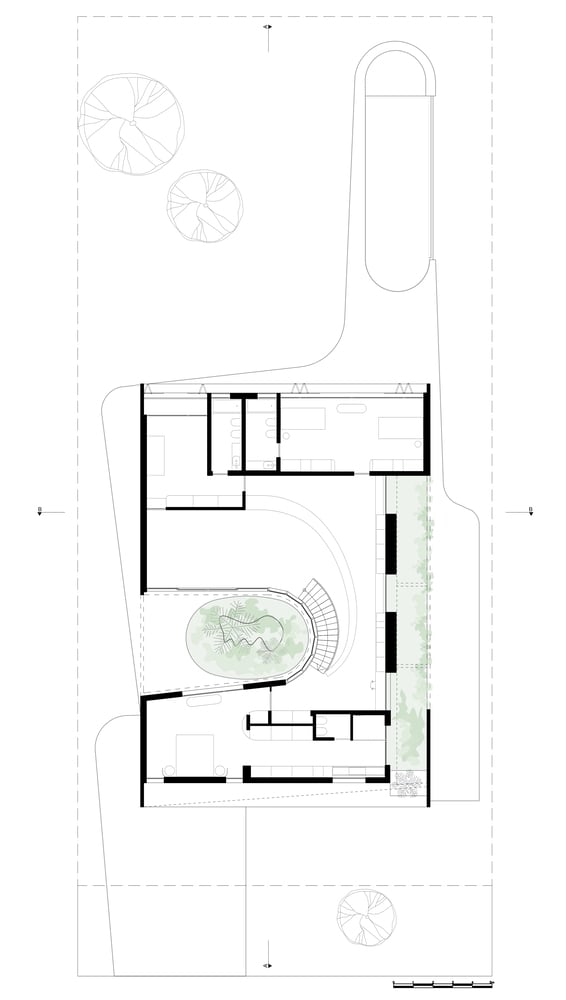
Các bản vẽ phác thảo thiết kế Oval House
Không gian sống linh hoạt được thiết kế xung quanh khoảng sân vườn trong nhà
Khi thiết kế Oval House, các KTS chú trọng vào việc tạo ra các không gian liên kết trực tiếp với nhau, tăng trải nghiệm thay vì đơn giản là các khu vực chức năng khép kín. Từ lối vào đến các phòng sinh hoạt, mọi góc nhìn đều được tổ chức xung quanh sân trong oval, mang lại một không gian sống liền mạch và tự nhiên.
Khu vực tiếp đón và không gian sinh hoạt chung có trần cao gấp đôi thông thoáng
Khu vực tiếp đón tại lối vào mở ra không gian phòng khách và phòng ăn với trần nhà cao gấp đôi, mang lại cảm giác thông thoáng, đồng thời mở rộng tầm nhìn ra sân trong oval. Không gian này được kết hợp một cách hoàn hảo với phòng bếp, tạo ra sự liên kết mạnh mẽ giữa các khu vực sinh hoạt chung.
Phòng khách liền mạch với phòng ăn, nằm bên dưới khoảng thông tầng rộng thoáng
Ngay bên cạnh là khoảng sân vườn hình oval xanh mướt và tràn ngập ánh nắng
Phía đối diện là khu vườn rộng phía sau nhà, mang đến trải nghiệm gần gũi với thiên nhiên tựa như trong resort
Không gian linh hoạt, ranh giới bên trong và bên ngoài gần như được xóa bỏ
Căn bếp rộng và ngăn nắp nằm ở cuối nhà
>>> Xem thêm: Ngôi nhà 17x8m khắc phục mặt tiền Tây bằng thiết kế mở trong – kín ngoài, ánh sáng len lỏi khắp nơi
Không gian trên tầng với phòng ngủ uốn lượn hình chữ U đẹp mắt
Lên tầng trên, không gian phòng ngủ được tổ chức theo hình thức một khối uốn lượn hình chữ U, với phòng ngủ chính ở một bên và phòng ngủ cho trẻ em ở bên kia. Một khoảng không gian chung, có thể làm văn phòng hoặc phòng xem TV, kết nối các phòng này lại với nhau. Không gian trên tầng mang lại sự riêng tư nhưng cũng rất linh hoạt, với các cửa sổ mở ra phía sân trong, tạo cảm giác rộng rãi, thoáng đãng.
Lối cầu thang uốn lượn được thiết kế men theo khu vườn oval
Phía bên trên, hành lang nối các phòng ở tầng 2 cũng có thiết kế mềm mại tương đồng
Ngoài các phòng ngủ, trên tầng 2 còn có một khoảng không gian sinh hoạt chung, đáp ứng nhiều mục đích sử dụng khác nhau
Cảnh quan, vật liệu và kết cấu hòa hợp với thiết kế, tạo sự bền vững cho không gian
Cảnh quan nhà là yếu tố quan trọng trong việc làm mềm mại không gian sống. Ngôn ngữ cảnh quan nhiệt đới gồm nhiều loài cây xanh được sử dụng để tạo ra một sự chuyển tiếp tự nhiên giữa không gian bên trong và bên ngoài.
Cảnh quan nhiệt đới hiện hữu ở khắp nơi quanh Oval House
Dễ thấy nhất là các loài cây lá to đậm nét nhiệt đới ở bên trong khoảng sân vườn oval
Bên cạnh đó còn nhiều loài cây thân rủ đẹp mắt khác
Oval House sử dụng bê tông cốt thép làm vật liệu chủ đạo cho kết cấu, đem lại sự vững chắc và bền vững. Đá cẩm thạch Tundra Grey được sử dụng ở tầng trệt cho sàn nhà, tạo nên vẻ sang trọng nhưng vẫn phù hợp với tính chất bền vững của công trình. Lên tầng, sàn gỗ sồi mang lại cảm giác ấm áp và thoải mái, đặc biệt là khi đi bộ chân trần. Bên cạnh đó, màn che bằng nhôm dùng để chắn ánh sáng tạo ra hiệu ứng bóng đổ đẹp mắt, đồng thời giúp điều chỉnh ánh sáng cho không gian.
Oval House sử dụng kết cấu bê tông cốt thép vững chãi
Bức màn che bằng nhôm giúp che chắn ánh nắng gắt
Thiết kế này không chỉ giúp không gian thêm thoáng mà còn tạo điểm nhấn thẩm mỹ và hiệu ứng bóng đổ đẹp mắt
Oval House không chỉ là một ngôi nhà có tính thẩm mỹ cao mà còn đáp ứng đầy đủ nhu cầu sống của gia đình trẻ. Với không gian mở linh hoạt, sân trong oval và việc sử dụng vật liệu bền vững, công trình đã tạo ra một không gian sống lý tưởng, vừa kết nối nội thất với ngoại thất, vừa thể hiện một phong cách sống tự do, gần gũi thiên nhiên. Cùng khám phá thêm nhiều công trình độc đáo khác tại chuyên mục Chuyện nhà.
Bản vẽ chi tiết công trình
>>> Xem thêm: Nhà 2 tầng thiết kế hình khối hộp, là giải pháp đón nắng đón gió độc đáo
Thông tin công trình:
Tên ngôi nhà: Oval House
Tổng diện tích (m2): ~415
Năm hoàn thành:2022
Đơn vị thiết kế: Jorgelina Tortorici & Asociados
Đơn vị chụp ảnh:Alejandro Peral
Địa điểm:Bella Vista, Argentina
Số tầng: 2
Loại nhà: Nhà ở
Nguồn: Archdaily
*Để lại thông tin trong box dưới đây, Happynest sẽ giúp bạn kết nối đơn vị thiết kế - thi công phù hợp và nhanh chóng nhất.




























































































































