Nằm trên khu đất nhỏ chỉ 32m2 trong một con hẻm nhỏ, K House được xây dựng vỏn vẹn 26m2 - một dạng nhà điển hình của nhà trong hẻm đô thị tại Quận 1, với nhu cầu vừa làm một tiệm may cho người em gái, vừa là nhà ở cho gia đình anh chị và cháu. Bởi vậy, nhiệm vụ hàng đầu của nhóm KTS là tối ưu hóa diện tích, đảm bảo riêng tư và giúp không gian sống trong nhà 26m2 luôn thoáng sáng.
K House sở hữu chiều cao 5 tầng với diện mạo hoàn toàn khác biệt so với những ngôi nhà trong hẻm thường thấy
Nhà 26m2 thiết kế đường cong mềm mại cùng cửa sổ trái tim đón gió, đón trăng
Theo chia sẻ của gia chủ, hàng xóm trong hẻm vẫn hay gọi K House là ngôi nhà có hình trái tim. Để có được điều này là do cách thiết kế đặc biệt của những ô cửa sổ hình tròn và bán nguyệt. Khi mở, hai cánh cửa sổ tầng ba tạo hình giống trái tim, là nơi bé gái trong nhà chơi đùa, đọc truyện và ngắm cảnh bên ngoài - một trải nghiệm hiếm có trong những nhà trong hẻm chật hẹp - và bố mẹ có thể ngắm trăng vào những đêm rằm.
Không chỉ có vậy, ngay từ mặt tiền, những đường cong uyển chuyển đã được tạo nên thay vì những hình khối khô cứng, giúp mang đến sự mềm mại cho ngôi nhà 26m2 nói riêng và con hẻm nói chung.
Bên trong ngôi nhà 26m2, cầu thang chữ U chuyển dần thành cầu thang tròn cho phù hợp với công năng các tầng đồng thời thay đổi cảm giác của người ở khi di chuyển. Điểm cuối của con đường là cửa sổ mái kính hình bán nguyệt mang ánh sáng tự nhiên ngập tràn.
Nhà 26m2 thiết kế đường cong mềm mại cùng cửa sổ trái tim đón gió
Các ô sắt tròn và bán nguyệt đan xen vừa hài hòa với tổng thể chung vừa giúp nhà 26m2 trong hẻm không bí bách, khó chịu
Từ cánh cổng vòm ở tầng 1 đến những ô cửa sổ ở tầng 3, tầng 4 tương phản với khối gỗ sồi màu nâu đỏ như được treo lơ lửng tại tầng 2 của nhà trong hẻm
Cửa sổ hình trái tim không những mang đến sự độc đáo về thẩm mỹ mà còn giúp không gian nhà 26m2 sáng sủa, thoáng đãng hơn
Ô cửa sổ tròn thường được hé ra để đón gió và là khu vực ngắm cảnh yêu thích của cả gia đình - điều hiếm gặp ở các nhà trong hẻm đông đúc
>>> Xem thêm: Cần gì nhà to mặt phố, 10 nhà Việt dưới 40m2 dù trong hẻm nhỏ vẫn khiến bao người ghen tị
Cầu thang chữ U dần biến đổi thành cầu thang tròn…
…mang lại ấn tượng thị giác đặc biệt và cảm giác thú vị khi di chuyển trong ngôi nhà 26m2
Điểm cuối cùng của cầu thang chạm tới ánh sáng tự nhiên bởi ô cửa sổ mái kính tựa như giếng trời hình bán nguyệt - giải pháp quen thuộc nhưng hiệu quả cho nhà trong hẻm
Cách sắp xếp không gian hợp lý giúp K House tối ưu công năng sử dụng
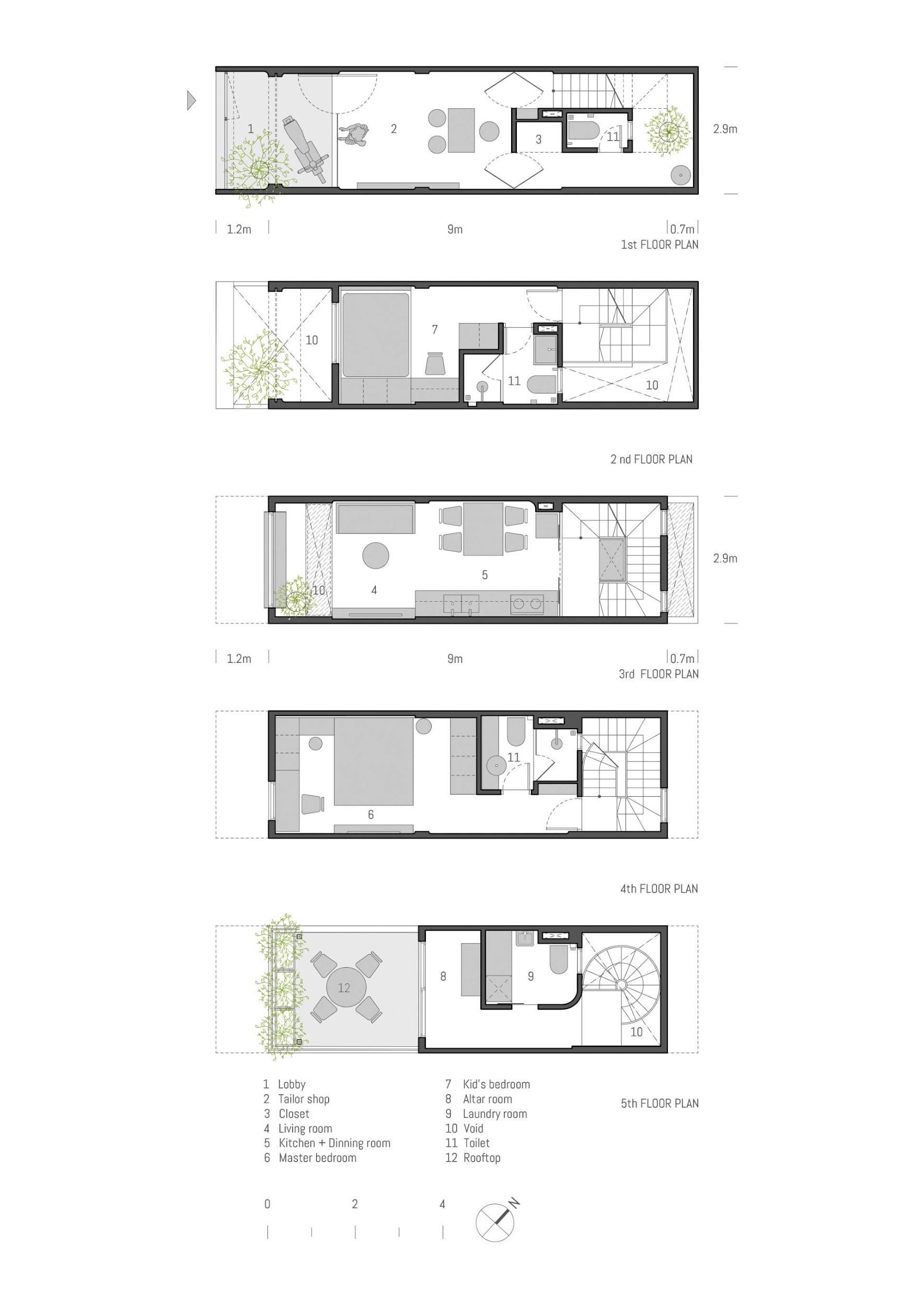
Diện tích xây dựng chỉ 26m2 trong khi nhu cầu của gia đình là tương đối lớn nên nhóm KTS đã quyết định thiết kế K House bao gồm 5 tầng. Theo đó tầng 1 được dành làm tiệm may nhỏ cho người em gái. Tầng 2 là phòng ngủ của con gái gia chủ được bọc trong khối gỗ màu nâu đỏ, đảm bảo sự kín đáo, riêng tư. Không gian sinh hoạt chung như bếp, phòng khách nằm tại tầng 3 của công trình. Phòng ngủ của vợ chồng gia chủ nằm tại tầng 4, còn tầng 5 dành cho khu giặt, sân thượng.
Thiết kế của K House hướng tới sự tối giản, tối ưu hóa diện tích để sắp xếp công năng phù hợp, giúp nhà trong hẻm vẫn đảm bảo tiện nghi sinh hoạt. Vì thế, không gian mang đến cảm giác nhẹ nhàng, gần gũi mà vẫn đảm bảo những tiện nghi cần thiết.
Vì diện tích nhỏ nên K House được xây dựng 5 tầng để đảm bảo đầy đủ nhu cầu của các thành viên
Tầng 1 để thừa một khoảng sân nhỏ dùng làm chỗ để xe - khoảng đệm cần thiết với nhà trong hẻm - cũng như không gian chuyển tiếp trước khi vào nhà
Đây cũng là nơi đặt tiệm may nhỏ của em gái gia chủ
>>> Xem thêm: Nhà 4x20 trong hẻm cải tạo để phù hợp sinh hoạt của gia đình 4 thế hệ
Cầu thang như một con đường theo phương đứng, nép về phía sau nhà nhằm ưu tiên diện tích cho không gian sinh hoạt
Tầng 2 thiết kế lùi sâu so với các tầng trên và được bao bọc bởi khối gỗ vững chắc
Khối sinh hoạt chung được sắp xếp đặt tại tầng 3 bao gồm bếp - ăn và phòng khách
Khu bếp của nhà 26m2 nhỏ gọn nhưng đầy đủ tiện nghi
Phòng khách, bếp và phòng ăn thiết kế mở giúp tiết kiệm diện tích
Giữa chỗ ngồi cạnh cửa sổ và sofa là một khoảng sàn kính cường lực trong suốt giúp gia chủ dễ dàng quan sát khách ở tầng 1 do tầng 2 được thiết kế lùi vào trong
>>> Xem thêm: Nhà 28m2 trong ngõ với 3 mặt bị vây kín, vẫn sáng thoáng và dễ chịu
Không có lợi thế về diện tích nhưng sau khi hoàn thành, K House vẫn đảm bảo đầy đủ về thẩm mỹ, công năng nhờ cách thiết kế khéo léo. Không chỉ là nơi ở, ngôi nhà 26m2 còn là mô hình nhà trong hẻm kết hợp ở và kinh doanh hợp lý.
Bản vẽ mặt bằng nhà 26m2 K house
Thông tin công trình:
Tên công trình: K House
Diện tích khu đất (m2): 32
Diện tích xây dựng (m2): 26
Tổng diện tích sàn (m2): 12
Đơn vị thiết kế: MDA architecture
Đơn vị chụp ảnh: Quang Trần
Năm hoàn thành: 2020
Ngân sách hoàn thiện: 2,8 tỷ đồng
Nhóm thiết kế: Vũ Hà Anh, Trần Đình Mạnh
Thầu phụ: Gia Viet Interior, Villa wood, Nhôm Kính Đông Phương
Địa điểm: TP. Hồ Chí Minh
Số tầng: 5
Loại nhà: Nhà phố, nhà trong hẻm
*Để lại thông tin trong box dưới đây, Happynest sẽ giúp bạn kết nối đơn vị thiết kế - thi công phù hợp và nhanh chóng nhất.

















































































































