Trong thực tế, đất hình thang là dạng lô đất khá phổ biến tại khu dân cư mới, đất chia lô hoặc khu vực đô thị chỉnh trang. Tuy nhiên, có nên xây nhà trên đất hình thang không vẫn là câu hỏi khiến nhiều gia chủ phân vân. Bởi bên cạnh những lợi thế về diện tích và giá thành, loại đất này cũng đặt ra thách thức về thiết kế mặt bằng, kết cấu và phong thủy.
Vậy đất hình thang thực sự có “xấu” như lời đồn? Hay chỉ cần xử lý khéo léo là có thể biến nhược điểm thành lợi thế? Tham khảo ngay bài viết sau đây nhé.
Đất hình thang là gì? Vì sao nhiều người e ngại?
Đất hình thang là loại lô đất có cấu trúc tương tự hình học của một hình thang, với các cạnh không đều và phần trước - sau có độ chênh lệch về kích thước. Tùy vào thực tế, các góc có thể vuông hoặc không vuông, hai cạnh bên thường không song song, tạo nên sự bất đối xứng trong tổng thể mặt bằng.
Chính vì đặc điểm này, nhiều người đặt câu hỏi có nên xây nhà trên đất hình thang không, bởi việc thiết kế trên nền đất dạng này cần được tính toán kỹ lưỡng về kết cấu, quy hoạch và công năng. Nếu xử lý tốt, gia chủ có thể khai thác được lợi thế về tầm nhìn và không gian mở; ngược lại, nếu bố trí thiếu hợp lý, rất dễ gây lãng phí diện tích hoặc ảnh hưởng đến yếu tố thẩm mỹ và phong thủy.
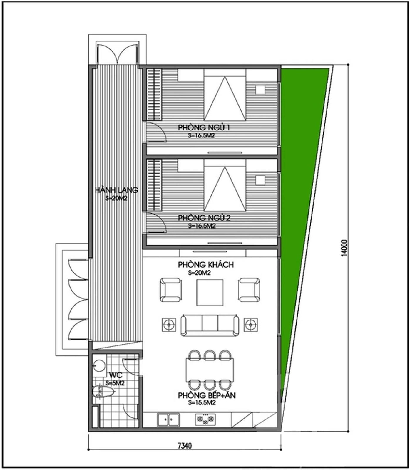
Ví dụ về nhà xây trên đất hình thang
Phân loại đất hình thang - Yếu tố quyết định có nên xây nhà trên đất hình thang không
Khi tìm hiểu có nên xây nhà trên đất hình thang không, trước hết cần phân biệt hai dạng phổ biến của loại đất này.
-
Đất nở hậu có phần mặt tiền nhỏ hơn và phía sau mở rộng. Theo quan niệm phong thủy và thực tế sử dụng, dạng đất này thường được đánh giá cao vì không gian phía sau rộng, dễ bố trí công năng.
-
Đất thóp hậu (hẹp hậu) có phần mặt tiền lớn nhưng phía sau thu nhỏ dần. Dạng đất này đòi hỏi giải pháp thiết kế khéo léo để tránh cảm giác bí bách hoặc lãng phí diện tích ở khu vực hẹp.
Tùy từng loại đất hình thang cụ thể, kiến trúc sư sẽ đưa ra phương án bố trí mặt bằng, kết cấu và thẩm mỹ khác nhau nhằm tối ưu quỹ đất, đảm bảo sự ổn định và hài hòa cho công trình. Vì vậy, việc có nên xây nhà trên đất hình thang không phụ thuộc rất nhiều vào cách xử lý thiết kế và quy hoạch phù hợp với đặc điểm từng lô đất.
Đất hình thang được chia làm 2 loại nở hậu và thóp hậu
>>> Xem thêm: Nhà 4 tầng hiện đại của gia đình 6 người xây dựng trên mảnh đất hình thang với thiết kế ôm trọn thiên nhiên vào lòng
Xây nhà trên đất hình thang nở hậu có tốt không?
Khi cân nhắc có nên xây nhà trên đất hình thang không, nhiều chuyên gia đánh giá cao dạng đất nở hậu vì tiềm năng khai thác không gian khá linh hoạt. Nếu được thiết kế hợp lý, loại đất này có thể mang lại nhiều lợi ích rõ rệt cho gia chủ.
Trước hết, phần hậu rộng giúp bố trí cửa sổ và cửa đi kích thước lớn ở phía sau nhà, tăng khả năng lấy sáng tự nhiên và tạo cảm giác thông thoáng. Đây là lợi thế lớn trong các khu dân cư đông đúc.
Về phong thủy, đất nở hậu thường được xem là mang ý nghĩa tích lũy và phát triển. Khi bố trí hướng nhà và cổng phù hợp với địa thế, tổng thể công trình sẽ đạt được sự cân bằng, hài hòa, góp phần tạo môi trường sống tích cực.
Ngoài ra, phần diện tích phía sau rộng hơn còn tạo điều kiện thuận lợi cho việc mở rộng hoặc cải tạo trong tương lai mà không ảnh hưởng đến kết cấu chính của ngôi nhà.
Tuy nhiên, để trả lời chính xác có nên xây nhà trên đất hình thang không, đặc biệt với đất nở hậu, gia chủ vẫn cần có phương án thiết kế bài bản và được chuyên gia kiểm tra kỹ lưỡng nhằm đảm bảo tính ổn định, thẩm mỹ và công năng lâu dài cho công trình.
Thiết kế nhà trên đất hình thang nở hậu có nhiều ưu điểm
Cần lưu ý gì khi thiết kế nhà trên đất hình thang?
Tận dụng không gian khi thiết kế nhà trên đất hình thang
Khi băn khoăn có nên xây nhà trên đất hình thang không, điều quan trọng là nhìn đúng tiềm năng của mảnh đất thay vì chỉ lo ngại về hình dáng. Nếu biết khai thác hợp lý, phần hậu hoặc phần rộng hơn có thể trở thành khu vực mở rộng không gian sống, giúp bố trí phòng khách, bếp và phòng ngủ một cách linh hoạt, tối ưu công năng mà vẫn đảm bảo sự thoải mái.
Với phần hẹp của đất hình thang, gia chủ nên ưu tiên đặt các không gian phụ như cầu thang, nhà vệ sinh hoặc kho nhỏ. Cách sắp xếp này giúp giảm lãng phí diện tích, đồng thời giữ được sự vuông vắn, thoáng đãng cho khu vực sinh hoạt chính. Bên cạnh đó, việc thiết kế hệ cửa sổ, cửa đi hợp lý để đón sáng và thông gió tự nhiên sẽ góp phần tạo nên tổng thể hài hòa, tăng tính thẩm mỹ cho công trình.
Ngoài ra, khi cân nhắc có nên xây nhà trên đất hình thang không, gia chủ cũng cần chú ý đến hướng nhà, khả năng lấy sáng và thông gió để tiết kiệm năng lượng lâu dài. Quan trọng hơn hết là phương án kết cấu phải được tính toán kỹ lưỡng, đảm bảo công trình vững chắc và an toàn trên nền đất có hình dạng đặc biệt này.
Cần lưu ý tận dụng diện tích đất để thiết kế nhà
Điều chỉnh kiến trúc nhà trên đất hình thang
Khi đặt câu hỏi có nên xây nhà trên đất hình thang không, gia chủ cần xác định ngay từ đầu rằng việc điều chỉnh kiến trúc là điều gần như bắt buộc. Thiết kế nhà trên dạng đất này không thể áp dụng máy móc các mặt bằng vuông vắn quen thuộc, mà cần linh hoạt trong cách bố trí cửa sổ, cửa ra vào và hệ thống chiếu sáng để phù hợp với hình dáng đặc thù của khu đất, đồng thời tận dụng tối đa diện tích sử dụng.
Một giải pháp thường được các kiến trúc sư ưu tiên khi xây nhà trên đất hình thang là bố trí giếng trời hoặc sân vườn ở phía sau. Những khoảng không gian mở này không chỉ giúp đưa ánh sáng và gió tự nhiên vào sâu bên trong ngôi nhà, mà còn đóng vai trò cân bằng vi khí hậu và phong thủy. Giếng trời hay sân vườn được xem như “điểm hút khí”, giúp kết nối hài hòa giữa phần trước và phần sau nhà, từ đó mang lại cảm giác thông thoáng, dễ chịu và ổn định năng lượng cho toàn bộ không gian sống.
Nên điều chỉnh kiến trúc phù hợp với thế đất (Ảnh: 11 Jalan Insaf)
Phù hợp với mục đích sử dụng
Nếu cân nhắc có nên xây nhà trên đất hình thang không, yếu tố quan trọng nhất vẫn là đáp ứng đúng nhu cầu sử dụng thực tế của gia đình. Việc thiết kế cần được tính toán cẩn thận để đảm bảo không gian sống an toàn, thuận tiện, đặc biệt nếu trong nhà có trẻ nhỏ. Các khu vực như sân chơi nên được bố trí phù hợp với hình dáng đất, tránh góc khuất nguy hiểm và tận dụng tối đa diện tích hiệu quả.
Trường hợp gia đình mong muốn bổ sung tiện ích như hồ bơi hay khu giải trí ngoài trời, phương án thiết kế càng phải được xem xét kỹ lưỡng để hài hòa với đặc điểm lô đất. Khi xử lý tốt các yếu tố này, câu hỏi có nên xây nhà trên đất hình thang không sẽ không còn là trở ngại, bởi ngôi nhà hoàn toàn có thể vừa đáp ứng công năng, vừa mang lại sự thoải mái và tiện nghi lâu dài cho cả gia đình.
>>> Xem thêm: Thiết kế nhà ở trên đất hình thang
Xác định điểm làm nhà trên đất hình thang
Bàn về việc có nên xây nhà trên đất hình thang không, một trong những bước quan trọng nhất là xác định đúng vị trí đặt công trình trên khu đất. Việc chọn điểm xây dựng hợp lý sẽ giúp tận dụng tối đa diện tích, đồng thời đảm bảo sự thuận tiện trong sinh hoạt lâu dài.
Bên cạnh đó, hướng nhà cũng cần được tính toán kỹ lưỡng để đón ánh sáng tự nhiên và luồng gió mát hiệu quả. Khi xác định đúng hướng, các không gian chính như phòng khách, phòng ngủ sẽ nhận được ánh nắng vào thời điểm phù hợp trong ngày. Điều này không chỉ giúp tiết kiệm điện năng mà còn tạo nên môi trường sống thông thoáng, dễ chịu. Vì vậy, nếu được quy hoạch hợp lý, câu hỏi có nên xây nhà trên đất hình thang không hoàn toàn có thể được giải quyết theo hướng tích cực và khả thi.
Để tận dụng tối đa không gian trên đất hình thang, cần xác định vị trí xây dựng phù hợp (Ảnh: 11 Jalan Insaf)
Bên cạnh hướng nhà, vị trí đặt công trình trên khu đất cũng cần được cân nhắc dựa trên hình dáng tổng thể của mảnh đất. Khi xem xét kỹ bố cục hình thang, gia chủ có thể sắp xếp không gian sao cho vừa đảm bảo thẩm mỹ, vừa thuận tiện cho việc di chuyển giữa các khu vực trong và ngoài nhà.
Chính sự tính toán này sẽ quyết định phần lớn việc có nên xây nhà trên đất hình thang không. Nếu được quy hoạch hợp lý, ngôi nhà không chỉ khai thác tốt lợi thế khu đất mà còn tạo nên sự hài hòa với cảnh quan xung quanh, đáp ứng đầy đủ nhu cầu sử dụng lâu dài của gia đình.
Sử dụng các vật liệu phù hợp
Với những khu đất hình thang có độ dốc lớn, yếu tố kết cấu và vật liệu xây dựng càng cần được tính toán kỹ lưỡng. Đây cũng là một trong những điểm quan trọng khi cân nhắc có nên xây nhà trên đất hình thang không, bởi địa hình dốc đòi hỏi giải pháp thi công an toàn và bền vững hơn so với đất bằng phẳng.
Trong trường hợp này, bê tông cốt thép và đá tự nhiên thường là lựa chọn ưu tiên. Bê tông có khả năng chịu lực cao, giúp ổn định móng và hạn chế ảnh hưởng của độ dốc đến toàn bộ công trình. Kết hợp với đá ở các hạng mục gia cố taluy hoặc tường chắn đất sẽ tăng độ vững chắc, đồng thời hỗ trợ thoát nước, chống ẩm hiệu quả, giảm nguy cơ sạt lở hoặc thấm dột về lâu dài.
Không chỉ đảm bảo an toàn, những vật liệu này còn tạo nên vẻ đẹp khỏe khoắn, hài hòa với địa hình đặc thù của đất hình thang. Vì vậy, lựa chọn vật liệu phù hợp với đặc điểm khu đất chính là chìa khóa để công trình bền vững, thẩm mỹ và an tâm khi quyết định xây dựng.
Làm nhà trên đất hình thang cần lưu ý sử dụng các vật liệu phù hợp với hình dạng và địa hình của đất (Ảnh: Itu House)
Sử dụng giải pháp công nghệ khi xây nhà đất hình thang
Khi cân nhắc có nên xây nhà trên đất hình thang không, nhiều người thường chỉ nghĩ đến yếu tố phong thủy hay hình dáng khu đất. Tuy nhiên, nếu biết kết hợp cùng các giải pháp công nghệ hiện đại, nhà trên đất hình thang hoàn toàn có thể trở thành một không gian sống tiện nghi, tối ưu và bền vững.
Việc ứng dụng hệ thống cách nhiệt, cách âm chất lượng cao giúp kiểm soát nhiệt độ và hạn chế tiếng ồn hiệu quả, đặc biệt với những khu đất có mặt tiền chéo hoặc nằm sát đường lớn. Nhờ đó, không gian bên trong luôn ổn định, tiết kiệm điện năng và mang lại cảm giác dễ chịu cho cả gia đình.
Bên cạnh đó, điều hòa thông minh có thể phân bổ nhiệt độ theo từng khu vực, phù hợp với đặc điểm bố cục không vuông vắn của đất hình thang. Hệ thống điện mặt trời cũng là một lựa chọn đáng cân nhắc, vừa giảm chi phí vận hành lâu dài, vừa thể hiện định hướng sống xanh và bền vững.
Nhìn ở góc độ này, câu hỏi có nên xây nhà trên đất hình thang không không còn quá đáng lo, bởi với công nghệ phù hợp, nhược điểm địa hình hoàn toàn có thể được xử lý khéo léo, biến thách thức thành lợi thế.
Các công nghệ mới được áp dụng vào xây dựng nhà giúp tối ưu hóa trong việc sử dụng đất hình thang (Ảnh: Itu House)
Cân nhắc yếu tố thẩm mỹ
Khi đặt câu hỏi có nên xây nhà trên đất hình thang không, nhiều người thường lo lắng về yếu tố thẩm mỹ. Thực tế, nếu xử lý khéo léo, đất hình thang - đặc biệt là đất hình thang vuông - hoàn toàn có thể tạo nên một công trình đẹp, hài hòa và có cá tính riêng.
Tính thẩm mỹ của ngôi nhà được quyết định bởi nhiều yếu tố như màu sắc, hình khối và chi tiết trang trí. Việc lựa chọn gam màu phù hợp có thể giúp không gian trở nên ấm áp, dễ chịu, đồng thời tạo sự tương phản hoặc hòa quyện với cảnh quan xung quanh. Hình dáng kiến trúc cũng cần được thiết kế linh hoạt để tận dụng tối đa đặc trưng của khu đất, biến những cạnh chéo thành điểm nhấn thay vì khuyết điểm.
Bên cạnh đó, các chi tiết như mảng xanh, hệ đèn trang trí hay vật liệu hoàn thiện cũng góp phần làm nổi bật vẻ đẹp tổng thể. Khi các yếu tố này được kết hợp hài hòa, ngôi nhà trên đất hình thang không chỉ đảm bảo công năng mà còn sở hữu diện mạo ấn tượng và giàu tính thẩm mỹ.
Xây nhà trên đất hình thang vuông cần phải cân nhắc đến tính thẩm mỹ để tạo ra một ngôi nhà đẹp và phù hợp với môi trường xung quanh
Thiết kế nhà trên đất hình thang có cần lưu ý phong thủy không?
Khi cân nhắc có nên xây nhà trên đất hình thang không, yếu tố phong thủy luôn là điều nhiều gia chủ quan tâm. Thực tế, nếu biết cách bố trí hợp lý, đất hình thang vẫn có thể mang lại nguồn năng lượng hài hòa và tích cực cho không gian sống.
Trước hết, cần xem xét sự tương hợp với mệnh của gia chủ. Tùy theo ngũ hành, có thể lựa chọn màu sắc, vật liệu hoặc vật phẩm phong thủy phù hợp để cân bằng năng lượng. Chẳng hạn, người mệnh Thổ có thể ưu tiên các chất liệu như đá, gạch, gam màu nâu - vàng đất nhằm tăng cảm giác ổn định và thu hút tài lộc.
Vị trí phòng ngủ cũng nên được tính toán cẩn thận. Trong phong thủy, đây là không gian ảnh hưởng trực tiếp đến sức khỏe và tinh thần, vì vậy cần đặt ở khu vực yên tĩnh, có hướng tốt và tránh những góc méo đặc trưng của đất hình thang nếu có thể.
Bên cạnh đó, cửa chính đóng vai trò quan trọng trong việc dẫn khí và đón tài lộc. Khi xây nhà trên đất hình thang, cửa chính nên được bố trí thông thoáng, không bị che chắn, đồng thời hài hòa với tổng thể kiến trúc để tạo dòng năng lượng lưu chuyển thuận lợi trong toàn bộ ngôi nhà.
Một số lưu ý về cách thiết kế nhà trên đất hình thang hợp phong thủy (Ảnh: Itu House)
Giải đáp nhanh về việc có nên xây nhà trên đất hình thang không
1. Đất hình thang có xấu về phong thủy không?
Không hẳn. Đất nở hậu thường được đánh giá tốt. Đất thóp hậu cần xử lý thiết kế phù hợp để cân bằng không gian.
2. Xây nhà trên đất hình thang có tốn kém hơn không?
Chi phí có thể nhỉnh hơn 3-5% do phải thiết kế riêng, nhưng nếu xử lý tốt sẽ không phát sinh đáng kể.
3. Có cần thuê kiến trúc sư khi xây nhà trên đất hình thang không?
Rất nên. Đây là dạng đất cần giải pháp mặt bằng thông minh để tránh lãng phí diện tích.
4. Có nên cắt vuông đất trước khi xây?
Không khuyến khích vì làm mất diện tích sử dụng. Thay vào đó nên xử lý không gian bên trong.
5. Đất hình thang có phù hợp xây nhà phố không?
Rất phù hợp nếu chiều sâu đủ và có phương án lấy sáng, thông gió hợp lý.
Vậy có nên xây nhà trên đất hình thang không? Câu trả lời thực sự không nằm ở hình dáng mảnh đất, mà phụ thuộc vào nhiều yếu tố như diện tích cụ thể, nhu cầu sử dụng của gia đình và cách bạn nhìn nhận vấn đề.
Nếu mảnh đất đủ rộng, mục đích sử dụng rõ ràng và có phương án thiết kế hợp lý, đất hình thang hoàn toàn có thể trở thành lợi thế thay vì trở ngại. Tuy nhiên, để tránh những sai sót về công năng hoặc phong thủy, gia chủ nên tham khảo ý kiến kiến trúc sư và chuyên gia phong thủy ngay từ đầu. Điều này giúp đảm bảo công trình vừa đẹp mắt, tối ưu không gian, vừa hài hòa về năng lượng.
>>> Xem thêm: Nhà 27m2 xây trên mảnh đất hình tam giác trong hẻm, vẫn có cả vườn trúc xinh trước nhà
Thực tế cho thấy, với sự tính toán kỹ lưỡng và giải pháp thiết kế thông minh, việc xây nhà trên đất hình thang không những khả thi mà còn có thể tạo nên một không gian sống độc đáo, tiện nghi và phù hợp với cá tính của gia chủ.
Xem thêm các bài viết trong chuyên mục Kho kiến thức và Chuyện nhà trên Happynest để cập nhật thêm nhiều kinh nghiệm xây dựng thực tế, dễ áp dụng cho nhà ở Việt Nam.
Tổng hợp
*Để lại thông tin trong box dưới đây, Happynest sẽ giúp bạn kết nối đơn vị thiết kế - thi công phù hợp và nhanh chóng nhất.

































































































