Thông thường, một mảnh đất hình thang với những góc nhọn khó xử lý thường bị nhiều gia chủ né tránh do quan niệm xây nhà gặp nhiều thách thức, khó có thể hài hòa giữa yếu tố thẩm mỹ và công năng. Thế nhưng, tại ngôi làng ven biển Azhiyur (Kerala, Ấn Độ), Infinity Edge Residence đã xuất hiện như minh chứng rằng kiến trúc chân chính không khước từ nghịch cảnh, mà chọn cách nương tựa vào chúng để thăng hoa.
Infinity Edge Residence hiện lên với cấu trúc mái nhọn vươn cao đầy kiêu hãnh trên nền trời Kerala
Cuộc gặp gỡ giữa nghịch lý địa hình và tư duy kiến tạo
Giữa nhịp sống hối hả của bang Kerala, mảnh đất rộng khoảng 323.7 m2 nằm nép mình bên quốc lộ, chỉ cách biển chưa đầy trăm mét. Với dạng hình thang vát chéo cùng những quy định nghiêm ngặt của vùng kiểm soát ven biển khiến mảnh đất càng trở nên khó khai thác. Thế nhưng, thay vì e ngại, các kiến trúc sư đã chọn giải pháp để kiến trúc nương tựa vào chính sự khiếm khuyết của địa hình.
Do đặc thù của vùng quy định ven biển, diện tích xây dựng dưới mặt đất bị hạn chế đáng kể. Để bù đắp, kiến trúc sư đã kiến tạo một sàn gỗ rộng lớn lửng lơ trên tầng cao, được che chắn bởi hệ mái dốc bền vững. Nhìn từ xa, cấu trúc này tựa như mũi một con tàu đang kiên định vươn mình ra đại dương. Đây là nơi những đứa trẻ có thể thỏa sức chạy nhảy dưới bầu trời tự do, là nơi gia đình quây quần mỗi khi hoàng hôn buông xuống, biến những giới hạn của đất đai thành một chân trời vô tận.
>>> Xem thêm: Ngôi nhà nằm ở khoảng sân sau với hình dạng đất vát chéo thách thức mọi thiết kế
Công trình nằm trải dài dọc theo trục đường, khéo léo xử lý bài toán tiếng ồn và sự riêng tư
Cấu trúc mái lớn che chắn cho dãy ban công chạy dài, tạo không gian thư giãn lý tưởng
Thay vì cố gò ép công trình vào một cái khuôn vuông vức truyền thống, họ chọn cách để kiến trúc mọc lên từ chính hình dáng nguyên bản của đất. Góc nhọn nhất của mảnh đất không còn là phế tích, mà trở thành một khoảng vườn tam giác xanh mướt, nơi thiên nhiên và kiến trúc bắt đầu cuộc đối thoại tĩnh lặng của mình.
Góc nhọn của mảnh đất được chuyển hóa thành khoảng vườn xanh, xóa tan cảm giác tù túng của tường bao
Ngôn ngữ Modern Tropical: Hơi thở của biển trong từng khoảng hở
Infinity Edge Residence là một bài ca về sự tự do. Với phong cách Modern Tropical, công trình không cố lập rào cản với ngoại cảnh mà thực hiện một cuộc vay mượn không gian đầy tinh tế.
Không gian mở tối đa nhờ hệ vách kính lớn, xóa nhòa ranh giới giữa nội thất và thiên nhiên
Các không gian sinh hoạt chung được ưu tiên đặt ở phía Đông để đón lấy ánh nắng ban mai dịu nhẹ, tránh cái nắng gắt của buổi trưa hè. Trong khi đó, năm phòng ngủ được khéo léo quy hoạch về phía Tây, biến những luồng gió biển mặn mòi thành hệ thống điều hòa tự nhiên, nuôi dưỡng giấc ngủ của gia chủ.
Không gian ăn uống ấm cúng dưới hệ trần bê tông thô mộc và đèn thả trần mang đậm hơi thở đương đại
Sự giao thoa giữa các mảng tường trắng tinh khôi và nội thất gỗ tự nhiên
Những lớp rèm lụa mềm mại điều tiết ánh sáng, tạo nên một bầu không khí dịu dàng cho phòng khách
Góc nhìn từ trên cao cho thấy sự mạch lạc trong sắp xếp nội thất và tính đối xứng tinh tế
Khu vực bếp hiện đại với tông màu tối huyền bí và hệ gạch thẻ ốp tường bắt sáng
Hệ cầu thang gỗ với kết cấu thanh thoát, đóng vai trò như một điểm nhấn điêu khắc
Phòng ngủ chính mang đậm tinh thần tối giản với hướng nhìn mở rộng ra khu vườn
Ánh nắng len lỏi qua hệ cửa kính tạo nên những dải sáng - tối nhịp nhàng trên sàn nhà
Sự kết nối giữa phòng ngủ và khu vực vệ sinh thông qua hệ cửa gỗ
Chi tiết decor đầu giường tinh tế, kết hợp hài hòa với ánh sáng tự nhiên từ cửa sổ
Tầm nhìn tuyệt đẹp từ giường ngủ ra rặng dừa xanh mướt đặc trưng của vùng Kerala
Góc trang điểm tối giản ngập tràn ánh nắng buổi sớm
Nội thất được đo ni đóng giày cho từng vị trí nhọn của mảnh đất
Góc làm việc với tầm nhìn Panorama ôm trọn cảnh quan
Sự tối giản trong thiết kế góc làm việc, ưu tiên sự tập trung và kết nối với bên ngoài
Ban công tầng thượng vươn dài ra phía trước, tạo nên hiệu ứng thị giác mạnh mẽ
Bồn rửa với phong cách hiện đại, tối giản và mạnh mẽ
Điểm đắt giá nhất nằm ở khu vực đệm, một khoảng không thiền định ngăn cách giữa phòng khách và không gian gia đình. Hệ cửa gỗ xếp trượt vừa là vách ngăn ước lệ, vừa là nhịp kết nối với sân vườn bên hông. Tại đây, những tán cây nhiệt đới len lỏi vào từng kẽ hở kiến trúc, xóa nhòa ranh giới giữa nội thất và ngoại cảnh, khiến mỗi bước chân đều như đang dạo chơi giữa thiên nhiên.
>>> Xem thêm: Nhà nghiêng giữa phố hẹp: Giải pháp xoay nhà, chia khối giúp không gian luôn thoáng mát
Góc nhìn xuyên thấu qua các không gian chức năng, nơi cây xanh hiện diện như một thực thể sống
Hệ lưới thép trên mái hiên tạo ra những vũ điệu ánh sáng và bóng đổ thú vị trên nền sàn
Chất liệu thô mộc và triết lý hình thái đi sau công năng
Bước vào bên trong, Infinity Edge Residence không choáng ngợp bằng sự xa hoa mà chinh phục bằng sự chân thực của từng khối vật liệu. Đó là sự hiện diện của những mảnh sàn đá vôi mát lạnh, của khối trần bê tông trần đánh bóng mang sắc thái trầm mặc, những chất liệu vốn dĩ thô ráp nhưng khi đặt cạnh nhau lồng vào trong những khối gỗ tự nhiên nguyên bản lại tạo nên một sự cân bằng tinh tế.
Những mảng xanh nhiệt đới được lồng ghép khéo léo vào các khoảng lùi kiến trúc
Khoảng thông tầng tại khu vực phòng khách và phòng ăn đóng vai trò điều hòa bầu không khí của ngôi nhà. Vách kính cao lớn không chỉ dẫn dắt ánh sáng đổ xuống như một thác nước, mà còn mở ra tầm nhìn xuyên suốt, kết nối mọi thành viên trong gia đình dù họ đang ở bất kỳ góc nhỏ nào.
Những đường cong của gương soi tạo nên sự tương phản thú vị với những đường thẳng của kiến trúc
Infinity Edge Residence đã vượt thoát khỏi định nghĩa của một nơi cư trú thông thường để trở thành một tác phẩm nghệ thuật về sự bao dung. Đây là minh chứng rằng khi chúng ta nhìn nhận những khiếm khuyết bằng con mắt của sự thấu cảm và sáng tạo, kiến trúc sẽ trở thành cây cầu nối liền giữa nhu cầu con người và linh hồn của mảnh đất. Khám phá thêm nhiều công trình độc đáo tại Chuyện nhà.
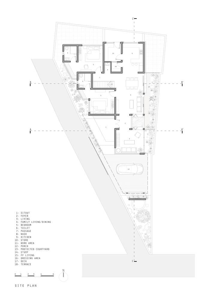
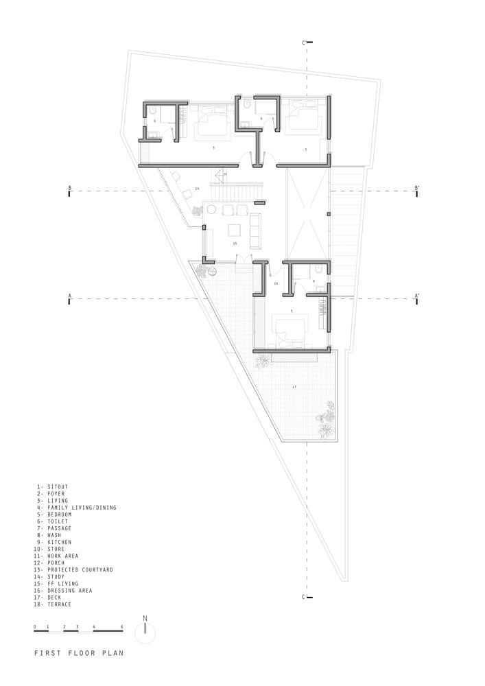
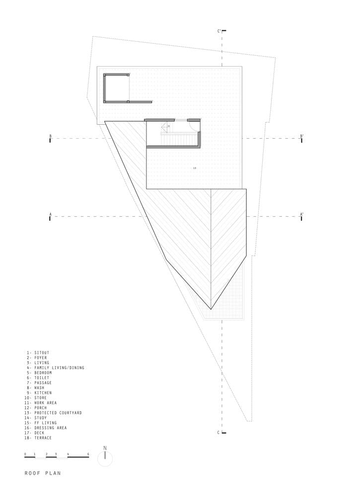
Bản vẽ chi tiết công trình
>>> Xem thêm: Dù nằm trên khu đất vát chéo, nhà Vĩnh Phúc vẫn vuông vắn và mang được cả thiên nhiên vào nhà
Thông tin công trình:
Tên ngôi nhà: Infinity Edge Residence
Diện tích thực tế (m2): 306.6
Tổng diện tích (m2): 323.7
Năm hoàn thành: 2024
Đơn vị thiết kế: TROPICAL TONES
Đơn vị chụp ảnh: Syam Sreesylam
Địa điểm: Kerala, Ấn Độ
Số tầng: 2
Số phòng ngủ: 5
Loại nhà: Nhà ở
Nguồn: Archdaily
*Để lại thông tin trong box dưới đây, Happynest sẽ giúp bạn kết nối đơn vị thiết kế - thi công phù hợp và nhanh chóng nhất.



























































































































