NN House là một ví dụ điển hình cho kiến trúc thích ứng tại vùng ven đô Bangkok – nơi đô thị hóa đang diễn ra nhanh chóng. Công trình được thiết kế nghiêng so với ranh đất để chủ động tránh đối mặt với các công trình lân cận trong tương lai, đồng thời tạo điều kiện lưu thông gió, ánh sáng và tăng cường kết nối thiên nhiên. Với bố cục ba khối chức năng rõ ràng và ngôn ngữ vật liệu bền vững, NN House là một lời đáp thông minh cho nhu cầu sống hiện đại giữa khí hậu nhiệt đới.
NN House là một ngôi nhà không chỉ thích ứng với khí hậu địa phương mà còn được xây dựng để dự phòng cho tương lai
NN House - Ngôi nhà nghiêng giữa vùng đô thị hóa Bangkok
Khu vực ven Bangkok đang trong quá trình đô thị hóa mạnh, với hàng loạt nhà ở mới được xây dựng. Thay vì đặt song song ranh đất, nhóm thiết kế đã xoay NN House theo một góc nghiêng nhất định, giúp công trình vừa tránh tầm nhìn trực diện với hàng xóm, vừa tạo ra các khoảng sân thông thoáng – một cách ứng phó thông minh với tình trạng phát triển dày đặc liền kề.
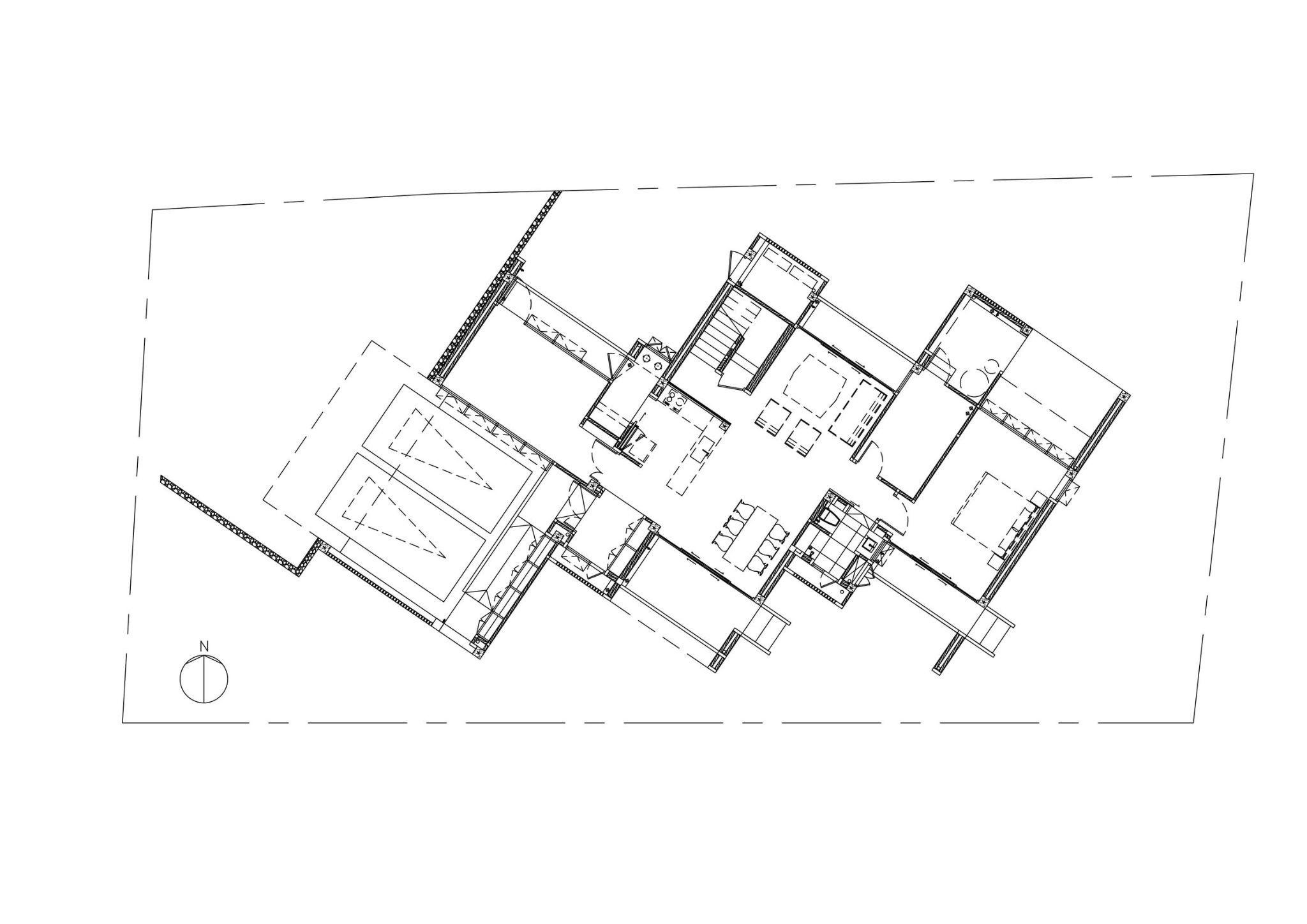
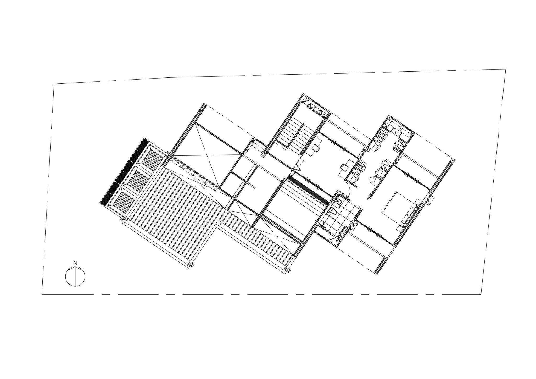
Bản vẽ mô phỏng cách xây dựng vát chéo các khối của NN House
Cách thiết này này không chỉ giúp tạo sự riêng tư cần thiết mà còn mang thiên nhiên đến gần hơn với không gian sống
>>> Xem thêm: Nhà vườn mái dốc cho phép gia chủ “ngắm trọn bốn mùa” qua khung kính rộng mở
Ba khối không gian linh hoạt, kết nối liền mạch của NN House
Không gian NN House được chia thành ba phần chính dựa trên công năng sử dụng, giúp sắp xếp các hoạt động hàng ngày của các thành viên trong gia đình một cách rõ ràng mà vẫn hài hòa tổng thể. Các khối nhà có mái cao dần từ trước ra sau, khối mái thấp chỉ có 1 tầng và khối có mái cao sẽ gồm 2 tầng, cụ thể
Độ cao mái được nâng dần qua từng khối nhà, phù hợp với chức năng sử dụng
Khối trước: gara và studio đóng vai trò chuyển tiếp
Phía trước nhà là khu để xe và phòng làm việc, vừa tiện cho công việc, vừa tách biệt khỏi khu sinh hoạt chính để đảm bảo sự yên tĩnh. Đây là khối có mái thấp nhất, là vùng bán công cộng, chuyển tiếp nhẹ nhàng giữa ngoài và trong nhà.
Khối đầu tiên gồm sân để xe với mái hiên rộng rãi
Phòng làm việc được bố trí ở khối này với không gian yên tĩnh, có sự chuyển tiếp giữa trong và ngoài
Khối giữa: không gian sinh hoạt chung làm trái tim của ngôi nhà
Phần trung tâm là phòng khách, phòng ăn và bếp nằm trong sảnh rộng, trần cao gấp đôi. Khối nhà này đóng vai trò “trái tim” của NN House, nơi các thành viên quây quần. Trần cao tạo cảm giác rộng mở và thông thoáng, đồng thời giúp gió và ánh sáng lan tỏa tự nhiên.
Không gian sinh hoạt chính được bố trí ở khối giữa
Sảnh có trần cao gấp đôi nên rất thoáng đãng
Khối giữa gồm phòng khách và phòng ăn
Phòng khách tối giản, điểm nhấn là bộ sofa mềm mại, ấm cúng
Phòng ăn và bếp được bố trí đối diện nhau, tạo sự thuận tiện trong sinh hoạt
Khối ở giữa này có một khoảng sân thượng nhỏ
Lối cầu thang dẫn lên sân thượng và băng ghế ngồi thư giãn
>>> Xem thêm: Nhà 3 tầng giấu mình dưới mái dốc, thiết kế mở để mọi thành viên luôn nhìn thấy nhau
Khối sau: phòng ngủ cho nhiều thế hệ với 2 tầng riêng biệt
Khối trong cùng cao nhất, gồm phòng ngủ tầng trệt và tầng trên, trong đó phòng tầng trệt được thiết kế đặc biệt cho người cao tuổi để thuận tiện di chuyển.
Khối cuối cùng có 2 tầng là không gian thư giãn, gồm 2 phòng ngủ
Phòng ngủ ở tầng 1 yên tĩnh, có một khoảng hiên thư giãn ở bên ngoài
Lối cầu thang dẫn lên phòng ngủ ở tầng 2
Không gian phòng ngủ ở tầng 2 cũng khá đơn giản
Phòng tắm và nhà vệ sinh rộng rãi của NN House
Không gian được chia thành khu vực khô và ướt riêng biệt
Các khoảng sân nhỏ đóng vai trò làm vùng đệm xanh giữa các khối
Nhờ cách đặt nhà theo góc chéo, các khoảng sân nhỏhình thành tự nhiên giữa các khối nhà của NN House. Đây là giải pháp quan trọng để thích nghi với đặc điểm khu vực, bao gồm cả khí hậu nhiệt đới và cộng đồng dân cư, cụ thể:
- Tạo vùng đệm cách nhiệt giữa các khối nhà.
- Cung cấp không gian thư giãn, trồng cây, hoặc chỗ ngồi ngoài trời.
- Tăng cường riêng tư cho từng phòng mà không cần xây tường kín.
Đặc biệt, toàn bộ hệ cửa và cửa sổ của NN House được bố trí hướng Đông Bắc và Tây Nam, tận dụng gió chéo tự nhiên để đảm bảo không khí luôn lưu thông, giúp công trình “thở” quanh năm mà không phụ thuộc hoàn toàn vào điều hòa.
Giữa những khối nhà có các khoảng sân nhỏ với nhiều công năng khác nhau
Điều đặc biệt là trong NN House có rất nhiều cửa
Hệ cửa này giúp bầu không khí trong nhà luôn tươi mới, thoáng mát hơn
Bê tông trát và gạch thông gió - ngôn ngữ vật liệu bền vững của NN House
Chất liệu chủ đạo của NN House là bê tông trát, được chọn nhờ độ bền, khả năng chống mòn và chi phí bảo trì thấp - yếu tố quan trọng trong khí hậu nóng ẩm của Bangkok.
Bên cạnh đó, gạch bê tông thông gió cũng được sử dụng, vừa tạo được tính thẩm mỹ, vừa đáp ứng tốt các nhu cầu của gia chủ như:
- Che chắn khéo léo khu vực để đảm bảo sự riêng tư như nhà tắm.
- Ẩn các thiết bị kỹ thuật như máy lạnh, bồn nước mà vẫn thông thoáng.
- Tạo hiệu ứng ánh sáng - bóng đổ đẹp mắt, góp phần nhận diện đặc trưng cho công trình.
Nhờ vậy, NN House đạt được vẻ ngoài hiện đại, gọn gàng nhưng vẫn mềm mại và phù hợp với cảnh quan vùng ven đô.
Bê tông trát là chất liệu chủ đạo được sử dụng trong NN House do độ bền cao, phù hợp với khí hậu địa phương
Tường gạch thông gió là điểm nhấn đặc trưng của NN House
Lớp gạch thông gió giúp tạo sự riêng tư mà vẫn đảm bảo sự thông thoáng cần thiết
NN House sở hữu cách thiết kế ấn tượng nhưng vẫn hài hòa với bối cảnh xung quanh
NN House là ví dụ tiêu biểu cho tư duy kiến trúc thích ứng trong thời kỳ đô thị hóa nhanh: xoay góc nhà để “dự phòng” cho tương lai, chia nhà thành các khối để tối ưu công năng, và dùng vật liệu để hòa hợp khí hậu. Giữa vùng ven Bangkok đang thay đổi từng ngày, công trình vẫn giữ được tinh thần tĩnh tại, mộc mạc và bền vững - một ngôi nhà hiện đại nhưng không tách rời môi trường sống xung quanh. Cùng khám phá thêm nhiều công trình thú vị khác tại chuyên mục Chuyện nhà.
Bản vẽ chi tiết công trình
>>> Xem thêm: Rumah Miring - nhà nghiêng 70 độ giữa trời khiến ai cũng tò mò, thích thú
Thông tin công trình:
Tên ngôi nhà: NN House
Tổng diện tích (m2): 280
Năm hoàn thành: 2025
Đơn vị thiết kế: OO Studio
Đơn vị chụp ảnh: Art Chitsanupong
Địa điểm: Bang Khun Non, Bangkok Noi, Bangkok, Thái Lan
Số tầng: 2
Số phòng ngủ: 2
Loại nhà: Nhà ở
Nguồn: Archello
*Để lại thông tin trong box dưới đây, Happynest sẽ giúp bạn kết nối đơn vị thiết kế - thi công phù hợp và nhanh chóng nhất.



























































































































