Khi lựa chọn nhà thầu xây dựng, nhiều gia chủ thường chỉ nhận báo giá thông qua bản vẽ mặt bằng. Tuy nhiên cần lưu ý rằng, sơ đồ mặt bằng không phải lúc nào cũng thể hiện chi tiết từng hạng mục thiết kế. Vậy nên đến khi thi công thực tế, chi phí có xu hướng bị đội lên. Bài viết sau sẽ giúp bạn đọc nhận diện 4 rủi ro từ việc ký kết hợp đồng thi công nhưng chỉ dựa trên sơ đồ mặt bằng.
Nhận diện rủi ro phát sinh chi phí khi ký hợp đồng xây dựng dựa vào bản vẽ mặt bằng
1. Bản vẽ mặt bằng tối ưu cần đáp ứng những điều kiện gì?
Thực tế, không phải bản vẽ công trình nào gửi đến tay khách hàng cũng được tính toán kỹ. Trong nhiều trường hợp, các bản vẽ hoàn thiện trong thời gian ngắn thường không thể hiện chi tiết yêu cầu của gia chủ. Một phương án mặt bằng tối ưu cần đáp ứng tiêu chí về sự phù hợp với nhu cầu sinh hoạt, tính khả thi trong quá trình thi công và tuân thủ quy định trong luật xây dựng.
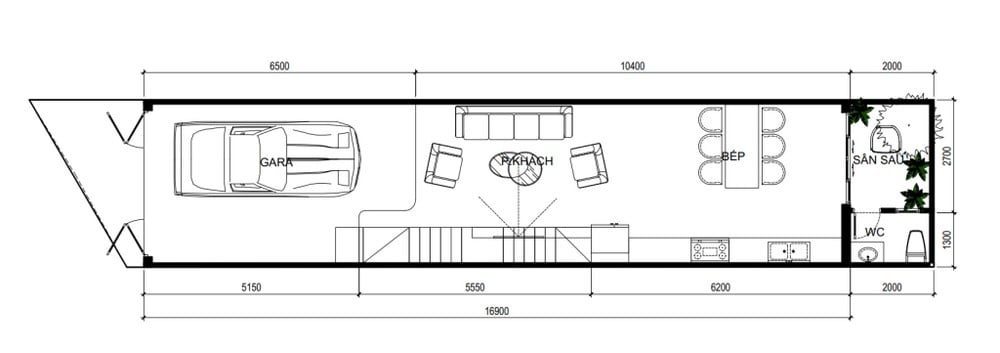
Phù hợp với yêu cầu sinh hoạt của gia chủ: Vật dụng cơ bản như bàn ghế, tủ, giường,... cần được thể hiện rõ trên bản vẽ dựa vào nhu cầu sinh hoạt thực tế. Đồng thời, kích thước của hành lang, từng khu vực sinh hoạt, lối đi cũng phải ghi chú rõ ràng theo yêu cầu của gia chủ.
Vật dụng cần thiết theo nhu cầu sinh hoạt của gia chủ nên có trong bản vẽ mặt bằng (Hình ảnh chỉ mang tính chất minh họa)
Tính khả thi khi thi công: Ngoài vật dụng nội thất cần thiết thì hệ thống cột, dầm, dây điện và ống thoát nước ngầm cũng phải có trên bản vẽ, kèm thông số kỹ thuật.
Bản vẽ công trình phải thể hiện được tính khả thi (Hình ảnh chỉ mang tính chất minh họa)
Tuân thủ quy định về luật xây dựng: Bản vẽ cần thể hiện chi tiết các thông số như chiều cao từng tầng, kích thước từng khu vực cũng như tổng thể công trình, mật độ xây dựng,... để phục vụ xin cấp phép xây dựng.
Thông số về kích thước công trình cũng như các khu vực trên bản vẽ mặt bằng (Hình ảnh chỉ mang tính chất minh họa)
>>> Tham khảo cách Hướng dẫn cách đọc bản vẽ xây dựng (kèm minh họa cụ thể)
2. Cơ sở bóc tách giá thi công hoàn thiện, tránh phát sinh chi phí
Để hạn chế tình trạng phát sinh chi phí trong quá trình thi công, báo giá cần đảm bảo tính chi tiết và chính xác dựa vào hồ sơ thiết kế. Trong đó, hồ sơ thiết kế cần đầy đủ các hạng mục sau:
- Kiến trúc tổng thể.
- Kết cấu công trình.
- Hệ thống điện nước.
- Phối cảnh 3D mặt tiền.
Báo giá thi công hoàn thiện cần được bóc tách chi tiết từng hạng mục
Ở phần kiến trúc, hồ sơ thiết kế cần cung cấp đầy đủ bản vẽ chi tiết. Ví dụ như bản vẽ sàn, trần, mặt đứng hoặc cắt ngang,... xây dựng thông qua phần mềm Autocad và xuất PDF. Khi đó, báo giá mới có thể được bóc tách theo từng hạng mục, sát với thực tế.
Trường hợp chỉ dựa vào bản vẽ mặt bằng, thiết kế thường bị ràng buộc với báo giá. Chẳng hạn từng cánh cửa phải giữ nguyên kích thước theo yêu cầu ban đầu. Sự ràng buộc này đôi khi không hài hòa với yêu cầu thẩm mỹ cũng như nhu cầu sử dụng.
Ngoài ra, trong quá trình thi công, khối lượng thực tế thường chênh lệch với báo giá, dẫn đến phát sinh chi phí. Cụ thể như:
- Trường hợp chi phí thực tế cao hơn dự toán: Gia chủ phải bổ sung kinh phí.
- Trường hợp chi phí thực tế thấp hơn dự toán: Gia chủ có thể không đồng ý trả thừa chi phí.
3. Nhận diện rủi ro phát sinh chi phí khi chỉ dựa vào sơ đồ mặt bằng vật dụng
Nếu không đọc kỹ hợp đồng, gia chủ dễ bị rơi vào “bẫy chi phí phát sinh” khi chỉ dựa vào bản vẽ mặt bằng vật dụng.
3.1. Không xác định rõ giải pháp kết cấu
Dễ thấy rằng, bản vẽ mặt bằng chỉ thể hiện vị trí, đồ đạc bố trí bề nổi không thể hiện rõ kết cấu phức tạp như nền móng, cột, trần, dầm. Trong khi đó, chính phần kết cấu chìm, phức tạp lại là yếu tố ảnh hưởng lớn đến chi phí thi công.
Giả sử:
- Hai căn nhà cùng diện tích 200m², ngôi nhà thứ nhất khởi công trên nền đất cứng không cần đến móng đơn, còn ngôi nhà còn lại xây trên nền đất yếu yêu cầu móng sâu. Nếu chỉ tính đến khâu làm móng, chi phí xây dựng cho mỗi căn nhà đã chênh lệch hàng trăm triệu đồng.
- Mặt khác, số lượng, kích thước cột và hệ thống dầm sẽ quyết định đến khối lượng thép và bê tông. Trường hợp bản vẽ không thể hiện đầy đủ thông tin này, chi phí thi công thực tế so với dự toán dễ chênh lệch lớn.
Nếu không nắm rõ giải pháp kết cấu, các bên dễ phải đối mặt với rủi ro đội giá
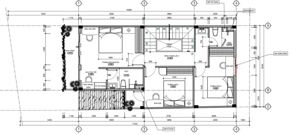
3.2. Không tính toán chính xác chiều cao
Các bản vẽ mặt bằng không phải lúc nào cũng thể hiện rõ độ cao của từng tầng, hệ thống cầu thang hoặc hành lang. Tuy nhiên, đây lại là yếu tố ảnh hưởng lớn đến chi phí thi công thực tế. Cụ thể:
- Nếu tầng cao hơn: Kéo theo chi phí tăng lên do phải sử dụng thêm vật liệu, nhân công.
- Nếu cầu thang dài hơn: Phải bố trí thêm bậc thang, tốn thêm vật liệu, khiến chi phí tăng lên.
Chiều cao mỗi tầng cần được tính toán kỹ lưỡng trước khi xây dựng
Nếu tính toán không chính xác, nhà thầu có thể phải bù lỗ nếu đã ký kết hợp đồng xây dựng kèm chi phí cố định với khách hàng.
3.3. Thông tin vật liệu hoàn thiện không rõ ràng
Bên cạnh phần xây dựng thô, công trình khi đi vào giai đoạn hoàn thiện thường có xu hướng phát sinh chi phí, bản vẽ mặt bằng không phải lúc nào cũng thể hiện chi tiết vật liệu cho giai đoạn hoàn tất. Chẳng hạn như:
- Vật liệu sử dụng để đóng cửa.
- Loại gạch lát nền.
- Yêu cầu sơn tường hoặc trang trí.
- Trang trí mặt tiền theo phối cảnh 3D.
Không nhiều gia chủ chú ý đến việc tìm hiểu vật liệu cho giai đoạn hoàn thiện khi ký kết hợp đồng
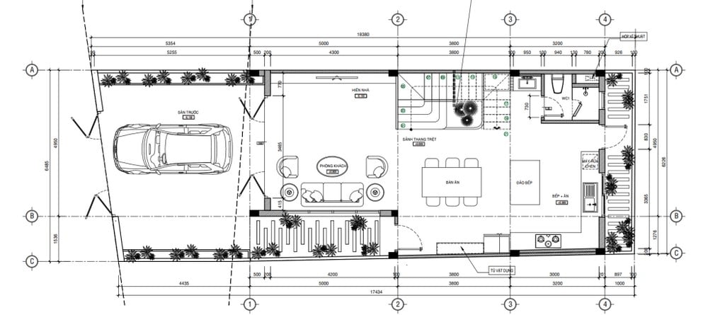
3.4. Hệ thống kỹ thuật (MEP) không được tính toán kỹ
Trong mỗi công trình, hệ thống kỹ thuật (MEP) thường bao gồm các nhóm hạng mục như:
- Hệ thống thiết bị điện: Gồm mạng lưới dây điện bố trí chìm hoặc nổi, ổ cắm điện, đèn chiếu sáng và thiết bị điện cần thiết khác.
- Hệ thống cấp thoát nước: Gồm mạng lưới ống thoát nước kết nối với máy bơm, giếng nước hoặc nước từ nhà máy, bể phốt.
- Hệ thống yêu cầu chống sét: Bao gồm camera an ninh, modem internet.
Hệ thống cấp thoát nước không được tính toán kỹ có thể khiến chi phí thi công gia tăng
Mặc dù vậy, bản vẽ mặt bằng chủ yếu vẫn tập trung vào công năng, bố trí khái quát mà chưa thể hiện chi tiết hệ thống MEP. Đến khi thi công, hàng loạt chi phí sẽ phát sinh do không được tính toán, dự trù trước.
Trong thực tế, nhiều gia chủ đã phải đục tường sau khi đã vào áo để đi lại dây điện, đào sàn nhà để chôn thêm ống nước,... Sự phát sinh này kéo theo việc phải dùng thêm nhân công, vật tư, kéo dài thời gian thi công.
>>> Tìm hiểu Kinh nghiệm lựa chọn nhà thầu thiết kế thi công dành cho gia chủ
4. Giải pháp tối ưu chi phí, tránh phát sinh
Để hạn chế rủi ro phát sinh chi phí hoàn thiện khi ký hợp đồng theo bản vẽ mặt bằng, gia chủ cần lưu ý:
- Yêu cầu bên thiết kế cung cấp hồ sơ chi tiết từng hạng mục: Ví dụ như bản vẽ kiến trúc tổng quan kèm kết cấu chi tiết, sơ đồ điện nước, phối cảnh 3D phần nội thất và ngoại thất.
- Yêu cầu bên thi công, thiết kế bóc tách cụ thể khối lượng: Ứng với mỗi hạng mục thi công phải kèm theo báo giá cụ thể. Chẳng hạn như chi phí lát sàn theo m², số lượng và chủng loại ổ cắm cần lắp đặt, số m² mặt sàn cần thi công.
- Thỏa thuận về điều khoản phát sinh: Cả gia chủ và nhà thầu cần thỏa thuận rõ mức độ phát sinh có thể chấp nhận. Cùng với đó là cam kết xử lý trong trường hợp phát sinh chi phí ngoài kế hoạch.
Cả gia chủ và nhà thầu cần bàn bạc kỹ trước khi ký hợp đồng
5. Giải đáp câu hỏi thường gặp
5.1. Nếu bên thiết kế chưa cung cấp phối cảnh 3D nội thất, tôi có nên ký hợp đồng không?
Trong trường hợp này, khách hàng chưa nên vội ký hợp đồng. Bởi phương án bố trí thiết bị, đồ dùng nội thất có liên hệ chặt chẽ với hệ thống kỹ thuật MEP, chi phí thi công một số hạng mục. Nếu không tính toán kỹ, chi phí thi công dễ bị đội lên cao.
5.2. Tôi muốn nâng cấp vật liệu, thiết bị nhưng nhà thầu lại báo giá quá cao thì phải làm sao?
Nếu đã ký hợp đồng thi công trước đó nhưng muốn yêu cầu nâng cấp vật liệu hoặc thiết bị, gia chủ nên đàm phán với bên nhà thầu. Trường hợp nhà thầu không đồng ý, khách hàng nên yêu cầu kiểm tra chứng từ đầu vào của các loại vật tư, tham khảo giá thị trường và đối chiếu với giá của bên nhà thầu. Khi nhận thấy giá nhà thầu đưa ra quá cao so với thị trường, gia chủ có thể yêu cầu đàm phán lại.
Tuy nhiên, để tránh tranh cãi không đáng có trong quá trình thi công, gia chủ tốt nhất nên đàm phán về định mức và chất lượng vật liệu, thiết bị trước khi ký hợp đồng. Chẳng hạn như yêu cầu mỗi viên gạch sử dụng trong công trình phải có giá từ 200.000đ (tránh tình trạng nhà thầu dùng vật liệu kém chất lượng).
5.3. Tôi có nên ký hợp đồng khi mới chỉ nhận báo giá sơ bộ không?
Trường hợp bên nhà thầu mới chỉ cung cấp báo giá sơ bộ, gia chủ chỉ nên xem đó như tài liệu tham khảo, không vội ký hợp đồng ngay nếu chưa nhận được báo giá chi tiết.
Như vậy, nếu chỉ dựa vào bản vẽ mặt bằng để ký kết hợp đồng thi công với nhà thầu, gia chủ có thể phải đối mặt với rủi ro phát sinh chi phí về sau. Vì thế, gia chủ cần chú ý đọc kỹ hợp đồng, yêu cầu nhà thầu cung cấp đầy đủ các bản thiết kế chi tiết, tính toán kỹ chi phí, bao gồm cả mức phát sinh trong giới hạn cho phép.
>>> Tham khảo Các đơn vị thiết kế và thi công nhà đẹp miền Bắc
Tổng hợp
Nếu bạn đang có nhu cầu thiết kế nhà ở, công trình, nội thất, hãy để lại lời nhắn trong box. Đội ngũ Happynest của chúng tôi sẽ liên hệ và hỗ trợ nhanh chóng.





































































































