Ẩn mình giữa những ngọn đồi rợp bóng cây tại vùng quê São Paulo, Pinheiro Farm là minh chứng cho việc kiến trúc có thể đối thoại và phát triển cùng thời gian. Được xây dựng từ những năm 1980 với vai trò là nhà điều hành trang trại, công trình vừa được Equipe Lamas cải tạo để phù hợp với nhịp sống đương đại, đồng thời thắt chặt mối liên kết giữa con người và cảnh quan.
Toàn cảnh nông trại Pinheiro Farm ẩn mình giữa những ngọn đồi rợp bóng cây xanh mát
Giữ gìn cốt cách kiến trúc thập niên 80
Thay vì đập bỏ hoàn toàn để chạy theo xu hướng mới, đội ngũ kiến trúc sư đã chọn cách tiếp cận tôn trọng quá khứ, giữ lại những đường nét đặc trưng nhất đã làm nên linh hồn của ngôi nhà cũ.
>>> Xem thêm: Nhà gỗ kiểu nông trại thiết kế mái dốc và bố cục lệch tầng hòa cùng nhịp thở sông nước
Cấu trúc hình chữ U nguyên bản và hệ mái ngói đất sét được bảo tồn trọn vẹn
Ngôi nhà nằm giữa cảnh quan thiên nhiên trù phú, giữ lại vẻ đẹp mộc mạc của kiến trúc trang trại thập niên 80
Các hạng mục mang tính nhận diện cao như mái ngói đất sét, hệ mái hiên rộng và cấu trúc mặt bằng hình chữ U nguyên bản đều được bảo tồn nguyên vẹn. Sự can thiệp của Equipe Lamas tập trung vào việc tổ chức lại không gian nội thất.
Hệ mái hiên rộng đặc trưng giúp che chắn nắng mưa và tạo khoảng đệm không gian lý tưởng
Những hàng cột gạch mộc và mái ngói đỏ tạo nên nét hoài cổ, bình yên cho công trình
Mục tiêu là tạo ra một trải nghiệm sống trôi chảy hơn, xóa bỏ sự ngăn cách cứng nhắc thường thấy trong các ngôi nhà cũ để các khu vực chức năng có sự kết nối liền mạch.
Hành lang dài chạy dọc theo ngôi nhà được giữ nguyên, kết nối các không gian chức năng
Ánh nắng chiều tạo nên những vệt sáng tối nghệ thuật dọc theo hành lang lát gạch
Biến nhà bếp thành trái tim của không gian sống
Điểm nhấn thay đổi lớn nhất nằm ở khu vực sinh hoạt chung, nơi ranh giới giữa không gian trong nhà và sân vườn dường như bị xóa nhòa hoàn toàn nhờ giải pháp cửa thông minh.
Góc nhìn từ bàn ăn hướng ra sân trong, nơi thiên nhiên ùa vào nhà qua hệ cửa mở rộng
Khu vực bếp nấu nay đã trở thành trái tim của dự án, được đặt ở vị trí trung tâm, nằm giữa phòng ăn và phòng giải trí. Không gian mở toang ra sân trong thông qua hệ cửa trượt khổ lớn kết hợp kính và gỗ. Thiết kế giúp giải phóng tầm nhìn, đưa thiên nhiên ùa vào nhà. Để tạo sự liền mạch thị giác, kiến trúc sư sử dụng gạch bông thủy lực với tông màu của đất địa phương, lát xuyên suốt kết nối các không gian, củng cố sự liên tục giữa trong và ngoài.
Căn bếp hiện đại với hệ tủ gỗ và đảo bếp bằng đá cẩm thạch trắng sang trọng
Bếp nằm ở vị trí trung tâm, kết nối trực tiếp với bàn ăn và khu vực sinh hoạt chung
Khu vực bàn ăn rộng rãi, tràn ngập ánh sáng tự nhiên và cây xanh
Sự kết nối liền mạch giữa phòng khách, phòng ăn và không gian bên ngoài
>>> Xem thêm: Về quê xây nhà nghỉ nông trại để tránh xa các thiết bị hiện đại, yêu thiên nhiên nhiều hơn
Vật liệu tự nhiên và giải pháp lấy sáng tinh tế
Sự tinh tế trong việc lựa chọn vật liệu ốp lát và điều chỉnh kích thước các ô cửa đã mang lại cảm giác ấm cúng, sang trọng thầm lặng cho không gian nghỉ ngơi của gia chủ.
Không gian phòng khách rộng lớn với sàn gỗ Peroba thay thế cho nền đá cũ
Bộ sofa màu trắng kem trang nhã làm nền cho các chi tiết nội thất gỗ và tranh nghệ thuật
Các phòng ngủ và phòng tắm vẫn giữ nguyên vị trí ban đầu nhưng được khoác lên mình diện mạo mới nhờ các vật liệu tự nhiên, ấm áp. Sàn gỗ Peroba đã thay thế cho nền đá phiến cũ kỹ ở cả khu vực sinh hoạt chung và riêng tư. Trong khi đó, phòng tắm toát lên vẻ đẹp thanh lịch nhờ sự kết hợp giữa đá cẩm thạch trắng nội địa và gỗ thông đặc.
Phòng tắm được cải tạo lại với vẻ đẹp hiện đại, kết hợp giữa gỗ và đá ốp tường sáng màu
Đặc biệt, các khung cửa sổ vẫn giữ màu xanh lục địa phương đặc trưng nhưng được mở rộng kích thước, cho phép ánh sáng và gió trời lưu thông nhẹ nhàng, dồi dào khắp ngôi nhà.
Phòng ngủ với khung cửa sổ lớn màu xanh lục, mở rộng tầm nhìn ra khu vườn xanh mát
Nội thất phòng ngủ tối giản, đề cao sự thư giãn với ánh sáng tự nhiên ngập tràn
Sự giao thoa giữa nội thất và cảnh quan bản địa
Không gian sống tại Pinheiro Farm trở nên trọn vẹn và giàu cảm xúc hơn nhờ sự kết hợp hài hòa giữa nội thất nghệ thuật đa phong cách cùng giải pháp cảnh quan tôn trọng hệ sinh thái.
Khu vực tiếp khách phụ với bộ sofa màu vàng mù tạt nổi bật trên nền sàn gỗ
Màu sắc nội thất rực rỡ tạo điểm nhấn vui tươi, đối lập với sự tĩnh lặng của kiến trúc
Đồ nội thất là sự tập hợp thú vị giữa các món đồ hiện đại, những kỷ vật gia đình và cả những thiết kế đương đại do chính kiến trúc sư Samuel Lamas sáng tạo. Trên nền tường trắng giúp tĩnh lặng hóa kiến trúc, các tác phẩm nghệ thuật và nội thất mang tông màu đất rực rỡ trở nên nổi bật, tạo nên bầu không khí vừa thanh bình vừa sống động.
Một góc thư giãn đầy phong cách với chiếc ghế bành màu cam đất ấn tượng
Ghế ngồi bên hiên nhà, nơi gia chủ có thể tận hưởng không khí trong lành
Bên ngoài, kiến trúc sư cảnh quan Fausto Maule đã bổ sung các loài cây bản địa nở hoa quanh năm, không chỉ làm đẹp mà còn thu hút chim chóc, mở rộng không gian sống về phía đường chân trời.
Bức tranh nghệ thuật khổ lớn với màu sắc sống động là điểm nhấn cho phòng khách
Khu vực sảnh đón với bàn console gỗ mộc mạc và các vật dụng trang trí tinh tế
Sân trong xanh mát tạo nên một ốc đảo riêng tư cho ngôi nhà
Cây xanh được trồng sát hiên nhà, xóa mờ ranh giới giữa nội thất và ngoại thất
Những khung cửa sổ như những bức tranh thiên nhiên sống động thay đổi theo mùa
Góc hiên nhà yên tĩnh với chiếc ghế da bò, nơi thời gian như ngừng trôi
Pinheiro Farm là một ngôi nhà biết biến đổi mình trong khi vẫn trân trọng ký ức. Đó là một bài tập về sự tổng hòa và gắn kết, nơi mỗi chi tiết đều bộc lộ những gì cốt yếu nhất: sự giao thoa giữa ánh sáng, vật chất, thời gian và cảnh quan thiên nhiên. Khám phá thêm nhiều công trình độc đáo tại Chuyện nhà.
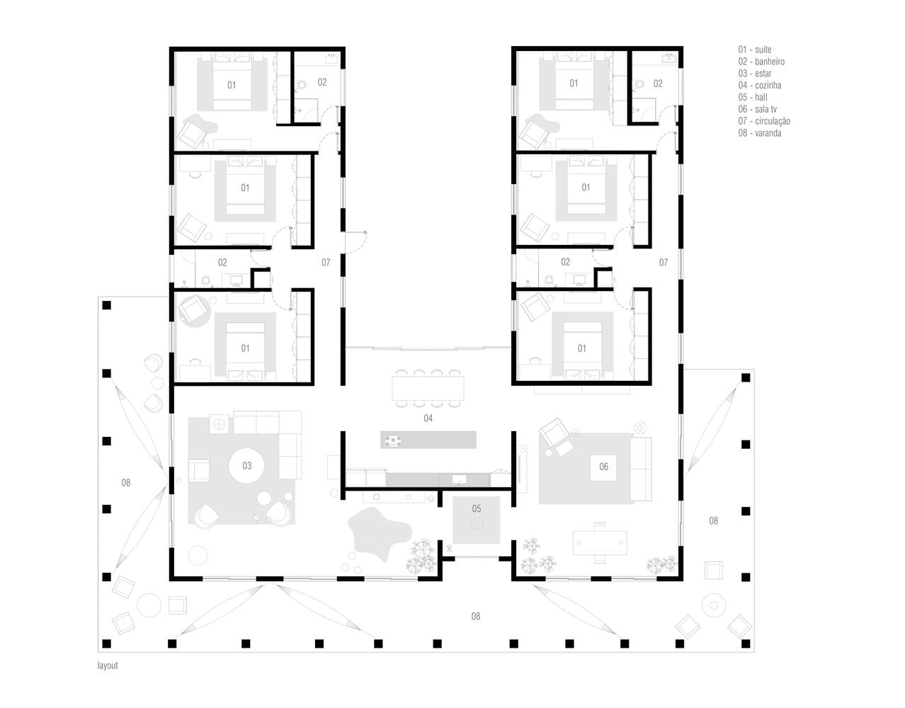
Bản vẽ mặt bằng bố trí nội thất tổng thể của Pinheiro Farm
>>> Xem thêm: Cha Arnon Farm - Không gian thương mại được tạo nên từ gỗ cũ và ký ức nông thôn
Thông tin công trình:
Tên ngôi nhà: Pinheiro Farm
Tổng diện tích (m2): 600
Năm hoàn thành: 2024
Đơn vị thiết kế: Equipe Lamas
Đơn vị chụp ảnh: Joana França
Địa điểm: São José do Rio Pardo, Brazil
Số tầng: 1
Số phòng ngủ: 7
Loại nhà: Nhà nông trại
Nguồn: Archdaily
*Để lại thông tin trong box dưới đây, Happynest sẽ giúp bạn kết nối đơn vị thiết kế - thi công phù hợp và nhanh chóng nhất.




















































































































