Tọa lạc tại vùng ngoại ô Lumbisí (Quito, Ecuador), Casa Afuera là ngôi nhà dành cho một gia đình có tình yêu sâu sắc với thiên nhiên. Mong muốn lớn nhất của họ là có một nơi ở thật thoáng sáng, yên bình và kết nối được với cây cối xung quanh.
Từ đó, nhóm kiến trúc sư đã chọn cách không “ép” thiên nhiên phải nhường chỗ cho công trình, mà để ngôi nhà tự uốn mình theo địa hình, theo vị trí của từng gốc cây. Kết quả là một không gian sống giản dị, mộc mạc, nhưng lại chan hòa với cảnh quan và đầy cảm xúc.
Tóm tắt nhanh các giải pháp thiết kế của Casa Afuera
-
Ngôi nhà được thiết kế để giữ nguyên cây xanh, cho kiến trúc hòa vào tự nhiên.
-
Tầng trệt mở hoàn toàn ra vườn, các không gian nối liền nhau bằng sàn gỗ ngoài trời.
-
Cây bơ lớn ở sân trước vừa là điểm nhấn, vừa là trục giao thông chính.
-
Sân thượng tầng trên ngang tầm tán cây, tạo góc nhìn rộng ra núi và cảnh quan.
-
Triết lý “unfinished”: Coi ngôi nhà là không gian được sống cùng thời gian, không cần hoàn hảo tuyệt đối.
Ý tưởng thiết kế: Sống giữa thiên nhiên, không tách biệt
Điểm đặc biệt của Casa Afuera nằm ở cách công trình “ăn nhập” với môi trường xung quanh. Thay vì san phẳng khu đất hay chặt bỏ cây cối, nhóm thiết kế để ngôi nhà phát triển tự nhiên giữa những khoảng trống sẵn có. Cây lớn được giữ nguyên, trở thành ranh giới mềm giữa các khối nhà. Nhờ vậy, dù được xây mới, công trình vẫn như đã tồn tại ở đó từ lâu, hòa cùng cây, gió và ánh sáng.
Kiến trúc sư cũng chủ đích để các khoảng chuyển tiếp như hiên, deck gỗ, khoảng trống giữa hai khối nhà trở thành phần “đệm” giữa trong và ngoài. Ở đây, người ở có thể vừa đi lại, vừa ngắm cảnh, vừa cảm nhận hơi thở của thiên nhiên ngay khi ở trong nhà.
Mặt tiền Casa Afuera với mái dốc gãy khúc tạo hình sinh động, kết hợp vật liệu gỗ và kính cho cảm giác ấm áp, gần gũi. Hệ mái vươn dài giúp che nắng mưa tự nhiên, đồng thời mở rộng tầm nhìn ra khu vườn
>>> Xem thêm: Tổng hợp 20 ngôi nhà kết nối thiên nhiên tuyệt đẹp tại Việt Nam
Tổ chức không gian mở - linh hoạt - kết nối
Sân trước: Cây bơ lớn và thảm cỏ tự nhiên
Phía trước ngôi nhà là một thảm cỏ xanh rộng, nơi cây bơ cao lớn được giữ lại như “linh hồn” của toàn bộ khu đất. Bao quanh nó là lối đi và không gian mở, tạo nên cảm giác yên bình ngay từ khi bước vào. Cây bơ không chỉ để ngắm mà còn đóng vai trò định vị cho trục cầu thang trong nhà một cách vừa thơ, vừa hợp lý.
Khoảng sân trước với thảm cỏ và cây bơ lớn được giữ lại làm điểm nhấn trung tâm. Deck gỗ rộng kết nối liền hiên và lối vào, tạo không gian thư giãn ngoài trời
Toàn cảnh sân trước nhìn từ góc cao, cho thấy cấu trúc nhà mở ra bốn phía. Các khối mái thấp - cao xen kẽ tạo hiệu ứng thị giác nhẹ nhàng, đồng thời giúp điều tiết ánh sáng
Góc chụp từ trên cao cho thấy cây xanh xen kẽ trong bố cục công trình. Ngôi nhà được bố trí “né” cây, giữ trọn mảng xanh tự nhiên trong lòng không gian sống
Lối vào chính với cửa gỗ chạm khối vuông nổi và mái kính lấy sáng tự nhiên. Ánh sáng xuyên qua khung gỗ tạo hoa văn bóng đổ đẹp mắt, mang lại cảm giác ấm cúng khi bước vào
Khoảng sân trung tâm giữa hai khối nhà kết hợp hồ nước và bồn cây nổi bằng đá tự nhiên. Đây là điểm ngắt chuyển tiếp giữa không gian trong - ngoài, giúp hạ nhiệt và tạo vi khí hậu dễ chịu
Tầng trệt: Không gian sinh hoạt mở ra vườn
Tầng trệt là nơi mọi sinh hoạt chung diễn ra: phòng khách, bếp và khu ăn uống đều nằm trên cùng một mặt sàn. Thay vì ngăn bằng tường, các khu vực được nối liền nhau bằng sàn gỗ ngoài trời (deck) chạy liên tục quanh nhà. Những mảng cửa kính lớn có thể trượt hoàn toàn, giúp ánh sáng và gió tự nhiên tràn vào mọi góc.
Vào ban ngày, người ở hầu như không cần bật đèn hay điều hòa - mọi thứ vận hành theo đúng cách mà thiên nhiên ban tặng. Khi cửa được mở, cảm giác ranh giới giữa trong và ngoài biến mất: bạn có thể nấu ăn, trò chuyện hay thư giãn mà vẫn nhìn thấy cây, nghe tiếng nước và cảm nhận hơi gió.
Không gian phòng khách - ăn thông tầng với vách kính lớn nhìn ra vườn. Cách mở trọn tầm nhìn này giúp ánh sáng tự nhiên lan tỏa khắp nhà, làm nổi bật đồ nội thất mộc và tinh tế
Không gian sinh hoạt chung kết hợp phòng ăn và hành lang thông tầng. Kết cấu dầm gỗ kết hợp thép lộ thiên giúp trần cao thoáng, đồng thời gợi cảm giác ấm áp và thủ công
>>> Xem thêm: Nhà ở Quế Võ - Không gian sống Tropical Modern kết nối trọn vẹn với thiên nhiên
Phía sau: Không gian yên tĩnh và linh hoạt
Ở phần sau khu đất, nơi cây cối dày đặc hơn, các phòng nhỏ và khu vực làm việc được bố trí linh hoạt. Nhờ hệ deck chạy vòng quanh, bạn có thể đi dạo giữa các khối nhà, dừng lại ở một góc hiên để đọc sách hay ngắm cảnh. Cách tổ chức này khiến ngôi nhà luôn có nhiều “góc sống” khác nhau - mỗi vị trí là một trải nghiệm riêng.
Khoảng sân vườn buổi tối được chiếu sáng nhẹ, các cột bê tông và giàn gỗ tạo khung không gian mở. Ánh sáng và vật liệu tự nhiên giúp công trình duy trì cảm giác ấm cúng, gần gũi ngay cả khi trời tối
Tầng trên: Chạm vào tán cây
Trên tầng 2, sân thượng là không gian được yêu thích nhất. Một phòng tập nhỏ được đặt ở cao độ ngang tán cây, nơi người ở có thể vừa vận động, vừa ngắm núi và hít thở không khí trong lành. Kết cấu lan can mảnh và vật liệu trung tính giúp khối nhà gần như “tan” vào nền trời, tạo cảm giác nhẹ nhàng, an yên.
Từ góc này, Casa Afuera giống như đang lơ lửng giữa mây và lá, nơi con người và thiên nhiên tìm được sự cân bằng tự nhiên.
Hành lang tầng trên với sàn gỗ sáng màu và lan can sắt đen tối giản. Giếng trời lớn giúp ánh sáng tự nhiên tràn ngập, tạo cảm giác không gian luôn rộng và thoáng
Vật liệu và triết lý “unfinished”: Vẻ đẹp của sự dang dở
Quá trình xây dựng ngôi nhà kéo dài do ảnh hưởng của đại dịch, khiến một số chi tiết chưa hoàn thiện - chẳng hạn băng ghế gỗ ở mặt tiền còn lộ khung kim loại. Thay vì che giấu, nhóm thiết kế quyết định ghi lại công trình ở trạng thái đó như một lời nhắc: một ngôi nhà thật sự đẹp không nhất thiết phải hoàn hảo.
Bê tông thô, thép đen và gỗ tự nhiên là ba vật liệu chính, mang lại vẻ mộc mạc và chân thật. Chúng được để nguyên bản, không đánh bóng, để thời gian và thời tiết tự hoàn thiện tác phẩm. Chính điều này khiến Casa Afuera trở nên “sống” - nó thay đổi theo từng mùa, từng năm, cùng với những người ở bên trong.
Toàn cảnh mái nhà hướng ra núi, cho thấy sự kết nối hài hòa giữa kiến trúc và địa hình. Đường nét mái dốc mạnh mẽ nhưng nhẹ nhàng, giúp công trình hòa vào cảnh quan vùng cao
Góc nhìn từ trên xuống thể hiện bố cục sân gỗ, chậu cây trung tâm và mảng cỏ bao quanh. Deck gỗ tạo mặt bằng sinh hoạt ngoài trời, thuận tiện di chuyển và đón ánh sáng tự nhiên
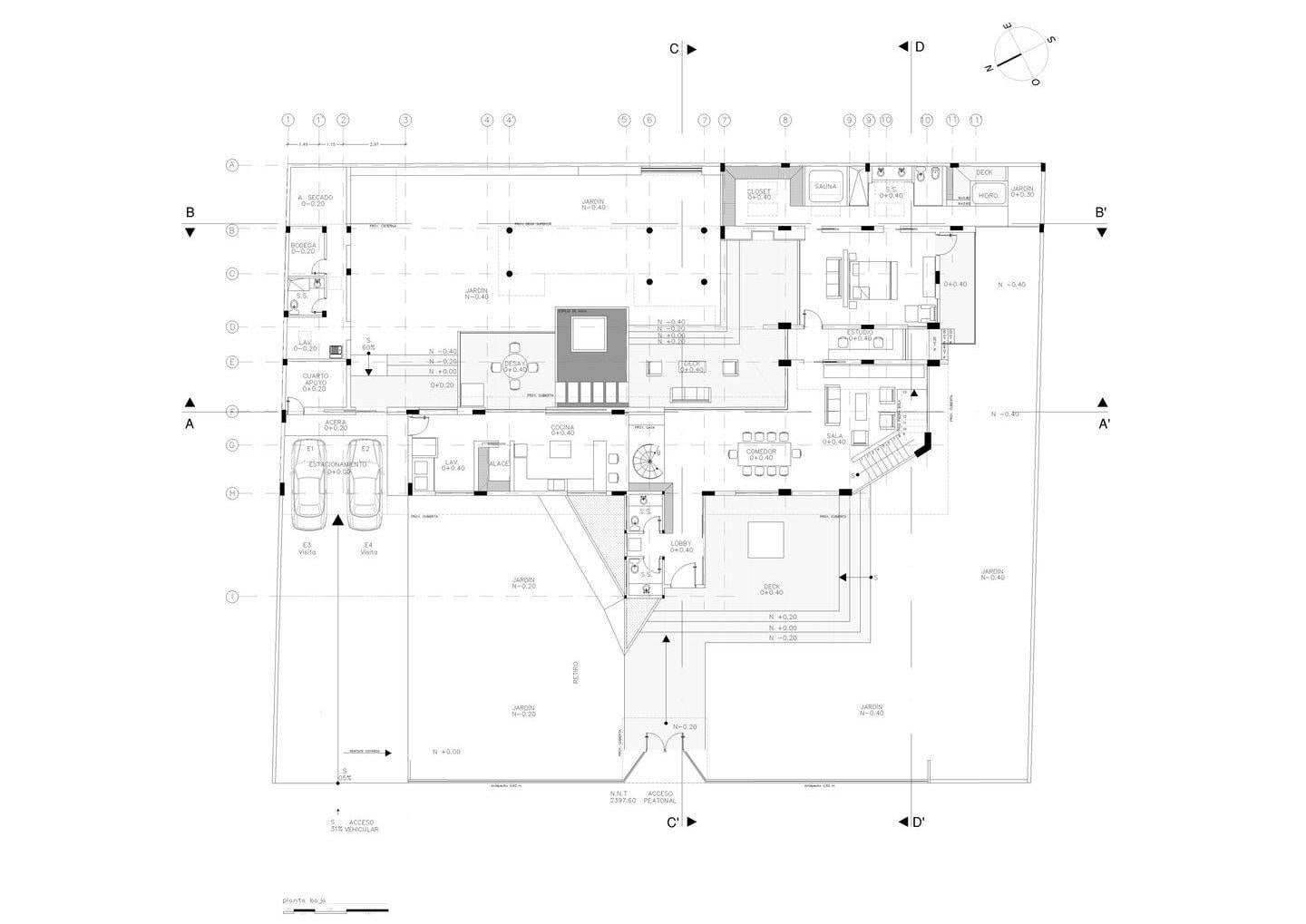
Bản vẽ mặt bằng tầng trệt thể hiện bố cục mở với phòng khách, bếp và khu sinh hoạt liên hoàn. Các không gian được tổ chức quanh sân trong và hồ nước trung tâm, đảm bảo thông gió tự nhiên
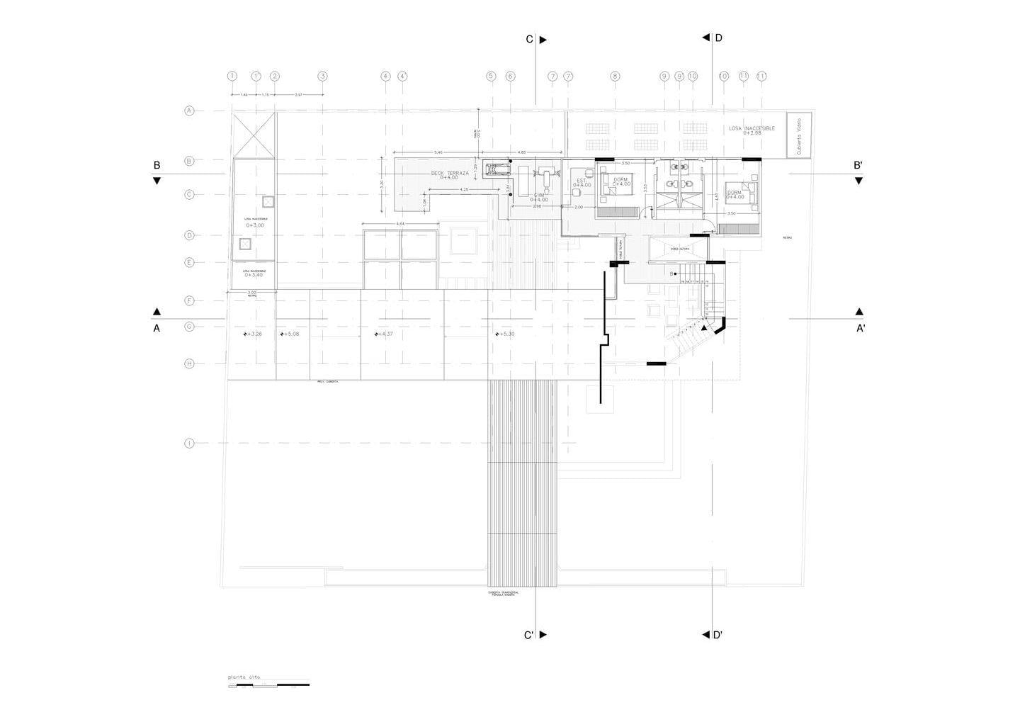
Bản vẽ mặt bằng tầng trên cho thấy sự tiếp nối không gian dọc theo trục ánh sáng và gió. Khu vực phòng ngủ và sân thượng được bố trí để mở rộng tầm nhìn ra cảnh quan
Bản vẽ tầng mái thể hiện hệ thống giếng trời và khu sân thượng kết nối tán cây. Giải pháp này giúp tận dụng ánh sáng tự nhiên và tăng khả năng thông thoáng
Bản vẽ mặt cắt đứng cho thấy không gian hai tầng với cầu thang và giếng trời lấy sáng. Cây xanh được đưa vào sát mép nhà, góp phần cân bằng khí hậu trong - ngoài
Hai mặt cắt ngang mô tả rõ mái dốc gãy khúc đặc trưng của công trình. Đường mái này giúp thoát nước mưa hiệu quả và tạo hình kiến trúc mềm mại khi nhìn từ xa
Mặt cắt dọc toàn công trình cho thấy mối liên kết giữa các khối nhà và sân vườn. Hệ mái cao - thấp xen kẽ tạo sự chuyển tiếp tự nhiên giữa các không gian sinh hoạt và cảnh quan
>>> Xem thêm: P’House - Không gian sống hiện đại kết nối thiên nhiên, tối ưu tiện nghi với sản phẩm LG
Casa Afuera là ví dụ rõ ràng cho cách kiến trúc có thể dung hòa với tự nhiên thay vì đối đầu. Ngôi nhà không tách mình khỏi cây cối, mà coi chúng như một phần của đời sống. Ở đây, mỗi bước chân đều có thể chạm vào ánh sáng, gió và mùi hương của đất trời. Và có lẽ, đó mới là giá trị thật sự của một ngôi nhà: được sống, được thở cùng thiên nhiên.
Cùng khám phá thêm nhiều ngôi nhà độc đáo tại chuyên mục Chuyện nhà của Happynest nhé.
Thông tin công trình
Tên ngôi nhà: Casa Afuera
Năm hoàn thành: 2022
Địa điểm: Lumbisí, Quito, Ecuador
Phong cách thiết kế: Hiện đại, gắn kết tự nhiên (organic architecture)
Số tầng: 2
Loại nhà: Nhà vườn
Nguồn: Archello
*Để lại thông tin trong box dưới đây, Happynest sẽ giúp bạn kết nối đơn vị thiết kế - thi công phù hợp và nhanh chóng nhất.











































































































