Không cần diện tích lớn hay vị trí đắt giá, một tổ ấm lý tưởng đôi khi chỉ cần nằm gần nơi bạn có thể hít thở mỗi sáng, đạp xe mỗi chiều. Với cặp vợ chồng vận động viên này, House MA là giấc mơ thành hiện thực: một ngôi nhà ống 4x18 nằm trong hẻm cụt ở São Paulo, Brazil – nơi hội tụ ánh sáng, gió trời và cả niềm đam mê thể thao trong từng góc nhỏ.
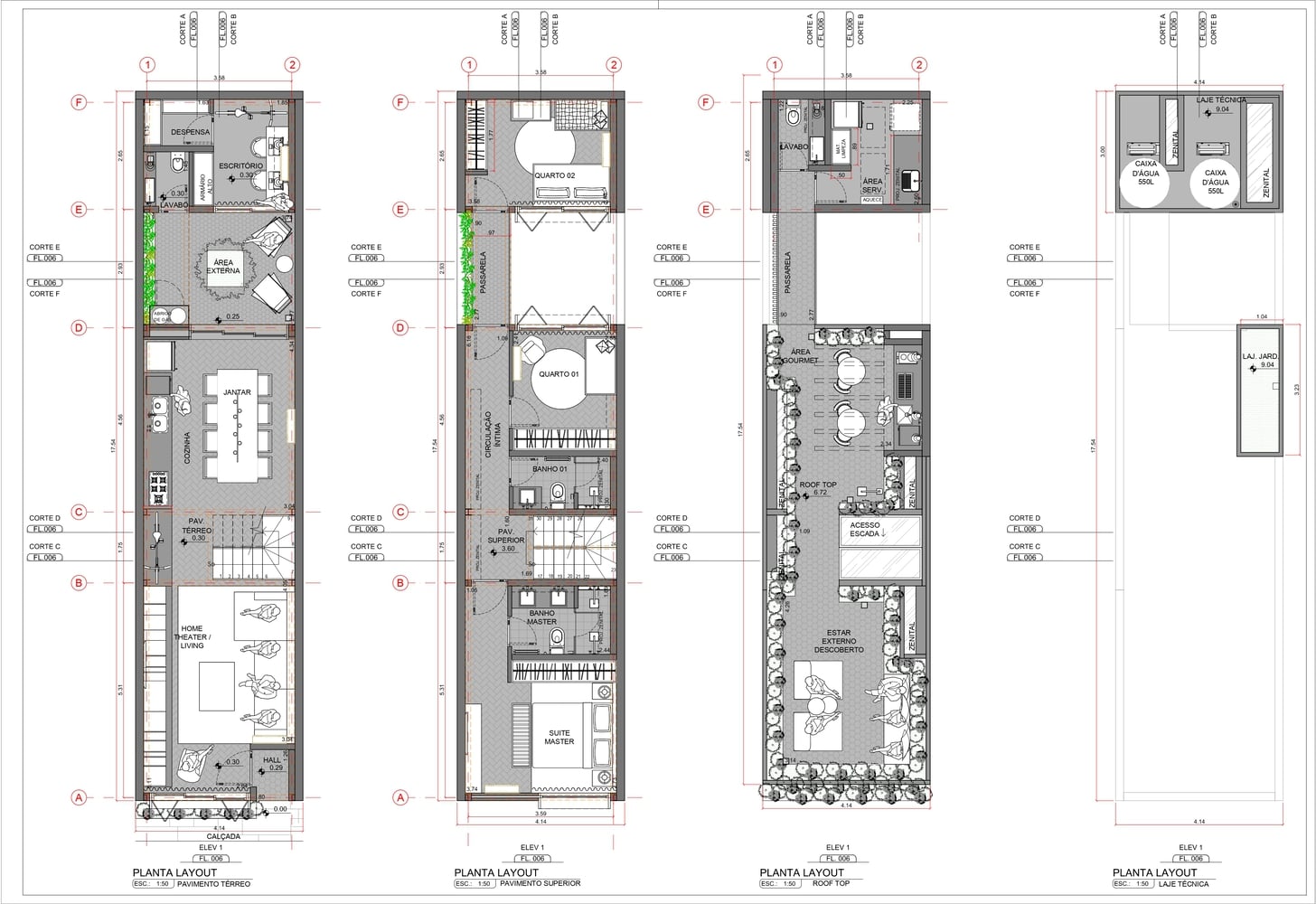
House MA là một ngôi nhà ống với chiều ngang hẹp 4m, chiều dài 18m, xung quanh là các nhà hàng xóm
Hiện trạng của ngôi nhà cũ và mong ước có một ngôi nhà ấm cúng của gia chủ
Mong muốn của cặp đôi gia chủ là một không gian ấm cúng, mang phong cách công nghiệp nhưng vẫn chan hòa thiên nhiên, nơi bạn bè có thể tụ họp và tương lai con cái có thể vui chơi cùng chú chó cưng Moleque.
Tuy nhiên, hiện trạng ban đầu là một công trình dạng nhà ống liền kề cũ kỹ: tường thấp, khung cửa nhỏ, nhiều mảng tối không sử dụng, và đặc biệt là cầu thang bê tông nặng nề chia cắt toàn bộ khu vực sinh hoạt. Sau nhiều lần khảo sát, KTS đã quyết định phá dỡ toàn bộ và xây lại từ đầu. Đây thực sự là một cuộc chạy đua với thời gian khi đứa con đầu lòng của cặp đôi gia chủ đang chuẩn bị chào đời.
>>> Xem thêm: Nhà ống 3,6x14m trong ngõ nhỏ, thiết kế “cân đo" mọi mặt để đáp ứng gia đình tứ đại đồng đường
House MA sẽ được xây lại gần như hoàn toàn và đây là bản thiết kế chi tiết công trình mới
House MA sẽ gồm hai khối nhà, vườn trung tâm với kết cấu thép nhanh gọn
Khu đất có diện tích vừa phải, không quá rộng và bao quanh bởi các ngôi nhà hàng xóm là một thách thức khá lớn để đáp ứng mọi nhu cầu của gia chủ. Lúc này, kết cấu thép được lựa chọn do ưu điểm thi công nhanh và sạch, gần như toàn bộ công trình cũ sẽ bị dỡ bỏ, chỉ để lại những bức tường gạch chịu lực giáp ranh.
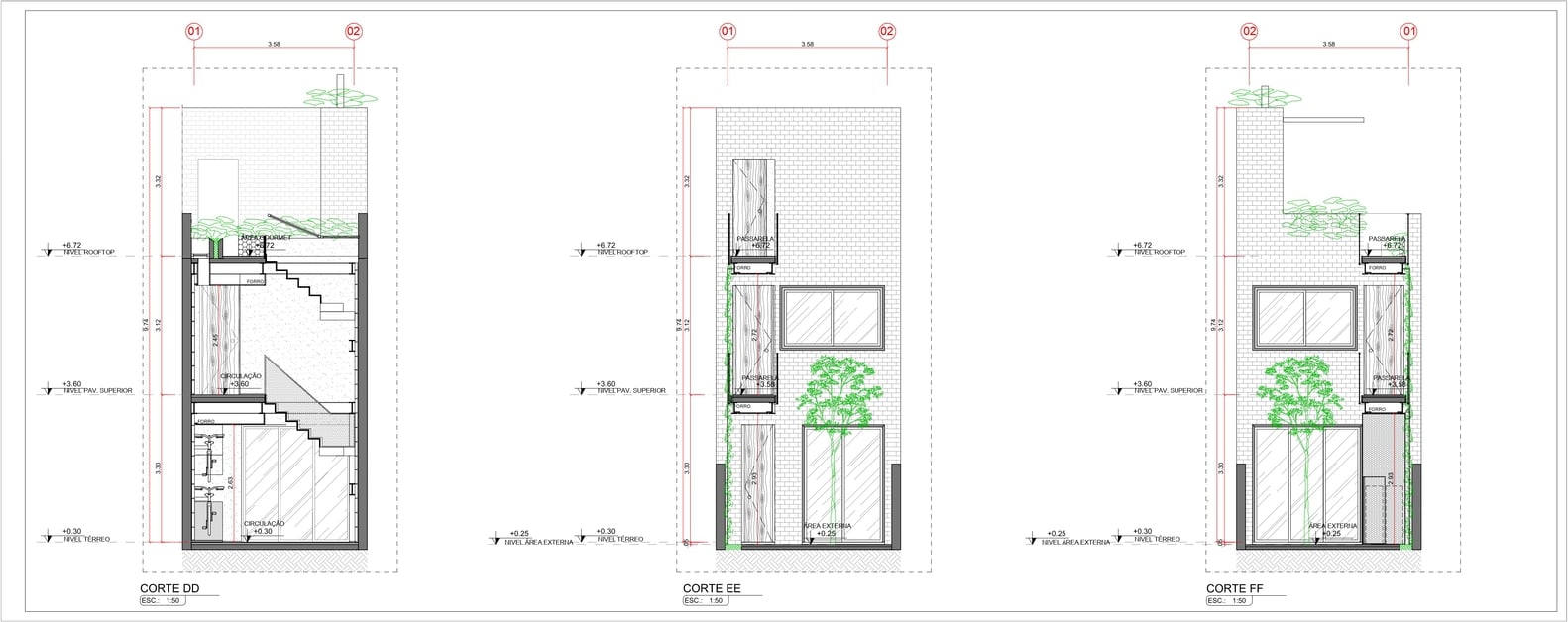
Ngôi nhà được chia thành ba tầng: tầng trệt, tầng một và tầng thượng, nhưng đặc biệt là chia thành hai khối song song, liên kết bằng lối cầu thang thép. Ở giữa là khu vườn trung tâm với cây Araça bản địa, đóng vai trò điều tiết vi khí hậu và tạo tầm nhìn xanh từ các phòng ngủ. Việc tích hợp giữa các khu vực chức năng khác nhau ở tầng trệt được tối ưu để tận dụng ánh sáng tự nhiên và thông gió chéo, phá bỏ cảm giác chật hẹp vốn có của nhà ống.
House MA nhìn từ trên cao xuống với 2 khối nhà phía trước và phía sau rõ rệt, ở giữa là giếng trời với lối cầu thang thép
Tầng trệt mở hoàn toàn và gắn kết qua “kệ bê tông đa chức năng”
Tầng trệt là không gian được ưu tiên nhất vì phải phục vụ sinh hoạt chung, tập luyện, tiếp khách và trưng bày 5 chiếc xe đạp của gia chủ. KTS thiết kế nên một hệ kệ bê tông đa năng tạo điểm nhấn xuyên suốt: bắt đầu từ phòng khách như một băng ghế, vươn dài thành hệ kệ với thanh thép để treo hai chiếc xe đạp nổi bật, và kết thúc ở bếp với vai trò là mặt bàn, tích hợp với phòng ăn.
Tầng trệt được thiết kế mở thông liền mạch
Chiếc kệ bê tông kéo dài từ lối vào phòng khách, tích hợp với kệ thép
Những chiếc xe đạp yêu thích của gia chủ cũng được trưng bày ở phòng khách
Phần cuối của hệ kệ bê tông là chính là phần khung và mặt bếp
Phong cách công nghiệp được thể hiện mạnh mẽ qua dầm thép đen nổi bật trên nền tường gạch cũ sơn trắng, hệ điện nổi, chiếu sáng trên ray, cầu thang thép gấp và lan can lưới kim loại. Để cân bằng lại bầu không khí, sản gỗ sử dụng gỗ Tauari xương cá và khung cửa Freijó mang lại sự ấm áp.
Phong cách công nghiệp nổi bật trong không gian nhưng được làm mềm bởi chất liệu gỗ và một số món đồ nội thất khác
Kệ treo xe đạp không chỉ đóng vai trò lưu trữ, trưng bày mà còn tô điểm thêm nét công nghiệp của House MA
Nếu khối chính gồm các không gian sinh hoạt chung thì khối thứ hai của tầng trệt là phòng làm việc, kho và nhà vệ sinh. Cách bố trí này tách biệt đủ để tạo sự riêng tư và hướng tầm nhìn ra khu vườn trung tâm. Dưới gầm cầu thang, đội ngũ KTS đã thiết kế thêm một quầy bar bê tông, nối liền với các bậc cầu thang theo yêu cầu của gia chủ để phục vụ những buổi tụ tập bạn bè.
Khối nhà thứ 2, nằm phía sau vườn là phòng làm việc và kho
Phía dưới cầu thang cũng có một quầy bar nhỏ và ngăn kéo đựng đồ được làm bằng bê tông
>>> Xem thêm: Nhà ống trong hẻm nhỏ của gia đình 3 thế hệ tại Hội An, gây ấn tượng nhờ khoảng sân xanh mát ngay giữa nhà
Tầng 1 đầy ắp ánh sáng từ giếng trời & sự ấm áp từ vật liệu tự nhiên
Tầng 1 được thiết kế khá riêng tư với phòng ngủ chính, hành lang dài và phòng trẻ em. Giếng trời kéo dài giúp lấy ánh sáng tự nhiên và như mang một “một mảnh bầu trời" trong nhà. Những bức tường gạch được để lộ nguyên bản khi bóc lớp trát, giúp nhấn mạnh chất thô mộc của công trình.
Lối cầu thang dẫn từ tầng trệt lên tầng 2 là cầu thang thép nhưng vẫn đảm bảo lưu thông ánh sáng
Ngay khi bước lên tầng 2, giếng trời kéo dài dọc hành lang là chi tiết bắt mắt nhất
Thiết kế này như mang một phần bầu trời vào trong không gian
Phòng ngủ chính có cửa trượt lớn hướng ra mặt tiền, mang lại sự thoáng đãng. Phòng tắm chính sử dụng gạch thủy lực hồng nhạt và xi măng đánh bóng, kết hợp giếng trời để thông gió và chiếu sáng tự nhiên.
Phòng ngủ chính rộng rãi, nằm ngay cạnh mặt tiền
Bầu không khí trong phòng ấm cúng, phong cách công nghiệp ở đây cũng được giảm bớt
Nhà vệ sinh tông hồng sáng sủa và thoáng nhờ giếng trời
Hai phòng ngủ còn lại có cửa chớp gỗ lớn dạng gấp, mở ra tán cây trong vườn. Phòng tắm trẻ em có phong cách tương đồng với phòng tắm ở phòng ngủ chính, sử dụng xi măng và gạch thủy lực xanh lá, giữ sự đồng nhất với phong cách tổng thể. Phòng ngủ của cô con gái thứ 2 nằm đối diện với lối đi thép.
Phòng ngủ của trẻ được bày biện sinh động, có cửa sổ lớn nhìn ra khu vườn trung tâm
Không gian tụ họp với hệ mái trượt tự động và ốc đảo xanh trên tầng thượng
Tầng thượng là không gian quan trọng nhất của House MA. Từ cầu thang thép đi lên, hệ mái kim loại – kính trượt có gắn motor tự động cho phép ánh sáng lọt xuống suốt dọc cầu thang.
Một chi tiết đặc biệt là phần mái kim loại trên tầng thượng, có thể tự động đóng-mở để ánh sáng lọt xuống bên dưới cầu thang
Trên tầng này có khu vực ăn uống ngoài trời và phòng khách ấm cúng với những chiếc ghế lười êm ái, bao quanh bởi các bồn cây tạo thành “ốc đảo” riêng tư giữa các căn nhà liền kề. Nhờ cây xanh bao quanh, đây là nơi gia chủ thường xuyên tiếp bạn bè hoặc thư giãn sau giờ tập luyện. Phía bên kia lối đi thép là khu giặt phơi và nhà vệ sinh, tất cả đều sáng và thông thoáng nhờ giếng trời.
Phòng khách ngoài trời ở tầng thượng, nơi được che chắn bởi các bồn cây lớn nhưng vẫn cho tầm nhìn rộng ra xung quanh
Khu vực này có chỗ ăn uống và bếp ngoài trời để phục vụ các buổi tụ tập cùng bạn bè, người thân
Vật liệu trong ngôi nhà ống theo phong cách công nghiệp chủ đạo nhưng không lạnh lẽo
Dù phong cách công nghiệp chiếm ưu thế nhưng House MA không hề khô cứng nhờ sự xen kẽ tinh tế của nhiều loại vật liệu với các tông màu khác nhau. Đơn cử như thép đen ở dầm, cột, cầu thang, lan can, mái trượt nổi bật trên nền tường gạch cũ được sơn trắng. Sàn sử dụng chất liệu Tauari xương cá kết hợp khung cửa Freijó ấm áp. Ngoài ra, các chất liệu như bê tông ở khu kệ đa năng, bar ở cầu thang và gạch thủ lực trong phòng tắm,… cũng tạo nên bản sắc riêng: thô mộc công nghiệp nhưng vẫn ấm áp và gần gũi.
Sự lựa chọn vật liệu tinh tế kết hợp bảng màu tương phản là điều dễ thấy ở House MA
Không gian đậm nét công nghiệp với nội thất có chi tiết kim loại mảnh, màu đen nhưng được cân bằng lại nhờ chất liệu gỗ và tường gạch mộc
Tuy là nhà ống hẹp và dài nhưng không gian luôn ngập tràn cây xanh, từ ngoại thất đến nội thất và sự xuất hiện đồng nhất của các khung cửa gỗ ấm áp
House MA cho thấy cách giải quyết đầy sáng tạo cho một ngôi nhà ống. Đó là sử dụng kết cấu thép nhẹ, chia hai khối nhà linh hoạt, bổ sung vườn trung tâm và giếng trời để tạo ánh sáng, thông gió tối ưu. Nhờ đó, ngôi nhà đáp ứng hoàn hảo lối sống năng động của cặp đôi ưa thể thao, đồng thời là không gian ấm cúng cho gia đình trẻ và chú chó cưng. Khám phá thêm nhiều công trình độc đáo tại Chuyện nhà.
>>> Xem thêm: Nhà ống 5x21m thiết kế vừa cho thuê vừa để ở, gói gọn không gian ở chỉ trong 1 tầng nhưng vẫn tiện nghi
Thông tin công trình:
Tên ngôi nhà: House MA
Dài (m): 18
Rộng (m): 4
Tổng diện tích (m2): 135
Đơn vị thiết kế: Rua 141 Arquitetura
Đơn vị thi công: J.B. construção
Đơn vị chụp ảnh: Fran Parente
Địa điểm: São Paulo, Brazil
Phong cách thiết kế: Công nghiệp
Số tầng: 3
Số phòng ngủ: 3
Loại nhà: Nhà ống
Nguồn: Archdaily
*Để lại thông tin trong box dưới đây, Happynest sẽ giúp bạn kết nối đơn vị thiết kế - thi công phù hợp và nhanh chóng nhất.



























































































































