Sở hữu lợi thế đất rộng và vuông vắn, The Core Court House đã ứng dụng nhiều phương án thiết kế để mang lại sự tiện nghi, thư giãn tối đa cho gia chủ. Nổi bật nhất là khoảng sân trong xanh mát đặt tại khu vực trung tâm của ngôi nhà.
| Tham gia ngay Group Happynest Săn Ưu Đãi để được nhận chính sách mua hàng với giá tốt nhất nhé. Mọi thắc mắc về sản phẩm và cách đặt hàng, vui lòng liên hệ fanpage Happynest / Happynest Shop / hotline 093 468 06 36 để được hỗ trợ kịp thời. |
Sân trong và những giải pháp đi kèm để lấy sáng, đón gió
Vấn đề thông gió, đón sáng luôn là nhiệm vụ cần giải quyết của mọi công trình, ngay cả với công trình có lợi thế đất rộng như The Core Court House. Việc của nhóm KTS đó là tìm ra phương án thiết kế tối ưu nhất, mang lại sự tiện nghi, thẩm mỹ cho gia chủ, trong khi cũng cần đảm bảo ngôi nhà có thể bền đẹp, không cần sửa chữa quá nhiều trong tương lai.
Dựa trên tiêu chí này, nhóm KTS đã tạo ra một khoảng sân trong ở khu vực lõi trung tâm của The Core Court House, và đặt khoảng sân này ở ngay dưới cầu thang và giếng trời. Ý tưởng thiết kế này không những mang cây xanh vào nhà, giúp điều hòa và thanh lọc không khí, mà còn giúp các khu vực tiếp giáp với sân trong đều nhận được gió tươi, ánh sáng tự nhiên.
>>> Xem thêm: Học người Nhật cách thiết kế sân trong nhà: Vừa thoáng sáng, vừa là không gian ngoài trời kín đáo, riêng tư
The Core Court House có diện tích khoảng 418m2 và được xây dựng trên mảnh đất vuông vắn
Thiết kế mặt tiền của The Core Court House mang lại cảm giác mộc mạc, xanh mát, thể hiện gia chủ là người rất quan tâm đến những yếu tố tự nhiên trong không gian sống của gia đình
Điểm nổi bật nhất của The Core Court House là khoảng sân trong với những loại cây trồng nhiệt đới tươi tốt
Khoảng sân này nằm ngay dưới giếng trời và khu vực cầu thang của The Core Court House
Để đảm bảo tính bền vững, gia chủ và nhóm KTS đã lựa chọn các loại cây thấp tầng để trồng ở khu vực này
Việc lựa chọn cây xanh cho khu vực sân trong cũng dựa trên tiêu chí dễ trồng, dễ chăm sóc và không lớn quá kích cỡ cần thiết để tránh ảnh hưởng đến sinh hoạt của gia đình
Tuy nhiên, sân trong không phải là giải pháp lấy sáng duy nhất của The Core Court House. Để tối ưu ánh sáng và gió trời, nhóm KTS đã thiết kế hàng loạt hệ cửa kính lớn, từ cửa chính đến cửa sổ bao quanh các mặt của ngôi nhà. Phía ngoài hệ cửa này là lớp hàng rào bao bọc, có thể tránh được ánh nhìn quan sát của hàng xóm xung quanh, trong khi vẫn giúp ngôi nhà thông gió, đón sáng tốt, và mang lại tầm nhìn rộng thoáng cho gia chủ.
Hệ cửa kính lớn được tận dụng tối đa ở những không gian phù hợp, bố trí thêm mảng xanh ở ban công, giúp ngôi nhà được bao quanh bởi thảm thực vật xanh mát
Cửa sổ phòng bếp được mở rộng tối đa, bố trí thêm rèm và cửa lưới chắn nắng, giúp điều tiết mức độ ánh sáng cho không gian trong nhà
Không chỉ các khu vực sinh hoạt chung, ngay cả khu phòng tắm cũng được bố trí cửa sổ đón nắng, vừa giúp lấy sáng, vừa có tác dụng diệt khuẩn và tránh ẩm mốc hiệu quả
Ý tưởng thiết kế khối hộp bằng gạch và các vật liệu tự nhiên
The Core Court House được quy hoạch đơn giản với phòng khách, phòng ăn, phòng bếp và một phòng ngủ ở tầng trệt. Tầng hai gồm 3 phòng ngủ với lối đi thông nhau, đều có tầm nhìn ra giếng trời và sân trong.
Nhờ yếu tố vuông vắn của mảnh đất, nhóm KTS quyết định thiết kế The Core Court House dựa trên ý tưởng về khối hộp gạch nổi. Thay vì dùng gạch thường, nhóm KTS đã dùng loại gạch đỏ xếp chồng ngang và ứng dụng toàn bộ ở phần mặt tiền của tầng 2, nhằm tạo ra sự nổi bật bằng cách đơn giản nhất. Ban công và các mảng xanh được bố trí ở hướng Nam và Tây, có tác dụng làm vùng đệm cho không gian bên trong.
“Tấm rèm” từ ban công đầy cây cối giúp phá vỡ sự đơn điệu bằng gạch đỏ ở phần mặt tiền, đồng thời cũng bổ trợ cho việc thông gió, đón sáng và kết nối với khoảng sân trong để thực hiện nhiệm vụ luân chuyển khí tươi.
>>> Xem thêm: 6 ý tưởng để biến sân trong nhà bạn khác lạ và thú vị hơn
Mặt tiền bằng gạch đỏ xếp ngang ở tầng 2 và khoảng ban công được “khoét lỗ”
Ban công cũng thiết kế lùi sâu để dành không gian cho cây xanh, tạo ra vùng đệm bảo vệ không gian trong nhà
Ngoài mặt tiền, gạch đỏ xếp ngang còn được sử dụng cho khu vực tường giếng trời trong nhà
Mảng tường gạch này không những làm điểm nhấn thẩm mỹ cho không gian mà còn có tác dụng tiêu âm
Vật liệu gạch cũng có tác dụng giảm nóng, phù hợp để sử dụng cho khu vực giếng trời đầy nắng
Nội thất của The Core Court House là sự kết hợp chủ yếu của các vật liệu: sàn màu xám, tường màu trắng và đồ nội thất bằng gỗ. Những món đồ này đều được bài trí đơn giản với thiết kế bình dị, tránh sự cầu kỳ. Thiết kế này giúp hiện thực hóa mong muốn của gia chủ về không gian sống thoáng rộng, kết nối nhưng vẫn gần gũi và mộc mạc.
The Core Court House có lợi thế về mặt diện tích nhưng không “tham” chi tiết, ngôi nhà hạn chế dùng nội thất “thừa” mà thường tận dụng những chi tiết sẵn có để bố trí không gian công năng, ví dụ như khu vực đọc sách bên cửa sổ
Giếng trời được bố trí hệ đèn chiếu đơn giản, hài hòa với màu sắc chung của ngôi nhà
Góc làm việc gọn gàng nhờ tiết chế bày biện nhất có thể, hệ tủ sát trần cũng giúp gia chủ có diện tích để “giấu” đồ
Phòng làm việc nằm trong phòng ngủ nhưng vẫn được phân tách không gian rõ ràng và đáp ứng tính riêng tư khi cần
Một phòng ngủ khác trong nhà có diện tích thoáng rộng hơn nhưng cực kỳ ít đồ đạc
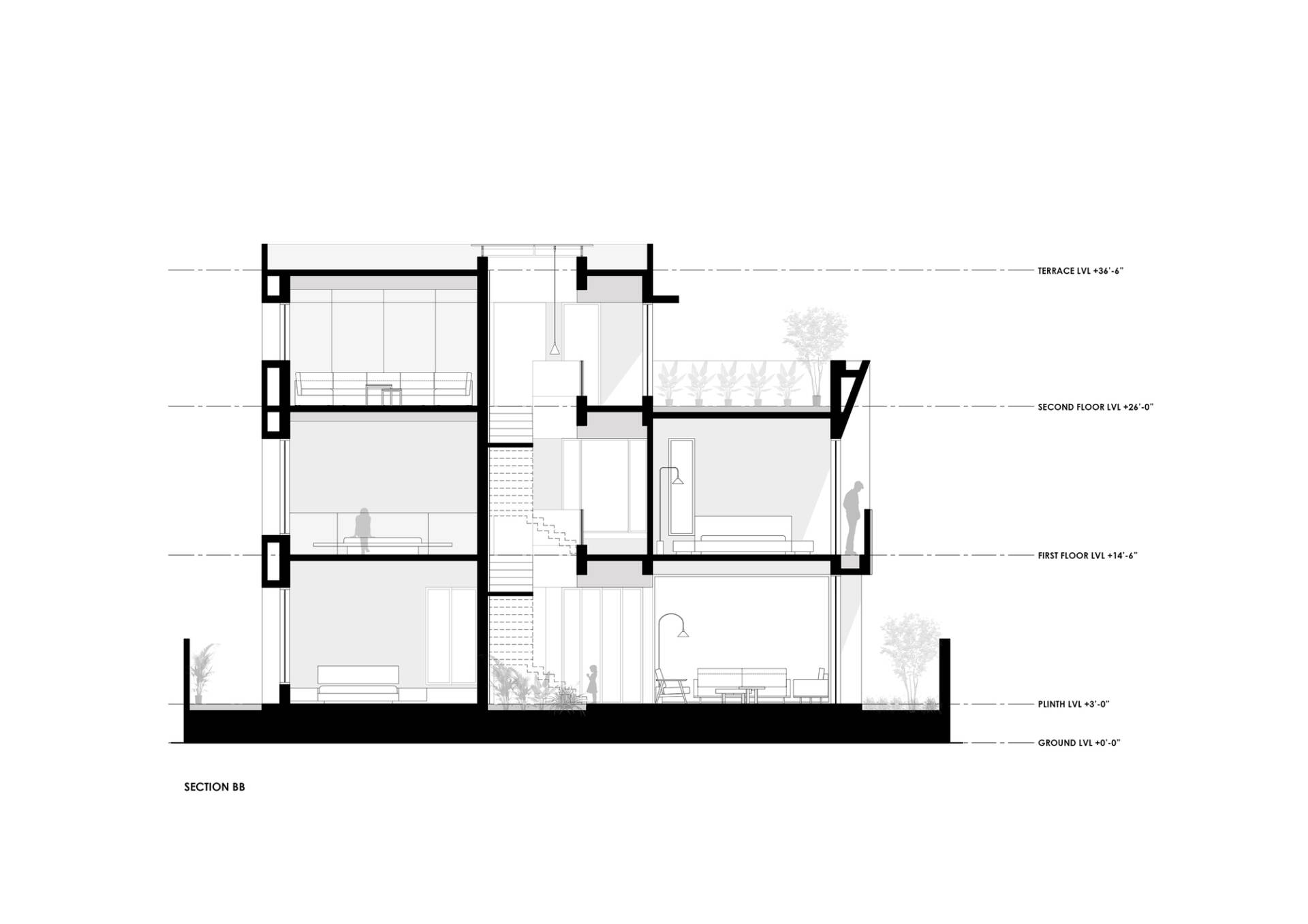
Bản vẽ thiết kế của công trình
Tóm lại, The Core Court House là một ngôi nhà đơn giản, sở hữu thiết kế dễ hiểu và dễ áp dụng. Nếu đang phân vân cách bố trí và phân chia không gian sống, bạn có thể tham khảo và học hỏi những ưu điểm của ngôi nhà này.
>>> Xem thêm: “Sân trong nhà” – Xu hướng thiết kế không gian xanh hiện đại
Thông tin công trình:
Tên công trình: The Core Court House
Diện tích: 418m2 (4,500ft2)
Địa điểm: Ấn Độ
Đơn vị thiết kế: TRAANSPACE
Năm hoàn thiện: 2022
Ảnh: Tejas Shah
Bài viết: Hoài Nam
*Bài viết được biên soạn bởi đội ngũ Happynest. Xin vui lòng không sao chép dưới mọi hình thức.
| Bạn đang cần tìm đơn vị thiết kế - thi công? Hãy điền yêu cầu vào form Đăng ký tư vấn. Happynest sẽ giúp bạn kết nối dễ dàng, nhanh chóng với đơn vị phù hợp nhất nhé! |






























































































































