Chị Nguyễn Thị Phương - chủ nhân của ngôi nhà 1 tầng 1 lửng đã có bài đăng chia sẻ về tổ ấm mới của mình trên group Happynest. Đằng sau đó là câu chuyện xây nhà 300 triệu đầy nghị lực của một bà mẹ đơn thân.
Tóm tắt giải pháp xây dựng nhà 1 tầng 1 lửng với chi phí tiết kiệm
-
Lựa chọn mô hình nhà 1 tầng 1 lửng để tăng diện tích sử dụng trên nền đất nhỏ.
-
Chủ động tự thiết kế, tự giám sát thi công nhằm kiểm soát chi phí.
-
Tận dụng lại đồ gia dụng có sẵn, hạn chế phát sinh nội thất mới.
-
Ưu tiên bố trí công năng gọn gàng, đa năng, phù hợp ngân sách nhà 300 triệu.
-
Vẫn dành một phần diện tích cho không gian xanh để tạo sự thoáng đãng.
Ngôi nhà 1 tầng 1 lửng này là tổ ấm nhỏ của nữ gia chủ và con trai sau khi hôn nhân đổ vỡ
Hành trình xây nhà 300 triệu của một bà mẹ đơn thân
Chị Phương mở đầu câu chuyện bằng câu nói quen thuộc: “Đàn ông xây nhà, đàn bà xây tổ ấm”. Thế nhưng chị Phương có cuộc sống hôn nhân không mấy êm đềm, và sau 15 năm, chị quyết định ly hôn, ra sống riêng với cậu con trai nhỏ. Khi mới bắt đầu ra riêng, chị Phương rất khó khăn khi trong tay không có tài chính, nhà mẹ đẻ lại ở cách xa tận 170km. May mắn thay, chị Phương nhờ cậy được một người bạn cho 2 mẹ con ở nhờ trong vòng 1 năm.
Sau này, công ty nơi chị làm việc mở chi nhánh tại quê nhà chị, nơi chị sinh ra nên chị đã xin chuyển công tác về đó. Khi ấy, chị nhận được nhiều sự yêu thương từ người thân, bạn bè và sự giúp đỡ về tài chính. Chị Phương còn vui vẻ chia sẻ thêm một điều rất ý nghĩa: “Tình cờ một hôm lướt Facebook, tôi thấy nhóm Happynest và đã quyết định tham gia nhóm. Nhìn những ngôi nhà các thành viên đăng lên, niềm mơ ước xây được nhà trong tôi đã le lói”.
Để biến ước mơ thành hiện thực, chị Phương quyết định xây ngôi nhà cấp 4 gồm 1 tầng 1 lửng trên chính mảnh đất mà mẹ chị dành tặng chị. Khi quyết định xây nhà, trong tay chị chỉ có vỏn vẹn 50 triệu đồng, chị đã phải vay thêm người chị thân thiết để hoàn thiện ngôi nhà 300 triệu đồng.
Chị tự mình lên thiết kế nhờ những lần tham khảo nhiều mẫu nhà 1 tầng 1 lửng ở trên nhóm Happynest, sử dụng lại nhiều đồ gia dụng đã sắm trước đó. Chị kể lại: “Toàn bộ ý tưởng từ thiết kế, lên bản vẽ, thuê thợ, mua nội thất đều một tay tôi làm và giám sát. Cảm giác mệt nhưng rất vui! Các bạn biết ngôi nhà mà tự tay mình chăm chút , từng ngóc ngách nó thích lắm. Tỉ mỉ từng viên gạch, từng cái cây, từng cái bát, từng cái đũa…thích lắm!”.
>>> Xem thêm: Ngôi nhà 1 tầng 1 lửng nên thơ viết tiếp giấc mơ nghệ thuật của hai vợ chồng sáng tạo
Do nằm trong con ngõ nhỏ nên chị Phương dùng cửa trượt làm cửa chính cho công trình
Khoảng sân nhỏ trước nhà đủ để vừa 1 chiếc xe máy nhưng chị Phương vẫn tận dụng một số góc cho không gian xanh
Do diện tích nhỏ nên ban thờ và tivi đều được đóng treo tường để tối ưu không gian
Bàn ăn nhỏ bằng gỗ công nghiệp màu nâu tối
Tủ kệ kết hợp làm vách ngăn chia không gian rất hiệu quả
Tổ chức không gian gọn gàng cho nhà 1 tầng 1 lửng diện tích nhỏ
Ngôi nhà cấp 4 có diện tích 40m2 gồm 1 tầng và 1 gác lửng. Tại tầng 1, chị Phương bố trí làm không gian sinh hoạt chung của 2 mẹ con, có phòng khách, khu vực bếp - ăn, phòng vệ sinh và 1 phòng ngủ của chị. Gác lửng là phòng ngủ - không gian riêng tư của cậu con trai đang lớn. Tuy diện tích nhà có hạn nhưng chị Phương vẫn dành một phần diện tích cho những khoảng xanh.
>>> Xem thêm: Giữa đồi xanh, nhà 1 tầng 1 lửng tối giản chọn cách “để trống” cho hạnh phúc tự đong đầy
Gian bếp nhỏ xinh của chị Phương với hệ tủ bếp màu trắng, tạo điểm nhấn bằng gạch kính màu xanh lá cây
Khoảng trống giữa phòng vệ sinh và ngủ tầng 1 được đặt tủ lạnh
Phòng ngủ nhỏ, bày trí đơn giản của chị Phương nằm ở tầng 1
Phòng vệ sinh với đầy đủ các tiện nghi cần thiết
Để nhân đôi không gian chức năng, chị bố trí thêm một gác lửng làm phòng ngủ riêng tư cho cậu con trai
Hành lang gác lửng được để trống, trang trí đơn giản
Phòng ngủ trên gác lửng được lát sàn gỗ ấm cúng
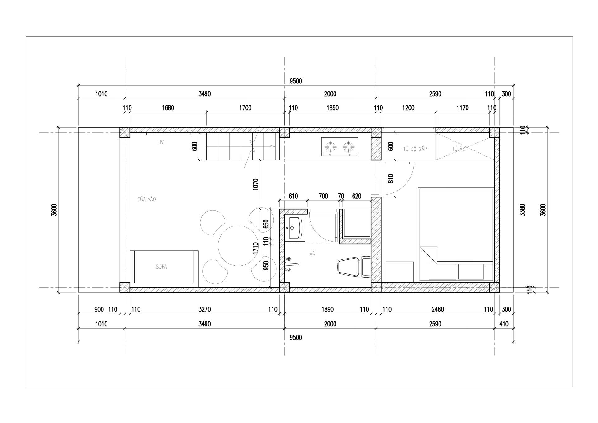
Bản vẽ mặt bằng nhà 1 tầng 1 lửng
>>> Xem thêm: Nhà 1 tầng 1 lửng, thiết kế kính bao quanh tầng 1 để tương tác với thiên nhiên
Ngôi nhà 1 tầng 1 lửng của chị Phương tuy giản dị, đơn sơ nhưng đằng sau đó là cả một câu chuyện đầy nghị lực, chứng minh cho câu nói: “Đàn bà có thể xây nhà, xây tổ ấm”. Với chi phí khoảng 320 triệu đồng, công trình là minh chứng rằng một nhà 300 triệu vẫn có thể đủ đầy công năng, ấm áp và giàu giá trị tinh thần. Và tuyệt vời hơn, Happynest chính là một trong những nguồn động lực giúp chị Phương hoàn thiện ước mơ xây nhà của mình.
Xem thêm nhiều câu chuyện nhà ở chân thực, gần gũi và giàu cảm hứng khác tại chuyên mục Chuyện nhà trên Happynest để tìm thấy những tổ ấm rất đời, rất riêng giữa nhịp sống đô thị.
Thông tin công trình:
Dài (m): 10
Rộng (m): 4
Diện tích thực tế (m2): 40
Năm dự án: 2020
Đơn vị chụp ảnh: Nhân vật cung cấp
Ngân sách hoàn thiện (bao gồm nội thất): 320 triệu đồng
Số tầng: 1 tầng 1 lửng
Loại nhà: Nhà ống
Nguồn: Nguyễn Phương
*Để lại thông tin trong box dưới đây, Happynest sẽ giúp bạn kết nối đơn vị thiết kế - thi công phù hợp và nhanh chóng nhất.













































































































