Nằm trong một con hẻm nhỏ chỉ rộng 1,2m, thiếu sáng và thông gió tại Nha Trang, ngôi nhà trong hẻm nhỏ này được thiết kế để mang tới không gian sống chan hòa cùng với tự nhiên.
Tóm tắt giải pháp thiết kế nhà trong hẻm 50m2
-
Tạo sân trước 2m2 làm khoảng đệm lấy sáng, đón gió cho ngôi nhà trong hẻm.
-
Thiết kế ban công xanh đa tầng và giàn leo mặt tiền giúp lọc nắng, giảm bức xạ nhiệt và tăng riêng tư.
-
Bố trí cầu thang kết hợp giếng trời dọc thân nhà để tối ưu đối lưu không khí và ánh sáng tự nhiên.
-
Tổ chức mặt bằng lệch tầng 3 tầng giúp nhà trong hẻm nhỏ nhưng không bị bí bách.
-
Giữ bảng màu trắng, nâu gỗ, vật liệu thô mộc để tạo cảm giác nhẹ nhàng, gợi ký ức và mở rộng thị giác.
Tạo khoảng xanh và khe thoáng cho nhà trong hẻm 50m2
Để cải thiện tình trạng thiếu sáng và thông gió trong căn hẻm nhỏ hẹp, đơn vị thiết kế đã mở những khoảng xanh và khe thoáng cho nhà trong hẻm để tự công trình có thể cung cấp oxy tươi và đối lưu không khí.
Dù căn nhà chỉ rộng 50m2 với chiều rộng 4m và chiều dài hơn 12m, đơn vị thiết kế vẫn quyết định lùi không gian sinh hoạt lại để tạo một mảnh sân trước nhà. Mảnh sân nhỏ có tác dụng như một khoảng mở giúp ngôi nhà lấy sáng và thông gió tự nhiên.
Không gian ngoài trời của nhà trong hẻm được mở rộng với khoảng sân có diện tích 2m2
>>> Xem thêm: Nhà trong hẻm 27m2 đầy gió, ánh sáng và ký ức đẹp của cặp đôi trẻ
Để tăng cường yếu tố thiên nhiên cho nhà trong hẻm, mặt tiền được thiết kế với ban công trồng cây và giàn leo trên cổng sắt. Mỗi chiếc ban công trên các tầng đều được biến hóa để trở thành một chậu cây khổng lồ, nơi những bụi cây leo có thể sinh trưởng và phủ một màu xanh tươi mát.
Điểm nổi bật trong thiết kế mặt tiền của nhà trong hẻm chính là cổng hoa sắt. Chiếc cổng với những ô họa tiết tô điểm nét thơ mộng cho ngôi nhà.
Ngôi nhà trong hẻm có chiều cao 3 tầng với những ban công phủ đầy cây xanh
Ngôi nhà trong hẻm bình yên sau những tán cây xanh
Không chỉ tạo bước đệm xanh cho ngôi nhà ở mặt tiền, đơn vị thiết kế còn ưu tiên tạo những khe thoáng trong không gian sống. Để tối ưu diện tích sử dụng trong một căn nhà chiều ngang 4m, hệ cầu thang được đặt bên hông nhà, kết hợp với giếng trời để luân chuyển không khí và ánh sáng đến các tầng.
Bên cạnh đó, 2 phòng ngủ trên tầng 2 và phòng thờ tầng 3, mỗi phòng đều có một khe thoáng với cửa kính toàn phần. Ở những khu vực này, gia chủ thường trồng thêm một vài chậu cây cảnh để tăng thêm không gian xanh cho ngôi nhà.
Cầu thang đặt ở hông nhà trong hẻm với giếng trời cung cấp nguồn ánh sáng tự nhiên
Mỗi căn phòng đều có một khe thoáng giúp đối lưu không khí, hạn chế cảm giác chật hẹp của con hẻm nhỏ
Nhà trong hẻm với thiết kế nhã nhặn, gợi nhớ những ký ức xưa
Giống như mặt tiền thanh nhã và nhẹ nhàng, thiết kế không gian bên trong cũng hướng đến sự đơn giản và thông thoáng. Hai gam màu chủ đạo là trắng và nâu mang đến trải nghiệm về một cuộc sống thư thái. Tường, trần và sàn nhà sử dụng màu trắng sáng sủa kết hợp với đồ nội thất chất liệu gỗ được thiết kế đồng bộ từ vách ngăn, tay vịn cầu thang, cửa, kệ tủ bếp...
Tường gạch thô mang trở thành họa tiết cho những bức tường thêm phần điểm nhấn
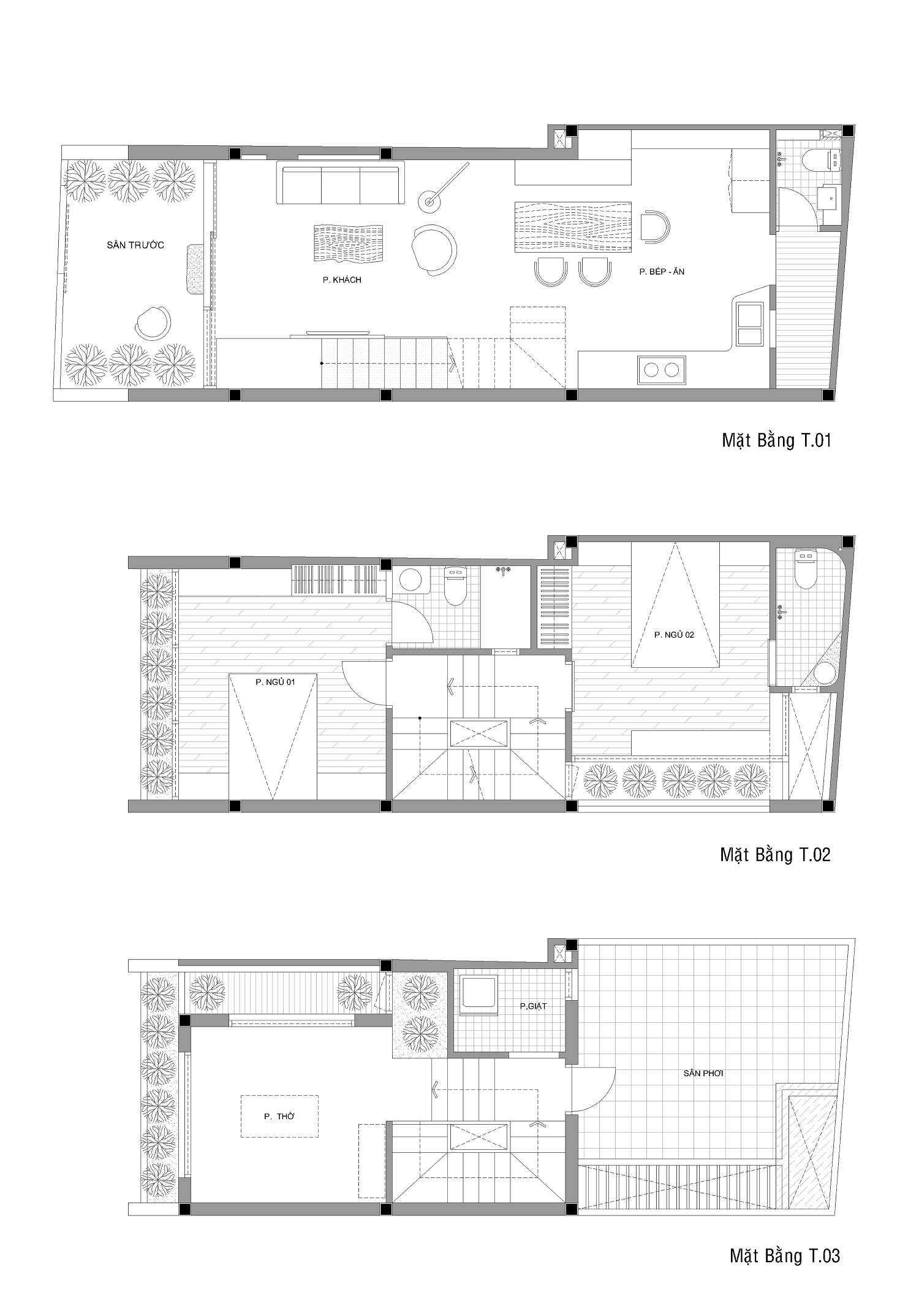
Ngôi nhà trong hẻm có bố cục đơn giản với tầng 1 là không gian phòng khách và bếp. Tầng 2 với hai phòng ngủ cùng thiết kế lệch tầng. Tầng 3 là không gian thờ. Một số đồ nội thất được tái sử dụng từ căn nhà cũ để mang lại cảm giác gần gũi, gợi nhớ những kỷ niệm thân thương dành cho chủ nhân.
>>> Xem thêm: Nhà 7x9 trong hẻm với nét dịu dàng của Địa Trung Hải tại Hóc Môn
Bộ ghế sofa nâu được chọn khá hài hòa với gam màu trắng - nâu tổng thể
Phòng ngủ với cửa sổ lớn để tận hưởng không gian ngập tràn cây xanh ở mặt tiền
Phòng ngủ của ông bà sử dụng lại một số món đồ nội thất cũ nhưng còn bền đẹp
Phòng thờ trên tầng 3 của ngôi nhà trong hẻm
Bản vẽ mặt bằng 3 tầng của công trình nhà trong hẻm
Bản vẽ phối cảnh của công trình nhà trong hẻm
>>> Xem thêm: Gia Định House: Ngôi nhà 6 tầng trong hẻm nhỏ, nơi mọi người có thể sống, làm việc và chia sẻ không gian
Với tổng chi phí hoàn thiện công trình khoảng 800 triệu đồng, chủ nhân của ngôi nhà trong hẻm đã có một không gian mới vô cùng tiện nghi, sáng sủa và thông thoáng dù cuộc sống lùi sâu trong hẻm nhỏ.
Thông tin công trình:
Diện tích thực tế (m2): 50
Đơn vị thiết kế: La Design Studio
Đơn vị chụp ảnh: Quang Trần
Địa điểm: Nha Trang
Phong cách thiết kế: Hiện đại
Số tầng: 3
Loại nhà: Nhà trong hẻm
*Để lại thông tin trong box dưới đây, Happynest sẽ giúp bạn kết nối đơn vị thiết kế - thi công phù hợp và nhanh chóng nhất.









































































































