House at Kalalgoda là một căn nhà ống với diện tích hơn 400m2 nằm ở vùng ngoại ô yên bình Kalalgoda của thành phố Colombo, Sri Lanka. Ngôi nhà có một vị trí đặc biệt khi mặt sau công trình nằm liền kề với một cánh đồng lúa. Đây cũng là hình mẫu có thể ứng dụng cho các gia chủ Việt đang tìm ý tưởng xây nhà 2 tầng nông thôn với mong muốn gần gũi tự nhiên, nhiều ánh sáng và thoáng gió.
Tóm tắt giải pháp thiết kế trong House at Kalalgoda
-
Thiết kế mở dọc trục nhà, tạo luồng gió xuyên suốt là giải pháp thông gió thông sáng nhà ống.
-
Hai khoảng sân và vườn cùng giếng trời giữa nhà giúp đưa ánh sáng tự nhiên xuống toàn bộ tầng 1.
-
Sử dụng vật liệu tự nhiên như gỗ, gạch đất nung, titanium ngà để tăng độ sáng và sự ấm áp.
-
Tối đa cửa kính lớn nhằm xóa ranh giới trong - ngoài, tăng kết nối với cánh đồng lúa.
-
Loại bỏ đa số tường ngăn, thay bằng hành lang và lan can kính để các tầng thông suốt.
-
Mô hình phù hợp để tham khảo cho nhà 2 tầng nông thôn muốn đạt sự thoáng sáng nhưng vẫn riêng tư.
House at Kalalgoda có một vị trí thú vị khi nằm liền kề với cánh đồng lúa
Giải pháp thông gió và thông sáng cho căn nhà ống
House at Kalalgoda nằm trên một mảnh đất khá dài. Bài toán đặt ra là tìm giải pháp thông gió thông sáng nhà ống để công trình không rơi vào trạng thái tối tăm, hầm bí.
Mặt tiền ngôi nhà 2 tầng nông thôn với nhà để xe và cửa chính dẫn thẳng đến cửa kính phía sau
Lối thông gió được mở dọc chiều dài công trình từ cửa trước dẫn thẳng tới hành lang và tới tận cửa sau nhà. Bên cạnh đó, có tới hai mảnh vườn ngay giữa ngôi nhà được mở ra giúp House at Kalalgoda tận dụng tối đa ánh sáng tự nhiên.
Tại hai mảnh vườn, kiến trúc sư cũng mở khoảng thông tầng cùng giếng trời khiến công trình không chỉ sáng mà còn thông thoáng, có được một bầu không khí thoải mái và mát mẻ trong nhà.
>>> Xem ngay: X House - Nhà nông thôn sử dụng gỗ xoan truyền thống
Hai khu vực thông tầng của House at Kalalgoda giúp căn nhà được thông sáng và gió tối đa
Nhà 2 tầng nông thôn kết nối cùng tự nhiên bằng phong cách tối giản và tự do
Với mặt hậu nằm liền kề cánh đồng lúa, gia chủ mong muốn ngôi nhà của mình có một tầm nhìn ngoạn mục ra tự nhiên cùng với một cuộc sống yên bình, thư thái. Để làm mờ ranh giới giữa không gian trong nhà và ngoài trời, kiến trúc sư lựa chọn cho ngôi nhà những chất liệu gần gũi cùng tông màu trắng và màu đất giản dị. Gạch đất nung và sỏi đỏ được sử dụng để lát cho khu vườn phía trước nhà. Còn ở phía sau, hồ nước giữa nhà được bao quanh bởi những ván gỗ ghép với tông màu trầm mộc.
Lối chơi của ánh sáng và bóng tối trên bức tường gạch này trong những thời điểm khác nhau trong ngày, làm tăng thêm bầu không khí quyến rũ của nhà 2 tầng nông thôn
Hồ nước trong nhà với những cây thân cao được trồng ngay giữa hồ
Sàn titanium màu ngà giúp tăng cường chiếu sáng nội thất và tạo ra một bầu không khí tối giản nhưng dễ chịu
Màu sắc và vật liệu được chế tác với các kiểu dáng khác nhau để phá vỡ sự đơn điệu của không gian
>>> Xem ngay: Maison A: Ngôi nhà nông thôn hiện đại từ gạch Bát Tràng và ký ức tuổi thơ
Ở phía sau ngôi nhà, cửa kính lớn thay thế toàn bộ bức tường mở ra một tầm nhìn thu trọn khung cảnh cánh đồng trong tầm mắt. Một hiên nhà với sân lát đá là khu vực đầy thư thái để gia chủ thả mình trong cái ôm đầy vỗ về của tự nhiên.
Hiên sau nhà mang đến một trải nghiệm cực kỳ gần gũi với tự nhiên và cánh đồng lúa bạt ngàn
Ngôi nhà có chiều cao 2 tầng với điểm kết nối đến từ khu vực thông tầng từ hồ nước nhỏ tại tầng một. Bằng cách gỡ bỏ hầu hết vách ngăn và thay bằng hành lang với lan can cùng cửa sổ kính, mỗi gian phòng trong ngôi nhà đều có tầm nhìn thông thoáng ra tự nhiên và dễ dàng liên kết với các thành viên khác trong gia đình.
Hành lang tầng 2 chạy dọc chiều dài ngôi nhà với lan can kính phá vỡ ranh giới giữa các tầng nhà
Cửa kính lớn được sử dụng để tối ưu tầm nhìn của từng phòng
Gần như mỗi không gian trong ngôi nhà đều có thể nhìn ra khoảng thông tầng xanh mát này
Công trình phụ của ngôi nhà với cửa sổ hướng ra bên ngoài để mang đến cảm giác thư thái, không gò bó
Ngôi nhà 2 tầng nông thôn trở nên ấm cúng trong ánh điện vào ban tối
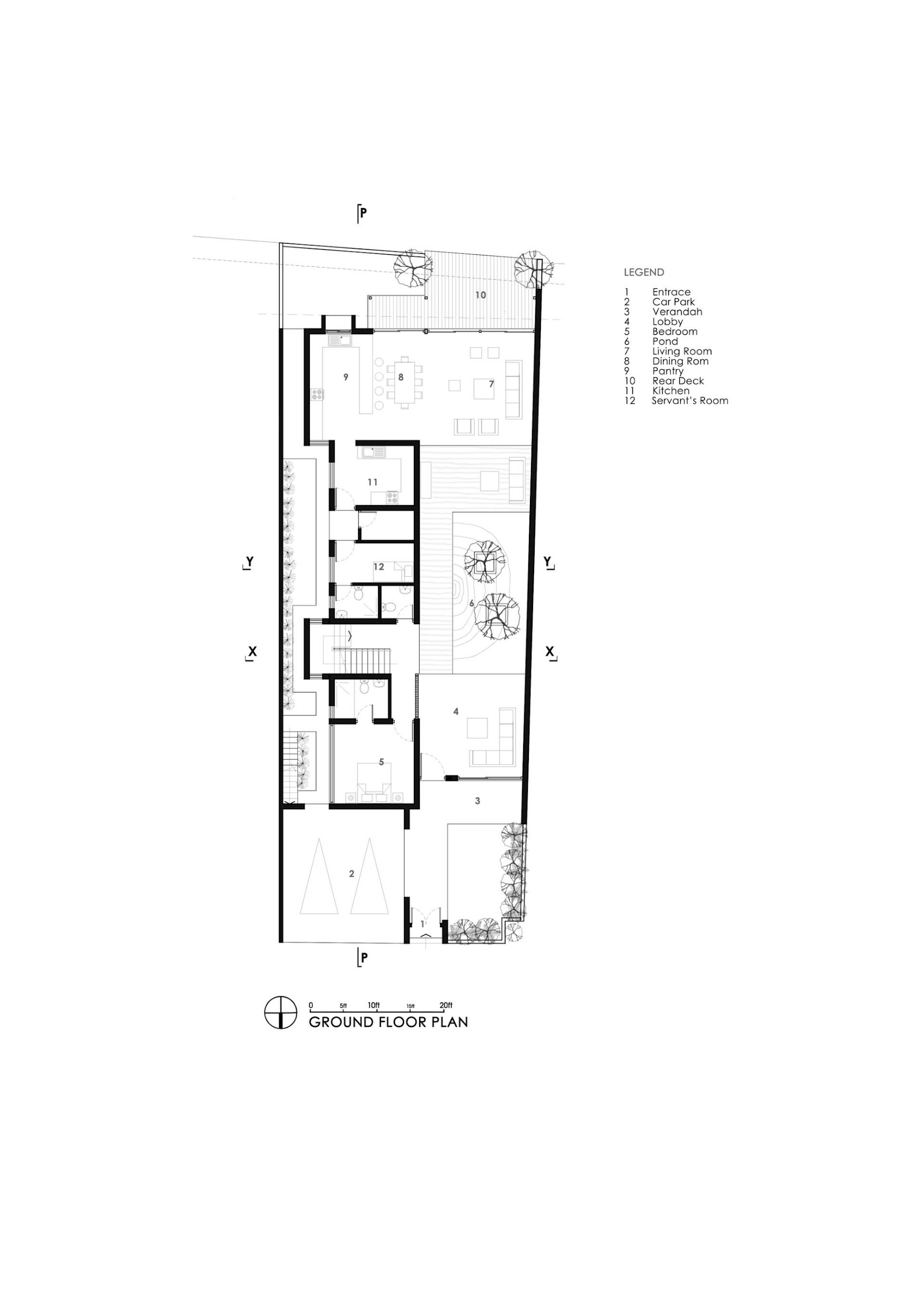
Bản vẽ mặt bằng tầng 1 của cnhà 2 tầng nông thôn House at Kalalgoda
Bản vẽ mặt bằng tầng 2 của nhà 2 tầng nông thôn House at Kalalgoda
Bản vẽ mặt cắt của nhà 2 tầng nông thôn House at Kalalgoda
>>> Xem ngay: 10 ngôi nhà nông thôn đẹp như tranh, giúp gia chủ sống chậm giữa thiên nhiên
Là một nước nông nghiệp với diện tích đất trồng lúa nhiều, những công trình nhà 2 tầng nông thôn tại Việt Nam hoàn toàn có thể học hỏi kiến trúc cùng giải pháp thông gió thông sáng nhà ống của House at Kalalgoda để nâng tầm chất lượng sống mà không đánh mất bản sắc truyền thống.
Tham khảo thêm các mẫu nhà 2 tầng, nhà nông thôn đẹp tại chuyên mục Chuyện nhà nhé!
Thông tin công trình:
Tên công trình: House at Kalalgoda
Diện tích thực tế (m2): 414
Năm hoàn thành: 2019
Đơn vị thiết kế: Damith Premathilake Architects
Đơn vị chụp ảnh: Eresh Weerasuriya
Địa điểm: Colombo, Sri Lanka
Phong cách thiết kế: Hiện đại, Thô mộc
Số tầng: 2
Loại nhà: Nhà ống
*Để lại thông tin trong box dưới đây, Happynest sẽ giúp bạn kết nối đơn vị thiết kế - thi công phù hợp và nhanh chóng nhất.












































































































