Trước khi quyết định xây nhà, bạn nên tính toán trước các loại chi phí để đảm bảo việc xây dựng trong khả năng tài chính, tránh hiện tượng chi trội lãng phí. Đừng nghĩ rằng chỉ những người làm về xây dựng mới có khả năng tính toán chi tiết, bạn cũng có thể tự làm được với 3 phép tính chi tiết mà Happynest gợi ý sau.
Xây dựng nhà ở cần chú ý đến 3 phép tính quan trọng về diện tích, mức giá xây dựng trên m2 và chi phí làm móng nhà. Mỗi phép tính này đều có công thức, cách tính riêng. Vì thế, chỉ cần bạn tính cẩn thận có thể giúp bạn ước tính được chính xác 80% tổng chi phí, hạn chế những khoản chi phí phát sinh không đáng có.
Bạn hoàn toàn có thể giảm thiểu chi phí phát sinh khi xây nhà nếu có kế hoạch và tính toán chi tiết
1. Cách tính diện tích
Phép tính quan trọng đầu tiên trong xây dựng nhà ở là tính diện tích nhà. Phép tính này phổ biến với các công trình nhiều tầng, nhiều khu vực phụ.Tính diện tích bằng cách tính tổng số lầu, các khu vực phụ như sân thượng, hiên nhà, mái, sân nhà… được tính theo phần trăm niêm yết.
- Tầng trệt: 100% (ví dụ diện tích đất xây là 5x15m thì tầng trệt là 75m2)
- Tầng lầu: 100% (giả sử tầng trệt 75m2 thì tầng lầu cũng là 75m2, có bao nhiêu lầu nhân theo tổng số lầu)
- Mái: 30% cho mái tôn, 50% cho mái bằng và 70% cho mái ngói (mái ngói cho nhà diện tích 5x15m là 70% của 75m2 = 52.5m2)
- Sân, hiên nhà: 50%
- Tầng lửng: Phần đổ sàn tính 100%, phần ô trống tính 70%
- Sân thượng: Phần trong nhà tính 100%, phần ngoài nhà tính 70%.
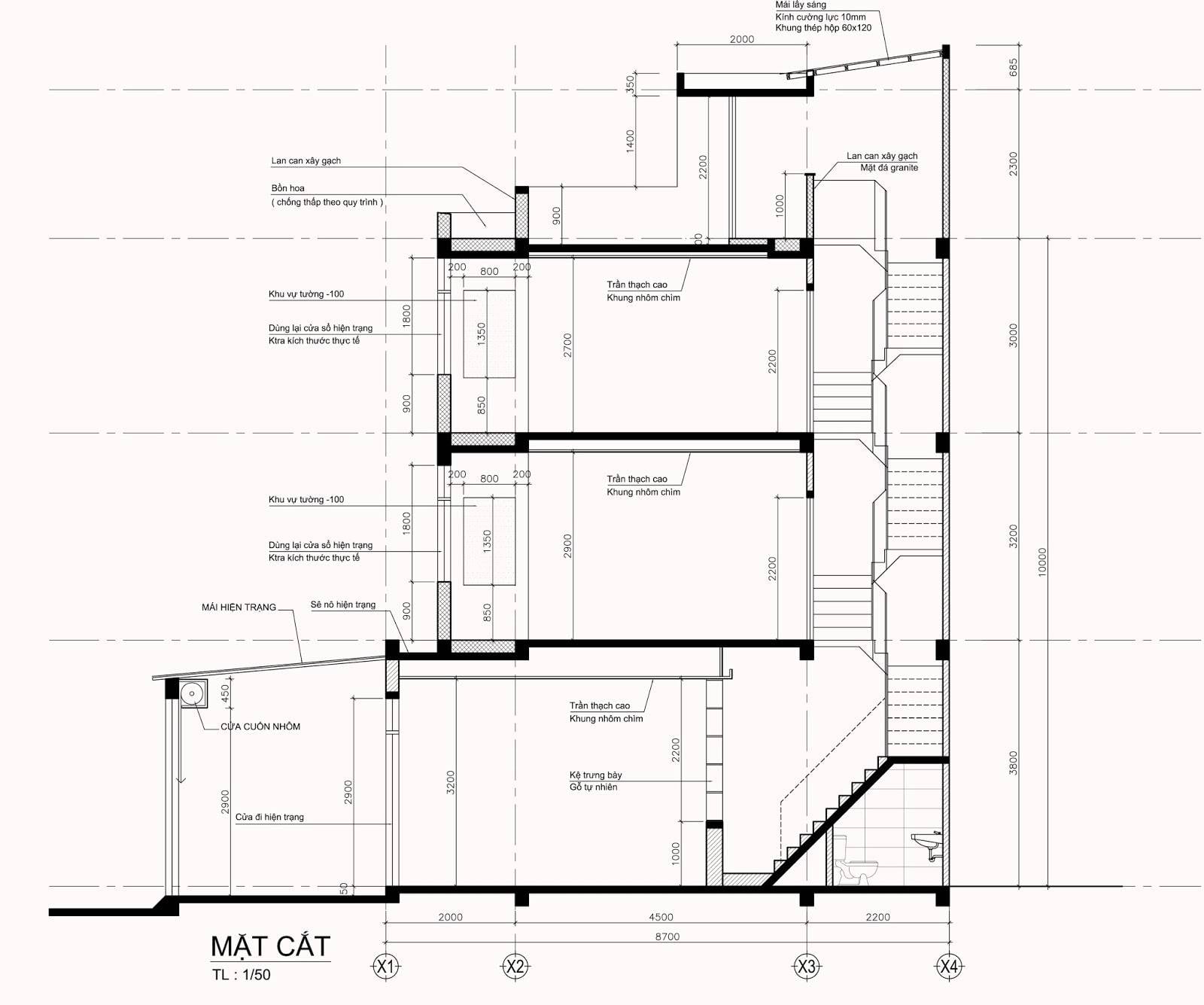
Hình ảnh mặt cắt diện tích nhà (ảnh minh họa)
2. Chi phí xây nhà dựa trên mét vuông
Phép tính này được thực hiện sau khi đã thực hiện phép tính diện tích xây dựng. Dựa vào tổng diện tích đã tính toán, bạn sẽ tham khảo các mức giá công ty xây dựng công khai trên website/ báo giá để có thể nhẩm tính tổng chi phí xây dựng nhà.
Dựa vào diện tích xây dựng để tính chi phí nhà
Hiện nay, đơn giá xây dựng thô dao động trong khoảng 3 triệu đồng/m2. Đơn giá xây dựng hoàn thiện dao động trong khoảng 5 triệu đồng/m2. Chi phí này thay đổi phụ thuộc vào loại công trình, vật tư xây dựng. Chính vì thế, hãy thử nhẩm tính theo loại công trình của bạn. Hãy tham khảo báo giá cụ thể của nhà thầu sẽ giúp bạn có thể ước tính được tổng chi phí nhà ở khá chính xác đó.
Từ công thức này ta có thể làm phép tính ngược. Ví dụ có 500 triệu có thể xây được bao nhiêu m2 nhà bằng cách lấy tổng chi phí xây dựng chia cho đơn giá nhé.
Tính chi phí xây nhà chi tiết giúp bạn lên kế hoạch tài chính phù hợp
3. Chi phí làm móng nhà
Trong một công trình xây dựng, móng được xem là hạng mục quan trọng nhất chịu sức ép trọng lực từ kiến trúc bên trên. Móng nhà phải được thiết kế và xây dựng không bị lún để đảm bảo không gây ra nứt hoặc đổ vỡ các công trình xây dựng. Cũng chính vì thế, chi phí làm móng nhà cần được tính toán cẩn thận. Theo đó, cách tính chi phí xây móng dựa trên loại móng nhà mà khách hàng lựa chọn.
- Móng đơn: Chi phí đã bao gồm trong đơn giá xây dựng
- Móng băng một phương: 50% x diện tích tầng một x đơn giá phần thô
- Móng băng hai phương: 70% x diện tích tầng một x đơn giá phần thô
- Móng cọc (ép tải): (250.000 đồng/m x số lượng cọc x chiều dài cọc) + (giá nhân công ép cọc) + (hệ số đài móng: 0.2 x diện tích tầng 1 x đơn giá phần thô)
- Móng cọc (khoan nhồi): (450.000 đồng/m x số lượng cọc x chiều dài cọc) + (hệ số đài móng: 0.2 x diện tích tầng 1 x đơn giá phần thô).
Ví dụ: Bạn muốn xây nhà cấp 4 có 1 tầng kích thước 5x20m, móng băng một phương thì chi phí làm móng băng một phương là: 5x20x50%x3.000.000 = 150.000.000 đồng (trong đó 3 triệu là đơn giá phần thô từ nhà thầu, đơn giá này có thể thay đổi theo nhiều yếu tố).
Chi phí làm móng nhà phụ thuộc vào từng loại móng
Thực tế, quá trình thi công sẽ có phát sinh thêm một số chi phí khác. Tuy nhiên, với 3 phép tính quan trọng này giúp bạn tính toán để đảm bảo công trình xây dựng chất lượng, hạn chế được những phát sinh không cần thiết. Hãy tính toán khoa học để có được ngôi nhà như mong muốn với chi phí phù hợp nhất nhé.
Bài viết: Nguyễn Phương































































































