HN04 House là dự án cải tạo căn biệt thự song lập nằm tại Long Biên - Vinhomes Riverside, Hà Nội, với mong muốn kiến tạo trải nghiệm sống mới trong bối cảnh các khu đô thị thường phát triển theo những mô típ thiết kế chung có phần đơn điệu.
Công trình được tổ chức với nhiều lớp không gian mở, chuyển tiếp liên tục từ trục giao thông của khu đô thị đi qua khu vườn phía trước vào các vùng chức năng chính. Sau đó trải rộng dần về phía sau, kết thúc bằng khoảng sân tiếp giáp với mặt nước cảnh quan công cộng, cùng nhau định hình một cấu trúc không gian thống nhất.
Với thiết kế này, ranh giới giữa trong và ngoài được xóa mờ khiến cảm nhận về chiều sâu dường như lớn hơn thông qua thủ pháp kéo dãn không gian, tạo điều kiện cho thiên nhiên trở thành một phần của đời sống thường nhật.
Khu vườn phía trước có vai trò là lớp đệm, giúp tiếp cận vào trong nhà bằng lối đi nhỏ trên chiếc cầu gỗ băng qua hồ cá koi, len lỏi dưới những tán cây chuyển dịch nhẹ nhàng đến với không gian sảnh chính. Tại đây, con người có thể tận hưởng trọn vẹn không gian mặt nước để tạm gác lại dòng chảy hối hả của phố thị trước khi trở về giữa sự bình yên của ngôi nhà.
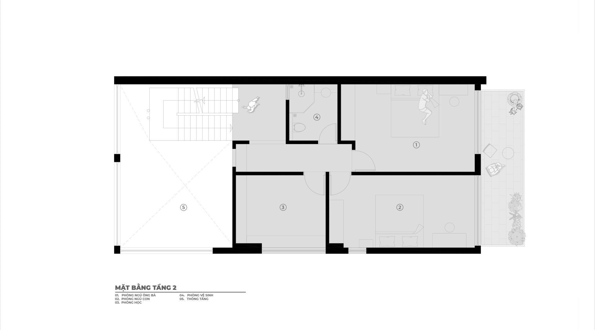
Tầng một là các khối chức năng cơ bản bao gồm phòng khách, bếp, khu vực ăn uống … được ngăn cách với cảnh quan bên ngoài bởi hệ vách kính lớn, giúp không gian nội thất hòa vào sân vườn xung quanh như một sự tiếp nối tự nhiên.
Tiếp đến, khu vực sinh hoạt chung kết hợp với khoảng thông tầng được bố trí bên cạnh lõi thang, trở thành điểm giao thoa cho toàn bộ công trình giữa trong - ngoài, trên - dưới, duy trì sự kết nối theo cả phương ngang và phương đứng.
Từ đây, không gian tiếp tục mở rộng ra khoảng sân sau - nơi diễn ra các hoạt động vui chơi và sinh hoạt ngoài trời - trước khi chạm tới mặt nước êm đềm của con sông, mang lại cảm giác thư thái và an yên cho các thành viên trong gia đình.
Thông qua việc tái cấu trúc không gian, khai thác mối quan hệ giữa kiến trúc, con người và thiên nhiên; HN04 House mang đến một cách tiếp cận mới cho loại hình biệt thự trong các khu đô thị.
Dự án không theo đuổi một hình thức biểu trưng mang tính phô diễn, mà lặng lẽ tập trung vào việc cải thiện trải nghiệm sống của người sử dụng. Nơi kiến trúc trở thành công cụ tổ chức đời sống, đồng thời là phương tiện trung gian kết nối con người và thiên nhiên, giúp thích ứng với bối cảnh xã hội và đáp ứng nhu cầu sinh hoạt thực tiễn của gia đình thời hiện đại.














































































































































