Tọa lạc tại khu phố Conde Duque (Madrid), căn hộ duplex 80m2 của Philippe được cải tạo với mong muốn thay đổi không gian sống mà không cần chuyển đi nơi khác.
Sau nhiều năm sử dụng, căn hộ bộc lộ hàng loạt bất tiện: thiếu ánh sáng, bố cục rời rạc và đặc biệt là chiếc cầu thang chiếm chỗ, kém hiệu quả. Giải pháp mà kiến trúc sư lựa chọn rất rõ ràng: tái thiết toàn bộ căn hộ bắt đầu từ cầu thang, từ đó biến một lối đi đơn thuần thành trung tâm sinh hoạt của ngôi nhà.
Những giải pháp đáng học hỏi từ căn hộ duplex 80m2
-
Cải tạo căn hộ duplex 80m2 bằng cách thay đổi duy nhất vị trí cầu thang.
-
Biến cầu thang thành không gian sử dụng thực tế: kệ sách, chỗ ngồi, nơi trưng bày.
-
Giải quyết triệt để bài toán thiếu sáng cho nhà hẹp ngang 3,25m.
-
Dùng vật liệu liền mạch để kết nối hai tầng và không gian trong - ngoài.
-
Phù hợp với gia chủ yêu sách, nghệ thuật và cần sự cân bằng giữa giao tiếp và riêng tư.
Bối cảnh cải tạo: Khi không gian cũ không còn phù hợp
Căn hộ của Philippe nằm trong một tòa nhà xây dựng từ đầu thế kỷ 20, được cải tạo lại vào năm 2006. Dù sở hữu vị trí đẹp và hướng Nam đón nắng, không gian bên trong lại không tận dụng được lợi thế này. Các phòng bị chia nhỏ, sân hiên tách rời nội thất, phòng tắm mang cảm giác như khách sạn, thiếu chỗ để sách và tranh - những yếu tố rất quan trọng với gia chủ.
Đặc biệt, cầu thang thép cũ trở thành “điểm nghẽn” lớn nhất. Trong một căn hộ chỉ rộng 3,25m, chiếc cầu thang dạng khối đặc không chỉ chiếm diện tích mà còn chắn ánh sáng, tạo ra nhiều khoảng trống không sử dụng được. Điều này khiến cả 2 tầng đều tối và thiếu sự kết nối.
Sơ đồ phối cảnh thể hiện toàn bộ ý tưởng tổ chức không gian với cầu thang trung tâm. Thiết kế cho thấy cách cầu thang kết nối 2 tầng và dẫn ánh sáng xuyên suốt căn hộ
Ý tưởng thiết kế bắt đầu từ cầu thang
Di dời cầu thang để tái tổ chức toàn bộ căn hộ
Thay vì tìm cách “che giấu” cầu thang, kiến trúc sư quyết định đối diện trực tiếp với vấn đề bằng cách di dời toàn bộ cầu thang sang bức tường phía Đông, đối diện vị trí cũ. Để làm được điều này, sàn tầng trên phải mở mới hoàn toàn, đồng nghĩa với việc tháo dỡ gần như toàn bộ nội thất cũ.
Trong giai đoạn cải tạo, căn hộ trở thành một thể tích trống duy nhất. Chính trạng thái này giúp kiến trúc sư nhìn rõ cấu trúc công trình, hướng ánh sáng tự nhiên và tiềm năng tổ chức không gian, từ đó thiết kế lại căn hộ theo cách hợp lý hơn.
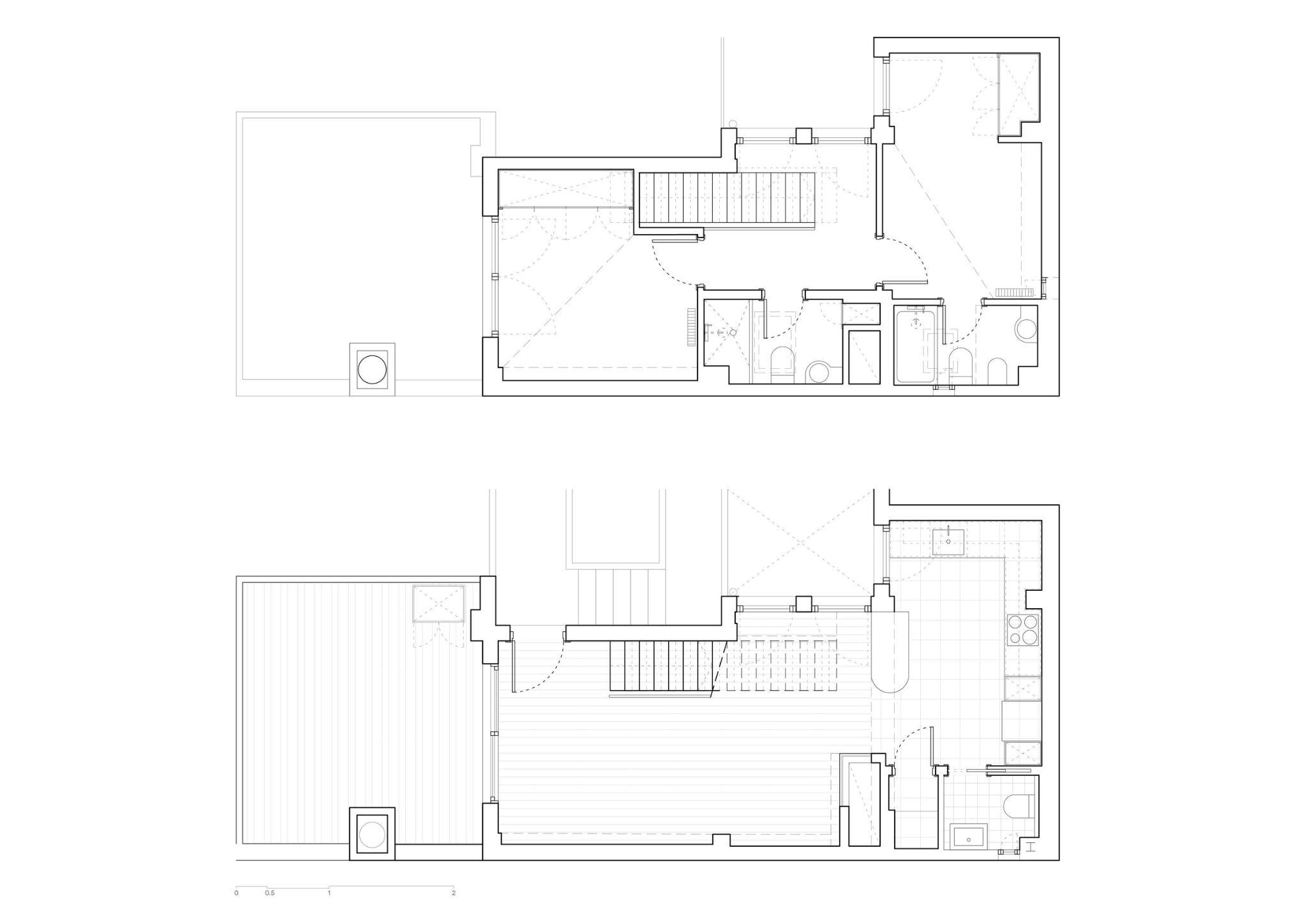
Mặt bằng bố trí tầng trên cho thấy các không gian riêng tư được tổ chức xoay quanh trục cầu thang trung tâm. Cách sắp xếp này giúp các phòng đều tiếp cận ánh sáng tự nhiên và giữ kết nối thị giác giữa 2 tầng
Mặt bằng tầng dưới thể hiện rõ không gian sinh hoạt chung liên thông giữa phòng khách, bếp và sân hiên. Cầu thang được đặt lệch sang một bên để giải phóng diện tích sử dụng và tạo dòng di chuyển mạch lạc
Mặt cắt công trình minh họa vai trò của cầu thang như một hệ kệ - bậc kết hợp xuyên suốt 2 tầng. Thiết kế này cho phép ánh sáng đi sâu vào lõi nhà và biến cầu thang thành không gian ở thực thụ
Mặt cắt dọc cho thấy mối quan hệ liền mạch giữa nội thất và sân hiên ngoài trời. Việc dùng cùng cao độ sàn và vật liệu giúp không gian trong - ngoài được kết nối tự nhiên, không bị ngắt quãng
Cầu thang mới vừa để di chuyển, vừa để trải nghiệm
Cầu thang mới không còn là một khối thép nặng nề. Thay vào đó, nó được thiết kế như một hệ kệ thép mảnh, dày khoảng 7cm, gắn sát tường. Một số kệ được kéo dài theo phương đứng để trở thành bậc thang dạng treo, với kết cấu giấu kín bên trong tường.
Ba bậc đầu tiên được đặt trên một khối đặc chắc chắn, tạo cảm giác vững chãi. Từ đó trở lên, cầu thang trở nên nhẹ và lơ lửng, cho phép ánh sáng xuyên suốt giữa 2 tầng.
Giải pháp này giúp cầu thang tối ưu diện tích, không chắn ánh sáng tự nhiên đồng thời trở thành kệ sách, chỗ ngồi hay nơi trưng bày đồ vô cùng tiện lợi. Cầu thang lúc này không chỉ là lối đi mà là một phần thực sự của không gian sống.
Cầu thang được thiết kế như hệ kệ treo kết hợp bậc thang, vừa lưu trữ sách vừa đóng vai trò phân chia không gian nhẹ nhàng. Giải pháp này biến cầu thang từ lối đi thành một phần không gian sống thực thụ
Chi tiết bậc thang và kệ sách bằng gạch đỏ đất nung, thể hiện rõ ý đồ biến cầu thang thành không gian sử dụng. Vật liệu và màu sắc được lựa chọn để tạo điểm nhấn mà vẫn hài hòa với tổng thể căn hộ
Hệ kệ cầu thang kết hợp lưu trữ sách nhìn từ góc thấp, làm nổi bật thiết kế bậc treo lơ lửng. Giải pháp này tận dụng tối đa diện tích cho nhà duplex hẹp ngang
Góc nhìn từ không gian sinh hoạt chung về phía cầu thang trung tâm. Cầu thang đóng vai trò kết nối thị giác giữa các khu vực thay vì chia cắt không gian
Không gian phòng khách được ngăn nhẹ bằng vách kính trong suốt. Giải pháp này giúp phân tách công năng mà vẫn giữ ánh sáng và cảm giác rộng rãi cho căn hộ
Phòng khách với sofa đặt sát tường, bố trí gọn gàng theo chiều ngang nhà. Góc sinh hoạt cạnh cầu thang nơi gia chủ có thể ngồi đọc sách hoặc nghỉ ngơi. Cầu thang được thiết kế như một không gian sử dụng thay vì chỉ để di chuyển
>>> Xem thêm: Cải tạo nhà phố với cầu thang xoắn ốc ngay lối vào để phục vụ nhu cầu kinh doanh
Giải pháp tổ chức công năng theo nhịp sinh hoạt
Tầng dưới - không gian sinh hoạt chung mở
Tầng dưới là nơi diễn ra hầu hết các hoạt động chung của gia chủ: nấu ăn, tiếp khách, trò chuyện và thư giãn. Phòng khách, bếp và bàn ăn được bố trí liền mạch, hạn chế vách ngăn để tạo cảm giác rộng hơn cho căn hộ hẹp ngang.
Sân hiên được kết nối trực tiếp với không gian bên trong, mở ra tầm nhìn hướng về Torre de Madrid. Nhờ bố cục mới, ánh sáng và gió tự nhiên có thể đi sâu vào nhà, cải thiện rõ rệt chất lượng không gian sống.
Không gian sinh hoạt chung tầng dưới với cầu thang trung tâm, kết nối phòng khách - bàn ăn - sân hiên trong một trục nhìn thẳng. Cách bố trí mở và cầu thang dạng kệ giúp ánh sáng tự nhiên xuyên suốt căn hộ hẹp ngang
Sân hiên nhỏ được lát cùng vật liệu sàn với nội thất, tạo cảm giác liền mạch giữa trong và ngoài. Bàn ghế gọn nhẹ và cây xanh giúp không gian ngoài trời trở thành phần mở rộng của khu sinh hoạt chung
Khu bếp được tổ chức gọn gàng với hệ tủ cao kịch trần, tận dụng tối đa chiều cao cho nhà diện tích nhỏ. Bàn ăn nhỏ và băng ghế liền tường giúp tiết kiệm diện tích mà vẫn đủ tiện nghi sử dụng hàng ngày
Không gian bếp nhìn trực diện với mảng gương lớn, giúp phản chiếu ánh sáng và tạo cảm giác căn hộ rộng hơn. Gương được dùng như một giải pháp mở rộng không gian quen thuộc nhưng rất hiệu quả cho nhà hẹp
Góc nhìn từ sân hiên vào bên trong căn hộ, thể hiện sự kết nối rõ ràng giữa trong và ngoài. Sàn lát cùng vật liệu giúp không gian như được kéo dài ra ngoài trời
Sự kết nối liền mạch giữa ngoài trời và không gian sinh hoạt bên trong. Cầu thang trung tâm đóng vai trò trục dẫn thị giác và kết nối 2 tầng nhà
Lối vào khu vực cầu thang với kệ âm tường và bậc thang tích hợp lưu trữ sách. Cầu thang được thiết kế như một không gian sử dụng thay vì chỉ là lối đi lên xuống
Góc nhìn từ cầu thang lên tầng trên cho thấy sự liên thông giữa 2 tầng nhà. Cách tổ chức không gian theo trục đứng giúp ánh sáng xuyên suốt toàn bộ căn hộ
Tầng trên - không gian riêng tư linh hoạt
Tầng trên gồm 2 phòng ngủ, một phòng tắm và một khu vực trung tâm có thể sử dụng linh hoạt làm góc đọc sách hoặc làm việc. Tất cả các phòng đều có tiếp xúc trực tiếp với bên ngoài, đảm bảo thông gió chéo và ánh sáng tự nhiên - yếu tố rất quan trọng với nhà duplex diện tích nhỏ.
Không gian tầng trên với sàn gạch đỏ đất nung và hệ cửa kính lớn đón ánh sáng tự nhiên. Vật liệu sàn được dùng xuyên suốt 2 tầng để tạo cảm giác liền mạch cho căn hộ duplex
Sàn gạch đồng nhất và hệ tủ kim loại phản chiếu ánh sáng từ cửa sổ. Thiết kế ưu tiên sự gọn gàng, tạo cảm giác yên tĩnh và riêng tư cho khu vực nghỉ ngơi
Góc sinh hoạt tầng trên nhìn ra sân hiên với hệ cửa kính mở rộng. Cách bố trí này giúp nhà hẹp ngang vẫn đảm bảo ánh sáng và thông gió tự nhiên
Khu vực hành lang tầng trên với vách gương lớn phản chiếu ánh sáng và không gian. Gương giúp mở rộng cảm giác diện tích và làm giảm sự chia cắt giữa các khu vực chức năng
Vách gương kết hợp cửa kính mở ra ban công. Giải pháp này vừa đảm bảo riêng tư vừa giữ được sự kết nối với bên ngoài
Phòng ngủ nhìn ra bên ngoài qua cửa sổ lớn, đón ánh sáng tự nhiên vào ban ngày. Thiết kế ưu tiên thông thoáng, giảm nhu cầu chiếu sáng nhân tạo
Góc nhìn từ phòng ngủ ra khu vực cầu thang và không gian sinh hoạt chung. Cách bố trí này giữ được sự kết nối thị giác mà vẫn đảm bảo riêng tư cho phòng ngủ
Chi tiết tủ gỗ kịch trần trong phòng ngủ, tận dụng chiều cao cho lưu trữ. Giải pháp này giúp căn hộ nhỏ vẫn đáp ứng đủ nhu cầu sử dụng mà không rối mắt
>>> Xem thêm: Những màn đổi vị trí cầu thang đã giúp nhà hợp lý công năng và đẹp hơn hẳn
Vật liệu và chi tiết nổi bật trong căn hộ 80m2
Sàn gạch liền mạch lấy cảm hứng từ tomette Pháp
Toàn bộ căn hộ sử dụng gạch ceramic lấy cảm hứng từ gạch tomette truyền thống miền Nam nước Pháp - nơi gắn liền với ký ức của gia chủ. Thay vì dùng gạch nhỏ, kiến trúc sư chọn gạch khổ lớn (1,20 x 0,60m) và lát xuyên suốt từ trong nhà ra sân hiên.
Màu đỏ đất nung giúp làm mờ ranh giới giữa trong và ngoài, đồng thời kết nối 2 tầng như một không gian liên tục, từ đó tạo cảm giác ấm áp, dễ chịu cho căn hộ nhỏ. Ở phòng ngủ, bếp và phòng tắm, cùng loại gạch này được dùng với tông xám và xanh để phân biệt chức năng mà không phá vỡ tổng thể.
Phòng tắm được thiết kế tối giản với tủ lavabo treo tường và màu sắc trung tính. Cách xử lý gọn gàng giúp không gian nhỏ vẫn thoáng và dễ sử dụng
Không gian phòng tắm với khu vực tắm đứng được thiết kế gọn gàng, tách biệt bằng vách kính trong suốt. Cách xử lý tối giản giúp phòng tắm nhỏ vẫn thoáng và dễ vệ sinh
Gương là giải pháp mở rộng không gian quen thuộc nhưng hiệu quả
Phòng bếp, phòng tắm và phòng ngủ chính được bao bọc bằng các mảng gương lớn. Gương phản chiếu ánh sáng, giúp không gian có cảm giác rộng hơn, đồng thời tạo hiệu ứng thị giác thay đổi theo thời gian trong ngày.
Với nhà nhỏ, đây là một giải pháp đơn giản nhưng mang lại hiệu quả rõ rệt nếu sử dụng đúng vị trí.
Mảng gương lớn ngăn cách khu bếp và không gian sinh hoạt, đồng thời phản chiếu ánh sáng tự nhiên từ sân hiên. Giải pháp này giúp giảm cảm giác chia cắt mà vẫn đảm bảo phân tách công năng
>>> Xem thêm: Mẫu cầu thang tiết kiệm diện tích: Giải pháp cầu thang cho nhà nhỏ hẹp vừa gọn vừa đẹp
Trải nghiệm sống: Một căn hộ vừa mở, vừa riêng
Sau cải tạo, căn hộ không còn cảm giác chật chội hay thiếu sáng. Gia chủ có thể thoải mái tiếp bạn bè, trưng bày sách và tác phẩm nghệ thuật, nhưng vẫn dễ dàng tìm thấy những khoảng lặng riêng tư khi cần.
Công trình cho thấy rằng, đôi khi chỉ cần thay đổi đúng một yếu tố cốt lõi như cầu thang là đủ để thay đổi hoàn toàn cách sống trong một ngôi nhà.
Căn hộ duplex 80m2 tại Madrid là minh chứng rõ ràng cho sức mạnh của thiết kế tập trung vào trải nghiệm sống. Khi cầu thang được nhìn nhận như một không gian ở thực thụ, nó không chỉ kết nối 2 tầng mà còn kết nối con người với nhịp sinh hoạt hàng ngày.
Cùng khám phá thêm nhiều không gian sống sáng tạo và giàu cảm hứng tại Chuyện nhà của Happynest nhé.
Thông tin công trình
Tên ngôi nhà: Casa Binôme
Diện tích thực tế (m2): 80
Đơn vị thiết kế: gon architects
Đơn vị thi công: REDO Construcción
Đơn vị chụp ảnh: Imagen Subliminal (Rocío R. Rivas + Miguel de Guzmán)
Địa điểm: Conde Duque, Madrid, Tây Ban Nha
Phong cách thiết kế: Đương đại
Số tầng: 2
Số phòng ngủ: 2
Loại nhà: Duplex
Nguồn: archello
*Để lại thông tin trong box dưới đây, Happynest sẽ giúp bạn kết nối đơn vị thiết kế - thi công phù hợp và nhanh chóng nhất.


















































































































