Giữa nhịp sống hối hả của thành phố Kuching, Malaysia, căn hộ rộng 250m2 hiện lên như một khoảng lặng tĩnh mịch, tách biệt khỏi sự ồn vã bên ngoài. Không cầu kỳ trong chi tiết hay phô trương về vật liệu, không gian chọn cho mình ngôn ngữ tối giản để đối thoại với tâm hồn gia chủ. Đây không chỉ là nơi để ở, mà còn là một hành trình tìm về sự cân bằng, nơi mỗi góc nhỏ đều được chăm chút để nuôi dưỡng cảm giác chữa lành trọn vẹn.
Sự tối giản trong bố cục giúp căn hộ 250m2 trở thành nơi trú ẩn yên bình giữa lòng đô thị
Triết lý thiết kế liên hoàn và sự giải phóng vách ngăn
Để tạo nên một không gian có khả năng xoa dịu tâm trí, nhóm thiết kế đã bắt đầu từ việc xóa bỏ những rào cản vật lý thường thấy trong các căn hộ truyền thống. Thay vì chia nhỏ diện tích bằng những bức tường kiên cố, căn hộ được tổ chức theo hệ không gian mở và liên thông tuyệt đối.
Không gian liên hoàn giúp gia chủ cảm nhận được sự tự do và thoáng đãng trong từng bước chân
Phòng khách, khu vực ăn uống và bếp được kết nối mạch lạc, cho phép năng lượng và ánh sáng luân chuyển không ngừng nghỉ qua từng mảng diện tích. Sự ngăn cách giữa các khu vực chức năng giờ đây không còn là những tấm vách nặng nề, mà được định hình một cách đầy nghệ thuật thông qua sự thay đổi tinh tế về cao độ sàn, hướng sắp đặt nội thất hay sự chuyển tiếp của chất liệu bề mặt.
Ranh giới giữa các khu vực được phân định khéo léo bằng ngôn ngữ của chất liệu và kiến trúc
>>> Xem thêm: Không ai nghĩ tổ ấm 65m2 thanh thuần và tinh tế này lại là căn chung cư trên tầng 12 của chồng Tây vợ Việt
Ánh sáng và chất liệu - Những nhân tố vỗ về cảm xúc
Trong một không gian tối giản, ánh sáng không chỉ là có tác dụng chiếu sáng mà còn là một thành phần kiến trúc hữu hình, khắc họa nên vẻ đẹp của thời gian. Hệ thống cửa và vách kính được tính toán kỹ lưỡng để đón nhận ánh sáng tự nhiên từ nhiều hướng, để nắng len lỏi và di chuyển dần qua các bề mặt trong suốt cả ngày dài.
Ánh sáng tự nhiên di chuyển theo thời gian, tạo nên những bức tranh thị giác thay đổi liên tục.
Để tạo nên độ dịu nhẹ cho thị giác, nhóm thiết kế ưu tiên sử dụng gỗ sáng màu kết hợp cùng các bề mặt nhám thô và chất liệu vải mềm mại. Sự tương tác này khiến ánh sáng không bị chói gắt mà được tán xạ đều, tạo ra một bầu không khí ấm áp, bao bọc lấy người ở trong sự dễ chịu và thư thái tuyệt đối.
Đảo bếp gỗ đóng vai trò là điểm neo vững chãi, mang lại sự ổn định và cân bằng cho khu vực sinh hoạt chung
Ánh sáng được khai thác tối đa trong từng góc nhỏ của ngôi nhà
Những góc nhỏ tĩnh lặng và tinh thần thủ công
Sự sang trọng của căn hộ không nằm ở những món đồ đắt giá, mà hiện hữu trong cách sắp xếp những chi tiết mang đậm dấu ấn cá nhân và sự thô mộc. Bên cạnh bộ sofa êm ái, một góc thư giãn nhỏ được tổ chức tối giản với kệ gỗ trưng bày những món đồ gốm thủ công đầy tinh xảo.
Sự hiện diện của đồ gốm thủ công mang lại nét tinh tế và ấm áp cho không gian tối giản.
Tại đây, sự đối lập giữa bề mặt tường thô ráp và nét nhẵn mịn của đồ nội thất đã tạo nên một bản giao hưởng về cảm quan, kích thích sự tĩnh lặng trong suy nghĩ. Mọi chi tiết thừa thãi đều bị loại bỏ, nhường chỗ cho những trải nghiệm sâu sắc về xúc giác và thị giác, giúp gia chủ dễ dàng trút bỏ những áp lực thường nhật.
Sự tương phản giữa các bề mặt chất liệu tạo nên chiều sâu nghệ thuật cho căn hộ.
Giải pháp lưu trữ tích hợp vào tường giúp loại bỏ hoàn toàn cảm giác rườm rà của các hệ tủ rời.
>>> Xem thêm: Từ căn hộ 2 phòng ngủ quen thuộc đến cấu trúc 1+1 linh hoạt
Không gian nghỉ ngơi riêng tư đầy mạch lạc
Bước vào khu vực nghỉ ngơi, tinh thần tối giản tiếp tục được duy trì để đảm bảo một giấc ngủ sâu và sự hồi phục năng lượng trọn vẹn. Phòng ngủ chính là minh chứng cho triết lý Less is more với bố cục cực kỳ gọn gàng và hạn chế vật dụng.
Không gian nghỉ ngơi và các phòng chức năng đều tuân theo triết lý tối giản
Mảng tường ốp gỗ chạy dọc không chỉ tạo hiệu ứng thị giác về chiều sâu mà còn mang lại cảm giác an tâm, ấm áp như được ôm ấp bởi thiên nhiên. Ngay cả trong phòng vệ sinh, sự tối giản cũng được đẩy lên hàng đầu với lavabo dạng trụ đặt nổi và hệ gạch trắng ốp dọc, tạo nên một không gian thanh sạch, nơi gia chủ có thể thư giãn hoàn toàn sau một ngày dài.
Phòng ngủ lược bỏ mọi yếu tố gây nhiễu để tập trung tối đa vào chức năng nghỉ ngơi.
Thiết kế phòng vệ sinh hiện đại, sạch sẽ với những đường nét hình học dứt khoát.
Căn hộ 250m2 tại Kuching không cố gắng gây ấn tượng bằng những giải pháp kiến trúc phức tạp, mà chinh phục lòng người bằng sự chân thật và tinh tế trong từng đường nét. Qua bàn tay của những người am hiểu về không gian, triết lý tối giản đã trở thành nhịp cầu nối liền giữa con người và thiên nhiên, giữa hiện tại và sự bình yên nội tại. Đây thực sự là một chuẩn mực mới cho không gian sống hiện đại - nơi kiến trúc thực hiện sứ mệnh cao cả nhất là xoa dịu và chữa lành tâm hồn. Khám phá thêm nhiều công trình độc đáo tại Chuyện nhà.
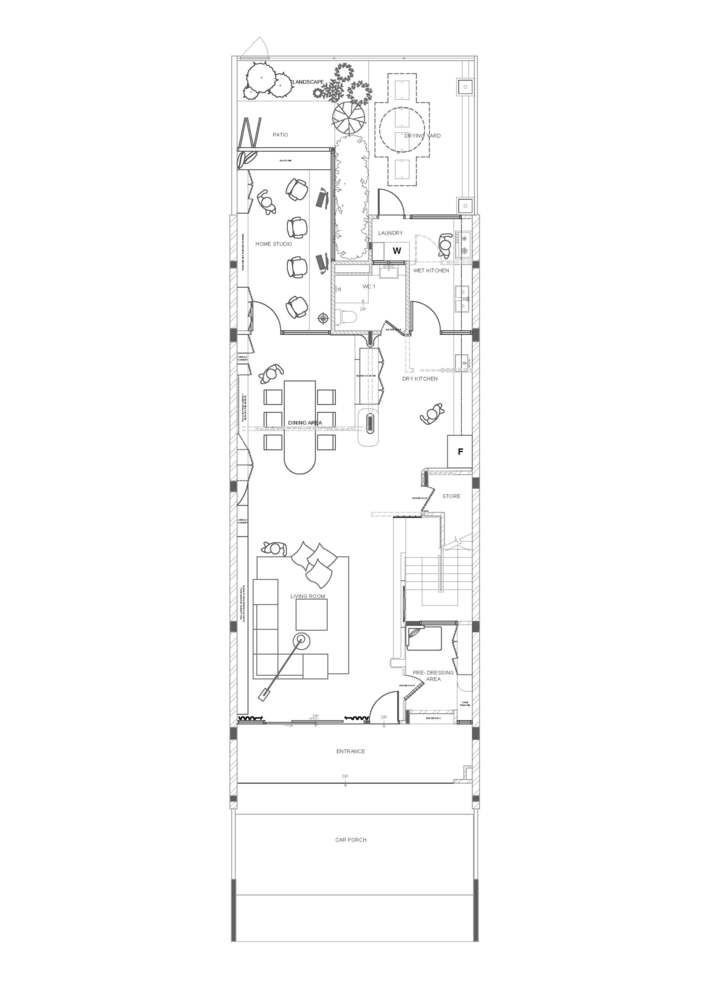
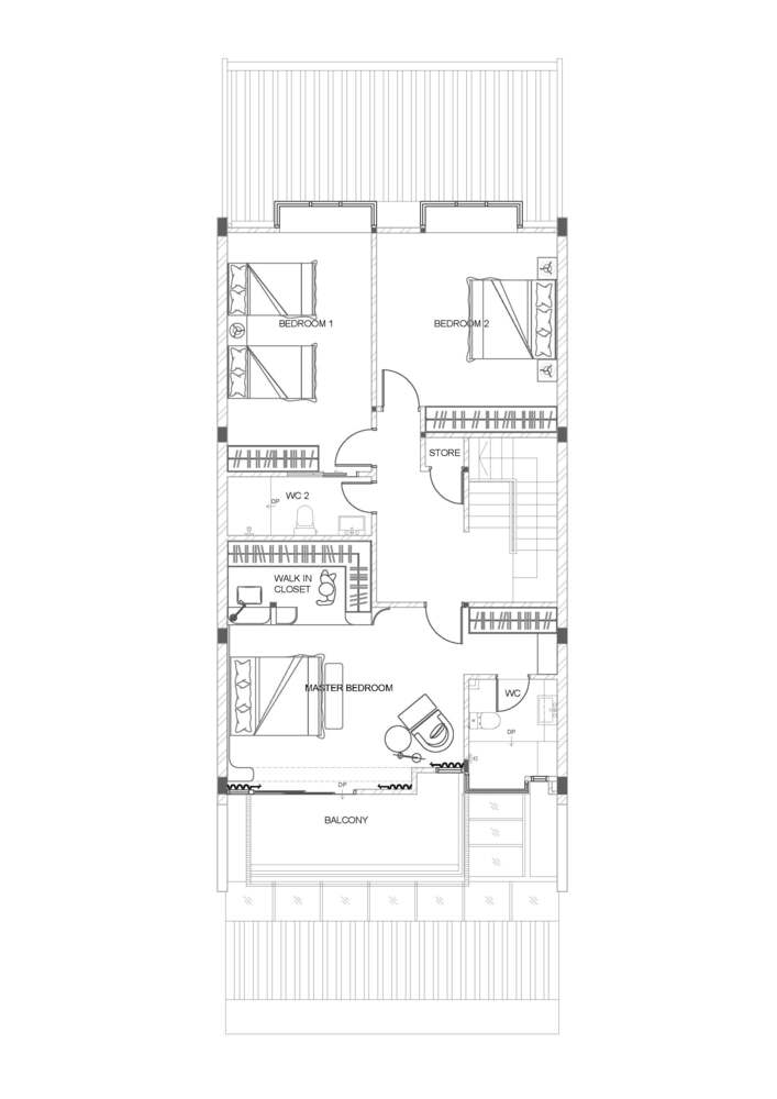
Bản vẽ chi tiết công trình
>>> Xem thêm: Cải tạo Liuliu Apartment, biến căn hộ cũ thành không gian sống hiện đại đẳng cấp
Thông tin công trình:
Tên ngôi nhà: Sorairo Apartment
Tổng diện tích (m2)): 250
Năm hoàn thành: 2023
Đơn vị thiết kế: J HOUS STUDIO
Đơn vị chụp ảnh: TWJPTO
Địa điểm: Kuching, Malaysia
Số tầng: 2
Số phòng ngủ: 3
Loại nhà: Căn hộ
Nguồn: Tổng hợp
*Để lại thông tin trong box dưới đây, Happynest sẽ giúp bạn kết nối đơn vị thiết kế - thi công phù hợp và nhanh chóng nhất.





































































































