Giữa một Bangkok đông đúc, nơi nhà cửa chen chúc và những khoảng xanh ngày càng hiếm, vợ chồng anh Ohm và chị Mew đã tìm được cho mình một cách “rút lui” nhẹ nhàng khỏi sự ồn ã của phố thị bằng chính ngôi nhà mang tên The Oasis House.
Ngôi nhà được thiết kế để bên ngoài khép kín, nhưng bên trong lại mở rộng ra thiên nhiên. Đó là một tổ ấm nhỏ xinh, nơi người ta cảm nhận được sự yên bình và thoáng đãng ngay giữa trung tâm thành phố.
Tóm tắt nhanh các giải pháp thiết kế của The Oasis House
-
Ngôi nhà phố 2 tầng được thiết kế dạng chữ U, khép kín bên ngoài và mở ra khoảng sân trong ở giữa.
-
Ứng dụng mô hình tầng lệch (Split Level) giúp tạo cảm giác rộng rãi, thông gió tốt dù diện tích đất nhỏ.
-
Sân trong (courtyard) được xem là “trái tim” của ngôi nhà, kết nối mọi không gian sinh hoạt.
-
Lam gỗ đứng giúp che nắng, đảm bảo riêng tư mà vẫn cho phép ánh sáng và gió tự nhiên luân chuyển.
-
Vật liệu và màu sắc hiện đại, nhẹ nhàng, giúp căn nhà hòa mình với khu phố mà vẫn giữ nét riêng.
Câu chuyện bắt đầu từ một giấc mơ về cuộc sống bình yên
Khi bắt đầu lên ý tưởng xây nhà, anh Ohm và chị Mew không đặt nặng chuyện phải thật sang trọng hay cầu kỳ. Điều họ mong muốn là một nơi có thể “đóng cửa lại để nghỉ ngơi, mở cửa ra để thấy cây xanh”. Một không gian vừa đủ riêng tư, vừa đủ ánh sáng, vừa có chỗ cho hơi thở thiên nhiên len lỏi vào từng căn phòng.
Khu đất chỉ khoảng 68m2, lại nằm giữa khu dân cư dày đặc, tưởng chừng khó có thể tạo được sự thông thoáng. Nhưng nhóm thiết kế Pongpat Architect đã tìm ra cách để “nới rộng” cảm giác không gian mà không cần thêm diện tích bằng việc bố trí khoảng sân trong (courtyard) và tạo cao độ tầng lệch (Split Level) để ngôi nhà luôn có độ mở và ánh sáng tự nhiên.
Toàn cảnh The Oasis House nhìn từ trên cao cho thấy khối nhà chữ U khép kín giữa khu dân cư đông đúc của Bangkok. Thiết kế hiện đại kết hợp lam gỗ và mảng xanh tạo nên “ốc đảo riêng tư” nổi bật giữa không gian chật hẹp
Mặt tiền ngôi nhà nổi bật với hệ lam gỗ dọc giúp che nắng, chắn gió và giữ sự riêng tư cho không gian bên trong. Tầng trệt mở rộng làm gara đôi, phía trên là ban công nhỏ trồng cây xanh mang lại cảm giác tươi mát
Sơ đồ mô phỏng quá trình hình thành khối kiến trúc - từ nền đất, bố cục chữ U đến giải pháp sân trong và tầng lệch. Hình minh họa cho thấy cách kiến trúc sư tổ chức không gian để ngôi nhà vừa thoáng sáng vừa có độ riêng tư cao
Bản vẽ mặt bằng tầng 1 thể hiện rõ bố cục mở quanh sân trong - nơi kết nối phòng khách, bếp và phòng ngủ. Cây xanh được bố trí ở trung tâm giúp thông gió, lấy sáng tự nhiên cho toàn bộ khối nhà
>>> Xem thêm: Nhà phố thiết kế 3 sân trong để gia chủ có thể thức dậy với ánh nắng xuyên qua tán lá cây trong khu vườn
Không gian được “xếp lớp” nhẹ nhàng mà thông minh
Giải pháp tầng lệch tạo cảm giác nhà rộng và thoáng hơn
Vì nền đất khu vực này phải nâng cao thêm hơn 1m để chống ngập, các kiến trúc sư đã tận dụng điều đó để thiết kế ngôi nhà theo dạng tầng lệch. Các sàn được bố trí chênh nhau vừa đủ, tạo cảm giác không gian được “xếp lớp”, vừa mở tầm nhìn, vừa giúp gió và ánh sáng dễ dàng luân chuyển khắp nhà.
Khi bước vào nhà, người ta không thấy sự bí bách thường gặp ở những căn nhà phố nhỏ, mà thay vào đó là cảm giác nhà luôn có độ cao - thấp tự nhiên, như đang được dẫn dắt qua từng lớp không gian khác nhau.
Từ cầu thang gỗ nhìn xuống sân trong, có thể thấy rõ bố cục giật tầng và cây xanh xen kẽ. Thiết kế này giúp ánh sáng và gió lưu thông đều giữa 2 tầng
Phòng khách mở rộng liền kề sân trong, nơi ánh sáng tự nhiên phản chiếu khắp không gian. Cửa trượt kính toàn khổ giúp kết nối nội - ngoại thất một cách liền mạch
Khu bếp - ăn được thiết kế đơn giản, tinh tế với gam màu trung tính và nội thất gỗ sáng. Không gian mở ra sân trong, giúp khu vực sinh hoạt luôn sáng và thoáng khí
Phòng khách nhìn ra sân trong, nơi mảng tường đá xám kết hợp cây xanh tạo điểm nhấn thị giác. Không gian gợi cảm giác yên tĩnh, riêng tư giữa lòng thành phố
Sân trong - Trái tim xanh giữa ngôi nhà
Điểm đặc biệt nhất của The Oasis House là khoảng sân trong được đặt ngay trung tâm. Giữa nhà có một khu vườn nhỏ với vài tán cây, một hồ nước và lối đi lát đá. Mọi không gian chính - phòng khách, bếp, phòng ngủ - đều hướng ra khoảng sân này.
Ban ngày, ánh sáng chiếu xuyên qua tán lá, phản chiếu trên mặt nước, làm cho căn nhà luôn mát mẻ và sáng dịu. Buổi tối, ánh đèn hắt nhẹ qua những khung cửa kính, khiến khu vườn trở thành một góc thư giãn đầy thi vị. Với anh Ohm và chị Mew, đây là nơi họ ngồi nhâm nhi cà phê sáng, đọc sách, hay đơn giản là lặng im nghe tiếng nước chảy - một cách “rời khỏi thế giới” mà chẳng cần rời khỏi nhà.
Khoảng sân trong với nhiều bậc thang và sàn gỗ là “trái tim” của ngôi nhà, nơi ánh sáng và cây xanh hòa quyện. Không gian này đóng vai trò như khu vườn nhỏ, kết nối liền mạch các phòng ở 2 tầng
Lối đi dọc sân trong mở ra khung cảnh tươi mát, nơi ánh sáng tự nhiên lan tỏa khắp không gian sinh hoạt. Các khung cửa kính trượt giúp xóa nhòa ranh giới giữa phòng khách, bếp và khu vườn trung tâm
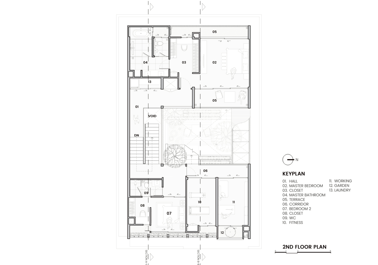
Bản vẽ tầng 2 cho thấy các phòng ngủ, phòng làm việc và phòng tập đều hướng ra khoảng sân trong. Thiết kế này giúp mọi không gian trên tầng đều đón được ánh sáng và gió tự nhiên từ khu vườn phía dưới
Góc nhìn sân trong với cây, bậc thang và tiểu cảnh nước được sắp đặt khéo léo tạo cảm giác như khu nghỉ dưỡng nhỏ. Chất liệu gỗ, đá và cây xanh được phối hợp hài hòa, mang lại cảm giác ấm cúng và gần gũi thiên nhiên
Bản vẽ mặt cắt thể hiện rõ giải pháp thông gió chéo và lấy sáng tự nhiên qua sân trong trung tâm. Hướng gió và ánh sáng được tính toán kỹ để ngôi nhà luôn mát mẻ, tiết kiệm năng lượng quanh năm
Khoảng sân trong tầng trên với cây xanh, bậc thang và ánh sáng tự nhiên tràn ngập. Không gian mở giúp các phòng đều có tầm nhìn hướng vườn, tạo cảm giác thư giãn như ở resort
Bản vẽ minh họa hệ thống thông gió tự nhiên trong sân trong. Luồng không khí được dẫn qua cao độ lệch tầng và mặt nước, giúp nhà luôn mát mẻ
Giải pháp đảm bảo riêng tư nhưng không bị tù túng
Vì ngôi nhà nằm giữa khu dân cư đông đúc, sự riêng tư là ưu tiên hàng đầu. Toàn bộ mặt tiền được thiết kế đóng kín bằng mảng tường và lam gỗ dọc, giúp chắn bớt tầm nhìn từ bên ngoài, đồng thời giảm ánh nắng hướng Tây. Phía trên là ban công và cửa kính lớn, cho phép ánh sáng tự nhiên tràn vào bên trong nhưng không gây chói.
Từ ngoài nhìn vào, căn nhà có vẻ tĩnh lặng, hơi “bí ẩn”. Nhưng chỉ cần bước qua cánh cửa là một thế giới khác mở ra: sáng, xanh, và thoáng đến bất ngờ.
Toàn cảnh The Oasis House nhìn từ trên cao, nổi bật giữa khu phố đông đúc. Khối kiến trúc chữ U bao quanh sân trong tạo cảm giác khép kín nhưng vẫn thoáng sáng
Hành lang lát gạch xám dẫn vào nhà, với tường gạch thông gió tạo điểm nhấn mạnh mẽ. Kết hợp vật liệu gỗ - kính - gạch giúp không gian vừa ấm cúng, vừa hiện đại
Từ góc nhìn đối diện, sân trong trở thành “trục xanh” kết nối giữa các tầng. Thiết kế tận dụng kính và lam gỗ giúp ánh sáng xuyên suốt mà vẫn giữ riêng tư
>>> Xem thêm: KTS thiết kế riêng cho gia chủ ''công viên'' trên sân thượng để tập thể dục
Những vật liệu giản dị nhưng hiệu quả
Toàn bộ công trình sử dụng những vật liệu quen thuộc và bền vững:
-
Gạch, bê tông, gỗ, kính được phối hợp khéo léo để vừa hiện đại, vừa có cảm giác ấm cúng.
-
Lam gỗ đứng không chỉ là chi tiết thẩm mỹ mà còn có tác dụng điều tiết nắng và gió.
-
Sàn đá và sàn gỗ tự nhiên mang lại cảm giác mát mẻ, dễ chịu khi di chuyển chân trần trong nhà.
-
Kính cường lực khổ lớn giúp ánh sáng tự nhiên lan tỏa, tiết kiệm điện và giảm cảm giác khép kín.
Nhờ những vật liệu đơn giản ấy, The Oasis House không chỉ đẹp theo kiểu hiện đại, mà còn đẹp vì hợp lý và dễ sống.
Một ngôi nhà đủ đầy, nơi nghỉ dưỡng hàng ngày của gia đình
Sau khi chuyển vào sống, anh Ohm và chị Mew nhận ra họ ít khi muốn ra ngoài hơn trước. Họ làm việc, nấu ăn, tập thể dục và thư giãn ngay trong nhà - tất cả đều xoay quanh khoảng sân trong. Không gian mở giúp các thành viên dễ trò chuyện hơn, ánh sáng tự nhiên khiến tâm trạng luôn dễ chịu.
“Chúng tôi nhận ra rằng, hóa ra bình yên không phải là đi xa, mà là có một nơi để quay về mỗi ngày, yên tĩnh mà đủ đầy như thế này.” Anh Ohm chia sẻ.
Khoảnh khắc sinh hoạt đời thường trong sân trong, nơi các thành viên cùng vui chơi và trò chuyện. Không gian mở giúp gắn kết con người, biến ngôi nhà thành chốn nghỉ ngơi thật sự giữa lòng phố
Ban công tầng 2 hướng về khoảng sân trong xanh mát, nơi cây và hoa nở quanh năm. Không gian nghỉ ngơi lý tưởng, vừa riêng tư vừa kết nối với thiên nhiên
>>> Xem thêm: 10 mô hình vườn sân thượng nhà phố đẹp, xanh mát và dễ áp dụng tại Việt Nam
The Oasis House là một ví dụ điển hình cho cách mà kiến trúc có thể biến giới hạn thành cơ hội. Chỉ với một khu đất nhỏ, nhưng nhờ cách tổ chức thông minh và tinh tế, ngôi nhà đã trở thành “ốc đảo riêng tư” giữa thành phố - nơi con người được chạm vào thiên nhiên, hít thở không khí trong lành, và tận hưởng cuộc sống chậm rãi, nhẹ nhàng hơn.
Cùng khám phá thêm nhiều công trình độc đáo tại Chuyện nhà để tìm cảm hứng cho ngôi nhà mơ ước của bạn.
Thông tin công trình:
Tên ngôi nhà: The Oasis House
Diện tích xây dựng (m2): 336
Tổng diện tích khu đất (m2): 68
Năm hoàn thành: 2025
Đơn vị thiết kế: Pongpat Architect Co., Ltd.
Đơn vị thi công: Soponsiri Construction Co., Ltd.
Đơn vị chụp ảnh: Rungkit Charoenwat
Địa điểm: Soi Phung Mi 30, quận Phra Khanong, Bangkok, Thái Lan
Phong cách thiết kế: Hiện đại, tối giản, gần gũi thiên nhiên
Số tầng: 2
Số phòng ngủ: 3
Loại nhà: Nhà phố
Nguồn: dsignsomething
*Để lại thông tin trong box dưới đây, Happynest sẽ giúp bạn kết nối đơn vị thiết kế - thi công phù hợp và nhanh chóng nhất.












































































































