Giữa một khu dân cư yên tĩnh phía sau trục đường thương mại lớn của thành phố Gangneung, ngôi nhà này từng là một văn phòng nhỏ, được sử dụng suốt gần 10 năm.
Khi không gian không còn đáp ứng tốt nhu cầu sử dụng, thay vì phá bỏ hay xây mới, gia chủ và kiến trúc sư đã chọn cải tạo lại toàn bộ để biến nơi làm việc cũ thành nhà ở cho một cặp vợ chồng. Hoàn thành năm 2024, công trình rộng 137m2 là một ví dụ rõ ràng cho cách “đổi đời” nhà cũ bằng những can thiệp vừa đủ, hợp lý và bền vững.
Tóm tắt giải pháp thiết kế của nhà 3 tầng
-
Giữ lại kết cấu cũ, chỉ cải tạo những phần thật sự cần thiết.
-
Bổ sung cách nhiệt từ bên ngoài để cải thiện chất lượng sống.
-
Sắp xếp lại không gian theo chiều cao thay vì chia nhỏ từng tầng.
-
Biến mái nhọn và hình khối đặc biệt thành điểm nhấn kiến trúc.
-
Vẫn giữ chỗ đỗ xe tầng trệt - yếu tố rất quan trọng trong đô thị.
Từ một văn phòng cũ đến quyết định cải tạo thành nhà ở
Công trình nằm ở Hongje-dong, Gangneung - một khu vực có mật độ xây dựng cao nhưng vẫn giữ được nhịp sống khá yên tĩnh. Con đường trước nhà chạy theo hướng Bắc - Nam, trong khi phía Tây Bắc lại mở ra tầm nhìn về đèo Daegwallyeong, mang đến cảm giác thoáng đãng hiếm có trong khu dân cư.
Ngôi nhà vốn được xây dựng làm văn phòng, với không gian khá đơn giản và mang tính chức năng. Sau gần một thập kỷ sử dụng, các nhược điểm dần bộc lộ: cách nhiệt kém khiến mùa đông lạnh, mùa hè nóng; không gian chật và thiếu sự riêng tư cần thiết cho sinh hoạt gia đình.
Thay vì tiếp tục sửa chữa nhỏ lẻ hoặc xây mới hoàn toàn, gia chủ quyết định chuyển văn phòng sang một địa điểm khác, rồi cải tạo lại công trình cũ thành nhà ở. Đây là lựa chọn hợp lý cả về kinh tế lẫn môi trường, nhưng cũng đi kèm không ít thách thức.
Mặt tiền ngôi nhà cải tạo với mái kim loại màu xanh nhạt và tường trát trắng nổi bật giữa khu dân cư cũ. Hình khối gọn gàng và mái nhọn giúp công trình chuyển mình từ văn phòng khô cứng thành một ngôi nhà có cá tính rõ ràng
Giải pháp thay đổi mái và lớp vỏ giúp công trình cũ có diện mạo mới nhưng vẫn hài hòa khu phố
>>> Xem thêm: Cải tạo nhà phố hướng Tây thành không gian văn phòng sáng thoáng
Chuyển đổi công năng kéo theo nhiều ràng buộc kỹ thuật
Việc chuyển một tòa nhà văn phòng thành nhà ở không đơn giản như thay đổi nội thất. Theo quy định xây dựng mới, công trình sau khi đổi mục đích sử dụng phải đáp ứng nhiều tiêu chuẩn nghiêm ngặt hơn, đặc biệt là về phòng cháy và vật liệu hoàn thiện bên ngoài.
Cụ thể, mặt ngoài công trình buộc phải sử dụng vật liệu không cháy, cửa sổ cần đạt chuẩn chống cháy, khiến chi phí tăng lên đáng kể. Để kiểm soát ngân sách, kiến trúc sư đã đưa ra những lựa chọn rất thực tế.
Tường nhà được bổ sung thêm lớp cách nhiệt từ bên ngoài, kết hợp với hệ cách nhiệt bên trong sẵn có, giúp cải thiện rõ rệt khả năng giữ nhiệt. Phần trần tầng trệt - nơi thường bị thất thoát nhiệt - cũng được tăng cường cách nhiệt. Riêng mái nhà, do vẫn đảm bảo hiệu quả sử dụng, nên được giữ lại lớp hoàn thiện cũ để tiết kiệm chi phí. Hệ cửa sổ được thay mới bằng cửa Rehau, vừa đảm bảo cách nhiệt, vừa đáp ứng yêu cầu an toàn.
Những can thiệp này không quá “ồn ào”, nhưng đủ để nâng chất lượng sống của ngôi nhà lên một mức hoàn toàn khác.
Toàn cảnh ngôi nhà nhìn từ trên cao, nổi bật với mái nhọn như “đầu bút chì” giữa khu phố đông đúc
Tầng trệt - Khi bếp và phòng ăn trở thành không gian trung tâm
Ở thời điểm còn là văn phòng, tầng trệt được dùng làm không gian trưng bày, thiếu đi cảm giác chào đón của một ngôi nhà. Khi cải tạo, kiến trúc sư bổ sung thêm một tiền sảnh nhỏ - một chi tiết tưởng như đơn giản nhưng lại rất quan trọng trong nhà ở, giúp tạo khoảng chuyển tiếp giữa ngoài và trong.
Phần còn lại của tầng trệt được dành trọn cho bếp và phòng ăn. Đây không chỉ là nơi nấu nướng, mà còn là không gian tiếp khách chính của ngôi nhà. Cách bố trí này phản ánh đúng thói quen sinh hoạt của nhiều gia đình trẻ, nơi bữa ăn và các cuộc trò chuyện thường diễn ra quanh bàn ăn.
Đặc biệt, khu vực đỗ xe hiện hữu được giữ nguyên, đủ chỗ cho hai xe - một lợi thế lớn trong bối cảnh đô thị, và cũng là lý do khiến việc cải tạo trở nên “đáng giá” hơn so với xây mới.
Khu bếp và phòng ăn bố trí gọn gàng với hệ tủ trắng và bàn đảo trung tâm. Thiết kế ưu tiên công năng và ánh sáng giúp bếp trở thành nơi sinh hoạt chính của gia đình
>>> Xem thêm: Tổng hợp nhà ở kết hợp văn phòng, studio giúp gia chủ cân bằng giữa cuộc sống và công việc
Tầng hai - Không gian sinh hoạt chung thoáng đãng và linh hoạt
Trước đây, tầng hai là khu làm việc với nhiều vách ngăn nhỏ. Khi cải tạo, toàn bộ các vách này được tháo bỏ, trả lại một mặt bằng thông thoáng để làm phòng khách.
Không gian sinh hoạt chung vì thế trở nên rộng rãi và dễ sử dụng hơn, phù hợp cho cả sinh hoạt hàng ngày lẫn những buổi tụ họp nhỏ. Các không gian phụ trợ được sắp xếp lại gọn gàng: khu pha trà cũ và nhà vệ sinh được chuyển thành phòng tắm và phòng trang điểm riêng biệt, đồng thời bổ sung thêm phòng giặt - một chức năng cần thiết nhưng thường bị bỏ quên trong nhà cải tạo.
Cách tổ chức này giúp tầng hai vừa thoáng, vừa đầy đủ tiện nghi, không bị cảm giác “chắp vá” thường thấy ở các công trình cải tạo.
Không gian cầu thang kết hợp giá sách cao sát trần, kết nối các tầng theo chiều đứng. Cầu thang được tận dụng như một trục sinh hoạt và lưu trữ, giúp tiết kiệm diện tích cho ngôi nhà nhỏ
Khu vực cầu thang với bậc gỗ sáng màu và cửa sổ nhỏ lấy sáng tự nhiên. Ánh sáng được dẫn sâu vào bên trong, giúp không gian giao thông luôn thoáng và không bị tối
Không gian cầu thang kết hợp giá sách cao kịch trần, tạo cảm giác như một thư viện nhỏ trong nhà. Cầu thang được tận dụng làm trục lưu trữ, giúp tiết kiệm diện tích cho nhà ống cải tạo
Phòng sinh hoạt chung tầng hai với sofa lớn, bàn làm việc và đàn piano đặt trong cùng một không gian mở. Việc loại bỏ vách ngăn giúp ánh sáng lan tỏa và các hoạt động sinh hoạt không bị chia cắt
Phòng khách nhìn từ góc đối diện, kết nối trực tiếp với hệ tủ và cầu thang. Bố cục tối giản giúp không gian rộng rãi hơn dù diện tích không lớn
Tầng ba - Phòng ngủ dưới mái nhọn, riêng tư và yên tĩnh
Với diện tích nhỏ và hình dáng mái nhọn, tầng ba từng là không gian khó sử dụng nhất của tòa nhà cũ. Thay vì cố gắng chia nhỏ thành nhiều phòng, kiến trúc sư chọn giải pháp đơn giản hơn: biến toàn bộ tầng này thành phòng ngủ duy nhất cho hai vợ chồng.
Trần mái nhọn được giữ nguyên, tạo nên cảm giác đặc biệt cho không gian nghỉ ngơi. Phòng ngủ nằm tách biệt hoàn toàn với các hoạt động sinh hoạt bên dưới, mang lại sự yên tĩnh và riêng tư cần thiết. Ánh sáng tự nhiên được đưa vào qua các ô cửa, mở ra hướng Tây Bắc - nơi có tầm nhìn xa và thoáng hơn so với các hướng còn lại.
Ở đây, hạn chế về hình khối không còn là nhược điểm, mà trở thành điểm nhấn làm nên cá tính của ngôi nhà.
Phòng ngủ nằm trọn dưới mái nhọn với trần xiên đặc trưng và ánh sáng tự nhiên dịu nhẹ. Giữ nguyên hình dáng mái cũ giúp tạo không gian nghỉ ngơi yên tĩnh, riêng tư cho hai vợ chồng
Phòng tắm sử dụng đá vân marble sáng màu với các hốc âm tường để đồ. Giải pháp hốc tường giúp không gian gọn gàng và dễ sử dụng trong sinh hoạt hằng ngày
>>> Xem thêm: Thiết kế văn phòng X2 không gian làm việc hiện đại mang lại năng suất và sáng tạo gấp đôi
Diện mạo mới của ngôi nhà 3 tầng giữa khu phố cũ
Nếu nhìn từ bên ngoài, khó có thể nhận ra đây từng là một văn phòng bê tông trần. Lớp tường trát trắng kết hợp mái kim loại màu xanh vàng nhạt mang đến hình ảnh một ngôi nhà gọn gàng, sáng sủa và khác biệt vừa đủ so với các công trình xung quanh.
Hình dáng mái nhọn khiến ngôi nhà được ví như một “đầu bút chì” cắm giữa khu phố - một cách tạo điểm nhấn nhẹ nhàng, không phô trương nhưng đủ để người đi ngang phải chú ý.
Toàn cảnh ngôi nhà vào buổi tối nhìn từ trên cao, nổi bật giữa khu dân cư cũ. Hệ cửa sổ và ánh sáng bên trong giúp công trình trở nên ấm áp và có sức sống về đêm
Sơ đồ tổng mặt bằng cho thấy ngôi nhà nằm trên lô đất nhỏ, tiếp cận từ đường 6m. Giải pháp tổ chức lối vào xe và lối vào chính tách biệt giúp sử dụng đất hiệu quả trong khu dân cư dày đặc
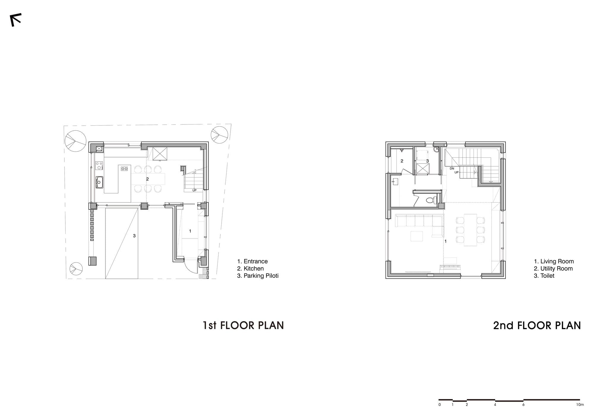
Mặt bằng tầng 1 bố trí bếp và không gian phụ trợ, tầng 2 là phòng khách và sinh hoạt chung. Cách phân tầng rõ ràng giúp chuyển đổi công trình từ văn phòng sang nhà ở mà không phá vỡ kết cấu cũ
Tầng 3 dành cho phòng ngủ và ban công nhỏ dưới mái dốc, phía trên là mặt bằng mái. Việc giữ nguyên hình dạng mái giúp tận dụng không gian áp mái cho sinh hoạt riêng tư
Bản vẽ mặt đứng thể hiện hình khối đơn giản với mái nhọn đặc trưng. Thiết kế mặt đứng mới giúp ngôi nhà có diện mạo nhẹ nhàng, phù hợp với quy mô khu phố
Sơ đồ cho thấy mái dốc được mở một khoảng để lấy sáng xuống các tầng dưới. Giải pháp này giúp cải thiện ánh sáng tự nhiên cho ngôi nhà cải tạo có diện tích nhỏ
Ngôi nhà cải tạo này cho thấy: Với những công trình cũ trong đô thị, đôi khi không cần phá bỏ hay xây mới hoàn toàn. Chỉ cần hiểu rõ cấu trúc sẵn có, cải tạo đúng chỗ và đặt nhu cầu sống của con người làm trung tâm, một văn phòng khô cứng hoàn toàn có thể trở thành tổ ấm ấm áp, tiện nghi và có cá tính riêng.
Cùng khám phá thêm nhiều câu chuyện cải tạo nhà ở và không gian sống đáng học hỏi tại Chuyện nhà trên Happynest nhét.
Thông tin công trình:
Tên ngôi nhà: Pencil House
Diện tích thực tế (m2): 137
Năm hoàn thành: 2024
Đơn vị thiết kế: Architecture Studio YEIN
Đơn vị chụp ảnh: Joon Hwan, Yoon
Địa điểm: Gangneung, Hàn Quốc
Số tầng: 3
Số phòng ngủ: 1
Loại nhà: Nhà phố
Nguồn: Archdaily
*Để lại thông tin trong box dưới đây, Happynest sẽ giúp bạn kết nối đơn vị thiết kế - thi công phù hợp và nhanh chóng nhất.











































































































