Herrystraat Deurne ẩn mình giữa dãy nhà Bourgeois mang phong cách Beaux-Arts xây dựng từ năm 1923. Từ một căn nhà hẹp và kín, công trình được cải tạo thành không gian sống mở linh hoạt, cho phép ánh sáng, vật liệu và thiên nhiên hòa quyện cùng nhau.
Herrystraat Deurne mở rộng không gian sống bằng ánh sáng và vườn sau nhà
Cấu trúc nguyên bản của Herrystraat Deurne điển hình cho chuỗi nhà liền kề đầu thế kỷ XX với mặt tiền kiên cố, phía sau hẹp và thiếu tính kết nối. Trong lần cải tạo này, nhóm thiết kế đã khéo léo tổ chức lại mặt bằng để đáp ứng mong muốn của gia chủ về không gian đa năng, dễ dàng thay đổi theo thời gian.
Mặt tiền ngôi nhà Herrystraat Deurne mang phong cách Beaux-Arts đặc trưng, xây dựng từ năm 1923. Công trình nằm giữa dãy nhà liền kề cổ điển, lưu giữ dấu ấn kiến trúc Bourgeois
Khu bếp bố trí dọc bên hông nhằm tạo độ mở cho toàn bộ tầng trệt. Giếng trời giữa nhà đóng vai trò dẫn sáng tự nhiên, giúp luồng sáng di chuyển nhẹ nhàng xuyên suốt. Hệ cửa kính xếp lớn ở mặt sau cho phép không gian mở hoàn toàn ra sân, biến khu vườn thành phần tiếp nối tự nhiên của phòng ăn và bếp. Vào những ngày thời tiết đẹp, ranh giới trong - ngoài dường như tan biến, mang lại cảm giác khoáng đạt và tươi mới cho toàn bộ căn nhà.
>>> Xem thêm: The Boundaryless - Cải tạo ngôi nhà 100 tuổi thành tổ ấm hiện đại để bà cùng con cháu sum vầy
Không gian bếp - phòng ăn mở hoàn toàn ra khu vườn sau, tạo cảm giác rộng rãi và tràn ngập ánh sáng. Cửa kính lớn giúp ánh sáng tự nhiên tràn sâu vào nhà, làm nổi bật màu sắc vật liệu
Hệ cửa trượt kính mở ra khoảng sân nhỏ phủ đầy cây xanh. Ánh sáng và thiên nhiên trở thành phần không thể tách rời của không gian sống
Từ khu vườn nhìn vào trong, sự chuyển tiếp giữa nội thất và ngoại thất diễn ra liền mạch. Sàn gạch và gỗ tự nhiên kết nối không gian bằng gam màu ấm áp
Cửa kính có thể gập mở linh hoạt, cho phép không gian mở hoàn toàn ra ngoài trời. Thiết kế này giúp hơi thở thiên nhiên lan tỏa đến từng góc nhỏ trong nhà
Tủ bếp gỗ veneer kết hợp cánh hồng tạo điểm nhấn vui tươi và cá tính. Ánh sáng tự nhiên làm dịu bảng màu, khiến không gian luôn tươi mới và dễ chịu
Gam màu vàng - hồng kết hợp cùng ánh sáng mang lại cảm giác ấm cúng và sinh động. Ngôi nhà thể hiện tinh thần sống lạc quan, trẻ trung của gia chủ
Góc nhìn từ bàn ăn hướng ra vườn cho thấy sự cân bằng giữa thiên nhiên và nội thất. Mọi chi tiết đều được tinh giản để tôn lên chất liệu và ánh sáng
Từ bếp nhìn xuyên ra phòng khách, không gian liên thông tạo cảm giác liền mạch và thoáng đãng. Sàn gỗ và đồ nội thất mộc mạc giữ lại nét nguyên bản của ngôi nhà
Phòng khách sáng bừng với ánh sáng tự nhiên từ cửa sổ lớn phía trước. Cây xanh, vật liệu gỗ và ánh sáng hòa quyện, tái hiện tinh thần sống cân bằng và gần gũi
Sắc màu và vật liệu kiến tạo bầu không khí tươi vui trong Herrystraat Deurne
Lấy cảm hứng từ hình khối nghiêng và góc tù trong thiết kế gốc, nhóm kiến trúc sư đã biến những yếu tố này thành dấu ấn hình học xuyên suốt dự án Herrystraat Deurne. Nhà bếp là điểm nhấn nổi bật với hệ tủ gỗ veneer anh đào kết hợp cánh tủ màu hồng nhạt, bảng màu gợi cảm giác ấm áp, trẻ trung và tươi sáng. Các đường nét phẳng mịn và chi tiết giấu tay nắm giúp không gian thanh thoát, hiện đại.
Phía sau quầy bếp, gạch lục giác nhỏ màu xám nhạt được sử dụng như lớp nền tinh tế, làm nổi bật những khối màu hồng và gỗ ấm. Sàn gạch lục giác vàng tiếp nối không gian từ trong ra ngoài, kết nối khu vực sinh hoạt với sân vườn. Khi ánh nắng phản chiếu lên nền gạch và tán lá, ngôi nhà trở nên rực rỡ, tràn đầy năng lượng và giàu sức sống hơn.
>>> Xem thêm: Căn nhà cổ 100 tuổi được hồi sinh thành nhà nghỉ đậm tinh thần Nhật Bản
Hệ tủ bếp gỗ veneer anh đào kết hợp cánh hồng nhạt tạo điểm nhấn vui tươi. Bảng màu gợi cảm giác ấm áp, trẻ trung và đầy sức sống
Bố cục bếp gọn gàng, các mảng phẳng và chi tiết giấu tay nắm giúp không gian trở nên thanh thoát. Ánh sáng tự nhiên tôn lên sắc độ dịu dàng của gỗ và hồng pastel
Cửa gỗ lớn giấu khéo các khu vực lưu trữ và lối đi phụ. Giải pháp này giúp mặt bằng luôn gọn gàng và thống nhất
Cận cảnh chi tiết nối giữa tấm gỗ và mặt phẳng hồng cho thấy tay nghề xử lý tinh tế. Sàn gạch vàng lục giác làm nền cho toàn bộ bảng màu
Các bề mặt gỗ được hoàn thiện mịn màng, gợi cảm giác tự nhiên và chân thật. Ánh sáng phản chiếu nhẹ trên lớp veneer tạo chiều sâu thị giác
Không gian ăn uống ngập nắng, nơi sắc vàng của sàn hòa cùng ánh sáng ấm. Những chi tiết nhỏ như kệ tường và cây xanh mang lại nhịp sống tươi vui
Từ bàn ăn có thể nhìn trọn khu vườn sau nhà, nơi ánh sáng và màu sắc giao hòa. Cảm giác kết nối giữa trong và ngoài được duy trì một cách tự nhiên
Khoảng sân nhỏ bên ngoài như phần mở rộng của không gian sinh hoạt. Màu đỏ, xanh và vàng cùng xuất hiện, tạo nên giai điệu rực rỡ của cuộc sống thường nhật
Khu vực giao thoa giữa nội thất và vườn là nơi thư giãn lý tưởng. Ánh sáng len lỏi qua tán cây, làm nổi bật chất liệu và đường nét giản dị
Góc ngồi nhỏ bên cửa mở ra khu vườn xanh là điểm kết tinh tinh thần của Herrystraat Deurne. Ở đó, sắc màu, vật liệu và thiên nhiên cùng tạo nên bầu không khí ấm áp, tươi vui
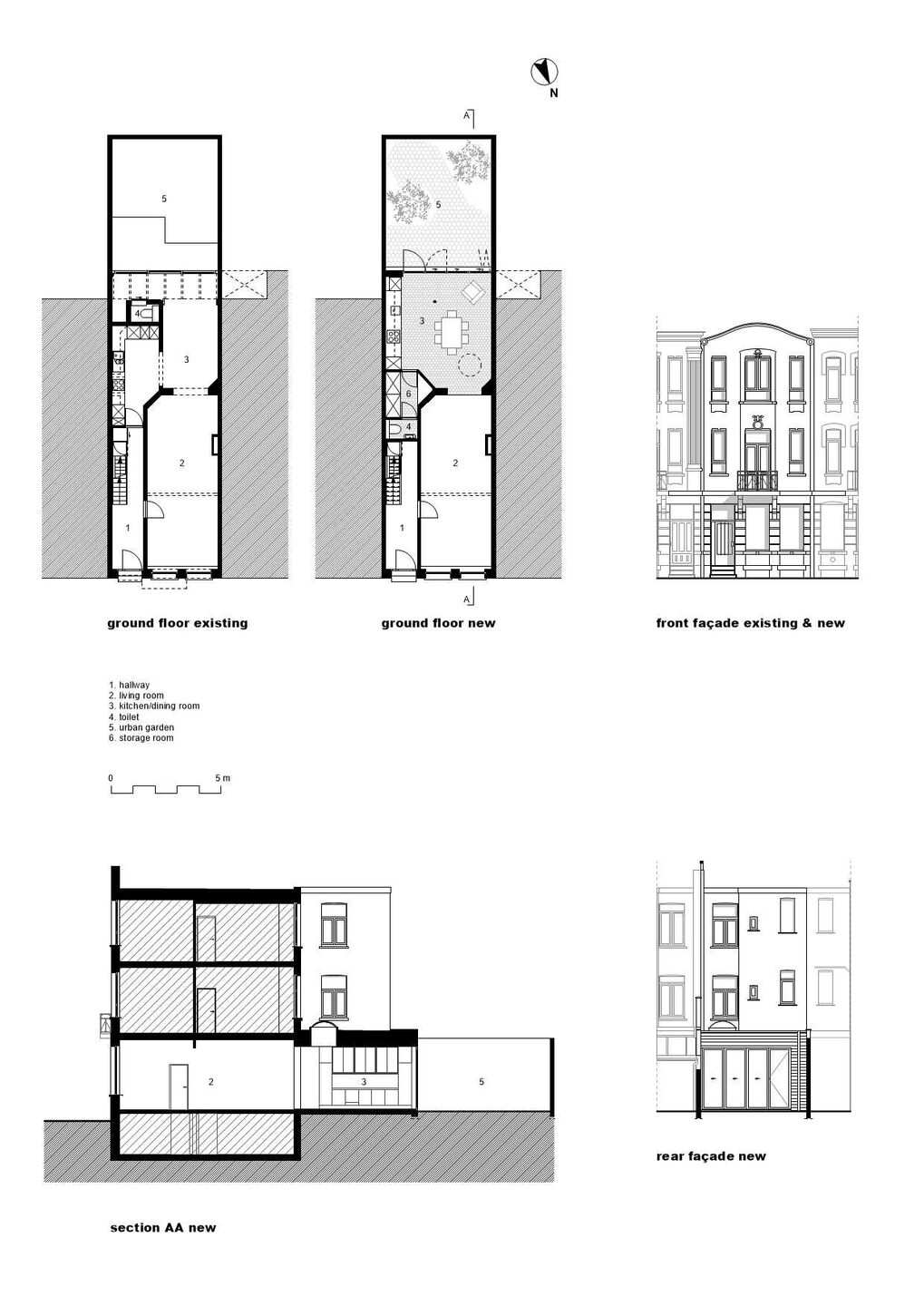
Các bản vẽ thiết kế Herrystraat Deurne
>>> Xem thêm: Cải tạo nhà cổ 100 tuổi thành biệt thự nghỉ dưỡng cho gia đình đa thế hệ vào cuối tuần
Quá trình cải tạo Herrystraat Deurne thể hiện sự tôn trọng quá khứ và thích nghi tốt với đời sống hiện đại. Mỗi chi tiết đều thiết kế có chủ đích để giữ lại tinh thần của kiến trúc Beaux-Arts, đồng thời mang đến cảm giác thoải mái, tươi vui và gần gũi với tất cả mọi người.
Cùng khám phá thêm nhiều ngôi nhà độc đáo tại Chuyện nhà.
Thông tin công trình:
Tên ngôi nhà: Herrystraat Deurne
Diện tích (m2): 35
Năm hoàn thành: 2025
Đơn vị thiết kế: PolygoonArchitectuur
Đơn vị chụp ảnh: Jessy van der Werff
Địa điểm: Bỉ
Loại nhà: Nhà ống
Nguồn: Archello
*Để lại thông tin trong box dưới đây, Happynest sẽ giúp bạn kết nối đơn vị thiết kế - thi công phù hợp và nhanh chóng nhất.





















































































































