Bối cảnh
Nằm trên khu đất 70m² lệch góc so với trục đường chính, A.K Home tọa lạc trong một khu dân cư yên tĩnh, nhiều cây xanh. Chủ nhà mong muốn một ngôi nhà giản dị, kín đáo nhưng có cá tính – một nơi để trở về và hòa vào nhịp sống khu phố, thay vì phô trương.
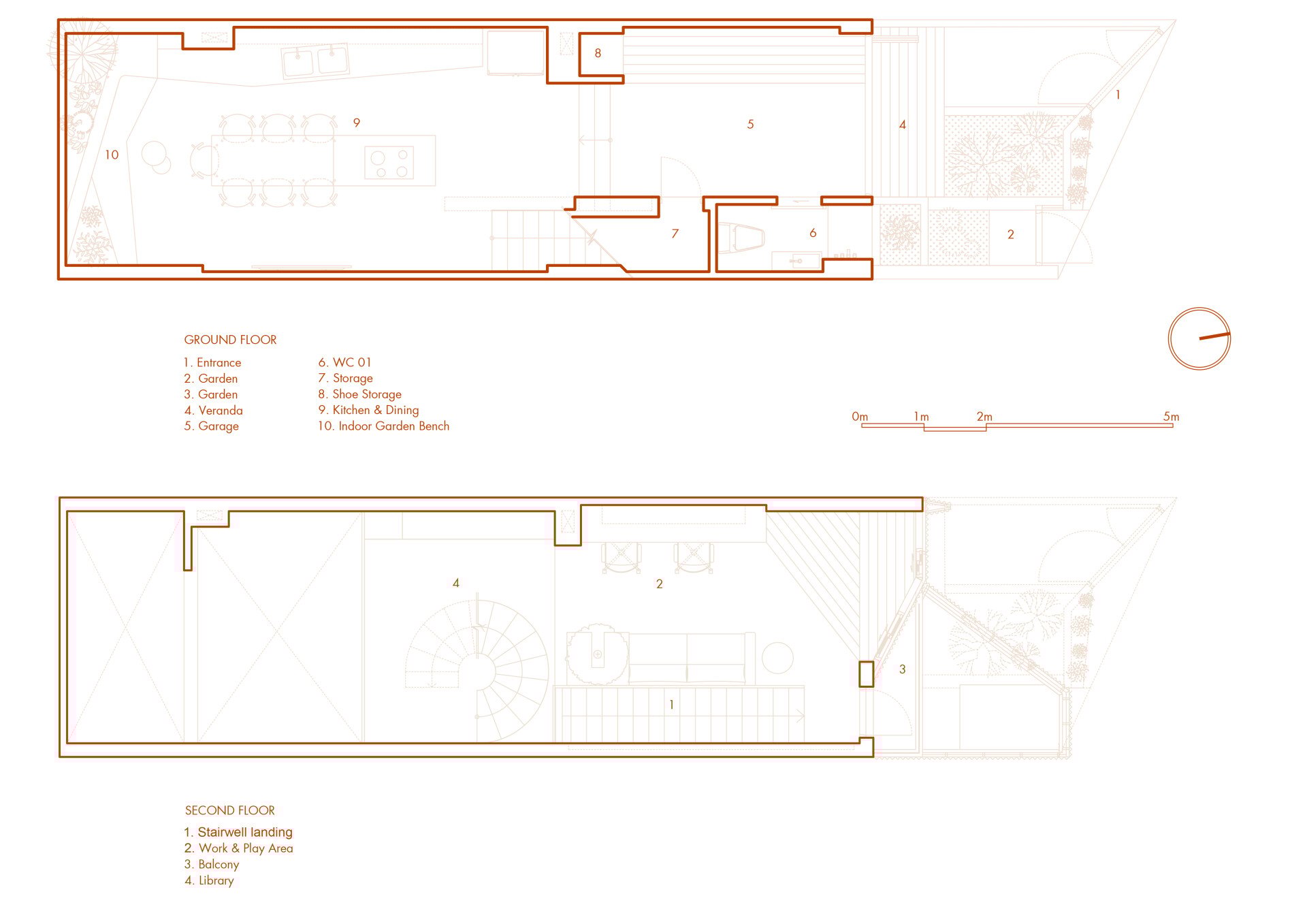
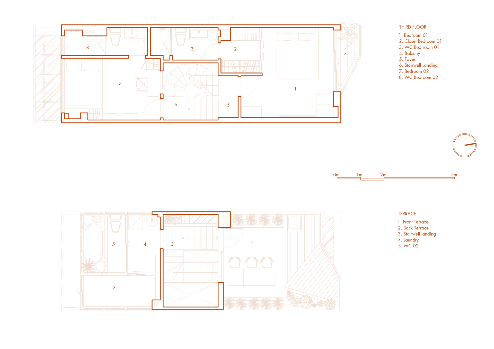
Hệ thống bản vẽ mặt bằng, mặt cắt và mặt đứng thể hiện cách tổ chức không gian và nguyên lý thông gió – chiếu sáng tự nhiên của A.K Home.
Không gian & nhịp thở
Điểm nhấn của ngôi nhà là khoảng hở cuối nhà – xử lý như một giếng trời ngang, vừa lấy sáng, vừa hút gió tự nhiên. Các mảng xanh đệm nhiệt được bố trí xen kẽ giữa các tầng giúp điều hòa độ ẩm, tạo bầu không khí dịu mát và chiều sâu cảm xúc cho không gian sống.
Nhịp không gian được nối bằng cầu thang cong – một chuyển động mềm mại giúp tiết kiệm diện tích, giảm phân mảnh và tăng tương tác giữa các thành viên.
Không gian bếp ăn được tổ chức quanh giếng trời ngang
Khoảng mở cuối nhà – nơi ánh sáng và gió tự nhiên gặp nhau
Tổ chức công năng
Tầng trệt: Bếp – bàn ăn – chỗ để xe. Phía cuối nhà là khoảng đệm mở kết hợp cây xanh, đưa ánh sáng và gió len sâu vào khu vực nấu nướng. Không gian này vì thế không chỉ để dùng bữa, mà còn là góc tái tạo năng lượng mỗi ngày.
Căn bếp ấm cúng, tràn ngập ánh nắng - thay đổi theo từng thời điểm trong ngày
Từ khu bếp, ánh sáng và tầm nhìn được mở dần lên cao
Tầng hai: Phòng khách kiêm khu sinh hoạt – làm việc – giải trí. Cấu trúc lệch tầng và cầu thang cong giúp không gian nhỏ linh hoạt mà vẫn thống nhất.
Khu vực làm việc, giải trí và thư giãn của gia chủ
Tầng ba: Hai phòng ngủ, mỗi phòng đều có vệ sinh riêng và tiếp cận ánh sáng tự nhiên. Phòng ngủ chính tận dụng khoảng lùi của mặt đứng để dẫn ánh sáng từ mái vào sâu, kể cả khu vực phòng tắm – riêng tư nhưng thoáng sáng.
Sân thượng: Không gian thư giãn với phòng tắm – bồn ngâm và mảng xanh; là nơi cân bằng nhiệt, đón gió, mở ra một nhịp sống chậm rãi giữa đô thị.
Mặt tiền & lớp “màng” riêng tư
Mặt tiền được phủ bởi lưới thép:
- Chắn nhìn trực diện từ tuyến đường nhỏ có nhà đối diện gần kề.
- Giảm bức xạ nắng cho sân trước, tạo điều kiện để hệ thực vật phát triển – đặc biệt là các loài kiểng lá mà gia chủ yêu thích.
- Cấu trúc giật cấp của lớp lưới giúp cân bằng hình dáng bất đối xứng của khu đất, tạo nên một mặt đứng hài hòa và có chiều sâu.
Từ điểm bất lợi của khu đất lệch góc, khối giật cấp trở thành mặt đứng giàu cảm xúc và nhịp điệu.
Ánh sáng – thông gió – vật liệu
Thiết kế ưu tiên ánh sáng khuếch tán, điều tiết qua lớp lưới – mái kính – các ô cửa đặt có chủ đích. Luồng khí đối lưu theo trục đứng kết hợp giếng trời ngang giúp nhà luôn thoáng mà vẫn kín đáo.
Vật liệu được chọn theo tinh thần tiết chế: bề mặt trung tính, các chi tiết hoàn thiện vừa đủ, nhấn vào tỷ lệ và kết nối giữa các mảng đặc – rỗng, sáng – tối, thô – mịn.
Từ ngoài nhìn vào, A.K Home lặng lẽ hòa mình vào khu phố – không phô trương, chỉ còn lại nhịp sống tự nhiên.
Sau hai năm sử dụng
Ngày PAU bàn giao A.K Home không phải là dấu kết thúc, mà là khởi đầu cho một hành trình cùng nhau vun đắp. Sau hai năm, ngôi nhà không còn là “một công trình đẹp”, mà là không gian có linh hồn: ánh sáng qua mái kính trở nên dịu hơn, cây xanh phủ kín mảng tường thô, cầu thang trắng in dấu bước chân thân thuộc. Với PAU, giá trị bền vững không nằm ở vẻ ngoài hoành tráng, mà ở cảm giác bình yên còn nguyên vẹn theo thời gian.
Đoạn kết
A.K Home chứng minh rằng trong một đô thị dày đặc, sự bình yên vẫn có thể được kiến tạo từ ánh sáng, gió và những khoảng thở nhỏ. Khi không gian sống được tổ chức đúng nhịp với con người, kiến trúc không cần nói nhiều – nó tự nhiên cất tiếng bằng cảm giác ở lại.




















































































































