E15 House là dự án nhà ở quê được xây dựng trên khu đất rộng rãi và lợi thế 4 mặt thông thoáng. Ngôi nhà được thiết kế để tận hưởng tối đa cảnh quan thiên nhiên, nhưng vẫn mang đến tiện nghi hài hòa nhất cho gia chủ khi sinh hoạt.
| Trải nghiệm bài viết và hình ảnh mượt mà hơn với ứng dụng Happynest tại đây. |
E15 House sở hữu tầm nhìn tuyệt đẹp ra cảnh quan xanh mướt xung quanh
Ngôi nhà được thiết kế mở tại những góc độ thích hợp giúp gia chủ tận hưởng trọn vẹn thiên nhiên mà không làm ảnh hưởng đến tiện nghi khi sinh hoạt
Vị trí xây dựng của E15 House là mảnh đất đồng quê thuộc quận Marcos Paz, tỉnh Buenos Aires. Mặt trời từ phía Đông mang đến tầm nhìn bao quát và thông suốt nhất cho ngôi nhà, bởi vậy các phòng công năng chính như phòng khách, phòng ngủ đều được bố trí tại hướng này với thiết kế mở. Ngược lại, phía Tây được che chắn bởi những bức tường kín, nhằm cản lại nắng nóng và những ánh nhìn soi mói của hàng xóm. Lối vào của ngôi nhà kéo dài từ hướng Bắc và tăng dần về hướng nam, tạo ra luồng giao thông di chuyển thuận tiện cho gia chủ.
>>> Xem thêm: 7 công trình “nhà ở quê” có thiết kế ấn tượng nhất trên Happynest trong 2018
Phòng khách của E15 House nằm ở hướng Đông, nơi đón ánh nắng bình minh dịu nhẹ
Phòng ăn nối liền với phòng khách và nằm ở vị trí vuông góc giữa phòng khách và phòng bếp
Toàn bộ bề mặt giáp với hướng Đông đều được thiết kế mở với tường kính và những khoảng hở giúp thông gió, lấy sáng
Phòng khách thông suốt và nối liền với phòng ăn, được bao quanh bởi hệ cửa kính trong suốt
Thiết kế mái dốc giúp ngôi nhà bố trí thêm 1 gác lửng phía trên phòng khách, giúp tăng diện tích sử dụng trong khi vẫn tiết kiệm chi phí
Bếp nấu đối diện với bàn ăn, được lấy sáng và thông gió bởi cửa sổ kính sát trần
Trong khi mặt phía Đông của ngôi nhà được thiết kế mở, thì mặt phía Tây lại khép kín và được bao bọc bởi những bức tường đặc
Bên cạnh việc bố trí không gian công năng theo hướng nhà, E15 House còn nổi bật nhờ được ứng dụng các vật liệu thô mộc, cách nhiệt, với chi phí bảo trì thấp. Tấm kim loại kép và lớp phủ polyurethane nhiệt giúp tối đa hóa khả năng cách nhiệt và rút ngắn thời gian thi công của ngôi nhà.
Dù thiết kế hướng đến việc cản nắng gắt, song ngôi nhà vẫn được mở cửa sổ trần ở những vị trí phù hợp, giúp tận dụng toàn bộ ánh sáng tự nhiên vào ban ngày. Các bức tường phía Đông và Tây đều được làm bằng tấm nhiệt điện kết hợp vật liệu nhôm, giúp giảm tải trọng cho công trình, trong khi vẫn đạt hiệu quả cách nhiệt như mong muốn.
>>> Xem thêm: Nhà ở quê thiết kế tối giản nhất có thể để gia chủ tận hưởng không gian sống cởi mở, tự do
E15 được xây dựng với kết cấu khung thép, giúp giảm tải trọng và rút ngắn thời gian, chi phí thi công
Bề mặt tường ngoài được hoàn thiện từ vật liệu có khả năng cách nhiệt
Không giống như không gian phòng khách - bếp mở, lối vào chính của ngôi nhà có phần kín đáo và nhỏ gọn
E15 House được xây dựng với mái dốc, ý đồ tạo phễu lấy sáng và tăng diện tích sử dụng của nhóm KTS
Bể bơi được bố trí dọc nhà và nằm ở rìa phía đông, cạnh phòng khách và phòng ăn, giúp gia chủ sinh hoạt thuận tiện
Phòng vệ sinh với thiết kế nhỏ gọn, sáng thoáng
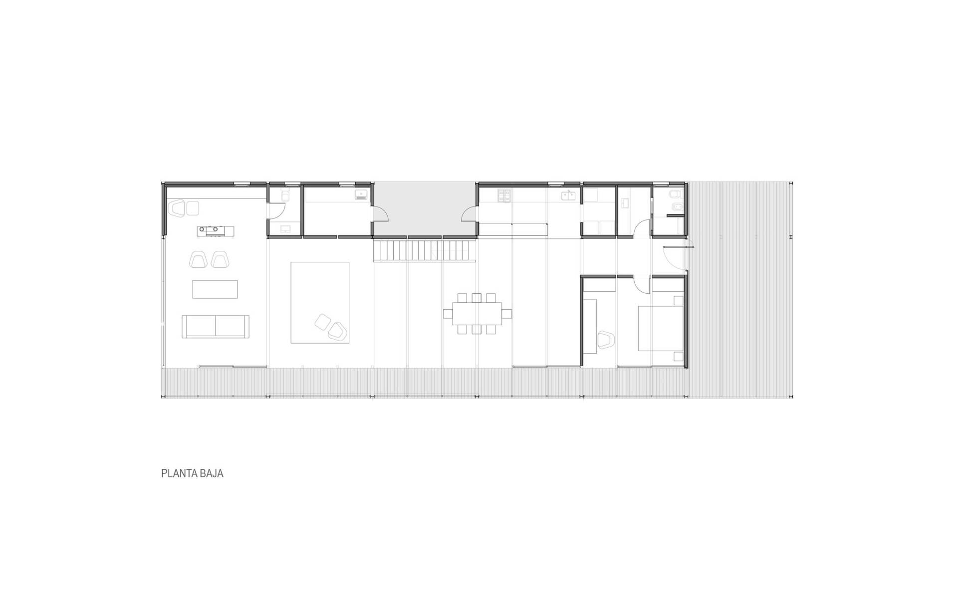
Bản vẽ thiết kế công trình
E15 House sở hữu lợi thế diện tích đất xây dựng thông thoáng, giúp gia chủ dễ dàng bố trí công năng sử dụng và các tiện ích sinh hoạt khác. Ngôi nhà là ví dụ hay để tham khảo với những gia chủ đang có đất rộng, muốn tìm hiểu ý tưởng xây nhà vườn hoặc nhà nghỉ dưỡng ở quê.
>>> Xem thêm: Nhà ở quê một bên là vườn, một bên là ao giúp gia chủ tận hưởng cuộc sống điền viên, thôn dã
Thông tin công trình:
Tên công trình: E15 House
Đơn vị thiết kế: Centro Cero Estudio
KTS: Carolina Antolini, Leonardo Valtuille
Địa điểm: Argentina
Năm hoàn thiện: 2021
Ảnh: Javier Agustín Rojas
Bài viết: Hoài Nam
*Bài viết được biên soạn bởi đội ngũ Happynest. Xin vui lòng không sao chép dưới mọi hình thức.
| Chia sẻ ngay câu chuyện của bạn tại đây để kết nối với cộng đồng yêu nhà đẹp trên nền tảng Happynest nhé. Nếu đây là lần đầu bạn đăng bài, hãy tham khảo trước tài liệu này để hiểu rõ hơn về các thể loại bài đăng, tips giúp bài đăng được duyệt nhanh và thu hút sự chú ý nhất từ cộng đồng. Mọi thắc mắc về việc đăng bài hoặc chỉnh sửa bài, xin vui lòng liên hệ địa chỉ email info@happynest.vn, hoặc phản hồi trực tiếp qua fanpage Happynest để được hỗ trợ và tư vấn kịp thời. |



















































































































